Μετάβαση στο περιεχόμενο

Bill Gal

Μη μηχανικός
  • Περιεχόμενα

    2
  • Εντάχθηκε

  • Τελευταία επίσκεψη

Φήμη στην κοινότητα

0 Ουδέτερη

Profile Information

  • Επάγγελμα
    Ιδιώτης-Μη μηχανικός
  • Ειδικότητα
    Ιδιώτης

Τελευταίοι επισκέπτες προφίλ

The recent visitors block is disabled and is not being shown to other users.

  1. Και βέβαια ρώτησα μηχανικό , η απάντηση του είναι , μεταλικος σκελετός εσωτερικά τραπεζοειδή και ελαφρομπετον για πατώματα .
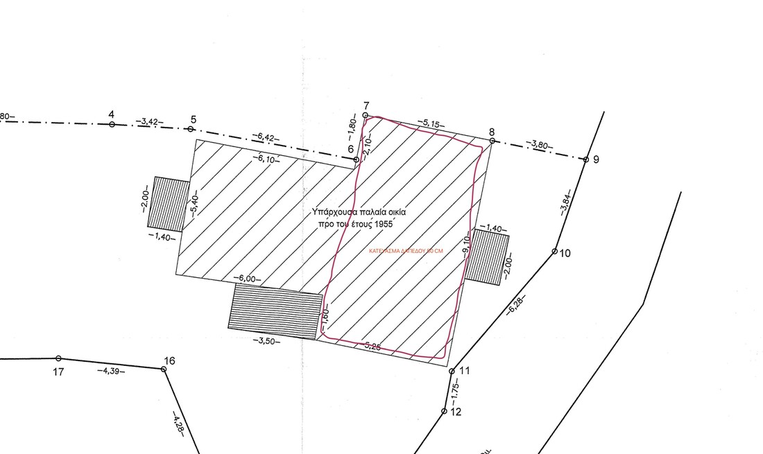
  2. Καλησπέρα σας , αγόρασα πρόσφατα ένα τριώροφο πέτρινο αρχοντικό 80τμ (εξωτερική ) ανά όροφο σε σχήμα Τ το οποίο έχει άριστη φέρoν τοιχοποιία 60 cm και έχουν γίνει παρεμβάσεις εξωτερικές από τον προηγούμενο ιδιοκτήτη ( στέγη καινούργια - αρμολογημα μέσα ,έξω- καινούργια παράθυρα ) όμως έχει εσωτερικές επεμβάσεις που πρέπει να γίνουν όπως αλλαγή πατώματος που είναι παλιό ξύλινο ( με δοκάρια και πέτσωμα) . Εάν δεν έπρεπε να αλλάξει το ύψος στο ισόγειο και στον πρώτο όροφο σε ένα μέρος του κτίσματος ( φαίνεται στο σχέδιο που παραθέτω ) θα κράταγα το πάτωμα όπως είναι ξύλινο δηλαδή , αλλάζοντας τα δοκάρια με νέα μεγαλύτερης διατομής και με νέο διπλό σταυρωτό πέτσωμα με μόνωση, όμως επειδή πρέπει να αλλάξουν τα ύψη ( -50cm) στα δύο μισά των δύο ορόφων ( ισόγειο και πρώτος) ωστε να ευθυγραμμιστούν τα πατώματα ανά όροφο αναζητώ την πιο ενδεδειγμένη από άποψη στατικότητας λύση, μιας και από όσο ξέρω το να ανοίξουν καινούργιες ωπές (δοκοθήκες) έστω και εάν είναι στο ένα μέρος του κτηρίου ώστε να κατέβω τους 50 πόντους που χρειάζεται δεν συνίσταται . Θέλω να αποφύγω την λύση πλάκας για να μην χάσω χώρο από τις κολόνες που θα χρειαστούν Έχοντας διαβάσει πολλές απόψεις στο φόρουμ και κατανοώντας ότι η άποψη που μετράει είναι του μηχανικού που θα αναλάβει το ακίνητο είναι η ενδεδειγμένη συγχωρέστε την παρέμβαση μου θεωρώντας ότι δεν είναι κακό να πάρω και κάποιες απόψεις από ανθρώπους που έχουν εμπειρία σε πέτρινα .
×
×
  • Create New...

Σημαντικό

Χρησιμοποιούμε cookies για να βελτιώνουμε το περιεχόμενο του website μας. Μπορείτε να τροποποιήσετε τις ρυθμίσεις των cookie, ή να δώσετε τη συγκατάθεσή σας για την χρήση τους.