Μετάβαση στο περιεχόμενο
Newsletter: Εγγραφείτε στην ημερήσια τεχνική ενημέρωση από το Michanikos.gr ×

pano537

Μη μηχανικός
  • Περιεχόμενα

    2
  • Εντάχθηκε

  • Τελευταία επίσκεψη

Φήμη στην κοινότητα

0 Ουδέτερη

Profile Information

  • Επάγγελμα
    Ιδιώτης-Μη μηχανικός
  • Ειδικότητα
    Ιδιώτης

Τελευταίοι επισκέπτες προφίλ

The recent visitors block is disabled and is not being shown to other users.

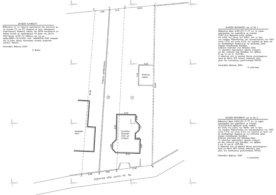
  1. Ευχαριστώ και τους 2 για την άμεση απάντηση. Αναρτώ απόκομμα του τοπογραφικού για να διευκολύνει την κατάσταση. Ουσιαστικά αυτό που θέλω είναι μια κάθετη σύσταση στο γήπεδο νούμερο 2 (Β στην προηγούμενη ανάρτηση) στην κάθετη ΕΘ. Και τα 3 είναι εκτός σχεδίου. Άρα και μετά την τακτοποίηση κάτι τέτοιο δεν υφίσταται, σωστά;
  2. Καλησπέρα, βρίσκομαι στη διαδικασία αγοράς ενός τακτοποιημένου αυθαίρετου και σε 2 συμβολαιογράφους που πήγα μου έριξαν άκυρο για την κάθετη σύσταση. Η κατάσταση έχει ως εξής: Υπάρχουν 3 αγροτεμάχια Α, Β και Γ δίπλα δίπλα. Το καθένα είναι 10 μέτρα πλάτος σε δρόμο και 60 μέτρα μήκος. Το Α ανήκει στον γείτονα, το Β είναι εξ αδιαιρέτου με τον γείτονα και το Γ ανήκει στον πωλητή. Και ο γείτονας και ο πωλητής έχουν χτίσει ο καθένας από ένα αυθαίρετο που έχουν τακτοποιήσει σύμφωνα με τον νόμο 4495/2017. Το πρόβλημα των συμβολαιογράφων είναι ότι και τα 2 κτίρια ακουμπάνε (έχουν μέρος χτισμένο) στο αγροτεμάχιο Β. Η ερώτησή μου είναι, γίνεται ή δε γίνεται κάθετη σύσταση και αν γίνεται μπορείτε να με απευθύνεται στο ανάλογο άρθρο του νόμου σας παρακαλώ; Ευχαριστώ εκ των προτέρων.
×
×
  • Create New...

Σημαντικό

Χρησιμοποιούμε cookies για να βελτιώνουμε το περιεχόμενο του website μας. Μπορείτε να τροποποιήσετε τις ρυθμίσεις των cookie, ή να δώσετε τη συγκατάθεσή σας για την χρήση τους.