ifaistos Δημοσιεύτηκε December 7, 2016 at 03:53 μμ Δημοσιεύτηκε December 7, 2016 at 03:53 μμ (edited) Καλησπέρα Έχω αναλάβει την ανακαίνιση ενός διαμερίσματος πρώτου ορόφου σε πολυκατοικία κατασκευής του 1990. Σε μια από τις λύσεις που επεξεργάζομαι , η οποία προτιμάται και από τον πελάτη, τοποθετείται η κουζίνα σε νέα θέση, συγκεκριμένα στον κλειστό ημιυπαίθριο χώρο του διαμερίσματος. Η απόσταση από την πλησιέστερη κατακόρυφη στήλη αποχέτευσης της πολυκατοικίας είναι 12 μέτρα. Λόγω της μεγάλης απόστασης αναγκαστικά θα τοποθετηθεί αντλία και η σωλήνα αποχέτευσης χωρίς κλίση μέσα στο γέμισμα του δαπέδου και από πάνω ως τελική επιφάνεια θα μπει πλακάκι. Αντιλαμβάνομαι ότι μια τέτοια επίλυση θα έχει αρκετά προβλήματα, αλλά επειδή αρέσει πολύ στον πελάτη η συγκεκριμένη λύση με τη μεταφορά της κουζίνας, αποφάσισα να ψάξω κατά πόσο γίνεται τεχνικά χωρίς μεγάλα ρίσκα. Εγώ σε πρώτη φάση θα ήθελα να σιγουρευτώ ότι η σωλήνα αποχέτευσης που θα βρίσκεται εντός του δαπέδου (12 μέτρα) μπορεί να δουλέψει και δε θα βουλώνει από στερεοποίηση σαπουνιών και λιπών, και κατά δεύτερο λόγο αν έχει κάποιος συνάδελφος εμπειρία από αντλίες αποχέτευσης, από άποψη αξιοπιστίας και τι περιορισμούς στην χρήση του νεροχύτη βάζουν. Θα εκτιμούσα ιδιαίτερα την άποψη σας πάνω στο θέμα Edited December 7, 2016 at 03:55 μμ by ifaistos
aithilenio Δημοσιεύτηκε December 8, 2016 at 03:59 μμ Δημοσιεύτηκε December 8, 2016 at 03:59 μμ 1ος Οροφος είναι δεν υπάρχει άλλη επιλογή πχ οροφή πιλοτής;
ifaistos Δημοσιεύτηκε December 8, 2016 at 05:34 μμ Συγγραφέας Δημοσιεύτηκε December 8, 2016 at 05:34 μμ 1ος Οροφος είναι δεν υπάρχει άλλη επιλογή πχ οροφή πιλοτήςΙσχυει απο την πιλοτή θα χρειαζόμουν συναίνεση της πλειοψηφιας των ιδιοκτητών της πολυκατοικίας, το θεωρώ απίθανο να την δώσουν...
dimitris GM Δημοσιεύτηκε December 8, 2016 at 05:39 μμ Δημοσιεύτηκε December 8, 2016 at 05:39 μμ αν δεν υπαρχει κανονισμος... για δες τε αν μπορειτε να εφαρμοσετε το αρθρο 3 του ν 3741/29 κανε και μια συγκλιση ΓΣ να εχεις "κατι" στα χερια σου.. δεν εχουν καποιον ιδιαιτερο λογο να αρνηθουν...
ifaistos Δημοσιεύτηκε December 8, 2016 at 06:13 μμ Συγγραφέας Δημοσιεύτηκε December 8, 2016 at 06:13 μμ αν δεν υπαρχει κανονισμος... για δες τε αν μπορειτε να εφαρμοσετε το αρθρο 3 του ν 3741/29 κανε και μια συγκλιση ΓΣ να εχεις "κατι" στα χερια σου.. δεν εχουν καποιον ιδιαιτερο λογο να αρνηθουν... υπάρχει κανονισμός πολυκατοικίας. Οπότε για εργασίες σε κοινόχρηστους χώρους χρειάζομαι τη συναίνεση της πλειοψηφίας. Μια πρώτη επαφή που έκανα με τον διαχειριστή ήταν αρνητικότατος και δυστυχώς αυτός με την αδερφή του κατέχουν το 50%... Για αυτό καταφεύγω στη λύση που προανέφερα με τη χρήση αντλίας εντός του διαμερίσματος. Καμιά συμβουλή για το τεχνικό κομμάτι θα με βοηθούσε ιδιαίτερα
aithilenio Δημοσιεύτηκε December 8, 2016 at 07:50 μμ Δημοσιεύτηκε December 8, 2016 at 07:50 μμ (edited) απο την πιλοτή θα χρειαζόμουν συναίνεση της πλειοψηφιας των ιδιοκτητών της πολυκατοικίας, το θεωρώ απίθανο να την δώσουν... Το ίδιο πρόβλημα αντιμετώπισα και εγώ κάποτε........ Τελικά και εγώ έτρεψα την αποχέτευση στην γέμιση του δαπέδου αλλά εκμεταλλευτηκα την τοιχοποιία της κουζίνας για να περιορίσω το μήκος και να αυξήσω την ρήση..... Εδω και 3 χρόνια δουλεύει απροβλημάτιστα..... Δεν μου αρέσει καθόλου η ιδέα της αντλίας..... Επίσης θα πρέπει να χησιμοποιήσεις αερισμό της αποχέτευσης (δες dimco) και μέσα στη γέμιση αν σε πάρει η φυσική ροής ο υδραυλικός πρέπει να δώσει την μέγιστη προσοχή να εκμεταλλευτή σε όλη την διαδρομή έστω και την ελάχιστη ρήση που θα του δωθεί..... Θα σε συμβούλευα ακόμα σε τεχνικό επίπεδο να μην χρησιμνοποιήσεις PVC στην γέμιση αλλά PP με λάστιχα.... Αν πας σε αντλία τότε PVC πισίνας και πολύ προσοχή στις κολλήσεις. Edited December 8, 2016 at 07:59 μμ by aithilenio
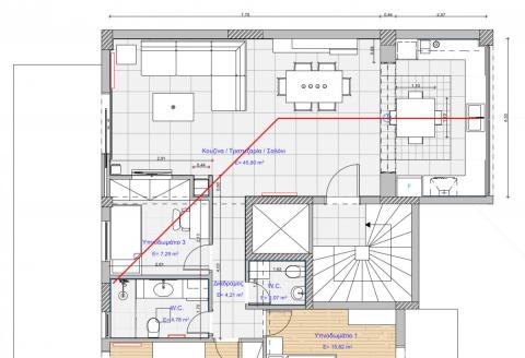
ifaistos Δημοσιεύτηκε December 8, 2016 at 09:05 μμ Συγγραφέας Δημοσιεύτηκε December 8, 2016 at 09:05 μμ (edited) Το ίδιο πρόβλημα αντιμετώπισα και εγώ κάποτε........ Τελικά και εγώ έτρεψα την αποχέτευση στην γέμιση του δαπέδου αλλά εκμεταλλευτηκα την τοιχοποιία της κουζίνας για να περιορίσω το μήκος και να αυξήσω την ρήση..... Εδω και 3 χρόνια δουλεύει απροβλημάτιστα..... Δεν μου αρέσει καθόλου η ιδέα της αντλίας..... Επίσης θα πρέπει να χησιμοποιήσεις αερισμό της αποχέτευσης (δες dimco) και μέσα στη γέμιση αν σε πάρει η φυσική ροής ο υδραυλικός πρέπει να δώσει την μέγιστη προσοχή να εκμεταλλευτή σε όλη την διαδρομή έστω και την ελάχιστη ρήση που θα του δωθεί..... Θα σε συμβούλευα ακόμα σε τεχνικό επίπεδο να μην χρησιμνοποιήσεις PVC στην γέμιση αλλά PP με λάστιχα.... Αν πας σε αντλία τότε PVC πισίνας και πολύ προσοχή στις κολλήσεις. Ευχαριστώ για τις παρατηρήσεις. Δεν μπορώ να εκμεταλλευτώ καθόλου τους τοίχους γιατί παρεμβάλλονται υποστυλώματα και μπαλκονόπορτες κατά μήκος της διαδρομής.. Εκτιμάς ότι θα μπορεί να δουλέψει χωρίς αντλία με 0,5% κλίση μέσα στο δάπεδο? Από το σχέδιο που έχω επισυνάψει θα δεις περίπου την διαδρομή της αποχέτευσης, από κουζίνα μέχρι μπάνιο Edited December 8, 2016 at 09:14 μμ by ifaistos
aithilenio Δημοσιεύτηκε December 8, 2016 at 09:34 μμ Δημοσιεύτηκε December 8, 2016 at 09:34 μμ Ζόρικα τα πράγματα Ηφαιστος....
ted78 Δημοσιεύτηκε December 8, 2016 at 09:41 μμ Δημοσιεύτηκε December 8, 2016 at 09:41 μμ Η προηγούμενη κουζίνα, που βρισκόταν; Δεν είχε δικιά της αποχέτευση; Ίσως να μπορείς να πας προς τα κει και όχι προς το wc.
ifaistos Δημοσιεύτηκε December 8, 2016 at 10:52 μμ Συγγραφέας Δημοσιεύτηκε December 8, 2016 at 10:52 μμ Η προηγούμενη κουζίνα, που βρισκόταν; Δεν είχε δικιά της αποχέτευση; Ίσως να μπορείς να πας προς τα κει και όχι προς το wc. Η προηγούμενη κουζίνα ήταν στη θέση του υπνοδωματίου 3 όπως φαίνεται στο σχέδιο. Η αποχέτευση της είναι μαζί με του wc δίπλα δίπλα
Recommended Posts
Δημιουργήστε ένα λογαριασμό ή συνδεθείτε προκειμένου να αφήσετε κάποιο σχόλιο
Πρέπει να είστε μέλος για να μπορέσετε να αφήσετε κάποιο σχόλιο
Δημιουργία λογαριασμού
Κάντε μια δωρεάν εγγραφή στην κοινότητά μας. Είναι εύκολο!
Εγγραφή νέου λογαριασμούΣύνδεση
Εάν έχετε ήδη λογαριασμό; Συνδεθείτε εδώ.
Συνδεθείτε τώρα