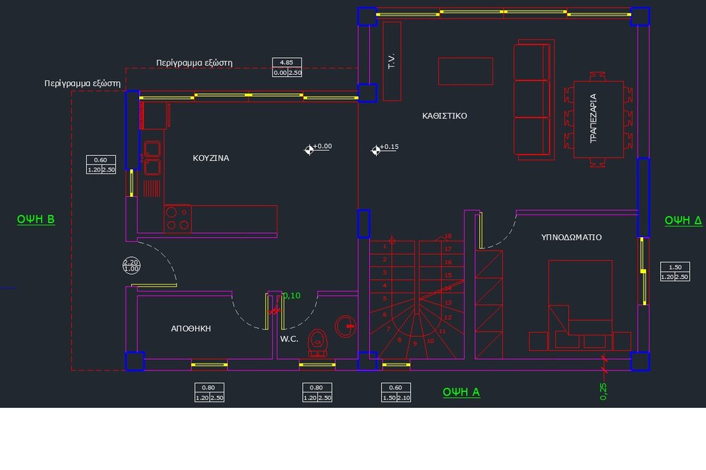
panmyr Δημοσιεύτηκε November 17, 2020 at 07:04 πμ Δημοσιεύτηκε November 17, 2020 at 07:04 πμ Συνάδελφοί, θέλω να κάνω ένα σκαλί μεταξύ της κουζίνας και το καθιστικού, όπως φαίνεται στην κάτοψη. Αυτό πως μπορεί να γίνει;; με δοκό Ζ (όπου έχοντας δύο πλάκες στην οροφή του υπογείου, εκατέρωθεν πάχους 0,20μ, βγαίνει μια δοκός 0,25x0,40;) ή μετά χρησιμοποιώντας ελαφρομπετόν στο δάπεδο του καθιστικού ώστε να σηκωθεί 0,15μ, οπότε οι πλάκες στην οροφή του υπογείου είναι συνεχόμενες;
Jakeplem Δημοσιεύτηκε November 17, 2020 at 08:58 πμ Δημοσιεύτηκε November 17, 2020 at 08:58 πμ (edited) @panmyr---Γέμισμα πάχους 15 εκατ. γίνεται αλλά είναι αρκετά μεγάλο. Πρέπει να εξετάσεις τις ιδιότητες του υλικού που θα χρησιμοποιηθεί. Αν γίνει ανισοσταθμία μεταξύ των πλακών σκυροδέματος, τότε το ύψος της δοκού να γίνει μεγαλύτερο - 70 εκατ. συνολικά. Δεν γνωρίζω το ύψος του χώρου κάτω από την πλάκα του σχεδίου αλλά η στατική λειτουργία των δοκών βασίζεται στο ύψος τους. Στο στατικό μοντέλο θα έχεις ουσιαστικά μία πλάκα - διάφραγμα λόγω μικρής ανισουψίας και η δοκός θα είναι προσεγγιστικά διατομής Τ. Edited November 17, 2020 at 09:02 πμ by Jakeplem
panmyr Δημοσιεύτηκε November 17, 2020 at 09:16 πμ Συγγραφέας Δημοσιεύτηκε November 17, 2020 at 09:16 πμ Σε ευχαριστώ συνάδελφε, από κάτω είναι υπόγειο ύψους 2,80 εσωτερικά. Ουσιαστικά να γίνει αυτή η διαμόρφωση;
Jakeplem Δημοσιεύτηκε November 17, 2020 at 09:29 πμ Δημοσιεύτηκε November 17, 2020 at 09:29 πμ panmyr---Ναι, αυτό εννοώ.
panmyr Δημοσιεύτηκε November 17, 2020 at 09:41 πμ Συγγραφέας Δημοσιεύτηκε November 17, 2020 at 09:41 πμ Σε ευχαριστώ πολύ!
Recommended Posts
Δημιουργήστε ένα λογαριασμό ή συνδεθείτε προκειμένου να αφήσετε κάποιο σχόλιο
Πρέπει να είστε μέλος για να μπορέσετε να αφήσετε κάποιο σχόλιο
Δημιουργία λογαριασμού
Κάντε μια δωρεάν εγγραφή στην κοινότητά μας. Είναι εύκολο!
Εγγραφή νέου λογαριασμούΣύνδεση
Εάν έχετε ήδη λογαριασμό; Συνδεθείτε εδώ.
Συνδεθείτε τώρα