antonisXJ
Members-
Περιεχόμενα
43 -
Εντάχθηκε
-
Τελευταία επίσκεψη
Profile Information
-
Φύλο
Άντρας
-
Επάγγελμα
Μηχανικός
-
Ειδικότητα
Πολιτικός Μηχανικός Τ.Ε.Ι.
Τελευταίοι επισκέπτες προφίλ
The recent visitors block is disabled and is not being shown to other users.
antonisXJ's Achievements
-
Τα νέα κόλπα του ΝΟΚ : Πατάρια και Σοφίτες.
antonisXJ replied to JTB's θέμα in ΝΟΚ (Νέος Οικοδομικός Κανονισμός)
ΑΝΟΗΣΙΕΣ!!!!!!!! Τι είναι όλα αυτά που συζητάνε??? Απο πού προκύπτει όλο αυτό? Τι είναι αυτά? Anyway, πριν απο λίγο καιρό έχω άδεια μικρής κατοικίας με πατάρι η οποία ελέγχθηκε λόγω προέγκρισης απο υπαλλήλους της ΥΔΟΜ (για να μην θεωρήσει κάποιος οτι μπορεί να ήταν κατηγορίας 3 και "αυθαιρέτησα" με νομικές παρερμηνείες). Ανεβάζω αρχείο για να δείς οτι έχουμε κάτι παρόμοιο με το δικό σου σχέδιο. (το μέγεθος της κατοικίας σου μου το θύμησε). Επίσης το 2017 έβγαλα άδεια ξενοδοχείου με πατάρια και σοφίτες πάνω απο τα λουτρά των δωματίων. Επίσης , τώρα έχω σε εξέλιξη κατοικίες με πατάρια πάνω απο υπνοδωμάτια Φαντάζομαι οτι αντίστοιχα με εμένα θα υπάρχουν χιλιάδες άλλοι συνάδελφοι με σχεδιασμό εσωτερικού εξώστη πάνω απο δωμάτια. Πως προκύπτει οτι το πατάρι πρέπει να είναι μόνο πάνω απο "ενιαίο" χώρο? Δεν το καταλαβαίνω Παρακάτω, σου παραθέτω το σχέδιό μου. Αν θες, στείλε μου το mail σου να σου στείλω όλη την άδεια ηλεκτρονικά. 24_Katopseis_Katoikias.pdf -
Τα νέα κόλπα του ΝΟΚ : Πατάρια και Σοφίτες.
antonisXJ replied to JTB's θέμα in ΝΟΚ (Νέος Οικοδομικός Κανονισμός)
Το πατάρι δεν έχει δικούς του τοίχους. Το πατάρι, όπως και η σοφίτα εντάσσεται στην τοιχοποιια του υποκειμένου ορόφου. -
Τα νέα κόλπα του ΝΟΚ : Πατάρια και Σοφίτες.
antonisXJ replied to JTB's θέμα in ΝΟΚ (Νέος Οικοδομικός Κανονισμός)
Η άποψή μου είναι οτι το 4% είναι πολύ λίγο για να θεωρηθεί στέγη. Θα μπορούσαμε να πούμε οτι το 4% είναι μια μεγάλη κλίση οροφής για απορροή ομβρίων. Παρ'ολα αυτά, ανατρέχουμε στον ορισμό της στέγης στον ΝΟΚ και δεν λέει για κλίσεις. συγκεκριμένα λέει: "Στέγη είναι η κατασκευή κάλυψης του κτιρίου, η οποία περιλαμβάνει τη φέρουσα κατασκευή και μπορεί να αποτελείται από επιφάνειες διαφόρων μορφών, κλίσεων και υλικών. Επιτρέπονται ανοίγματα στη στέγη, που ακολουθούν τη στερεομετρία της, όσο και ανοίγματα στους τυχόν τοίχους που συμμετέχουν σε αυτήν, για τον φωτισμό και αερισμό του χώρου." Όπως το βλέπω εγώ, θεωρώ οτι τραβάμε τον ορισμό της στέγης απο τα μαλλιά. Σήμερα 4%, αύριο 3%, μεθαύριο 2% ... Παρ'όλα αυτά, αν σε ένα ποδήλατο βάλουμε ένα ολοστρόγγυλο τροχό, θα τον λέμε "τροχό" Αν βάλουμε ένα πολυγωνικό τροχό, θα τον λέμε "τροχό" διότι θα συνεχίσει να κυλάει. Αν βάλουμε έναν τροχό με ακόμα λιγότερες γωνίες, θα συνεχίσει να κινείται (με δυσκολία) ,αλλά πάλι θα τον λέμε "τροχό" Αν βάλουμε στο ποδήλατο δύο τετράγωνους τροχούς, θα συνεχίσουμε να τους λέμε "τροχούς" επειδή βρίσκονται πάνω στο ποδήλατο? ή μήπως θα παραδεχτούμε οτι πλέον δεν μιλάμε για τροχούς? Υ.Γ. επιστημονικά αποδεδειγμένο οτι ακόμα και τα τετράγωνα , υπο συνθήκες θα μπορούσαν να θεωρηθούν "τροχοί" -
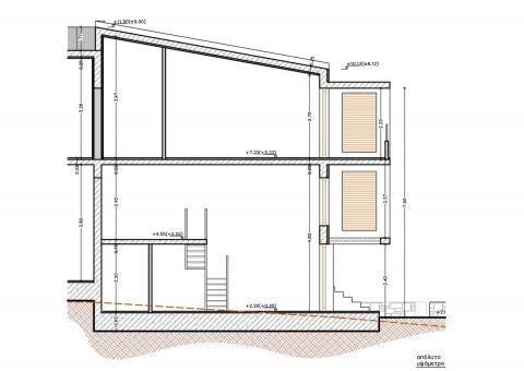
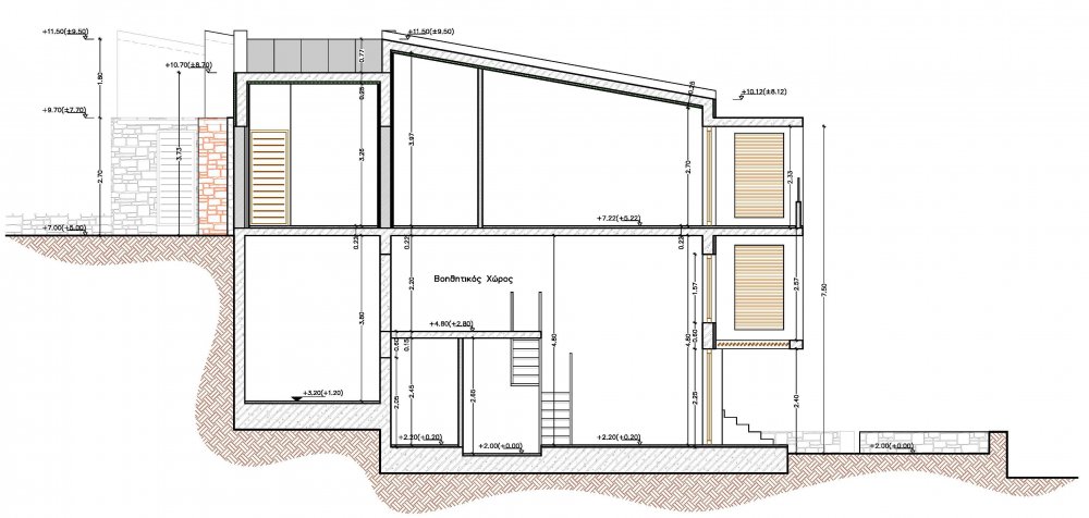
"Διαβάζοντας τελικά τις τεχνικές οδηγίες του ΝΟΚ, αναφέρει ότι ο εσωτερικό εξώστης δεν μετράει έως το 10% της επιτρεπόμενης δόμησης, έστω ότι η συνολική επιτρεπόμενη δόμηση ειναι τα 200 τ.μ. για το συγκεκριμένο οικόπεδο/αγροτεμάχιο, τότε επιτρέπονται συνολικά 20 τ.μ εσωτερικοί εξώστες στο κτίριο/κτίρια με την επισημανση ότι και η εσωτερική σκάλα συμπεριλαμβάνεται στα 20 τ.μ.." Προσοχή γιατί υπάρχει και η άποψη οτι το 10% υπολογίζεται επί της πραγματοποιούμενης δόμησης και όχι της επιτρεπόμενης. Αν δηλαδή έχεις επιτρεπόμενη 200 και πραγματοποιείς 100, τότε το 10% το ελέγχεις επί των 100. "3. Θα συμφωνούσα με την ύπαρξη ημιυπαίθριου χώρου στον υποκείμενο όροφο που "οδηγεί" σε βατό δώμα στο επίπεδο του παταριού" Μην εμφανίσεις κούφωμα απο το πατάρι να οδηγεί στο δώμα του ημιυπαιθρίου. Δεν είναι αποδεκτό. Μην εμφανίσεις οτι το δώμα του Ημιυπαίθριου χώρου είναι προσβάσιμο μόνο απο το πατάρι. Δεν είναι αποδεκτό. Μην εμφανίσεις διαμόρφωση του δώματος του ημιυπαιθρίου με κάγκελα, πλακάκια κλπ. ως προσβάσιμος χώρος απο το πατάρα. δεν είναι αποδεκτό. Μην εμφανίσεις οτι έχεις οποιαδήποτε χρήση στο πατάρι γιατί θα μετρήσει στη δόμηση. Ολα τα παραπάνω τα έχω πολύ πρόσφατα. έκανα ξενοδοχείο με πολλά πατάρια και πολλές σοφίτες. Το εξάντλησα το θέμα. Επίσης και ένα τελευταίο. ο χώρος κάτω απο το πατάρι, αν δεν έχει ύψος κύριου χώρου (2,65μ.) τότε δεν συμπεριλαμβάνεται στον υπολογισμό για την εύρεση του 70% του υποκείμενου ορόφου Οι συνεχόμενες δημοσιεύσεις απαγορεύονται. Τα μηνύματά σου συγχωνεύτηκαν. Αν προκύπτει η ανάγκη συμπλήρωσης της αρχικής δημοσίευσης, χρησιμοποίησε την επιλογή «επεξεργασία». Διάβασε προσεκτικά τους κανόνες συμμετοχής στο φόρουμ. Pavlos33 ΤΟΜΗ - ΠΑΤΑΡΙ ΤΟΜΗ - ΣΟΦΙΤΑ
-
Τα νέα κόλπα του ΝΟΚ : Πατάρια και Σοφίτες.
antonisXJ replied to JTB's θέμα in ΝΟΚ (Νέος Οικοδομικός Κανονισμός)
Δεν υπάρχει παρ.6,2,ιθ. υπάρχει στο αρθρο 11 η παράγραφος 6,ιθ, η οποία ισχύει για όλα τα νέα κτίρια. το νούμερο 2 που αναφέρεσαι μάλλον σε μπερδεύει και αφορά την παράγραφο 6,ιβ,2 -
Τα νέα κόλπα του ΝΟΚ : Πατάρια και Σοφίτες.
antonisXJ replied to JTB's θέμα in ΝΟΚ (Νέος Οικοδομικός Κανονισμός)
μεταφέρω όπως το διαβάζω στο βιβλίο μου "Με βάση τα οριζόμενα για τα πατάρια, εκτός απο τους κλειστούς βοηθητικούς χώρους τους, που προσμετρούν στο συντελεστή, επιτρέπεται να προσμετρά στο συντελεστή δόμησης και επιπλέον τμήματους, προκειμένου να καλυφθεί το επιτρεπόμενο 70% της υποκείμενης κάτοψης, με τις ίδιες προϋποθέσεις κατά τα λοιπά" ...σωστό? ...λάθος? δεν ξέρω. το διαβάζουμε και το τηρούμε... ...ίδωμεν... -
Τα νέα κόλπα του ΝΟΚ : Πατάρια και Σοφίτες.
antonisXJ replied to JTB's θέμα in ΝΟΚ (Νέος Οικοδομικός Κανονισμός)
το έχω ελέγξει. δεν έχω περιορισμό. έχω σχέδιο πόλης χωρίς περιορισμό ορόφων. μόνο περιορισμό ύψους. την υπέρβαση του 70% την χρεώνουμε μόνο στη δόμηση. ευχαριστώ πάντως -
Τα νέα κόλπα του ΝΟΚ : Πατάρια και Σοφίτες.
antonisXJ replied to JTB's θέμα in ΝΟΚ (Νέος Οικοδομικός Κανονισμός)
για να βγεί ένας "σωστός" χώρος στο πατάρι, θα πρέπει να βάλω μερικά τετραγωνικά στη δόμηση λόγο υπέρβασης του 70%. Το θέμα είναι οτι θα μπούν τόσα τετραγωνικά στη δόμηση που μου κοστίζουν 45τμ. δηλαδή περίπου 2 δωμάτια. και ο επενδυτής θέλει να βλέπει δωμάτια... φέρτε μου δωμάτια... φέρτε μου κλίνες... -
Τα νέα κόλπα του ΝΟΚ : Πατάρια και Σοφίτες.
antonisXJ replied to JTB's θέμα in ΝΟΚ (Νέος Οικοδομικός Κανονισμός)
-
Τα νέα κόλπα του ΝΟΚ : Πατάρια και Σοφίτες.
antonisXJ replied to JTB's θέμα in ΝΟΚ (Νέος Οικοδομικός Κανονισμός)
δεν είναι κουζίνα. είναι τύπου "βεστιάριο" το λύσαμε αυτό. Δεν χρειάζομαι 2,65. με το 2,20 είναι οκ. -
Τα νέα κόλπα του ΝΟΚ : Πατάρια και Σοφίτες.
antonisXJ replied to JTB's θέμα in ΝΟΚ (Νέος Οικοδομικός Κανονισμός)
στα υπόλοιπα κτίρια του συγκροτήματος έχω σοφίτες μέσα στις στέγες και δεν έχω πρόβλημα. στο συγκεκριμένο κτίριο, επέλεξα το πατάρι στο ισόγειο γιατί λόγο υψομετρικής διαφοράς, ο Α' όροφος απο την πλευρά της εισόδου του είναι ισόγειο. -
Τα νέα κόλπα του ΝΟΚ : Πατάρια και Σοφίτες.
antonisXJ replied to JTB's θέμα in ΝΟΚ (Νέος Οικοδομικός Κανονισμός)
το δοκίμασα. απορρίφθηκε με την ταχύτητα του φωτός απο τον επενδυτή. Δυστυχώς κάθε γραμμή που αλλάζω πρέπει να εγκρίνεται απο τον επενδυτή του έργου. Τους άρεσε η αρχική μελέτη και τώρα είναι πολύ δύσκολο να τους πείσω για τυχόν αλλαγές. Ειδικά αλλαγές που προσθέτουν σκαλοπάτια εντός του δωματίου. ...και... δεν είναι κάτι που θα το δείξω στο σχέδιο αλλά δεν θα το εφαρμόσω... (καταλαβαίνεις τι εννοώ) -
Τα νέα κόλπα του ΝΟΚ : Πατάρια και Σοφίτες.
antonisXJ replied to JTB's θέμα in ΝΟΚ (Νέος Οικοδομικός Κανονισμός)
αν το λουτρό γίνει 2,65 στο ύψος τότε το δέχεται. αλλά δεν με παίρνει να έχω τέτοιο ύψος. δηλαδή για να καταλάβω, που στηρίζεται το οτι πρέπει οι χώροι να έχουν ύψος 2,65 για να μετράνε στην επιφάνεια υπολογισμού του 70% ??
