m_chalm
Core Members-
Περιεχόμενα
266 -
Εντάχθηκε
-
Τελευταία επίσκεψη
Τύπος περιεχομένου
Profiles
Φόρουμ
Downloads
Gallery
Ειδήσεις
Media Demo
Αγγελίες
Store
Everything posted by m_chalm
-
Προσωπικά το αντιλαμβάνομαι ως εξής: Χώρος που έχει μετρήσει στην δόμηση έχει ποσοστό επί αυτής. Χώρος που δεν μέτρησε πώς θα του δώσεις ποσοστό? Για να το κάνεις αυτό τότε και να είσαι πιο κοντά στην προσέγγιση θα πρέπει να συνυπολογίσεις και όλους τους χώρους που δεν είχαν μετρήσει στη δόμηση του κτιρίου σου για να έχεις ένα άλλο θεωρητικό σύνολο ''δομημένων χώρων''.
-
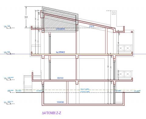
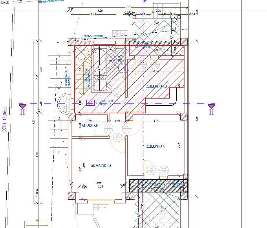
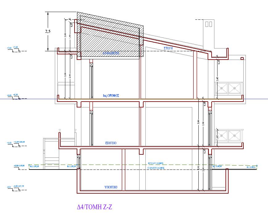
Στην κάτοψη με διαγράμμιση φαίνεται ο χώρος που καταλαμβάνει το νέο δημιουργηθέν επίπεδο (πρόσβαση από το δωμάτιο). Στην τομή βλέπετε με διακεκομμένη την γραμμή των 7,50μ. Το δάπεδο της νέας επιφανείας είναι χαμηλότερα από τα 7,50μ και υπερυψώθηκε τοπικά η κεκλιμένη στέγη για να αποκτήσει ύψος ο νέος χώρος.
