CostasV Δημοσιεύτηκε April 19, 2016 at 04:39 μμ Δημοσιεύτηκε April 19, 2016 at 04:39 μμ Έκανα ένα πρόχειρο σχεδιάκι για το αρχείο μου, και κατόπιν διαπίστωσα ένα χοντρό σχεδιαστικό λάθος. Βέβαια, επειδή είναι πρόχειρο σχέδιο υπάρχουν (εκτός από το κατ'εμέ χοντρό λάθος, για το οποίο έχω όμως καλή δικαιολογία ) και άλλα μικρότερα λάθη. Μετά σκέφτηκα να πάρω τις γνώμες σας, και ορίστε. Ποιο θεωρείτε ότι είναι το πιο χονδρικό λάθος; 1
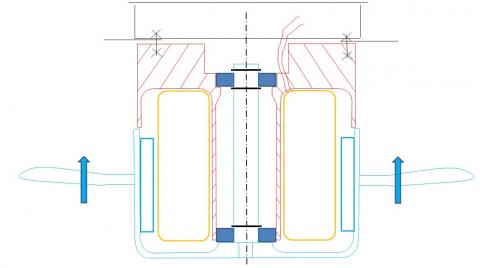
AlexisPap Δημοσιεύτηκε April 19, 2016 at 05:04 μμ Δημοσιεύτηκε April 19, 2016 at 05:04 μμ (edited) Το λάθος πρέπει να το βρούμε χωρίς να ξέρουμε τις μηχανολογικές προθέσεις του σχεδιαστή και τον ακριβή σκοπό της κατασκευής; Ας προσπαθήσουμε όμως να καταλάβουμε τι βλέπουμε... Βλέπω τύλιγμα τοροειδές, γύρω από το κεντρικό στέλεχος της κόκκινης βάσης... Για ηλεκτρομαγνήτης μου κάνει. Αλλά, γιατί το γαλάζιο κάλυμμα έχει αυτά τα μπλέ ορθογώνια στο εσωτερικό; Και πού είναι ο οπλισμός του ηλεκτρομαγνήτη; Άρα μάλλον είναι μοτέρ χωρίς καρβουνάκια, οι γραμμές με ελεύθερο χέρι είναι πτερύγια, και τα βέλη η ροή του αέρα... Ανεμιστηράκι DC τύπου Η/Υ. Λάθη: Λείπει ο οπλισμός του στάτη (δικαιολογία: η τομή έγινε στην εγκοπή του στάτη. ένσταση: πάλι θα έπρεπε να φαίνεται ο οπλισμός γύρω από το κεντρικό στέλεχος) Τα τυλίγματα δεν είναι συμμετρικά ως προς τους μαγνήτες Λείπει η πλακέτα, που στα μοτέρ αυτά βρίσκεται μέσα στο κάλυμμα Τα καλώδια τροφοδοσίας δεν βγαίνουν από την τρύπα του ρουλεμάν, αλλά πιο έκκεντρα Ο ομφαλός της βάσης έχει πατούρα και για το πρόσθιο ρουλεμάν Το οπίσθιο ρουλεμάν δεν έχει ασφάλεια από την εσωτερική μεριά για προφανείς λόγους Η βάση συνήθως έρχεται μαζί με το στεφάνι, σε ένα κομμάτι. Άρα δεν έπρεπε να φαίνονται βίδες στήριξης Τι ποσοστό πιάνω; Πέτυχα το "χοντρό λάθος"; Edited April 19, 2016 at 05:06 μμ by AlexisPap 1
Didonis Δημοσιεύτηκε April 19, 2016 at 06:22 μμ Δημοσιεύτηκε April 19, 2016 at 06:22 μμ (edited) έχει κι άλλα ,,,,, Edited April 19, 2016 at 06:23 μμ by Didonis 4
CostasV Δημοσιεύτηκε April 19, 2016 at 09:26 μμ Συγγραφέας Δημοσιεύτηκε April 19, 2016 at 09:26 μμ Αλέξη, Το λάθος πρέπει να το βρούμε χωρίς να ξέρουμε τις μηχανολογικές προθέσεις του σχεδιαστή και τον ακριβή σκοπό της κατασκευής; Ναι. Ας προσπαθήσουμε όμως να καταλάβουμε τι βλέπουμε...Βλέπω τύλιγμα τοροειδές, γύρω από το κεντρικό στέλεχος της κόκκινης βάσης... Για ηλεκτρομαγνήτης μου κάνει.Αλλά, γιατί το γαλάζιο κάλυμμα έχει αυτά τα μπλέ ορθογώνια στο εσωτερικό;Και πού είναι ο οπλισμός του ηλεκτρομαγνήτη;Άρα μάλλον είναι μοτέρ χωρίς καρβουνάκια, οι γραμμές με ελεύθερο χέρι είναι πτερύγια, και τα βέλη η ροή του αέρα...Σωστά Ανεμιστηράκι DC τύπου Η/Υ. 1. Λείπει ο οπλισμός του στάτη (δικαιολογία: η τομή έγινε στην εγκοπή του στάτη. ένσταση: πάλι θα έπρεπε να φαίνεται ο οπλισμός γύρω από το κεντρικό στέλεχος) Σωστά, αλλά δεν είναι αυτό το λάθος2. Τα τυλίγματα δεν είναι συμμετρικά ως προς τους μαγνήτες 3. Λείπει η πλακέτα, που στα μοτέρ αυτά βρίσκεται μέσα στο κάλυμμα Σωστά, αλλά δεν είναι αυτό το λάθος4. Τα καλώδια τροφοδοσίας δεν βγαίνουν από την τρύπα του ρουλεμάν, αλλά πιο έκκεντρα Σωστά , αλλά δεν είναι αυτό το λάθος5. Ο ομφαλός της βάσης έχει πατούρα και για το πρόσθιο ρουλεμάν Κατά την ακτινική κατεύθυνση, το εσωτερικό δακτυλίδι του κάτω ρουλεμάν φωλιάζει στον γαλάζιο άξονα και το εξωτερικό δακτυλίδι του κάτω ρουλεμάν φωλιάζει στο εσωτερικό του κόκκινου κούφιου άξονα. Γιατί να έχει πατούρα ο ομφαλός της βάσης; 6. Το οπίσθιο ρουλεμάν δεν έχει ασφάλεια από την εσωτερική μεριά για προφανείς λόγους Σωστό, πολύ χοντρό λάθος και αυτό (πολύ σοβαρότερο από το "σχεδιαστικό" λάθος που ανέφερα στο αρχικό μήνυμα), αλλά δεν είναι αυτό που με χτύπησε στο μάτι. 7. Η βάση συνήθως έρχεται μαζί με το στεφάνι, σε ένα κομμάτι. Άρα δεν έπρεπε να φαίνονται βίδες στήριξης. Όχι, υπάρχουν βίδες στήριξης. Didonis Ναι, αυτά που δείχνεις είναι σχεδιαστικά λαθάκια, αλλά δεν είναι το χοντρό σχεδιαστικό λάθος.
Didonis Δημοσιεύτηκε April 19, 2016 at 10:10 μμ Δημοσιεύτηκε April 19, 2016 at 10:10 μμ (edited) .... αλλά δεν είναι το χοντρό ... Για τα χοντρά αρμόδιος είναι ο Αλεξ… εγώ είμαι για τα αδύνατα…. Αλλά με αυτά τα μικρά λαθάκια άμα πας να το βάλεις σε φρέζα να φτιάξεις καλούπι, στην πρώτη στροφή θα σπάσουν όλα ... Edited April 19, 2016 at 10:11 μμ by Didonis
AlexisPap Δημοσιεύτηκε April 20, 2016 at 06:17 πμ Δημοσιεύτηκε April 20, 2016 at 06:17 πμ Ε, τώρα το είδα. Και δεν θα το πρόσεχα με τίποτα, αν δεν επέμενες ότι πρέπει να το βρούμε χωρίς να ξέρουμε τί δείχνει... Είναι η διαγράμμιση, που είναι συμμετρική ως προς τον άξονα. Υ.Γ: 5-> αν δεν έχει πατούρα, όλος ο ρότορας μπορεί να πατιέται προς τα πίσω, μέχρι να έρθει σε επαφή με το τύλιγμα ή την βάση του μοτέρ.
CostasV Δημοσιεύτηκε April 20, 2016 at 05:10 μμ Συγγραφέας Δημοσιεύτηκε April 20, 2016 at 05:10 μμ Ναι, η διαγράμμιση ήταν το "σχεδιαστικό" λάθος. 5. Έχεις δίκιο. Δεν την παρατήρησα την πατούρα, αλλά πρέπει να έχει. Λίγα λόγια για το μοτεράκι. Είναι για εξωτερικό αξονικό ανεμιστήρα Φ710, 24000m3/h. Ισχύς μοτέρ 0,93kW, 860 rpm, μονοφασικό με πυκνωτή εκκίνησης 220μF. Ο τύπος του μοτέρ, αν το κατάλαβα καλά, είναι βραχυκυκλωμένου δρομέα, μόνο που ο δρομέας είναι το μπλε τμήμα. Δηλαδή το κόκκινο μέρος που έχει το τύλιγμα είναι σταθερό στο κέντρο του κινητήρα, και το μπλε μέρος (τα μπλε ορθογώνια είναι οι λάμες, που κανονικά θα είχε ο δρομέας) περιστρέφεται μαζί με το κεντρικό αξονάκι. Δηλαδή το μέσα-έξω.
AlexisPap Δημοσιεύτηκε April 20, 2016 at 05:15 μμ Δημοσιεύτηκε April 20, 2016 at 05:15 μμ Άρα δεν είναι "μοτεράκι"... είναι σχεδόν "τέρας"!Τώρα περιμένουμε την "καλή δικαιολογία"!
CostasV Δημοσιεύτηκε April 20, 2016 at 05:32 μμ Συγγραφέας Δημοσιεύτηκε April 20, 2016 at 05:32 μμ ... πού να τραβάς διαγραμμίσεις με το χέρι στο excel γραμμή-γραμμή . Με ένα copy-paste και καθρέπτη είσαι έτοιμος.
AlexisPap Δημοσιεύτηκε April 20, 2016 at 05:37 μμ Δημοσιεύτηκε April 20, 2016 at 05:37 μμ excel ? !!!
Recommended Posts
Δημιουργήστε ένα λογαριασμό ή συνδεθείτε προκειμένου να αφήσετε κάποιο σχόλιο
Πρέπει να είστε μέλος για να μπορέσετε να αφήσετε κάποιο σχόλιο
Δημιουργία λογαριασμού
Κάντε μια δωρεάν εγγραφή στην κοινότητά μας. Είναι εύκολο!
Εγγραφή νέου λογαριασμούΣύνδεση
Εάν έχετε ήδη λογαριασμό; Συνδεθείτε εδώ.
Συνδεθείτε τώρα