Charlie Δημοσιεύτηκε February 9, 2008 at 10:28 μμ Δημοσιεύτηκε February 9, 2008 at 10:28 μμ Εγω σε τετοιες περιπτωσεις κανω το εξης: Αφου το επιπλεον βαθος που απαιτειται απο τη σταθμη της πλακας του δαπεδου του υπογειου ειναι περιπου 1μ, επιλεγω πεδιλοδοκους 1.40μ σε υψος. Το πελμα εχει πάχος έστω 40 εκ., ετσι το υπολοιπο του κορμου ειναι 1.00μ. Αν δε, η πλακα δαπεδου πεσει πανω απο τις πεδιλοδοκους και εχει ενα παχος π.χ. 15 εκ., τοτε 1+0,15 = 1,15μ φρεατιο κατω απο τη σταθμη μου. Συμπερασμα: Ισοσταθμη θεμελιωση αλλα και το απαραιτητο φρεατιο. Φυσικα πρεπει τα τοιχεια του lift να παταν στον κορμο της πεδιλοδοκου, και τα τυχον δοντια τους να ειναι απο την "εξωτερικη πλευρα". Ελπιζω να εγιαν κατανοητος, αλλιως θα ανεβασω τομη.
Kat_G Δημοσιεύτηκε February 11, 2008 at 07:18 πμ Συγγραφέας Δημοσιεύτηκε February 11, 2008 at 07:18 πμ Καλημέρα και ευχαριστώ πολυ όλους σας για τη βοηθεια! Νικ, δεν μπορω να ανοιξω το doc....Κατι λειπει απο το word μου...Και δοκιμασα σε 2 υπολογιστες... Μηπως το εχεις σε acrobat? Ευχαριστω!
Χ Επισκέπτης 1 Δημοσιεύτηκε February 11, 2008 at 07:33 πμ Δημοσιεύτηκε February 11, 2008 at 07:33 πμ Νομίζω ότι ο Charlie τα είπε πολύ ωραία με δυο παρατηρήσεις: 1) αν η πλάκα του Gross Beton πάχους 15cm πατάει πάνω στις πεδιλοδοκούς τότε το ύψος των πεδιλοδοκών περιορίζεται σε 1,25μ. 2) Αν δεν έχεις πολυώροφο κτίριο (πάνω από 7 ορόφους) και το 1,25μ ύψος πεδιλοδοκών είναι πολύ, τότε μπορείς να κάνεις δύο πράγματα: α) τρύπα στην πλάκα κοιτόστρωσης κάτω από τον ανελκυστήρα, β) οι πεδιλοδοκοί των τοιχωμάτων του κλιμακοστασίου να είναι στο ύψος των υπόλοιπων πεδιλοδοκών του κτιρίου (πχ 0,80μ) και το υπόλοιπο τους ύψους τους να γίνεται προς τα κάτω, να έχουμε δηλαδή μια μικρή ανιστοσταθμία στη θεμελίωση.
Kat_G Δημοσιεύτηκε February 11, 2008 at 01:27 μμ Συγγραφέας Δημοσιεύτηκε February 11, 2008 at 01:27 μμ Euxaristw nik! To elava twra..
iliekater Δημοσιεύτηκε February 12, 2008 at 06:16 πμ Δημοσιεύτηκε February 12, 2008 at 06:16 πμ Το papies.tif από πού κατεβάζεται ;
Kat_G Δημοσιεύτηκε February 12, 2008 at 07:25 πμ Συγγραφέας Δημοσιεύτηκε February 12, 2008 at 07:25 πμ Καλημερα! Εγω το εκανα copy paste στην επιφανεια εργασιας του υπολογιστη μου και το ανοιξε σαν φωτογραφια
Χ Επισκέπτης 1 Δημοσιεύτηκε February 12, 2008 at 08:51 πμ Δημοσιεύτηκε February 12, 2008 at 08:51 πμ Δεν νομίζω ότι είναι διαθέσιμο πλέον.
erling Δημοσιεύτηκε February 12, 2008 at 11:14 πμ Δημοσιεύτηκε February 12, 2008 at 11:14 πμ Εγώ προσπαθώ να κάνω τόσο ύψος τα Π/Δ και έκκεντρα τα πέδιλα, ώστε να μην χρειαστεί εκσκαφή. Αλλά θέλουν 1,25 κενό κάτω από το δάπεδο του υπογείου. Αρα με Π/Δ κάτω του 1,10 θα έχω πρόβλημα αφού (ευτυχώς) μέχρι τώρα ασανσέρ κατέβαινε στο υπόγειο σε κτίρια που είχα τουλάχιστον το 1.10 υ.γ. Οσον αφορά το αρχείο, αν το σύρεις με το Mouse στην επιφάνεια εργασίας, δημιουργεί ένα url αρχείο, το οποίο όταν το ανοίξεις σου δείχνει το tiff αρχείο.
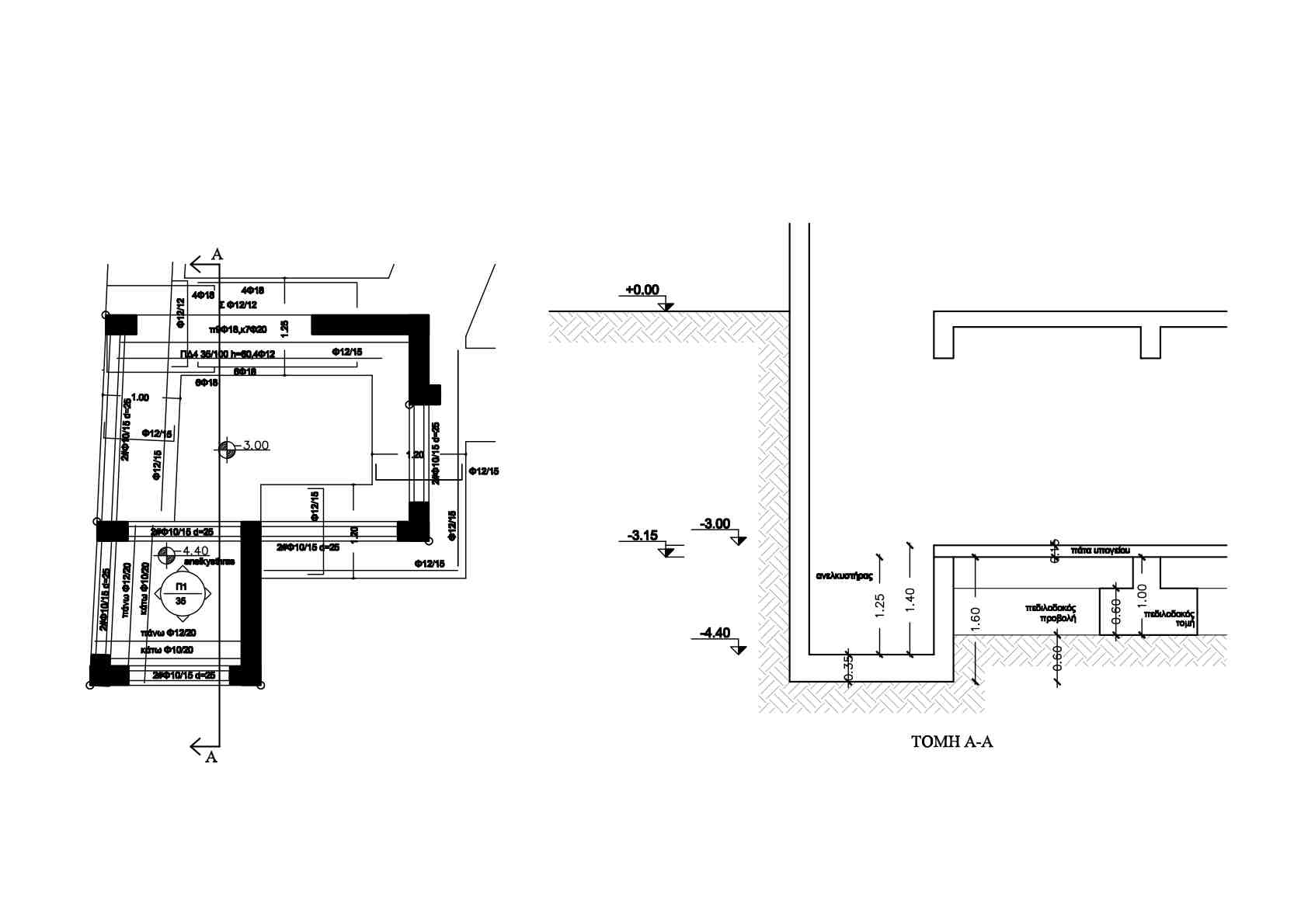
nk104 Δημοσιεύτηκε June 29, 2010 at 10:42 πμ Δημοσιεύτηκε June 29, 2010 at 10:42 πμ καλημέρα συνάδελφοι, θα ήθελα να ρωτήσω κάτι πάνω στο συγκεκριμένο θέμα. Έχω να κάνω τα στατικά για μία 4όροφη πολυκατοικία με υπόγειο και pilotis που ο ανελκυστήρας είναι σε έκκεντρη θέση. 1) Βάζωντας τοιχώματα στις 3 πλευρές του ανελκυστήρα το κέντρο ελαστικής στροφής φεύγει μακριά απο το Κ.Β. και επομένως κατέληξα να έχω τοίχωμα μόνο στην μία πλευρά. Θα πρέπει να προσθέσω extra φορτία σε κάποιο μέλος στην συγκεκριμένη περίπτωση? 2) Όπως αναφέρεται και εδώ απαιτείται η θεμελίωση του ανελκυστήρα να είναι ανισόπεδη για να έχει χώρο κάτω για τον μηχανισμό του ανελκυστήρα. Έχω ανεβάσει μία κάτοψη και τομή, είναι σωστή αυτή η λύση? ευχαριστώ πολύ! -Ν
Recommended Posts
Δημιουργήστε ένα λογαριασμό ή συνδεθείτε προκειμένου να αφήσετε κάποιο σχόλιο
Πρέπει να είστε μέλος για να μπορέσετε να αφήσετε κάποιο σχόλιο
Δημιουργία λογαριασμού
Κάντε μια δωρεάν εγγραφή στην κοινότητά μας. Είναι εύκολο!
Εγγραφή νέου λογαριασμούΣύνδεση
Εάν έχετε ήδη λογαριασμό; Συνδεθείτε εδώ.
Συνδεθείτε τώρα