Alex99 Δημοσιεύτηκε November 24, 2017 at 10:44 πμ Δημοσιεύτηκε November 24, 2017 at 10:44 πμ Στο πατρικό μου τους έπεσε ο σοβάς στο προσκέφαλο του κρεβατιού. Ευτυχώς που δεν κοιμόντουσαν! Ο από πάνω αρνείται να συνεργαστεί και τους βγάζει τρελούς. Ποια είναι η ορθή διαδικασία που πρέπει να ακολουθήσω; Να ζητήσω πρώτα από την πολεοδομία να έρθει για αυτοψία; Να κάνω εξώδικο πρώτα; Πάνω από το πατάρι βρίσκεται το λουτρό. Το πιο πιθανό να είναι καμιά διαρροούλα από εκεί; Πώς όμως θα το διαπιστώσω αφού δεν έχω καν πρόσβαση, αλλά κι αν αποκτήσω με διακστική συνδρομή, πρέπει να ξηλώσω δάπεδο και μπανιέρα του γείτονα; ΥΓ: Το έβαλα στα θέματα ιδιωτών μιας και αφορά ιδιωτική μου υπόθεση. Ως προς το επισκευαστικό σκέλος έχω ήδη αρχίσει το διάβασμα στα θέματα περί ενανθράκωσης. Ευχαριστώ!
ΚΑΝΑ Δημοσιεύτηκε November 24, 2017 at 12:25 μμ Δημοσιεύτηκε November 24, 2017 at 12:25 μμ το βλέπω ως διαρροή σιφωνίου (βλέπω ντουλάπα 60εκ και περίπου άλλα 60εκ απόσταση από ντουλάπα) υποθέτω ότι το από πάνω μπάνιο να είναι περίπου 2-2.40 μ μήκος) Ειδικά αν είναι παλιά η οικοδομή τότε πρέπει να λάβεις υπόψη σου ότι το σιφώνι δαπέδου τοποθετούνταν με "σχεδόν καθολικό σπάσιμο της πλάκας-τύπου διάτρησης της" κάτι που σήμερα ή δεν γίνεται ή απαιτεί λιγό σπάσιμο 1
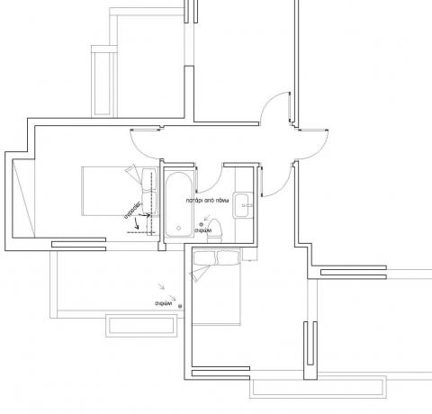
Alex99 Δημοσιεύτηκε November 27, 2017 at 08:49 πμ Συγγραφέας Δημοσιεύτηκε November 27, 2017 at 08:49 πμ Ευχαριστώ πολύ συνάδελφε, η εμπειρία σου είναι ανεκτίμητη! Η οικοδομή δεν είναι πολύ παλιά, είναι του 1986 και αρκετά καλή κατασκευή. Μου προξενεί εντύπωση που μέσα στο πατάρι δεν υπάρχει ίχνος υγρασίας, ενώ το λουτρό του άνω ορόφου λογικά θα βρίσκεται ακριβώς όπου και το δικό μας. Ανεβάζω και μια κάτοψη με την πραγματική κατάσταση και τις θέσεις των σιφωνιών. Να έκανε ο γείτονας ανακαίνιση και επέκταση του λουτρού προς το υπνοδωμάτιο είναι μάλλον απίθανο λόγω θέσης της μπαλκονόπορτας και επειδή το υπνοδωμάτιο είναι ήδη 3,00x3,00. Εντωμεταξύ και το σιφώνι του εξώστη είναι μακριά από τον τοίχο να πεις ότι έρχονται τα νερά από έξω.
Ροδοπουλος Δημοσιεύτηκε November 28, 2017 at 03:04 μμ Δημοσιεύτηκε November 28, 2017 at 03:04 μμ (edited) Στο πατρικό μου τους έπεσε ο σοβάς στο προσκέφαλο του κρεβατιού. Ευτυχώς που δεν κοιμόντουσαν! Ο από πάνω αρνείται να συνεργαστεί και τους βγάζει τρελούς. Ποια είναι η ορθή διαδικασία που πρέπει να ακολουθήσω; Να ζητήσω πρώτα από την πολεοδομία να έρθει για αυτοψία; Να κάνω εξώδικο πρώτα; Πάνω από το πατάρι βρίσκεται το λουτρό. Το πιο πιθανό να είναι καμιά διαρροούλα από εκεί; Πώς όμως θα το διαπιστώσω αφού δεν έχω καν πρόσβαση, αλλά κι αν αποκτήσω με διακστική συνδρομή, πρέπει να ξηλώσω δάπεδο και μπανιέρα του γείτονα; ΥΓ: Το έβαλα στα θέματα ιδιωτών μιας και αφορά ιδιωτική μου υπόθεση. Ως προς το επισκευαστικό σκέλος έχω ήδη αρχίσει το διάβασμα στα θέματα περί ενανθράκωσης. Ευχαριστώ! είναι αυτό που λέμε σκούριασε που να δεις στην περιοχή της ντουλάπας από επάνω τι γίνετε για να κλάψεις. Το πρόβλημα μπορεί να οφείλετε σε εσένα και έχει να κάνει με συμπύκνωση υδρατμών. Edited November 28, 2017 at 03:07 μμ by Ροδοπουλος 1
skidoo23 Δημοσιεύτηκε November 28, 2017 at 04:24 μμ Δημοσιεύτηκε November 28, 2017 at 04:24 μμ Συμπύκνωση υδρατμων (σε αυτό το σημείο) με θερμαινόμενο χώρο απο πάνω το βλέπω απίθανο , μάλλον αυτό που λέει ο ΚΑΝΑ ειναι. 1
Ροδοπουλος Δημοσιεύτηκε November 28, 2017 at 04:44 μμ Δημοσιεύτηκε November 28, 2017 at 04:44 μμ Συμπύκνωση υδρατμων (σε αυτό το σημείο) με θερμαινόμενο χώρο απο πάνω το βλέπω απίθανο , μάλλον αυτό που λέει ο ΚΑΝΑ ειναι. εκεί συμπυκνώνει 1
Spiderman Δημοσιεύτηκε November 28, 2017 at 04:49 μμ Δημοσιεύτηκε November 28, 2017 at 04:49 μμ Σε πόσο διάστημα έγινε? αν το παρατήρησες το τελευταίο τρίμηνο τέτοια δουλειά με συμπύκνωση δεν πιστεύω να σου έγινε. Αν είχες συννεφάκια ή σκάσιμο χρώματος αρκετό καιρό θα μπορούσε. 1
Ροδοπουλος Δημοσιεύτηκε November 28, 2017 at 04:49 μμ Δημοσιεύτηκε November 28, 2017 at 04:49 μμ Συμπύκνωση υδρατμων (σε αυτό το σημείο) με θερμαινόμενο χώρο απο πάνω το βλέπω απίθανο , μάλλον αυτό που λέει ο ΚΑΝΑ ειναι. λύσε ένα glacer να το δεις. 1
Alex99 Δημοσιεύτηκε January 10, 2018 at 12:38 μμ Συγγραφέας Δημοσιεύτηκε January 10, 2018 at 12:38 μμ Συνάδελφοι +1 σε όλους, σας ευχαριστώ για τη βοήθεια! Δεν μου ήρθαν ειδοποιήσεις για κάποιο περίεργο λόγο και είδα σήμερα τα μηνύματά σας.. Παραδόξως μέσα στο πατάρι μου δεν υπάρχει καθόλου υγρασία και δεν είδα καμιά ρωγμή (το γράφω και πιο πάνω)! Αν είναι διαρροή του από πάνω λουτρού, γιατί βγήκε στο υπνοδωμάτιο; Δεν είναι περίεργο να τρέχει σωλήνας ύδρευσης/ αποχέτευσης εκτός του λουτρού; (βλ. σχέδιο). Σκέφτομαι μήπως είναι καλοριφέρ, καθότι ο από πάνω έκανε εκτεταμένη ανακαίνιση πριν λίγα χρόνια. Ως προς τη διάρκεια, πιθανότατα η ζημιά έγινε κατά τη διάρκεια μηνών, αν όχι ετών, απ' ό,τι μου είπαν οι δικοί μου (είναι και κάποιας ηλικίας). Κι εγώ με τις λίγες σχετικές γνώσεις το κόβω δύσκολο να είναι συμπύκνωση υδρατμών. Υδρατμών παραγόμενων στο υπνοδωμάτιο? Γιατί οι υδρατμοί του λουτρού υγροποιούνται στην οροφή του λουτρού, έτσι δεν είναι; (μιας και υπάρχει πατάρι). Αποφάσισα να του κάνω κατευθείαν αγωγή, ούτε καν εξώδικο να μη χάνω χρόνο και χρήμα. Δεν ξέρω αν βοηθάει να φωνάξω το ΤΕΚ της πολεοδομίας για να έχω την αυτοψία τους στο δικαστήριο.
Ροδοπουλος Δημοσιεύτηκε January 11, 2018 at 08:00 πμ Δημοσιεύτηκε January 11, 2018 at 08:00 πμ αν τρέχει σωλήνας θέρμανσης τότε τραβάει την υγρασία απο πίεση υδρατμών και συμπυκνώνει. Εμένα πάντως δεν μου φαίνεται ότι είναι τοπικό το πρόβλημα αλλα χωρίς έλεγχο δεν μπορείς να ξέρεις. 1
Recommended Posts
Δημιουργήστε ένα λογαριασμό ή συνδεθείτε προκειμένου να αφήσετε κάποιο σχόλιο
Πρέπει να είστε μέλος για να μπορέσετε να αφήσετε κάποιο σχόλιο
Δημιουργία λογαριασμού
Κάντε μια δωρεάν εγγραφή στην κοινότητά μας. Είναι εύκολο!
Εγγραφή νέου λογαριασμούΣύνδεση
Εάν έχετε ήδη λογαριασμό; Συνδεθείτε εδώ.
Συνδεθείτε τώρα