takos Δημοσιεύτηκε December 21, 2009 at 01:13 μμ Δημοσιεύτηκε December 21, 2009 at 01:13 μμ Νομίζω ότι μπορείς να κατασκευάσεις χώρο κύριας χρήσης στο ισόγειο, αρκεί να εξασφαλίσεις τον χώρο αυτό βάση πολεοδομικού και κτιριοδομικού κανονισμού (ύψος, δόμηση, όγκο, προσπέλαση στου κοινόχρηστους, χιλιοστά στην οροφοκτησία κλπ.) Και μετά δεν σου απαγορέυει κανένας να κάνεις και το 50 % pilotis με είσοδο-έξοδο απο κοινόχρηστο, ώστε να μην μετρήσει το κλιμακοστάσιο του ισογείου. Προσοχή όμως, ο χώρος κύριας χρήσης και η pilotis να είναι στο ίδιο επίπεδο, αλλιώς θα μετρήσει για όροφος. Επίσης, τώρα που το θημύθηκα, η είσοδος του χώρου κύριας χρήσης να μην γίνεται μέσα από την pilotis (βοηθητικός χώρος) εκτός αν το κάνεις με ημιυπαιθριους που δεν θα τους προσμετρήσεις στο 50% pilotis. Συνάδελφοι καλημέρα, είναι η πρώτη μου δημοσίευση στο φόρουμ και θα ήθελα να ρωτήσω κάτι που ίσως για κάποιον πιο έμπειρο σε θέματα νομοθεσίας να φανεί απλοϊκό. Παραθέτω την ανωτέρω δημοσίευση για να ρωτήσω το εξής: Σε ανεξάρτητο διαμέρισμα που βρίσκεται σε χώρο pilotis (το κλιμακοστάσιο δεν εφάπτεται με το διαμέρισμα), η είσοδος του διαμερίσματος δεν επιτρέπεται να γίνεται "μέσα" από τον κοινόχρηστο χώρο pilotis; Επίσης επιτρέπεται να "βγαίνουν" παράθυρα στην pilotis ή όχι; Υπάρχει σχετική νομοθεσία που να διευκρινίζει τα παραπάνω; Ευχαριστώ.
erling Δημοσιεύτηκε December 21, 2009 at 03:41 μμ Δημοσιεύτηκε December 21, 2009 at 03:41 μμ Δεν θυμάμαι κάποια φορά να μου τέθηκε τέτοιο πρόβλημα. Έχω δείξει και δύο κατοικίες στην pilotis με είσοδο από την pilotis χωρίς πρόβλημα. Τώρα που το θυμήθηκα και κατάστημα στην pilotis που είχε είσοδο από τον δρόμο κατευθείαν. Δεν νομίζω να ισχύει αυτός ο περιορισμός. *όταν λέω pilotis, εννοώ τη υπόλοιπο συνέχιζε να είναι pilotis.
takos Δημοσιεύτηκε December 21, 2009 at 04:50 μμ Δημοσιεύτηκε December 21, 2009 at 04:50 μμ Ευχαριστώ για την άμεση απάντηση. Πρόκειται για την πρώτη μου άδεια και ψάχνω την νομοθεσία για να βεβαιωθώ ότι η λύση μου είναι οκ. Όσον αφορά το δεύτερο σκέλος της ερώτησης, μπορώ για παράδειγμα να δώσω φυσικό φωτισμό-αερισμό σε χώρο κύριας χρήσης διαμερίσματος pilotis, με παράθυρο που να βλέπει στην pilotis και όχι στον περιβάλλοντα χώρο;
myri Δημοσιεύτηκε December 21, 2009 at 08:00 μμ Δημοσιεύτηκε December 21, 2009 at 08:00 μμ καλή η ερώτηση για τα παράθυρα στην Plotis τι είναι pilotis: http://www.tee.gr/online/afieromata/2000/2122/index.shtml Αρθρο 7 Συντελεστής Δόμησης ι) Ο ελεύθερος ημιυπαίθριος χώρος που δημιουργείται όταν το κτίριο κατασκευάζεται σε υποστηλώματα (PILOTIS), ....... -------- http://www.michanikos.gr/downloads.php?do=file&id=369 ΑΡΘΡΟΝ-2. ΟΡΙΣΜΟΙ ΓΙΑ ΤΗΝ ΕΦΑΡΜΟΓΗ ΤΟΥ ΠΑΡΟΝΤΟΣ. 9. Φυσικός φωτισμός: Είναι ο φωτισμός που προέρχεται από τον ήλιο. 10. Άμεσος φυσικός φωτισμός χώρου: Είναι ο φυσικός φωτισμός που προέρχεται από ανοίγματα του χώρου, που επικοινωνούν αμέσως με το ύπαιθρο ή με ημιϋπαίθριο χώρο, χωρίς την παρεμβολή άλλου κλειστού χώρου. 11. Έμμεσος φυσικός φωτισμός χώρου: Είναι ο φυσικός φωτισμός που φτάνει στο χώρο μέσω άλλου κλειστού χώρου του κτιρίου που έχει άμεσο φυσικό φωτισμό. ΑΡΘΡΟΝ-11 ΦΥΣΙΚΟΣ ΦΩΤΙΣΜΟΣ ΚΑΙ ΑΕΡΙΣΜΟΣ 1. Όλοι οι χώροι κύριας χρήσης των κτιρίων και δομικών έργων πρέπει να έχουν επαρκή φυσικό φωτισμό και αερισμό, άμεσο ή έμμεσο σύμφωνα με τις διατάξεις του παρόντος άρθρου. 2. Οπωσδήποτε άμεσο φυσικό φωτισμό και αερισμό πρέπει να έχουν οι χώροι κύριας χρήσης των κατοικιών και τα υπνοδωμάτια των κτιρίων προσωρινής διαμονής. 5. Επαρκή άμεσο φυσικό φωτισμό θεωρείται ότι έχουν οι χώροι, όταν εκπληρώνονται συγχρόνως οι ακόλουθες συνθήκες: 5.1.1. Ο φωτισμός τους προέρχεται από ανοίγματα στην οροφή ή σε εξωτερικούς τοίχους του χώρου που βλέπουν είτε σε κοινόχρηστο χώρο του οικισμού, είτε σε ακάλυπτο χώρο του οικοπέδου ή του κτιρίου που έχει τις προϋποθέσεις των διατάξεων της παρ.4 του άρθρου αυτού, είτε σε πλευρά ημιϋπαίθριου χώρου, που είναι ανοιχτή σ' έναν από τους χώρους αυτούς. 5.1.2. Το εμβαδόν των ανοιγμάτων αυτών δεν υπολείπεται του 10% του καθαρού εμβαδού του χώρου. 5.2. Επιπλέον από τις απαιτήσεις της υποπαραγράφου 5.1.1., στην περίπτωση που χώρος φωτίζεται από άνοιγμα ή ανοίγματα που βλέπουν προς ημιϋπαίθριο χώρο ή που βρίσκονται κάτω από εξώστη ή προστέγασμα, θεωρείται ότι έχει επαρκή άμεσο φυσικό φωτισμό όταν το εμβαδόν των παρακάτω επιφανειών δεν υπολείπεται το καθένα χωριστά του 10% του αθροίσματος των εμβαδών του δαπέδου του φωτιζόμενου χώρου και της οροφής του ημιϋπαίθριου χώρου, εξώστη ή προστεγάσματος που αντιστοιχεί στο φωτιζόμενο χώρο...... --------------- άρα εφόσον η pilotis είναι ΗΧ (ημιυπάιθριος) μπορείς να έχεις ανοίγματα που φωτίζουν άμεσα χώρους κύριας χρήσης βέβαια νομίζω πως δύσκολα θα εξασφαλίσεις την υποχρέωση του 10% και επίσης το πιο σηματικό είναι να είναι βιώσιμοι και ευχάριστοι οι χώροι πέρα από τις νομοθεσίες (βάλε και ένα σκίτσο διότι έχω υπ'όψη μου και μια περίπτωση όπου δε θα σου γίνει δεκτός ο φωτισμός)
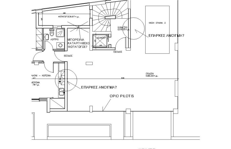
takos Δημοσιεύτηκε December 22, 2009 at 12:10 μμ Δημοσιεύτηκε December 22, 2009 at 12:10 μμ myri σε ευχαριστώ, είσαι κατοτοπιστικότατη. Τελικά θα αποφύγω μάλλον την λύση άμεσου φωτισμού κύριας χρήσης αποκλειστικά απο χώρο pilotis. Ίσως να προσθέσω κάποιο άνοιγμα σε χώρο που ήδη φωτίζεται από άνοιγμα στον ακάλυπτο. Παραθέτω το σχέδιο προκειμένου να μου λυθούν κάποιες απορίες (ίσως και σε κάποιους συναδέλφους). Η πάνω ακμή του κτιρίου βρίσκεται σε επαφή με όμορο οικόπεδο. Ευχαριστώ
myri Δημοσιεύτηκε December 22, 2009 at 08:38 μμ Δημοσιεύτηκε December 22, 2009 at 08:38 μμ η κουζίνα είναι ενιαία με το σαλόνι φωτίζεται άμεσα απο τη μπαλκονόπορτα δεν υπάρχει θέμα φωτισμού προσοχή: αν ήταν απομονωμένη από το σαλόνι δεν θα αρκούσε το άνοιγμα από την Pilotis είναι η εξαίρεση που φανταζόμουν, διότι το άνοιγμα είναι κάθετο στον υπάιθριο χώρο το κλιμακοστάσιο γενικά πως φωτίζεται;;; και στους υπόλοιπους ορόφους;;;;;
howard_roark Δημοσιεύτηκε December 23, 2009 at 11:46 πμ Δημοσιεύτηκε December 23, 2009 at 11:46 πμ ασχετο αλλα δες λιγακι το μπανιο σου αρχηγε μου γιατι οταν θα πας να βαλεις τα ειδη υγιεινης στην κατασκευη, δεν θα χωραει ανθρωπος να κατσει στη λεκανη ετσι που ειναι στριμωγμενα. και κοχυλακι να ειναι ο νιπτηρας σε βλεπω οριακα να βρισκεις. ειναι wc? δεν το σωζεις με συρομενη να γλυτωσεις χωρο? /offtopic
takos Δημοσιεύτηκε December 23, 2009 at 08:13 μμ Δημοσιεύτηκε December 23, 2009 at 08:13 μμ myri, το κλιμακοστάσιο, όπως φαίνεται στο σχέδιο, φωτίζεται επαρκώς από τον φωταγωγό δεδομένου ότι η κάθετη στο άνοιγμα διάσταση είναι >Δ και η παράλληλη 1,2μ. Καταργώντας τον τοίχο και τον φωταγωγό στον όροφο-pilotis, δηλαδή αν ο φωταγωγός ξεκινά από τον 1ο όροφο, δεν μπορώ να δώσω φωτισμό στο κλιμακοστάσιο στο επιπεδο pilotis. Οπότε γράψε άκυρο... Ο φωταγωγός μπορεί να συνεχίζει και στο υπόγειο? howard_roark, σ' ευχαριστώ για την με συνοπτικές διαδικασίες προαγωγή μου σε αρχηγό... αν και με τους τίτλους δεν τα πήγαινα ποτέ καλά. Το wc είναι 2x2 και νομίζω ότι είναι αρκετό, αν και λίγο στριμωγμένο. Η συρόμενη σε κάθε περίπτωση είναι καλή λύση.
myri Δημοσιεύτηκε December 23, 2009 at 08:21 μμ Δημοσιεύτηκε December 23, 2009 at 08:21 μμ ορθό αυτό με τον φωτισμό από τον φωταγωγό επικεντρώθηκα στο σημείο που είχες κυκλώσει και δεν πρόσεξα το > του Δ δε βρίσκω για ποιόν λόγο ο φωταγωγός να μη φτάνει στο υπόγειο το παράθυρο του κλιμακοστασίου φερτο πιο κάτω ωστε να ισχύει το Δ σε κάθε σημείο του ανοίγματος
kalinin Δημοσιεύτηκε October 13, 2010 at 04:11 μμ Δημοσιεύτηκε October 13, 2010 at 04:11 μμ Κατά την ανέγερση τετραόροφης οικοδομής με πυλωτή,επιτρέπεται η δημιουργία ειδικού κτιρίου στο ισόγειο της πυλωτής, όταν μάλιστα προκύπτει ότι το εμβαδό της πυλωτής είναι <50% της κάλυψης.
Recommended Posts
Δημιουργήστε ένα λογαριασμό ή συνδεθείτε προκειμένου να αφήσετε κάποιο σχόλιο
Πρέπει να είστε μέλος για να μπορέσετε να αφήσετε κάποιο σχόλιο
Δημιουργία λογαριασμού
Κάντε μια δωρεάν εγγραφή στην κοινότητά μας. Είναι εύκολο!
Εγγραφή νέου λογαριασμούΣύνδεση
Εάν έχετε ήδη λογαριασμό; Συνδεθείτε εδώ.
Συνδεθείτε τώρα