 
        markkeracete
Members- 
                Περιεχόμενα38
- 
                Εντάχθηκε
- 
                Τελευταία επίσκεψη
Τύπος περιεχομένου
Profiles
Φόρουμ
Downloads
Gallery
Ειδήσεις
Media Demo
Αγγελίες
Store
Everything posted by markkeracete
- 
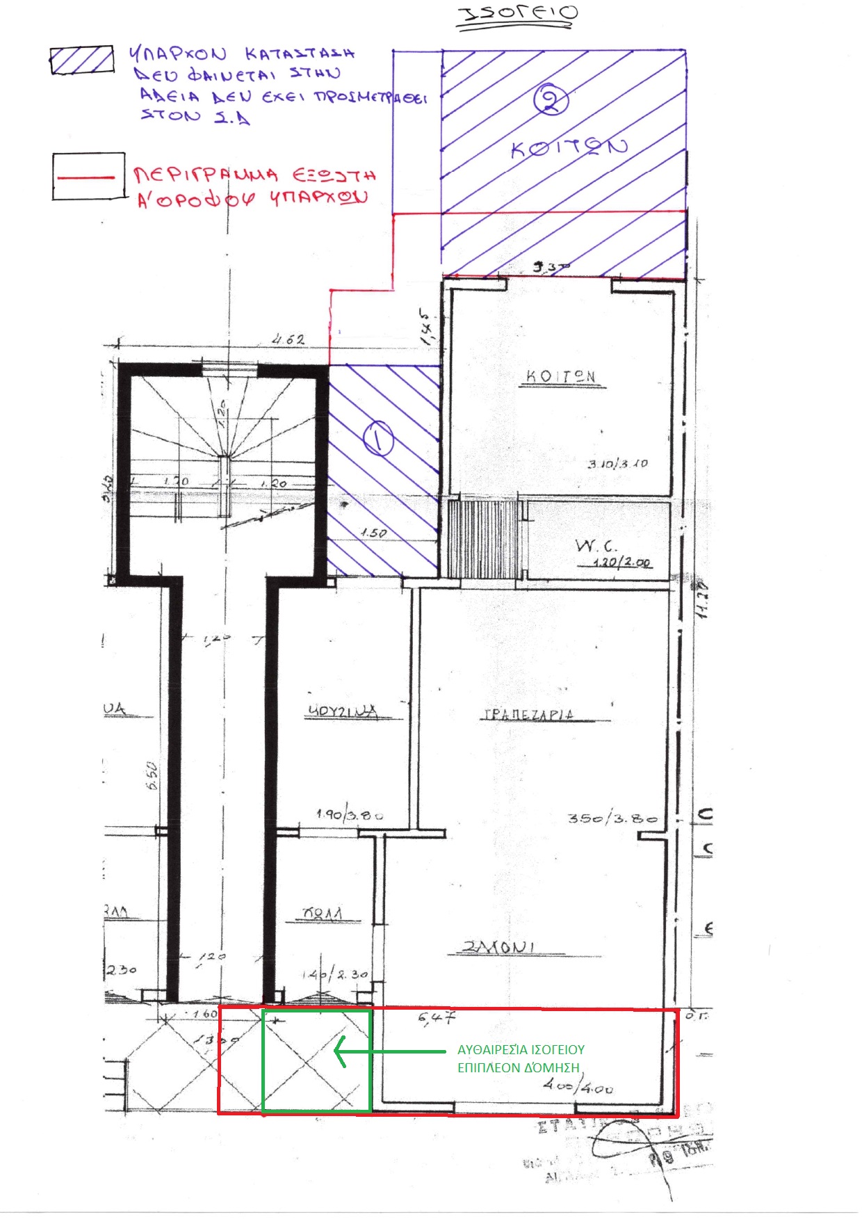
	Καλημερα σας. Θα ήθελα τα φώτα σχετικά με μια περίπτωση σε μια τακτοποίηση όσο αναφορά την νομοθεσία. Αρχικά σας παραθέτω την περίπτωση καθώς και τον τρόπο αντιμετώπισης που πιστεύω. Σε διαμέρισμα ισογείου πυλωτής κατασκευής 1991 όπου όλες οι περιπτώσεις είναι από την κατασκευή έχουμε : 1) Πατάρι 4,50 ΤΜ εντός διαμερίσματος με είσοδο από κοινόχρηστο (Πυλωτή) -> κατηγορία 4 με μειωτικό συντελεστή 0,30 2) Υπέρβαση δόμησης 0,60 ΤΜ αποθήκης ισογείου -> κατηγορία 4 με μειωτικό συντελεστή 0,30 3) Αλλαγή διαστάσεων ανοιγμάτων -> κατηγορία 3 4) Κατασκευή νέου ανοίγματος ( άνοιγμα παταριού) , Εσωτερικές διαρρυθμίσεις -> κατηγορία 4 (λοιπές παραβάσεις-αναλυτικός) 5)Απομείωση τετραγωνικών διαμερίσματος -> κατηγορία 4 ( διαφορετική διαμερισμάτωση με κοινόχρηστο χώρο την πυλωτή) Στις περιπτώσεις 4 και 5 δεν δηλώνονται σε κατηγορία 3 και έτσι το περνάω στην κατηγορία 4. Είναι σωστό; Σας ευχαριστώ εκ το προτέρων.
- 
	Ευχαριστώ πολύ για την απάντηση @akis73 θα ήθελα να ρωτήσω πως Δηλώνοντας την αυθαιρεσία με κατηγορία 1 αναφέρω τα τετραγωνικά με υπερβαση <50% αλλά σε περίπτωση κατηγοριας 2 πάω με αναλυτικό; ξεχασα να αναφέρω πως υπάρχουν και εξώστες οι οποίο δεν φαίνονται στην ΟΑ και κατασκευάστηκαν την ίδια χρονολογία στην πίσω όψη του κτιρίου κατατάσσεται στην κατηγορία 3; Ευχαριστώ.
- 
	Καλησπέρα Σε οικοδομή με Ο.Α. του 1970 έχουμε την εξής περίπτωση. Η ιδιοκτησία βρίσκεται στην β’ εσοχή της πολυκατοικίας σε μεσοτοιχία με διαμέρισμα στον όροφο. Στο διαμέρισμα το οποίο είναι προς τακτοποίηση, εκ κατασκευής έχει γίνει ΥΔ στην πίσω όψη του κτιρίου καθώς και ένα τμήμα στην κυριά όψη. Επίσης έχει γίνει κατάληψη κλιμακοστάσιου με αποτέλεσμα να έχει γίνει επέκταση του διαμερίσματος και να θεωρείται χώρος κυρίας χρήσης (κατάληψη τμήματος κοινοχρήστου χώρου περίπου 7 τ.μ.). (όπως φαίνεται στο σχέδιο). Η ερώτηση βάση του συμπεράσματος μου σχετικά με την ΥΔ έχει ως εξής : περίπτωση ΥΚ,ΥΥ δεν υπάρχει λόγω ότι το διαμέρισμα βρίσκεται σε εσοχή και η υπέρβαση έγινε στο όριο του περιγράμματος της κάλυψης στην πίσω όψη του κτιρίου. Τώρα σχετικά με την ΥΔ η συνολική επιφάνεια της υπέρβασης είναι στα 37,74 τετραγωνικά, το αντιμετωπίζω ως κατηγορία 4, Σύμφωνα ββ κατηγορίας 4 ν4495/17 για αυθαίρετες κατασκευές εφόσον δεν παραβιάζονται σε ποσοστό μεγαλύτερο του σαράντα τοις εκατό (40%). και με την υποπερίπτωση δγ της περ. δ (ΚΑΤΗΓΟΡΙΑ 4) του άρθρου 96 του Ν. 4495/17, όπως έχει αντικατασταθεί με το άρθρο 80 του Ν. 4759/2020, «αυθαίρετες κατασκευές σε ακίνητα που διαθέτουν οικοδομική άδεια, ανεξαρτήτως του ποσοστού υπέρβασης της κάλυψης ή της δόμησης, όταν αυτές δεν ξεπερνούν τα πενήντα (50) τ.μ. σε συνολική δόμηση ». Ποιά είναι η γνώμη σας σχετικά με τον τρόπο αντιμετώπισης της περίπτωσης μου. Σας ευχαριστώ.
- 
	Καλησπέρα σας. Σε οικοδομή με Ο.Α. του 1970 υπάρχει η εξής περιπτωση. Το διαμέρισμα βρίσκεται στην β’ εσοχή της πολυκατοικίας και συνορεύει με ακόμα εάν διαμέρισμα στον όροφο. Στο διαμέρισμα το οποίο είναι προς τακτοποίηση, εκ κατασκευής έχει γίνει μετατόπιση ανοίγματος στον διάδρομο του κλιμακοστάσιου με αποτέλεσμα να έχει γίνει επέκταση του διαμερίσματος και να θεωρείται χώρος κυρίας χρήσης (κατάληψη τμήματος κοινοχρήστου χώρου περίπου 7 τ.μ.). (όπως φαίνεται στο σχέδιο) επίσης στο διαμέρισμα έχουμε και ΥΔ στην πίσω όψη του κτιρίου καθώς και εάν τμήμα στην κυριά όψη. Η ερώτηση μου σχετικά με την κατάληψη κοινοχρήστου διάδρομου έχει ως εξής και θα ήθελα την βοήθεια σας σχετικά με τον τρόπο αντιμετώπισης : 1) ΥΔΚΧ και αλλαγή χρήσης 2) ΥΔ. 3) Αναλυτικός 4) Διαφορετική διαμερισμάτωση 5) Θα χρειαστεί τροποποίηση της σύστασης οριζοντίου με συναίνεση συνιδιοκτητών 50% η μπορεί να γίνει μονομερώς τροποποίηση από τον ιδιοκτήτη βάση της παρ.5 του άρθρου 98 του ν.4495/2017 καθώς και της παρ.9α του άρθρου 98 του ν.4495/2017οπου δεν απαιτείται συναίνεση των ιδιοκτήτων Το δικό μου συμπέρασμα σχετικά με την αντιμετώπιση του θέματος είναι πως ΥΔ δεν είναι για τον λόγο ότι το κλιμακοστάσιο μετρούσε στην δόμηση, αναλυτικός δεν είναι μόνο αν θεωρήσουμε ότι είναι στην κατηγορία από βοηθητική χρήση σε βοηθητική η κυριά χρήση σε κυριά, και είμαι αναμεσά σε ΥΔΚΧ και διαφορετική διαμερισμάτωση κατηγορίας 3 παρ. ιειε , αν και στην δεύτερη δεν έχουμε τροποποιήσεις στα μηχανολογικά και στις λοιπές εγκαταστάσεις βάσει της παρ. 8 του άρθρου 100 του 4495.
- 
	Καλησπέρα @jbosdas όπως φαίνεται όλη η επιφάνεια του αιθαίρετου κτίσματος καταλαμβάνει και τον χώρο του εξώστη του α΄ορόφου της αδείας πέρα απο τον Κ.Χ του οικοπέδου με αποτέλεσμα να μην εχει κατασκευαστέι ο εξώστης του α΄ορόφου όπως φαίνεται στην οικοδομική άδεια οπου και αυτό το οτι δέν έχει κατασκευαστεί είναι αυθαιρεσία. Επίσης το κομμάτι του εξώστη με αριθμό (1) υπάρχει ναι ο εξώστης όπως και γενίκα όλη την επιφάνεια που σημείωσες και το καταλαβαίνω αλλα όλο αυτο το κομμάτι είναι επιφάνεια του δώματος του αυθαίρετου ισογείου. Πώς δικαιολογείτε η κατάσταση αυτή όταν η αυθαίρετη κατασκευή δεν ανήκει στον α' όροφο? Αλλά το δώμα να χρησιμοποιείτε ως (βεράντα) του α' ορόφου? Μπορούμε να τη δικαιολογήσουμε κάπως αυτη την περίπτωση? Επίσης το ίδιο συμβαίνει και στην αλλη πλευρά του κτιρίου απο την δεξιά μεριά με την διαφορά οτι φαίνεται στην κάτοψη ισογειόυ με την σημείωση οτι δεν φαίνεται στην τομή και πως η επιφάνεια που φαίνεται δεν είναι εξώστης αλλα και πάλι επιφάνεια δώματος που αποτυπώνεται στα σχέδια, με επιπλέον σημείωση πως στην όψη καθώς και στην κάτοψη του α΄ορόφου δεν φαίνεται βάση του κυκλιδωμάτων να καλύπτει ολη την επιφάνεια όπως αποτυπώνεται στην πραγματικότητα και όπως σημειώνω στο σχέδιο κάτοψης, και τέλος στην αριστερή μεριά του εξώστη που σημειώνω πώς και σε αυτή την περίπτωση έχουμε αυθαιρεσία με υπέρβαση δόμησης του ισογείου γιατί κάτω απο τον εξώστη εκ κατασκευής έχει κλειστεί. Ευχαριστώ πολύ για όλη την βοήθεια σου.
- 
	@jbosdas σε ευχαριστώ για την απάντηση. Αλλα Εδώ ουσιαστικά έχουμε 4 περιπτώσεις 1) Υπέρβαση εμβαδού εξώστη πάνω σε δώμα αυθαίρετου κτίσματος (ταύτιση ύψους) 2) Υπέρβαση εμβαδού εξώστη πάνω από Κ.Χ. 3) Υπέρβαση εμβαδού εξώστη πάνω σε δώμα νομίμως υφιστάμενου (ταύτιση ύψους) 4) Υπέρβαση εμβαδού εξώστη πάνω σε δώμα αυθαίρετου κτίσματος με υψομετρική διαφορά +10 cm από το ύψος του εξώστη του α ορόφου. Αν δεν γινόταν η αυθαίρετη κατασκευή δεν θα είχαμε και πρόβλημα σχετικά με την επιφάνεια των εξωστών. Νομίζω πως το σύνολο της επιφάνειας που δεν φαίνεται στα σχέδια ξεπερνάει το 20%
- 
	@jbosdasΣε ευχαριστώ αρχικά για την ενημέρωση και για την βοήθεια σου. απλα θα ήθελα να σε ρωτήσω σχετικά. Και στις 3 περιπτωσεις έχουμε αύξηση των εξωστών στην ιδιοκτησία. Στην κυρια όψη έχουμε αύξηση της επιφανειας του εξώστη του Α ορόφου και ενώ φαίνεται στην άδεια σχετικά με το ισόγειο, και στην πίσω όψη 2 περιπτωσεις η μια δεν ταυτίζεται με την οροφή αυθαίρετης κατασκευής και η άλλη ταυτίζεται με την οροφή της αυθαίρετης κατασκευής, συν ότι στον α όροφο φαίνεται να ειναι ενοποιημένος ο εξώστης της ιδιοκτησίας με το δώμα της αυθαίρετης κατασκευης του ισογείου. Θα ήθελα την βοήθεια σου λοιπόν. Μου έγραψες στο forum σχετικά με το Θέμα και μου ανέφερες πως δεν είναι κάτι το οποίο με απασχολεί σχετικά με τους εξώστες που ταυτίζονται με την οροφή της αυθαίρετης η μη του ισογείου. Όπως βλέπεις και στην κάτοψη του Α ορόφου με αρίθμηση 1 των εξωστων δεν είναι σε επαφή με κατασκευή αλλά κατασκευάστηκε. επίσης δικαιολογείτε ο μεγαλύτερος εξώστης βάση με αυτά που μου είπες; και τέλος από την στιγμή που ο εξώστης ο οποίος είναι το δώμα μια αυθαίρετης κατασκευής και έχει αυτή την υψομετρική διαφορά σχετικά με τον κύριο εξωστη του α ορόφου νοείτε να είναι ιδιοκτησία του α ορόφου. αν μπορούσες να με βοηθούσες γιατί έχω μπερδευτεί και θα σου ήμουν υπόχρεος. Σε ευχαριστώ πολύ.@
- 
	Καλημέρα συνάδελφοι. Έχω την εξής περίπτωση και θα ήθελα την βοήθεια σας. Αρχικά θα ήθελα να πω πως η ιδιοκτησία που με ενδιαφέρει είναι αυτή του α’ ορόφου μιας πολυκατοικίας του 1980. Σας παραθέτω στα αρχεία τις κατόψεις του ισογείου και α’ ορόφου, καθώς την όψη και την τομή. Θα ήθελα να ξεκινήσω από το ισόγειο οπού και υπάρχουν τα προβλήματα που έχουν δημιουργήσει κόλλημα στην σύνταξη ΗΤΚ και αναγκαιότητα ρύθμισης αυθαίρετου του α’ ορόφου. Από την κάτοψη του ισογείου βλέπουμε με ‘’μωβ’’ χρώμα την προσθήκη που έχει γίνει στο κτίσμα κατά την διάρκεια της κατασκευής και δεν φαίνεται στην άδεια. Στην περίπτωση (1) της προσθήκης δεν επηρεάζει τον α’ όροφο που με ενδιαφέρει, αλλά στην περίπτωση (2) μας επηρεάζει. Το τμήμα που κατασκευάστηκε βρίσκεται εν μέρει κάτω από τον εξώστη του α’ ορόφου οπού υψομετρικά ταυτίζεται. Τα υψόμετρα των εξωστών του ακορύφου ταυτίζονται πλήρως με την οροφή του ισογείου εντός του περιγράμματος με το ‘’κόκκινο’’ χρώμα. Από την κάτοψη του α’ ορόφου έχουμε τα εξής : Με ‘’μπλε’’ χρώμα βλέπουμε τους εξώστες όπως αποτυπώνονται βάση της οικοδομικής αδείας. Με ‘’κόκκινο’’ χρώμα βλέπουμε το περίγραμμα της υπάρχουσας κατάστασης χωρίς το μέρος της προσθήκης εκ κατασκευής οπού το δώμα αυτής συνορεύει με τον εξώστη του ά ορόφου με υψομετρική διαφορά +10 cm στην πίσω μεριά του κτιρίου. Με ‘’πράσινο’’ χρώμα βλέπουμε την προσθήκη εξώστη των περιπτώσεων (1) , (2) προσθήκη εξώστη πάνω από οροφή προσθήκης εκ ‘κατασκευής που δεν φαίνεται στην οικοδομική άδεια, (3) προσθήκη εξώστη εκ ‘κατασκευής που δεν φαίνεται στην οικοδομική άδεια που βρίσκεται πάνω από οροφή εκ κατασκευής που φαίνεται στην οικοδομική άδεια. Σε όλες τις περιπτώσεις τα υψόμετρα των εξωστών ταυτίζονται πλήρως με την οροφή του ισογείου, εκτός μέρους του της προσθήκης οπού δεν φαίνεται στην άδεια που έχει υψομετρική διαφορά της τάξης των 10 cm. Θα ήθελα να πω επίσης ότι το δώμα του ισογείου οπού και έχει την υψομετρική διαφορά είναι ενοποιημένο με τον εξώστη του α’ ορόφου και φαίνεται και από τις φωτογραφίες ότι είναι συνέχεια του εξώστη και άτυπα ανήκει στην ιδιοκτησία του α’ ορόφου. Επίσης σημαντικό είναι πως ο ιδιοκτήτης του ισογείου οπού και έχει δημιουργήσει αυτό το πρόβλημα αναφορικά με τις αυθαίρετες κατασκευές δεν είναι διατεθειμένος για οποία ενέργεια και δημιουργεί πρόβλημα στον πελάτη μου. Έτσι λοιπόν θα μπορούσα για τις περιπτώσεις (1), (2), (3) δημιουργίας εξώστη που δεν φαίνεται στην οικοδομική άδεια που φαίνεται με πράσινο χρώμα στην κάτοψη α ορόφου να πήγαινα με αναλυτικό και το κομμάτι του δώματος με την υψομετρική διαφορά να μην το παρουσίαζα γιατί τυπικά ανήκει στον ιδιοκτήτη του ισογείου? ΕΥΧΑΡΙΣΤΩ
- 
	Καλημέρα συνάδελφοι. Έχω την εξής περίπτωση και θα ήθελα την βοήθεια σας. Αρχικά θα ήθελα να πω πως η ιδιοκτησία που με ενδιαφέρει είναι αυτή του α’ ορόφου μιας πολυκατοικίας του 1980. Σας παραθέτω στα αρχεία τις κατόψεις του ισογείου και α’ ορόφου, καθώς την όψη και την τομή. Θα ήθελα να ξεκινήσω από το ισόγειο οπού και υπάρχουν τα προβλήματα που έχουν δημιουργήσει κόλλημα στην σύνταξη ΗΤΚ και αναγκαιότητα ρύθμισης αυθαίρετου του α’ ορόφου. Από την κάτοψη του ισογείου βλέπουμε με ‘’μωβ’’ χρώμα την προσθήκη που έχει γίνει στο κτίσμα κατά την διάρκεια της κατασκευής και δεν φαίνεται στην άδεια. Στην περίπτωση (1) της προσθήκης δεν επηρεάζει τον α’ όροφο που με ενδιαφέρει, αλλά στην περίπτωση (2) μας επηρεάζει. Το τμήμα που κατασκευάστηκε βρίσκεται εν μέρει κάτω από τον εξώστη του α’ ορόφου οπού υψομετρικά ταυτίζεται. Τα υψόμετρα των εξωστών του ακορύφου ταυτίζονται πλήρως με την οροφή του ισογείου εντός του περιγράμματος με το ‘’κόκκινο’’ χρώμα. Από την κάτοψη του α’ ορόφου έχουμε τα εξής : Με ‘’μπλε’’ χρώμα βλέπουμε τους εξώστες όπως αποτυπώνονται βάση της οικοδομικής αδείας. Με ‘’κόκκινο’’ χρώμα βλέπουμε το περίγραμμα της υπάρχουσας κατάστασης χωρίς το μέρος της προσθήκης εκ κατασκευής οπού το δώμα αυτής συνορεύει με τον εξώστη του ά ορόφου με υψομετρική διαφορά +10 cm στην πίσω μεριά του κτιρίου. Με ‘’πράσινο’’ χρώμα βλέπουμε την προσθήκη εξώστη των περιπτώσεων (1) , (2) προσθήκη εξώστη πάνω από οροφή προσθήκης εκ ‘κατασκευής που δεν φαίνεται στην οικοδομική άδεια, (3) προσθήκη εξώστη εκ ‘κατασκευής που δεν φαίνεται στην οικοδομική άδεια που βρίσκεται πάνω από οροφή εκ κατασκευής που φαίνεται στην οικοδομική άδεια. Σε όλες τις περιπτώσεις τα υψόμετρα των εξωστών ταυτίζονται πλήρως με την οροφή του ισογείου, εκτός μέρους του της προσθήκης οπού δεν φαίνεται στην άδεια που έχει υψομετρική διαφορά της τάξης των 10 cm. Θα ήθελα να πω επίσης ότι το δώμα του ισογείου οπού και έχει την υψομετρική διαφορά είναι ενοποιημένο με τον εξώστη του α’ ορόφου και φαίνεται και από τις φωτογραφίες ότι είναι συνέχεια του εξώστη και άτυπα ανήκει στην ιδιοκτησία του α’ ορόφου. Επίσης σημαντικό είναι πως ο ιδιοκτήτης του ισογείου οπού και έχει δημιουργήσει αυτό το πρόβλημα αναφορικά με τις αυθαίρετες κατασκευές δεν είναι διατεθειμένος για οποία ενέργεια και δημιουργεί πρόβλημα στον πελάτη μου. Έτσι λοιπόν θα μπορούσα για τις περιπτώσεις (1), (2), (3) δημιουργίας εξώστη που δεν φαίνεται στην οικοδομική άδεια που φαίνεται με πράσινο χρώμα στην κάτοψη α ορόφου να πήγαινα με αναλυτικό και το κομμάτι του δώματος με την υψομετρική διαφορά να μην το παρουσίαζα γιατί τυπικά ανήκει στον ιδιοκτήτη του ισογείου? ΕΥΧΑΡΙΣΤΩ ΣΧΕΔΙΑ.pdf
- 
	Καλησπέρα σας. Θα ήθελα την βοήθεια σας. Διαμέρισμα με έτος αδείας 1969 το οποίο χρειάζεται ΗΤΚ για πώληση μετά από έλεγχο που πραγματοποίησα έχω τις εξής περιπτώσεις. Έχουμε 3 διαφοροποιήσεις σχετικά με τα άνοιγμα όπως αποτυπώνεται στα σχέδια σε σχέση πως είναι στην πραγματικότητα. Η περίπτωση 1 και 2 αφορά μια παρέμβαση, δηλαδή μετατόπιση ανοίγματος εντός διαμερίσματος η οποία δεν αποτυπώνεται στα σχέδια και έγινε κατά την διάρκεια της κατασκευής. Η περίπτωση 3 αφορά άνοιγμα παραθύρου οπού έγινε κατά την διάρκεια της κατασκευής στην πίσω όψη του κτιρίου που βλέπει στον ακάλυπτο χώρο της πολυκατοικίας και δεν αποτυπώνεται στα σχέδια. · Σας επισυνάπτω και την κάτοψη Έτσι λοιπόν όπως διαμορφώνεται η κατάσταση θα ήθελα να ρωτήσω στην περίπτωση 3 οπού στα σχέδια της αδείας δεν αποτυπώνεται το άνοιγμα αλλά στην πραγματικότητα έχουμε το συγκεκριμένο άνοιγμα το οποίο κατασκευάστηκε αρχικά το 1969 κάνουμε τακτοποίηση κατηγορίας 3 η με αναλυτικό? Φαίνεται πως με κατηγορία 3 νομίζω δεν τηρούνται οι προϋποθέσεις απλά το αναφέρω μήπως γνωρίσει κάποιος κάτι διαφορετικό γιατί στην κατηγορία 3 αναφέρει γδ) αλλαγή των διαστάσεων των ανοιγμάτων και μετατόπιση αυτών, Επίσης στην πρώτη περίπτωση για να εκδώσω ΗΤΚ θα πρέπει να κάνω τακτοποίηση της μετατόπισης του εσωτερικού ανοίγματος από την στιγμή που κάνω την διαδικασία για το άνοιγμα της περίπτωσης 3 (λοιπές παραβάσεις) που αναφέρω η απλά δεν το αναφέρω? Ευχαριστώ H ίδια δημοσίευση σε διαφορετικά θέματα και ενότητες του φόρουμ δεν επιτρέπεται. Παραμένει σε ισχύ μόνο η παρούσα. Διάβασε προσεκτικά τους κανόνες συμμετοχής στο φόρουμ. - akis73
- 
	Εξοικονομώ Αυτονομώmarkkeracete replied to jordank's θέμα in Εξοικονομώ - Αυτονομώ και Εξοικονομώ 2021 Για επιτοίχιου λέβητα αερίου για σύνδεση με το δίκτυο θεωρώ ότι έχει μια λογική. και επίσης λογική έχει και για εγκατάσταση επιτοιχιου λέβητα υγραερίου σε πολυκατοικία με συναίνεση από τους υπόλοιπους στην πολυκατοικία. Αν γνωρίζεται κάτι παραπάνω θα με βοηθούσαμε. σας ευχαριστώ εκ τον προτέρων. @katrmp@gsaraf
- 
	Εξοικονομώ Αυτονομώmarkkeracete replied to jordank's θέμα in Εξοικονομώ - Αυτονομώ και Εξοικονομώ 2021 Καλησπέρα συνάδελφοι. Ευχαριστω για τις απαντήσεις σας Απλα θα ήθελα να επισημάνω ότι είναι μονοκατοικία και είχε ως θέρμανση σόμπα πετρελαίου το οποίο δεν σας ανέφερα στο σχόλιο μου. Και σε αυτή την περίπτωση χρειάζεται; γιατι δεν αναφέρει κάπου για εγκατάσταση επιτοίχιων λέβητα υγραερίου κατηγορίας 0 ότι θέλει άδεια. @katrmp@gsaraf
- 
	Νέο τεχνικό υπόμνημα για υγραέριο κατηγορίας "Ο"markkeracete replied to GDplus's θέμα in Πυροπροστασία Καλησπέρα σας. Η περίπτωση θερμ/ης δώματος σε μονοκατοικία δηλώνεται στην ΕΕΜΚ? (ΔΕΝ ΕΧΕΙ ΙΚΡΙΩΜΑΤΑ) Και επίσης σε ΕΠΙΤΟΙΧΙΟ λέβητα υγραερίου σε μονοκατοικια χρειάζεται να δηλωθεί και αυτή η εργασία στην ΕΕΜΚ? η καλύπτεται απο κατηγορία 0? Ευχαριστώ
- 
	Καλησπέρα σας. Η περίπτωση θερμ/ης δώματος σε μονοκατοικία δηλώνεται στην ΕΕΜΚ? (ΔΕΝ ΕΧΕΙ ΙΚΡΙΩΜΑΤΑ) Και επίσης σε λέβητα υγραερίου χρειάζεται να δηλωθεί και αυτή η εργασία στην ΕΕΜΚ? η καλύπτεται απο κατηγορία 0? Ευχαριστώ
- 297 απαντήσεις
- 
	
		- μικρής κλίμακας
- άδεια
- 
					(and 3 more) 
					Με ετικέτα: 
 
 
- 
	Εξοικονομώ Αυτονομώmarkkeracete replied to jordank's θέμα in Εξοικονομώ - Αυτονομώ και Εξοικονομώ 2021 Καλησπέρα σας. Η περίπτωση θερμ/ης δώματος σε μονοκατοικία δηλώνεται στην ΕΕΜΚ? (ΔΕΝ ΕΧΕΙ ΙΚΡΙΩΜΑΤΑ) Και επίσης σε λέβητα υγραερίου χρειάζεται να δηλωθεί και αυτή η εργασία στην ΕΕΜΚ? η καλύπτεται απο κατηγορία 0? Ευχαριστώ
- 
	Εξοικονομώ Αυτονομώmarkkeracete replied to jordank's θέμα in Εξοικονομώ - Αυτονομώ και Εξοικονομώ 2021 Καλησπέρα σε όλους. Είναι η πρώτη φορά που γράφω και δεν ξέρω αν το έχω κάνει σωστά. Με συγχωρείτε εκ τον προτέρων. Θα ήθελα σε όποιον γνωρίζει να μου προσφέρει την βοήθεια του. Τα ερωτήματα μου ειναι 2 και ειναι τα εξής. Εχω περίπτωση μονοκατοικίας χωρίς συνιδιοκτήτες καθαρό από πολεοδομικής άποψης. και επίσης ως σύστημα θέρμανσης είχε σόμπα πετρελαίου. 1: Σε περίπτωση Θερμοπροσοψης στο προγραμμα Εξοικονομώ αυτονομω για την ΕΕΜΚ δηλώνουμε την εργασία για τον πίνακα 3 του ΙΚΑ για τα ένσημα ως θερμομονωτικές πλάκες + επιχρίσματα + χρωματισμοί; Και αναγκαστικά θα χρειαστεί να δηλωθούν ικρίωματα και χωρίς να χρειάζονται; 2: επίσης για την εγκατάσταση λέβητα υγραερίου με μπουκάλες χρειάζεται για την συγκεκριμένη εργασία ΕΕΜΚ η κάποια άλλη άδεια από την πολεοδομία; χρειαζεται κάποια μελέτη εγκατάστασης; Σας ευχαριστώ εκ τον προτέρων. Παρατήρηση Έχεις αναρτήσει το ίδιο ερώτημα άλλες 12 φορές σε διάφορες ενότητες. Να μη ξαναγίνει για να μη διαγραφούν όλα. Didonis
- 
	Ευχαριστώ ποκυ για την απάντηση. Και κάτι τελευταίο έγινε η αυτοψία όλα καλά! Για την κατεδάφιση η αμοιβή είναι 100 ευρώ κόβω απόδειξη 100 συν υο ΦΠΑ σύνολο 124 και αυτός βάζει στον λογαριασμό μου 124 ευρώ. Εγώ από εκεί και πέρα πληρώνω ΦΕμ η κάτι ανάλογο ως επιστροφή; Τι κάνω αφού πάρω τα χρήματα λοιπόν. Ευχαριστώ πολύ!
- 137 απαντήσεις
 
- 
	Συνάδελφοι καλημέρα! Θα ήθελα την βοήθεια σας. Με όρισαν ελεγκτή δόμησης σε έργο κατεδάφιση ισογείων με διατήρηση μεσοτοιχίας. Πρώτη φορά σε έλεγχο δόμησης και θα σας παρακαλούσα να μου πείτε τι πρέπει να προσέξω και τι θα πρέπει να ελέγξω και τι πρέπει να γράψω στο πόρισμα! Με όσα έχω δει πρέπει να δω αν το κατεδάφισαν και να τραβήξω φωτογραφίες! Πρέπει να δω επίσης και καποια σχέδια. Ποια είναι η διαδικασία. Σας ευχαριστώ πολύ!
- 137 απαντήσεις
 

 
                     
                     
                     
                     
                     
                     
                     
                     
                     
                     
                     
                     
                     
                     
                     
                     
                     
                     
                     
                     
                     
                     
                     
                     
                     
                     
                     
                     
					
						