Ιάμβλιχος Δημοσιεύτηκε January 22, 2011 at 09:21 μμ Δημοσιεύτηκε January 22, 2011 at 09:21 μμ Γιατί η βεράντα είναι αδύνατο να έχει πλάκα από πάνω ή να έχει σκεπή η οποία θα πατάει από τη μια στην πλάκα της εσοχής και από την αλλη όχι σε ξύλινα ή άλλα υποστηλώματα αλλά στα υποστυλώματα τα original που θα υψώνονται μέχρι το ανώτερο ύψος του κτίσματος? Ή αν μπορεί να συμβεί τέτοια περίπτωση τότε δε θα λέγεται βεράντα???? Τι ακριβώς σημαίνει βεράντα? Βεράντα π.χ. λέγεται το ''μπαλκόνι'' του ρετιρέ ή εσοχής του οποίου ο υποκείμενος χώρος είναι εντός κελύφους? Από πάνω τι? Αν συμβαίνει να έχει πλάκα από πάνω δεν ειναι εντός κελύφους οπότε και τακτοποιείται??
An_Archi Δημοσιεύτηκε January 22, 2011 at 09:33 μμ Δημοσιεύτηκε January 22, 2011 at 09:33 μμ Συνάδελφοι να ρωτήσω κατι? σε περίπτωση που τακτοποιήσω το υπογείο κατοικίας ,σε οικόπεδο που έχει υπόλοιπο δόμησης. Σε μελλοντική άδεια προσθήκης, τα τετραγωνικά της τακτοποίησης θα αφαιρεθούν απ την υπόλοιπη δόμηση?????όποιος ξέρει ας απαντήσει!ευχαριστώ πολύ! Μου έχει τύχει τακτοποίηση με υπόλοιπο δόμησης και όχι δεν υπολογίζεται σε μελλοντική άδεια προσθήκης αλλά θα το κοιτάξω για να σου πω που το αναφέρει εκτός και εάν με προλάβει άλλος συνάδελφος. εάν στην πραγματικότητα δεν έχει αλλάξει το περίγραμμα της οικοδομής μπορεί να τακτοποιηθεί εάν: η πλάκα που βρίσκεται στα 8,6μ έχει κατέβει π.χ. στα 7,5μ και έχει δημιουργηθεί χώρος σοφίτας; εάν τα ύψη των ορόφων έχουν αλλάξει κατά τέτοιο τρόπο ώστε να δημιουργηθεί επιπλέον χώρος στη σοφίτα; θα υπάρξει πρόβλημα κατά τον έλεγχο; Σας ευχαριστώ πολύ για το χρόνο σας... Εάν θεωρήσω πως όλα τα ύψη εξωτερικά έχουν τηρηθεί σύμφωνα με την Ο.Α.ώστε να μην υπάρχει υπέρβαση ύψους (οπότε δεν γίνεται τακτοποίηση γιατί σε τυχόν έλεγχο μπορέι να το δούνε ή το κάνεις με δικό σου ρίσκο) τότε εάν η τελευταία πλάκα ή όλοι οι όροφοι γενικότερα έχουν αλλάξει ύψος για να δημιουργηθεί περισσότερος χώρος για σοφίτα ναι τακτοποιείται.
ΑΡΗΣ ΧΑΝΙΑ Δημοσιεύτηκε January 22, 2011 at 10:43 μμ Δημοσιεύτηκε January 22, 2011 at 10:43 μμ Μου έχει τύχει τακτοποίηση με υπόλοιπο δόμησης και όχι δεν υπολογίζεται σε μελλοντική άδεια προσθήκης αλλά θα το κοιτάξω για να σου πω που το αναφέρει εκτός και εάν με προλάβει άλλος συνάδελφος. Όταν υπάρχει υπόλοιπο δόμησης τότε πας για νομιμοποίηση
KiriakosCE Δημοσιεύτηκε January 22, 2011 at 11:42 μμ Δημοσιεύτηκε January 22, 2011 at 11:42 μμ Γιατί η βεράντα είναι αδύνατο να έχει πλάκα από πάνω ή να έχει σκεπή η οποία θα πατάει από τη μια στην πλάκα της εσοχής και από την αλλη όχι σε ξύλινα ή άλλα υποστηλώματα αλλά στα υποστυλώματα τα original που θα υψώνονται μέχρι το ανώτερο ύψος του κτίσματος? Ή αν μπορεί να συμβεί τέτοια περίπτωση τότε δε θα λέγεται βεράντα???? Τι ακριβώς σημαίνει βεράντα? Βεράντα π.χ. λέγεται το ''μπαλκόνι'' του ρετιρέ ή εσοχής του οποίου ο υποκείμενος χώρος είναι εντός κελύφους? Από πάνω τι? Αν συμβαίνει να έχει πλάκα από πάνω δεν ειναι εντός κελύφους οπότε και τακτοποιείται?? -Αν και χαθηκα λίγο... έχεις δίκιο ότι βεράντα είναι ένας γενικός ορισμός και καλό είναι να είμαστε συγκεκριμένοι... Για να μη μπλέξουμε στο τι είναι βεράντα, λοιπόν ας αναφέρουμε ότι λέει ο νόμος: πρέπει ο χώρος να βρίσκεται μέσα στο περίγραμμα του εγκεκριμένου όγκου νομίμως υφιστάμενου κτιρίου και ότι δεν ρυθμίζεται καμία παράβαση έξω από τον όγκο αυτό, όπως δώματα, κλεισμένα μπαλκόνια, πέργκολες κλπ ( τα οποία βρίσκονται εκτός του ιδεατού στερεού και του νομίμου ύψους του κτιρίου) Άρα υποθέτω θα πρέπει να ελέγξεις αν έχει προσμετρηθεί στον όγκο ο χώρος αυτός.
karakd Δημοσιεύτηκε January 22, 2011 at 11:58 μμ Δημοσιεύτηκε January 22, 2011 at 11:58 μμ αν έχω έναν Η.Χ. Κι ένα χώρο στάθμευσης που ενσωματονονται σε ένα διαμέρισμα, υποβάλω 1 ή 2 φακέλους στη πολεοδομία;
KiriakosCE Δημοσιεύτηκε January 23, 2011 at 12:10 πμ Δημοσιεύτηκε January 23, 2011 at 12:10 πμ αν έχω έναν Η.Χ. Κι ένα χώρο στάθμευσης που ενσωματονονται σε ένα διαμέρισμα, υποβάλω 1 ή 2 φακέλους στη πολεοδομία; Όταν λες έχω χώρο στάθμευσης εννοείς ότι τον έχεις κλείσει ας πούμε στη pilotis και απλά ότι ο χώρος αυτός ανήκει στο διαμέρισμα όπου επίσης έχει έναν κλεισμένο Η/Χ?
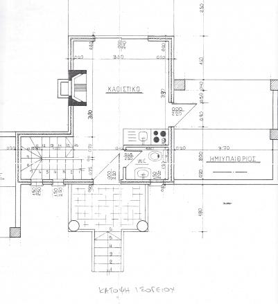
Ιάμβλιχος Δημοσιεύτηκε January 23, 2011 at 12:40 πμ Δημοσιεύτηκε January 23, 2011 at 12:40 πμ Λογικά μπορείς είτε 1, είτε 2 φακέκους να κάνεις. Δες πόσα τετραγωνικά είναι ο κάθε χώρος, τι τιμή ζώνης έχει, με τι συντελεστή πολλαπλασιάζεις σε κάθε περίπτωση και τι τελικά συμφέρει τον ιδιοκτήτη, ώστε να συμφωνήσει. Αν συμφέρον ιδιοκτήτη και ταχτοποιητή δεν συντρέχουν τότε θα κάνεις 1 φάκελο Έτσι λέω. Στην παρακάτω περίπτωση τι θα τακτοποιούσατε? Σε εκτός σχεδίου Στο ισόγειο η/χ 1,60 x 3,70 σύμφωνα με το διάγραμμα κάλυψης (μάλλον είναι λίγο παραπάνω και το βάλαν έτσι ώστε να βγει, επειδή πρέπει η μέγιστη καλυπτόμενη επιφάνεια στο ισόγειο:150,0 μ2). πάνω ακριβώς από τον η/χ στον όροφο υπάρχει μπάλκόνι το υπόλοιπο όμως περγκολα. Στο άλλο τμήμα του ορόφου μία λωρίδα η/χ 0,50 x 3,60 και το υπόλοιπο χαρακτηρισμένο βεράντα. Στο ισόγειο δηλαδή έχει κλειστεί όχι το 1,60χ3,60 αλλά το 3,80χ 3,70. Και στον όροφο έχει κλειστεί η λωρίδα η/χ και η βεράντα, που από πάνω λέει έχει στέγη. Το θέμα είναι τι τακτοποιώ. Μήπως πρέπει να δω κάτοψη στέγης, μέχρι πού είναι η στέγη σύμφωνα με Ο.Α.? οπότε σίγουρα? μέχρι εκεί που είναι θα πατάει σε πλάκα και έτσι να βρω μέχρι πού έχει πλάκα και θα θεωρήσω κέλυφος-περίγραμμα -στερεό.Από διαγραμμα κάλυψης πάντως δε βγαίνει άκρη. Η σχηματική τομή αν είναι σωστή μπορεί να βοηθήσει?
soundholics Δημοσιεύτηκε January 23, 2011 at 02:37 πμ Δημοσιεύτηκε January 23, 2011 at 02:37 πμ Όταν υπάρχει υπόλοιπο δόμησης τότε πας για νομιμοποίηση Δεν ισχύει κάτι τέτοιο πουθενά και καλό είναι να μην το αναφέρουμε και μπερδευουμε τους συναδέλφους. Είτε έχεις Είτε δεν έχεις υπόλοιπο δόμησης, αν ο χώρος σου εντάσσεται στις περιπτώσεις προς τακτοποίηση, τότε τακτοποιειται κανονικά, και όχι ο τακτοποιημενος χώρος δεν μέτρα σε μελλοντική δόμηση. Έχει επίσης, απαντηθεί με εγκύκλιο. αν έχω έναν Η.Χ. Κι ένα χώρο στάθμευσης που ενσωματονονται σε ένα διαμέρισμα, υποβάλω 1 ή 2 φακέλους στη πολεοδομία; Συναδελφε, αν βλέπεις ότι είναι ένας χώρος, τότε ένα φάκελο (με 2 παράβολα 250+350). Αν στην πραγματικότητα είναι 2 ανεξάρτητοι και αυτονομοι χώροι τότε δυο φακελοι ... Τονίζω ότι είμαστε οι μοναδικοί που μεσολαβουμε ανάμεσα στην αυθαιρεσία (και ασυδοσία) των ιδιοκτητών και το κράτος (με το θεοστρβο νομικό πλαίσιο). Ας αντιμετωπίσουμε την δουλειά μας με ευσυνειδησία και υπευθυνότητα. Ο,τι βλέπουμε, γράφουμε. Συγνώμη για τα συνεχόμενα posts, χρησιμοποιώ ένα browser, που δεν μπρω να κάνω αλλιώς. Ιαμβλιχε φοβάμαι ότι δεν μπορείς να κανείς πολλά πράγματα. Ξανατσεκαρε το διάγραμμα κάλυψης. Αν όντως είναι μόνο έτσι οι Η.Χ., οι βεραντες και η περγολα, τότε τακτοποιούνται μόνο οι Η.Χ. Τα υπόλοιπα όχι, ακόμη και αν τυποις ανήκουν στο κτιριακό περίγραμμα. Πρόκειται περί εξώστη-εσοχη και κατα την γνώμη μου δεν τακτοποιειται.
Directionless Δημοσιεύτηκε January 23, 2011 at 09:08 πμ Δημοσιεύτηκε January 23, 2011 at 09:08 πμ Δεν ισχύει κάτι τέτοιο πουθενά και καλό είναι να μην το αναφέρουμε και μπερδευουμε τους συναδέλφους. Είτε έχεις Είτε δεν έχεις υπόλοιπο δόμησης, αν ο χώρος σου εντάσσεται στις περιπτώσεις προς τακτοποίηση, τότε τακτοποιειται κανονικά, και όχι ο τακτοποιημενος χώρος δεν μέτρα σε μελλοντική δόμηση. Έχει επίσης, απαντηθεί με εγκύκλιο. @Soundholics : Ποια εγκύκλιος είναι αυτή και σε ποιο σημείο (παράγραφο) ακριβώς αναγράφεται ;
ΑΡΗΣ ΧΑΝΙΑ Δημοσιεύτηκε January 23, 2011 at 09:45 πμ Δημοσιεύτηκε January 23, 2011 at 09:45 πμ Δεν ισχύει κάτι τέτοιο πουθενά και καλό είναι να μην το αναφέρουμε και μπερδευουμε τους συναδέλφους. Είτε έχεις Είτε δεν έχεις υπόλοιπο δόμησης, αν ο χώρος σου εντάσσεται στις περιπτώσεις προς τακτοποίηση, τότε τακτοποιειται κανονικά, και όχι ο τακτοποιημενος χώρος δεν μέτρα σε μελλοντική δόμηση. Έχει επίσης, απαντηθεί με εγκύκλιο. Δεν μας ανεβάζεις την εγκύκλιο? Εγώ γνωρίζω τα αντίθετα Τα έχω πει ξανά. Η ΔΟΚ προφορικά απαντάει αυτό που είπα. Έχει πει ότι θα στείλει και γραπτά σε λίγες μέρες παρόλο που υπάρχει ερώτημα από Αύγουστο και δεν έχει απαντήσει
Recommended Posts
Δημιουργήστε ένα λογαριασμό ή συνδεθείτε προκειμένου να αφήσετε κάποιο σχόλιο
Πρέπει να είστε μέλος για να μπορέσετε να αφήσετε κάποιο σχόλιο
Δημιουργία λογαριασμού
Κάντε μια δωρεάν εγγραφή στην κοινότητά μας. Είναι εύκολο!
Εγγραφή νέου λογαριασμούΣύνδεση
Εάν έχετε ήδη λογαριασμό; Συνδεθείτε εδώ.
Συνδεθείτε τώρα