Inzaghi Δημοσιεύτηκε February 6, 2014 at 10:58 μμ Δημοσιεύτηκε February 6, 2014 at 10:58 μμ Απλως ο katrmp με εβαλε σε σκεψεις ως προς το παχος του τοιχου. Με δυο 6αρες γλωσσες, θεωρητικα παντοτε, βγαινει το απαιτουμενο παχος στην τοιχοποιια Στα μπετα δε βγαινει με τιποτα...
Sw0rdf1sh Δημοσιεύτηκε February 6, 2014 at 11:00 μμ Δημοσιεύτηκε February 6, 2014 at 11:00 μμ (edited) Το 10άρι μονωτικό (τουλάχιστον αυτή τη στρώση) πρέπει να είσαι σίγουρος οτι το έχει για να πάρεις εκείνο το U της μελέτης. Ειδικά με τέτοιο λ. Δεν θα πάρεις σίγουρα λοιπόν εκείνο το 0.3 της μελέτης αν δεν προκύπτει η 10άρα μόνωση. Όπως το λες υπάρχει περίπτωση 10άρας χωρίς να είναι πολύ πιθανό όμως. Υπάρχει πάντα η επιλογή να υπολογίσεις (στο περίπου για να έχεις μια εικόνα, μια δικέλυφη τοιχοποιία με 1-2εκ επίχρισμα, 6-9άρια τούβλα και όσο μονωτικό μπορεί να έχει) με το πάχος του τοίχου να βγαίνει όσο μετράς για να έχεις μια εικόνα. Νομίζω για 25άρι τοίχο ακόμα και τη μισή μόνωση να έχει βάλει είσαι πολύ κοντά στο όριο του ΚΘΚ. Επειδή η άδεια είναι το 2006 μπορείς να κάνεις αυτό που λέει ο katrmp ώστε σίγουρα να μην βάλεις αυτό το 0.3 με το οποίο μπορεί να έχεις πρόβλημα σε έλεγχο. Και να τον αδικήσεις έχει ρίσκο γιατί θα φαίνεται πως δεν έχει τηρήσει τον ΚΘΚ. Ο ιδιοκτήτης τι λέει; Ξέρει; Αυτός την πλήρωσε τη μόνωση. Πολλές φορές αυτό είναι σίγουρη πηγή δεδομένων Μοιάζει πάντως με περίπτωση που έχει μονώσει εκτός από κάποια σημεία (δοκάρια πχ). Edited February 6, 2014 at 11:01 μμ by Sw0rdf1sh
Inzaghi Δημοσιεύτηκε February 6, 2014 at 11:42 μμ Δημοσιεύτηκε February 6, 2014 at 11:42 μμ Ο ιδιοκτητης ειναι ο εργολαβος... Τα στοιχεια μου τα εδωσε ολα. Κομματακι δυσκολο να ισχυριστω πως λειπει η ΜΘ γιατι απλα βρισκεται στα χερια του ιδιοκτητη. Μου την εδωσε. Δεν εχει σημασια για μενα να λαβω πληροφοριες απο τον εργολαβο γιατι δεν εχουν καμια υποσταση ως ισχυρισμος σε περιπτωση ελεγχου... Θεωρω πως στα σκυροδεματα, που η μονωση μου δινει 34εκ παχος δομικου στοιχειου για μονωση 20αρας δοκου ειναι εκτος πραγματικοτητας, δεδομενου πως μετρω 33εκ για μονωση 25αρας δοκου και τοιχειου... Εκει αμφισβητω ξεκαθαρα... Τωρα στα τουβλα, κολωνω στην αμβισβητηση, γιατι με 6αρια τουβλα και 10αρα μονωση, μου βγαζει ακριβως το παχος του τοιχου που μετρησα, οποτε λεω να αμφισβητησω με μοναδιαιο συντελεστη τη ΜΘ ως προς τα μπετα και στην τοιχοποιια να τα αφησω μονωμενα οπως η μελετη. Γενικα τα μεγιστα κατα ΚΘΚ αποφευγω να τα λαβω, εκτος κι αν πραγματικα δεν εχω στα χερια μου τη ΜΘ και ξερω πως απωλεσθη (μου χει τυχει) Σε διαφορετικη περιπτωση, ο κανονισμος ειναι σαφης. Αν υπαρχει κατατεθειμενη ΜΘ και υπογεγραμμενη απο μηχανικο, λαμβανουμε στοιχεια απο αυτην και μονο. Μονο αν εχειο απωλεσθει παιρνεις τα μεγιστα. Οχι οταν δεν την εχεις εσυ στα χερια σου...
ikaros13 Δημοσιεύτηκε February 6, 2014 at 11:49 μμ Δημοσιεύτηκε February 6, 2014 at 11:49 μμ Δεν τίθεται θέμα 0,7 σεντόνι καθώς, έχεις στα χέρια σου την ΜΘ. Οπότε ή την αμφισβητείς ή πας με αυτήν. Στην περίπτωσή σου και κατά τα γραφόμενα και τις μετρήσεις σου, ίσως το καλύτερο είναι να πάρεις από μελέτη τα τούβλα και τα μπετά ανεπαρκώς μονωμένα. Είσαι δικαιολογημένος και πιστεύω σωστός... 1
Sw0rdf1sh Δημοσιεύτηκε February 7, 2014 at 12:28 πμ Δημοσιεύτηκε February 7, 2014 at 12:28 πμ Το θέτω το ερώτημα γενικά καθώς με απασχολεί και μένα. Αν υπάρχει η μελέτη ΚΘΚ το να πάρεις τα Umax κατά ΚΘΚ σημαίνει απαραίτητα πως αμφισβητείς την μελέτη ή την εφαρμογή του ΚΘΚ; Δηλαδή όσα πιστοποιητικά βγήκαν την περίοδο του ΚΘΚ ανέτρεξε ο μηχανικός στην πολεοδομία για την μελέτη και μόνο όταν του απάντησαν (τηρώντας τα όρια της νομοθεσίας οι υπηρεσίες) πως δεν την έχουμε ή χάθηκε η μελέτη πήρε το Umax του ΚΘΚ ή του ΚΕΝΑΚ; Ξέρουμε ακριβώς τι λέει η ΤΟΤΕΕ-1 στη σελίδα 49,50 αλλά το Kmax κατά ΚΘΚ δεν σημαίνει πως τήρησε τον κανονισμό για τα δομικά στοιχεία; Την μελέτη ο άνθρωπος εδώ την αμφισβητεί πανεύκολα αν θέλει χωρίς πρόβλημα. Αναφέρει η τοτεε στη σελ. 49 ποια 4 θεωρούνται αποδεικτικά για την ισχύ της μελέτης (εδώ ο Inzaghi έχει λ=0.028) και πολλές φορές είναι πολύ δύσκολο να βρεθούν ή να γίνουν αυτά. Επίσης και μόνο με το 1 που δεν του βγαίνει μπορεί να πει οτι δεν ισχύει.
Inzaghi Δημοσιεύτηκε February 7, 2014 at 12:53 πμ Δημοσιεύτηκε February 7, 2014 at 12:53 πμ Οχι, εδω πεφτεις σε μια παγιδα. Δεν ειμαστε υποχρεωμενοι να αποδειξουμε οτι εφαρμοστηκε η ΜΘ Τουναντιον, ειμαστε υποχρεωμενοι να αποδειξουμε τη μη ορθη εφαρμογη της οταν την αμφισβητησουμε Δεν ειναι υποχρεωμενος να φερει ο ιδιοκτητης στοιχεια για να τη θεωρησω σωστη. Αυτο γινεται σε περιπτωσεις αμονωτων στοιχειων που μονωθηκαν εκ των υστερων η για να ισχυριστουμε οτι τοποθετηθηκαν υλικα με καλυτερα θερμοφυσικα χαρακτηριστικα. Γενικα η αμφισβητηση της ΜΘ σηκωνει πολυ μεγαλη συζητηση.... α. Αμφισβητεις ολη τη μελετη με ολους τους συντελεστες, αν κατι δε σου καθησει η αμφισβητεις μονο τον επιμερους συντελεστη? Η μη εφαρμογη ενος συντελεστη, διαταρασσει τηξν ομαλοτητα της μελετης και φυσιολογικα στον τελικο ελεγχο δε θα σου βγει β. Αμφισβητεις τη μελετη αν εχεις αυξηση θερμαινομενου ογκου του διαμερισματος (πχ με κλεισιμο Η/Χ)? Μεταβαλλεται το τελικο αποτελεσμα και παλι ο ελεγχος μπορει να μη σου βγει... γ. Αμρβσιητεις τη ΜΘ αν δε σου βγαινει το παχος? Κι αν χρησιμοποιηθηκαν μικροτερες γλωσσες? Κι ας χρησιμοποιηθηκε θερμομπλοκ? Κι αν χρησιμοποιηθηκε θερμομονωτικο τουβλο? Κανεις δεν ξερει... δ. Αμφισβητεις τη ΜΘ αν το παχος του ΦΟ βγαινει μικροτερο απο αυτο που θα επρεπε για την τοποθετηση του μελετηθεντος παχους μονωσης? Κι αν κατασκευαστηκε δοκος η τοιχειο με μικροτερο παχος? Θα βασιστεις στο δοντι που κανει (η δεν κανει) με το τουβλο κατω για να το στηριξεις? ε. Αμφισβητεις τη ΜΘ αν εχεις διαμπερη τρυπα κατα την αυτοψια σε καποιο σημειο και δεν προκυψει μονωση? Κι αν ειναι κατι τοπικο? Γενικα προκυπτουν ερωτηματα, γι αυτο πλην κραυγαλεων περιπτωσεων, δεν την αμφισβητω. Ολοι ξερουμε τι κατασκευαστηκε, το θεμα ειναι οτι απαξ και δε μπορεσεις να το τεκμηριωσεις, τα νωτα σου φυλαγμενα δε θα τα εχεις... Οποτε μεχρι να μου επιτρεψουν με καποιον τροπο να αμφισβητησω πιο ευκολα και ελαστικα τη ΜΘ για να εμφανισω πιο αντικειμενικα αποτελεσματα και κοντα στην πραγματικοτητα, εγω θα τις λαμβανω υποψιν μου, δυστυχως,,,,' Στην προκειμενη περιπτωση, εχω κραυγαλεες περιπτωσεις...
Inzaghi Δημοσιεύτηκε February 7, 2014 at 09:11 πμ Δημοσιεύτηκε February 7, 2014 at 09:11 πμ Παραθετω τα αποτελεσματα δυο δοκιμων που διενηργησα α. Με αμφισβητηση των σκυροδεματων και ληψη U απο τη ΜΘ β. Χωρις ουδεμια αμφισβητηση της ΜΘ Ολως περιεργως, εμεινα και στις 2 περιπτωσεις στο Δ με τη διαφορα να βρισκεται στα 55 Kwh/m2 αναμεσα στα σεναρια, αλλα να μη μου αλλαζει κατηγορια... Βλεπετε η υπερδιαστασιολογηση μου το καταρρακωσε το κτηριο.... Περιμενα πιο δυνατη διαφορα.... Υπο αυτο το πρισμα, ισως και να μην αμφισβητουσα κανενα συντελεστη, για την ασφαλεια μου... 1
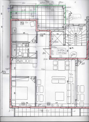
Inzaghi Δημοσιεύτηκε March 14, 2014 at 06:02 μμ Δημοσιεύτηκε March 14, 2014 at 06:02 μμ Συναδελφοι τα φωτα σας Θα ηθελα γνωμες για το πως αντιμετωπιζεται αυτη η κατασταση. Επισυναπτω σχεδιο Με την κοκκινη γραμμη ειναι το πλαισιο της θερμομονωμενης επιφανειας βασει μελετης θερμομονωσης Με την πρασινη γραμμη ειναι το πλαισιο της επιφανειας μετα την καταληψη των Η/Χ Σημειωνω οτι η πλευρα Β ειναι μετρημενη 14εκ οποτε ειναι εκ πρωιμιου αμονωτη de facto Ειναι συνεχεια του εσωτερικου διαχωριστικου τοιχου των 2 δωματιων Ο τοιχος Α ειναι 27εκ, τον θεωρω μονωμενο συμφωνα με τη ΜΘ (προβλεπονται δυο 9αρες γλωσσες, 8εκ μονωσης και 2+2 σοβας, συνολο 30εκ αλλα με μικροτερης διατομης γλωσσες βγαινει) Ο τοιχος Γ ειναι 28εκ, οποτε κατ απολυτη αντιστοιχια τον θεωρω επισης μονωμενο συμφωνα με τη ΜΘ Το κομματι Δ ειναι ΟΛΟ σκυροδεμα βασει ξυλοτυπων και εχει παχος 31εκ. (το 25εκ το εγραψα εκ παραδρομης). Δεδομενου οτι για 25αρι παχος σκυροδεματος η ΜΘ μου δινει 4εκ μονωσης, πρακτικα δε βγαινει, οποτε ειμαι σε θεση να αμφισβητησω (1+1εκ σοβα δεν παιζει να μπηκε, απο την αλλη, απο το χτυπημα και μονο ειμαι μονωμενο το δομικο στοιχειο, δεν παιζει να το βαλω αμονωτο τελειως) Και παμε στο καλυτερο κομματι τωρα... Η μελέτη θερμομονωσης προεβλεπε μονωση και των εσωτερικων διαχωριστικων τοιχων με τα κοινοχρηστα και οχι του κλιμακοστασιου περιμετρικα. Θα ακολουθησω την ιδια οδευση και τωρα, θεωρωντας μονωμενα τα τμηματα Ε και Ζ που δε μπορουσα λογω χωροθετησης να μετρησω παχη? Το τοιχειο Η ειναι 25αρι και το μετρησα 32εκ με το παχος της οπτοπλινθοδομης στην εισοδο να ειναι 23εκ Τελος το τοιχειο Ι που ειναι διαμηκες στην εισοδο ειναι ολο απο σκυροδεμα, ειναι παχους 25εκ στον ξυλοτυπο και μετρω 34εκ παχους αλλα απο το χτυπο δεν καταλαβα μονωση εκει. Το παχος θα μπορουσε να μου το δειχνει μονωμενο. Και ερωτω: Μηπως λογωγ καταληψης Η/Χ θα ηταν καλυτερα να αλλαξουμε την οδευση της Μθ περιμετρικα απο οτι εντος του κελυφους? Μηπως λογω παχους του τοιχειου Ι (34εκ οσα και στη ΜΘ δηλαδη) να θεωρουσα την οδευση εντος των κοινοχρηστων? Και αν ναι, τοτε τι θα κανατε με τα τμηματα Ε και Ζ που δε συμπεριλαμβανοντουσαν στη ΜΘ? Γενικα ειμαι λιγο χαμενος ως προς το πως θα αντιμετωπισω αυτο το διαμερισμα. θα ηθελα να ακουσω τις αποψεις σας, απλα θα παρακαλουσα αποψεις του τυπου "ε ενταξει, ξερουμε καλα οτι αυτα δε μονωνοντουσαν" η "σιγα μην εβαλε τοση μονωση εκει" να εκλειψουν. Θα ηθελα να ακουσω αποψεις που να στηριζονται καπου. Ευχαριστω και συγνωμη για το μακροσκελες του μηνυματος
tetris Δημοσιεύτηκε March 14, 2014 at 06:25 μμ Δημοσιεύτηκε March 14, 2014 at 06:25 μμ Δεν είναι τόσο δύσκολο: 1. Για τους εξωτ. τοίχους, κι επειδή τα 2+2 εκ. σοβάς είναι η ιδανική περίπτωση, θεώρησε ότι για λόγους κανονισμών (πλέον το 6ρι απαγορεύεται δια ροπάλου σε σεισμογενείς περιοχές) η τοιχοποιία έχει τα πάχη της μ.θ., αυτό που υπολείπεται είναι το πάχος της θερμομόνωσης. 2. Στα σκυροδέματα (και ειδικά στα φρεάτια του ασανσέρ), ο σοβάς είναι >2εκ., συνεπώς το συγκεκριμένο είναι αμόνωτο (όπως προφανώς και ο υπόλοιπος φ.ο.) 3. Τα Ε & Ζ για ποιο λόγο να είναι μονωμένα? Από τη στιγμή μάλιστα που δεν περιλαμβάνονται στη μ.θ.. 4. Ο λόγος που ο σοβάς στο ασανσέρ είναι >2 εκ (μερικές φορές φτάνει εσωτερικά και τα 5 εκ) είναι ότι λόγω μεγάλου ύψους είναι αδύνατο να επιτευχθεί τέλεια κατακορυφότητα. Για να τοποθετηθούν όμως οι οδηγοί της καμπίνας, θα πρέπει ο σοβάς να είναι σχεδόν απόλυτα κατακόρυφος. 2
Inzaghi Δημοσιεύτηκε March 14, 2014 at 06:59 μμ Δημοσιεύτηκε March 14, 2014 at 06:59 μμ Εχω καποιες ενστασεις. 1. Δε σκοπευω να αμφισβητησω τη ΜΘ στους εξωτερικους τοιχους επειδη η ΜΘ μου δινει 30εκ κι εγω μετρω 27 η 28 κατα τοπους. Ειναι απειροελαχιστη η διαφορα. Παει αυτο. 2. Εδω που ακριβως αναφερεσαι? Γιατι το Δ το οτι εχει μονωση ειναι δεδομενο. Ο ΦΟ επισης ειναι μονωμενος (αδεια του 2001 ειναι). Και μονο απο χτυπημα γινεται αντιληπτος ο διαφορετικος ηχος. 3. Τα Ε και Ζ ειναι αμονωτα, μιας και στη ΜΘ δε συμπεριλαμβανονται, συμφωνουμε εδω. 4. Αυτο με το σοβα στα ασανσερ δεν το ηξερα, ομως απο τη στιγμη που το τοιχειο του ασανσερ με το δινει η ΜΘ 34εκ και εγω το μετρω 32εκ, δε βλεπω λογο να την αμφισβητησω, ειδικα απο τη στιγμη που και η ιδια η ΜΘ μονωνει τα διαμερισματα μονο και οχι και το κουβουκλιο του κλιμακοστασιου, περιμετρικα δηλαδη. Κατ απολυτη αντιστοιχια και το τοιχειο Ι. Στον ξυλοτυπο ειναι 25εκ και μετρημενος 34εκ, 9εκ διαφορας, οσο και στη ΜΘ. Και παλι δε βρισκω βαση να αμφισβητησω ΜΘ σε εκεινο το σημειο. Γενικα, οπως καταλαβες, για να αμφισβητησω τη ΜΘ θελω να εχω στοιχεια χειροπιαστα στα χερια μου. Και σιγουρα μια δοαφορα της ταξεως των 1-2εκ δεν ειναι η χειροπιαστη αποδειξη που ζηταω....
Recommended Posts
Δημιουργήστε ένα λογαριασμό ή συνδεθείτε προκειμένου να αφήσετε κάποιο σχόλιο
Πρέπει να είστε μέλος για να μπορέσετε να αφήσετε κάποιο σχόλιο
Δημιουργία λογαριασμού
Κάντε μια δωρεάν εγγραφή στην κοινότητά μας. Είναι εύκολο!
Εγγραφή νέου λογαριασμούΣύνδεση
Εάν έχετε ήδη λογαριασμό; Συνδεθείτε εδώ.
Συνδεθείτε τώρα