ma7pon1
Members-
Περιεχόμενα
32 -
Εντάχθηκε
-
Τελευταία επίσκεψη
Τύπος περιεχομένου
Profiles
Φόρουμ
Downloads
Gallery
Ειδήσεις
Media Demo
Αγγελίες
Store
Everything posted by ma7pon1
-
Συνάδελφοι καλημέρα. Μήπως ξέρει κάποιος πως υπολογίζονται τα ένσημα για αποθήκη 35τμ; όχι επαγγελματική ούτε αγροτική, απλά ένας χώρος ξεχωριστός (λιθόχτιστος, αν βοηθάει) μέσα στο οικόπεδο για να βάζει διάφορα πράγματα ο πελάτης μου. Με λίγα λόγια κλασσική αποθήκη του χωριού. Στον πίνακα 1 δεν υπάρχει κάποια διακριτή τιμή. Το 1,35 της πρώτης γραμμής μου φαίνεται κάπως μπόλικο για αποθηκη. Παίζουν κάποιο ρόλο τα τετραγωνικά στο συντελεστή που θα επιλέξω; Ευχαριστώ πολύ!
-
Σαφώς και δεν υποβιβάζω το εκτός οικοπέδου. Απλά δεν έχω αποφασίσει ακόμα. Ίσως τελικά τροποποιήσω το όριο και να πάρω το τμήμα του γειτονικού οικοπέδου που πατάει το σπίτι του πελάτη μου λόγω χρησικτησίας. Προσπαθώ να πείσω τον εαυτό μου αλλά δεν είναι και ευκολο... Στην άδεια προσθήκης ολόκληρο το κτίριο φαινόταν μετακινημένο για να είναι εντός οικοπέδου. Παρόλ' αυτά συνεχιζε να είναι και εντός Δ!!! Ο μηχανικός είχε ρώτησει μόνο για το τμήμα εντός Δ (το εκτός οικοπέδου δε φαινόταν αφού το είχε μετακινήσει) και του είπαν ότι συνεχίζεις την άδεια κανονικά, αφού και στην πρώτη άδεια μετά την αναθεώρηση φαινόταν πάλι εντός Δ το κτίριο
- 1.410 απαντήσεις
-
- υπερβάσεις
- δόμηση
-
(and 2 more)
Με ετικέτα:
-
Όχι δεν αναφέρομαι στον μειωτικό συντελεστή (αυτό το εχω αποφασίσει, θα μπει σαν κύριος χώρος). Αναφέρομαι στο τμήμα που βρίσκεται εντός Δ. Θα βάλω παράβαση πλαγίων αποστάσεων ή όχι (αφού οι απο κάτω όροφοι, παρόλο που βρίσκονται εντός Δ, έχουν κανονικά άδεια);
- 1.410 απαντήσεις
-
- υπερβάσεις
- δόμηση
-
(and 2 more)
Με ετικέτα:
-
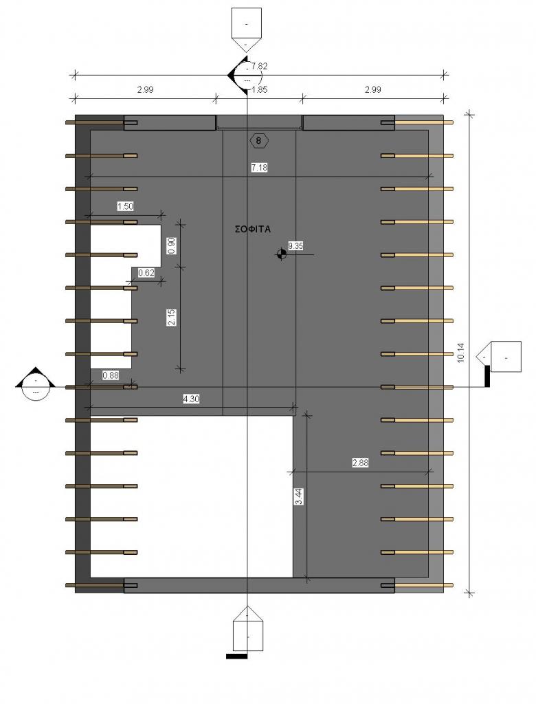
Aς τα πάρουμε ένα ένα για να μην μπερδευόμαστε... 1)Όσον αφορά το τμήμα εκτός οικοπέδου: Το κτίριο εξ' αρχής χτίστηκε λίγο εκτός οικοπέδου λόγω των υπερβάσεων δόμησης, λόγω λάθος τοπογραφικού και λόγω γενικά πολλών παραγόντων που δεν έχουν ιδιαίτερη σημασία. Στη δεύτερη άδεια, ο μηχανικός μετακίνησε λίγο το κτίριο απλα και μόνο για να φαίνεται εντός του οικοπέδου. Εγώ δεν θέλω να συνεχίσω την παρανομία και θέλω να παρουσιάσω το κτίριο όπως είναι σωστά. Οι επιλογές που έχω μετά από διάφορες συζητήσεις ειναι οι εξής: α) να δείξω στο τοπογραφικό ότι το οικόπεδο "ακολουθεί" το κτίριο καθώς έχει παρέλθει 20ετία από τη στιγμή που κτίστηκε και πληρεί τις προϋποθέσεις χρησικτησίας (αυτή η λύση δε μου φαίνεται πολλή "ηθική"). β)να δείξω το κτίριο κανονικά εκτός οικοπέδου όπως είναι στην πραγματικότητα και να μην τακτοποιήσω εκείνο το τμήμα. Δεν έχω αποφασίσει ακόμα ποιον δρόμο θ' ακολουθήσω αλλά προς το παρόν είπα τον πελάτη να ζητήσει καμια συμβουλή από συμβολαιογράφο ή δικηγόρο. 2)Όσον αφορά το Δ.... Η αρχική άδεια βγήκε μ' ένα τοπογραφικό το οποίο έδειχνε το κτίριο να εφάπτεται σ' όλες τις πλευρές του οικοπέδου. Στην αναθεώρηση έγινε διόρθωση του τοπογραφικού (διορθώθηκε το οικόπεδο) και δείχνει το κτίριο κολλημένο στο όριο από τη μία πλευρά, ενώ από την άλλη το δείχνει εντός του Δ=2,5μ. Παρόλ' αυτά, το έργο συνεχίστηκε κανονικά. Στη δεύτερη άδεια (προσθήκη καθ' ύψος), ο μηχανικός ρώτησε την πολεοδομία αλλά του είπαν πως από τη στιγμή που βγήκε άδεια για τον κάτω όροφο κανονικά, τότε δεν υπάρχει πρόβλημα για τα από πάνω. Έχουμε δηλαδή τμήμα του κτιρίου εντός του Δ, το οποίο όμως έχει κανονικά άδεια!!! Η ερώτησή μου είναι η εξής: Για τη "σοφίτα" η οποία δεν έχει άδεια, να χρεώσω παράβαση πλαγίων αποστάσεων ή όχι; (εφόσον βρίσκεται πάνω από τμήμα κτιρίου εντός Δ το οποίο θεωρείται νόμιμο καθώς έχει άδεια). Σημείωση: Θεωρείστε τα δύο παραπάνω (το εκτός οικοπέδου και το εντός Δ) ως διαφορετικά θέματα προς συζήτηση!!!
- 1.410 απαντήσεις
-
- υπερβάσεις
- δόμηση
-
(and 2 more)
Με ετικέτα:
-
Για τα 3 πρώτα είμαστε ΟΚ τα καταλάβα. Όσον αφορά το 4ο να σου εξηγήσω ακριβώς: Η πρώτη άδεια βγήκε με λάθος τοπογραφικό αρχικά και σε ενημέρωση φακέλου αργότερα το διόρθωσαν αλλά το κτίριο έπεφτε εντός Δ. Παρόλ' αυτά, συνέχισαν την κατασκευή. Στη δεύτερη άδεια, ο δεύτερος μηχανικός "πάτησε" πάνω στην πρώτη άδεια αλλά μετακίνησε το κτίριο σε κάποια απόσταση για να φαίνεται εντός του οικοπέδου, καθώς με τις υπερβάσεις "πατούσε" λίγο σε άλλο οικόπεδο. Αυτό το ξέρω γιατί συμμετείχα στην αποτύπωση όταν έγινε ως βοηθός. Εγώ τώρα, που κάνω την τακτοποίηση δεν προτίθεμαι να συνεχίσω την παρανομία και θέλω να παρουσιάσω το κτίριο στη σωστή του θέση. Η δεύτερη άδεια βγήκε με την παραδοχή ότι "εφόσον βγήκε η πρώτη εντός Δ, συνεχίζουμε και στη δεύτερη". Επομένως, θεωρώ αυτά που είναι εντός του Δ και έχουν άδεια ως νόμιμα, και αυτά τα οποία είναι εντός του Δ αλλά δεν έχουν άδεια (δηλαδή τη "σοφίτα) ως παράβαση και χρεώνω πρόστιμο. Εσύ μου λες να μην τα χρεώσω, επειδή είναι προσθήκη καθ' ύψος και στα από κάτω έχει βγει άδεια;
- 1.410 απαντήσεις
-
- υπερβάσεις
- δόμηση
-
(and 2 more)
Με ετικέτα:
-
Σας ευχαριστώ όλους. Άρχισα πλέον να πείθομαι ότι είχα δίκιο για το πρόστιμο που μου έβγαινε μεγάλο (κοντά στα 10000 ευρώ). Ανακεφαλαιώνοντας, κάνω μερικές διαπιστώσεις για να σιγουρευτώ: 1)Τη σοφίτα, η οποία δεν ειναι σοφίτα σύμφωνα με τον ΝΟΚ (γιατί έχει εμβαδόν μεγαλύτερο του μισού εμβαδού του υποκείμενου ορόφου), την βάζω σαν κύριο χώρο και υπολογίζω όλα τα προσβάσιμα τετραγωνικά (χωρίς την τρύπα). 2)Στα φύλλα καταγραφής που αναφέρονται σε υπέρβαση δόμησης, βάζω ΤΟ ΙΔΙΟ ποσοστό υπερβασης δόμησης ΣΕ ΟΛΑ απλά αλλάζω τα τετραγωνικά. Σε όσα από τα προηγούμενα φύλλα καταγραφής δεν έχω υπέρβαση κάλυψης επιλέγω 0%, ενώ αν έχω, επιλέγω πάλι ΤΟ ΙΔΙΟ ποσοστό ΣΕ ΟΛΑ και αλλάζω τα τετραγωνικά. 3)Την υπέρβαση του ύψους την κατανέμω στους δύο τελευταίους ορόφους ανάλογα τα τετραγωνικά που έχει ο καθένας (σε ξεχωριστά φύλλα καταγραφής που αναφέρονται στο ύψος. Είτε διαφορετικά, θα τα βάλω σ' ένα φύλλο καταγραφής με τετραγωνικά αυτά της συνολικής κάλυψης του κτιρίου. 4)Παράβαση πλαγίων αποστάσεων θα χρεώσω μόνο στη "σοφίτα", καθώς οι υποκείμενοι όροφοι έχουν άδεια για τη συγκεκριμένη θέση. Τα λέω καλά; Ειλικρινά σας ευχαριστώ όλους!
- 1.410 απαντήσεις
-
- υπερβάσεις
- δόμηση
-
(and 2 more)
Με ετικέτα:
-
Συνάδελφοι καλησπέρα. Καταρχήν ζητώ συγνώμη αν τα ερωτήματά μου έχουν απαντηθεί ήδη αλλά το πρόστιμο που βγάζω για ένα ακίνητο είναι αρκετά παραπάνω από ενός άλλου μηχανικού που πήγε ο πελάτης μου και πανικοβλήθηκα. Τα ερωτήματά μου λοιπόν είναι τα εξής: 1)Σε σοφίτα υπολογίζουμε όλα τα τετραγωνικά της κάτοψης ή μόνο αυτά που είναι προσβάσιμα (σε περιπτωση που έχει τρύπα για να βλέπει τον υποκείμενο όροφο); Τα υπολογίζουμε σαν χώρο με μειωτικό συντελεστή ή κύριο; Και άκουσα μια γνώμη που μου είπε να υπολογίσω μόνο τα τετραγωνικά του χώρου ο οποίος έχει ελεύθερο ύψος >2,20μ και τα υπόλοιπα να τα αγνοησω. Ισχύει κάτι τετοιο; (εμένα δε μου φαίνεται λογικό) 2) Έχω προσθήκη εξωτερικής μόνωσης 5 εκατοστών και αλλαγή θέσης ημιυπαιθρίου από αυτήν που προβλεπόταν στην άδεια. Μπορώ να τα βάλω συνολικά στην κατηγορία 3 σαν 1 παράβαση; 3) Την υπέρβαση του ύψους να την υπολογίσω σε κάθε όροφο ξεχωριστά ή συνολικά για το κτίριο; 4)Τα ποσοστά υπέρβασης δόμησης και κάλυψης θα είναι ίδια σε όλα τα φύλλα καταγραφής και θα αλλάζουν απλά τα τετραγωνικά; (αυτό καταλάβα από την 4η εγκύκλιο) 5)Η άδεια έχει βγει σε σημεία που είναι εντός του Δ=2,50μ. Αυτά δεν τα θεωρώ παράνομα και δεν τα χρεώνω στο πρόστιμο, σωστά; Ευχαριστώ εκ των προτέρων και συγνώμη αν επαναλαμβάνομαι.... Επισυνάπτω και φωτογραφίες για να είμαι πιο σαφής...
- 1.410 απαντήσεις
-
- υπερβάσεις
- δόμηση
-
(and 2 more)
Με ετικέτα:
-
Κτιριο με τμήμα του σε άλλο οικόπεδο
ma7pon1 replied to panmyr's θέμα in Ν. 4014/11 - Ρυθμίσεις Αυθαιρέτων
Παρόμοιο πρόβλημα αντιμετωπίζω αυτές τις ημέρες. Σε οικισμό με κυρωμένη διανομή το κτίριο του πελάτη μου πατάει ελάχιστα μεν (αλλά γενικεύω την ερώτηση) στο οικόπεδο του γείτονα. Ο πελάτης μου έχει 2 οικοδομικές άδειες για το κτίσμα. Αρχικά με λάθος τοπογραφικό αλλά μετά με σωστό που δείχνει ότι είναι λίγο εκτός οικοπέδου. Επειδή έχει κτίσει κι άλλο όροφο χωρίς άδεια, θέλει τώρα να το τακτοποιήσει. Η ερώτησή μου αφορά το τμήμα του κτιρίου που βρίσκεται στο οικόπεδο του γείτονα. Οι απόψεις που άκουσα σε μία μέρα ήταν οι εξής: 1)από μηχανικό: εφόσον έχουν παρέλθει τουλάχιστον 20 χρόνια από την αρχική άδεια και εφόσον δεν το διεκδικεί το τμήμα εκείνο ο γείτονας, δείχνω τροποποιημένο το όριο του οικοπέδου ώστε να φαίνεται ότι το κτίριο είναι εντός του πελάτη μου και αργότερα όταν κάποια στιγμή γίνει συμβόλαιο, θα φαίνεται "...στον τίτλο πχ 200τμ και με την επιτόπια μέτρηση 202τμ" 2)από μηχανικό: να τακτοποιήσω ολόκληρο το κτίριο με μία δήλωση στον 4178/13, δείχνοντας το όριο του οικοπέδου στη σωστή θέση (δλδ ότι το κτίριο βγαίνει στο οικόπεδο του γείτονα) για να είμαι εγώ καλυμμένος, 3)από μηχανικό: να βάλω υπεύθυνες δηλώσεις των δύο γειτόνων στις οποίες να υπογράφουν πως συμφωνούν μεταξύ τους για την "μετακίνηση" του ορίου ώστε να μην έχω κάποιο πρόβλημα εγώ αργότερα. 4)από δικηγόρο: να το τακτοποιήσω κανονικά ολόκληρο γιατί σ' όποιο δικαστήριο κι αν πάνε θα δικαιωθεί ο πελάτης μου εφόσον έχει χτίσει και δεν τον σταμάτησε ο γείτονας την περίοδο που έχτιζε. 5)από δικηγόρο: εκείνο το κομμάτι δεν τακτοποιείται και δεν μπορεί να το πάρει ο πελάτης μου καθώς δεν είναι άρτιο και οικοδομήσιμο. Κι όλα αυτά τα άκουσα μέσα σε 2 ώρες.... Από τη μία πλευρά δε βλέπω λογικό να μην τακτοποιήσω εκείνο το τμήμα του κτιρίου βρίσκεται στο άλλο οικόπεδο καθώς στο γείτονα είναι άχρηστο και προφανως δύσκολα θα κατεδαφιστεί (3όροφη οικοδομή). Από την άλλη είναι στο οικόπεδο του γείτονα οπότε θεωρητικά δεν μπορώ να επέμβω και μάλιστα να το τακτοποιήσω με μία δήλωση και φυσικά αν θέλει ο γείτονας. Μπρος γκρεμός και πίσω ρέμα... Έχει αντιμετωπίσει κάποιος κάτι παρόμοιο; Ευχαριστώ... -
Να το θέσω κάπως άλλιως. Έχω εγκριθεί προς το παρόν απλά είμαι από τους τελευταίους στην περιφέρειά μου. Τα στοιχεία που έχω δηλώσει μέχρι τωρα είναι πέρα ως πέρα αληθή και φυσικά έχω όλα τα δικαιολογητικά. Υπάρχει περίπτωση κάποιος άλλος να ξεπεράσει τη δική μου βαθμολογία λόγω αναβαθμολόγησης ή ενστασης ή ότιδήποτε άλλο, και να κοπώ εγω? Ευχαριστώ
- 13 απαντήσεις
-
- εσπα
- αποτελέσματα
-
(and 1 more)
Με ετικέτα:
-
Καλημέρα, γνωρίζετε αν υπάρχει περίπτωση κάποιος που, παρόλο έχει εγκριθεί προς το παρόν, να κοπεί στους οριστικούς καταλόγους, όχι λόγω δήλωσης ψευδών στοιχείων ή οτιδήποτε άλλο, αλλά λόγω μη διαθέσης ικανής ποσότητας χρηματοδότησης?
- 13 απαντήσεις
-
- εσπα
- αποτελέσματα
-
(and 1 more)
Με ετικέτα:
-
Ήδη έχουν γίνει 17000 αιτήσεις. Σύμφωνα με τα οικονομικά και με την παραδοχή ότι όλοι θα κατεβασουν business plan των 25000 €, τα χρήματα φτάνουν περίπου 2000 και κατι άτομα. Με λίγα λόγια, αυτην την στιγμή αν κλείσουν οι αιτήσεις περίπου 15000 άτομα θα μείνουν εκτός. Δηλαδή τί ποσοστό θέλουν να φανεί ότι κόπηκε και δίνουν κι αλλη παράταση; και γιατί όλοι περιμένουν τις 3 τελευταίες μέρες για να καταθέσουν; εγω γιατι τελείωσα με την αίτηση μου και όλα τα δικαιολογητικά από την 25η Μαρτίου;
- 19 απαντήσεις
-
- 1
-
-
Συναδελφοι καλημέρα.... Είμαι πολιτικός μηχανικός, νεος στο επαγγελμα (τόσο νέος που θα κανω εναρξη αυτήν την εβδομάδα). Ως γνωστόν, στη σχολή μαθαίνουμε κυρίως κατασκευαστικά. Διαδικαστικά και νόμους τα βλέπουμε μόνο επιφανειακά γιατί αλλάζουν συνέχεια και υποτίθεται ( ότι θα τα μάθουμε στην πράξη. Επί του θέματος λοιπόν.... Η πρώτη μου δουλειά, απ' όσο ψιλιάζομαι από έναν συγγενή μου που μου το λέει συνεχώς, είναι να νομιμοποιήσω μια επέκταση που έχει κάνει στο σπίτι του. Όντας εντελώς άσχετος με το άθλημα, μπορεί να μου πεί κάποιος τί ακριβώς θα πρέπει να κανω? Τί χαρτιά χρειάζεται να μαζέψω, σχέδια, άδειες κλπ και όλες τις διαδικασίες στις οποίες θα πρέπει να προβώ; Εκ των προτέρων θέλω να ζητήσω συγνώμη αν ανοίγω καινούργια συζήτηση αλλά το θέμα εχει αναλυθεί ήδη σε κάποια άλλη. Έκανα μια μικρή έρευνα στο φόρουμ αλλά καταλαβαίνετε πως όταν καθε συζήτηση έχει περίπου 100 σελίδες σχολίων ειναι λίγο δυσκολο. Αν εχει καποιος κάποια συζήτηση στην οποία αναφερονται αυτά που ρωτάω υπόψιν του, ας μου τη στείλει... Ευχαριστώ πολύ
- 6 απαντήσεις
