Irini Δημοσιεύτηκε February 27, 2018 at 04:55 μμ Δημοσιεύτηκε February 27, 2018 at 04:55 μμ (edited) Βασικά tetris, αυτός που μου το ειπε ειναι υπαλληλος πολεοδομιας και θεωρω οτι απλα παει να βγαλει απο την πλάτη του μια υπόθεση και να ριξει την ευθυνη ολη σε μενα, τον ιδιωτη μηχανικο...και τον πελάτη που θα πληρωσει ενα σκασμο λεφτα ακομα σε προστιμο! Έκανα την υπαγωγη στον 4495/17, με τις υπερβασει που λέτε κι εσεις, αλλα στη ΔΕΗ δεν καλυπτονται με τη βεβαιωση του ΤΕΕ. Θέλουν την ο.α. σφραγισμενη απο πολεοδομια, γιατι στην τακτοποιηση δεν φαίνονται ολα τα τ.μ. του σπιτιου, αλλά μόνο αυτά που τακτοποιησα. Γι αυτό το λόγο κατέθεσα στην Πολεοδομία, τα απαιτουμενα εγγραφα από την ο.α. και την τακτοποιηση, για να κανουν αυτοψια και να μου σφραγισουν την ο.α. για κανονικο ρευμα. Edited February 27, 2018 at 04:57 μμ by Irini
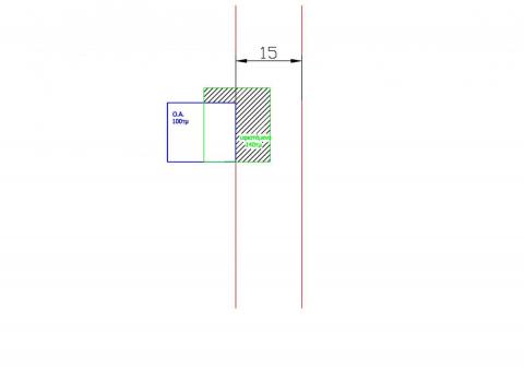
karanus Δημοσιεύτηκε February 27, 2018 at 07:01 μμ Συγγραφέας Δημοσιεύτηκε February 27, 2018 at 07:01 μμ (edited) Kαταρχήν για το #127 συμφωνώ με tetris-karanus. Oσον αφορά τωρα το θέμα με την αλλαγή θέσης που αναφέρονται τα αμέσως προηγούμενα ερωτήματα, πράγματι αποτελεί αρκετά ενδιαφέρουσα-συνήθη περίπτωση. Ειδικά σε εκτός σχεδίου που οι αποτυπώσεις ήταν λίγο μπερδεμένες και τα όρια ήταν κάποιες φορές σχετικά.... Στο θέμα τώρα συγκεκριμένα, απο την μία επικρατεί η άποψη οτι μπορεί να χρεωθεί μια κατ3 για το τμήμα που εξακολουθεί να βρίσκεται σε νομιμη θέση και το υπόλοιπο να παει ώς ΥΔ,ΥΚ, Υπλαγιων. Όμως η κατηγορία 3 μιλάει γενικά για νόμιμη θέση κτιρίου και όχι τμήματος κτιρίου. Εμείς έχουμε ένα κτίριο το οποίο βρίσκεται σε μη νόμιμη θέση. Άρα πώς χρεώνουμε κατηγορία 3?? Νομίζω η φράση που έβαλαν στην ιδιδ) της Κ3 "σε σύνομη θέση" , την έβαλαν ακριβώς για περιπτώσεις σαν και αυτή του συναδέλφου da-mi , ώστε να μην ξεμπερδεύει κανείς μόνο με 1Κ3 (σκέψου δηλ. στην 1η περίπτωση να ξεμπέρδευε κάποιος μόνο με 250 ευρώ!!!), την στιγμή που υπάρχει και τμήμα σε μη νομιμη θέση και στο οποίο τμήμα πρέπει να επιβληθεί πρόστιμο. Τωρα αυτό που λέει ο karanus στο #123 ίσως έχει κάποια λόγικη αν δούμε οτι όταν αναφέρεται στο περίγραμμα αφορά την μορφή της κάτοψης και όχι την θέση του κτιρίου. Θεωρώ πάντως πως ίσως ή συγκεκριμένη υποπαράγραφος σώζει με την επεξήγηση τις μικρές μετακινήσεις (πχ μπήκες ένα μέτρο μέσα στην πρασιά) ενω πετάει σε χωρίς άδεια τις πιο "χοντρές αλλαγές" Ανέκαθεν πάντως στη συγκεκριμένη υποπαράγραφο με μπέρδευε η τελευταία πρόταση: "Θεωρείται...." Αν το εχει κάποιος με ένα παράδειγμα πώς αξιοποιείται αυτό το θεωρείται...Γιατι στα αυθαίρετα ασχολούμαστε με εγκεκριμένες μελέτες και όχι μεγέθη..... Με βάση το συνημμένο περίπτωση 3η: Το υφιστάμενο (πράσινο) περίγραμμα δεν συμπίπτει με της ΟΑ (μπλέ). Το υφιστάμενο είναι σε μή νόμιμη θέση , διότι παραβιάζει το Δ. Άρα ενώ έχω ΟΑ ,θα πάω χωρίς ΟΑ (Παράρτημα - τρίτη τελεία) και θα χρησιμοποιήσω την τελευταία παράγραφο μόνο για τα διαγραμισμένα τεραγωνικά. Αυτά που είναι εκτός των προβλεπομένων στην ΟΑ. Επίσης σε αυτήν τη περίπτωση δεν θα μπορούσα να έχω Κ3 , λόγω διαφοράς περιγραμμάτων. Υ.Γ Είναι όντως πάντως λίγο περίεργο να αντιμετωπίζεται διαφορετικά ή περίπτωση 1 απο την 2 στο #125 αλλα να ήταν μόνο αυτό το παράδοξο με τα αυθαίρετα... IriniΕγώ έκανα την ερώτηση για την Πολεοδομία. ( πως εμπλέκεται; ) Εξακολουθώ να μην καταλαβαίνω απο την απάντησή σου το πως εμπλέκεται. Τον υπάλληλο της Πολεοδομίας γιατί τον βάλατε στο παιχνίδι; Γιατί τα κατέθεσες στην Πολεοδομία; Έγινε καταγγελία; Edited February 27, 2018 at 07:11 μμ by karanus
laxanos Δημοσιεύτηκε February 27, 2018 at 07:16 μμ Δημοσιεύτηκε February 27, 2018 at 07:16 μμ Με βάση το σκεπτικό σου για την περίπτωση 3 στο 90% οι περιπτώσεις με παραβίαση δ-πρασιάς θα πάνε χωρίς ο.α.
karanus Δημοσιεύτηκε February 27, 2018 at 07:40 μμ Συγγραφέας Δημοσιεύτηκε February 27, 2018 at 07:40 μμ (edited) Έχεις δίκιο. Αυτό ίσως.. Edited February 27, 2018 at 08:38 μμ by karanus
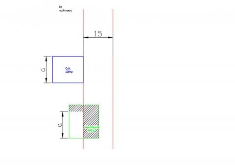
Irini Δημοσιεύτηκε February 27, 2018 at 08:19 μμ Δημοσιεύτηκε February 27, 2018 at 08:19 μμ (edited) karanus...εχω μια αδεια του 2009 που θελω να παρω τελικο ρευμα. Το κτίριο έχει μπει σε θέση παρόμοια με αυτη που δειχνεις στο #132 Πως θα παρω τελικο ρευμα? Edited February 27, 2018 at 08:23 μμ by Irini
Faethon11 Δημοσιεύτηκε February 28, 2018 at 11:46 πμ Δημοσιεύτηκε February 28, 2018 at 11:46 πμ Βασικά αν είναι ΟΑ προ ελεγκτών δόμησης θα πάρει ρεύμα με ΥΔ μηχανικών και ιδιοκτήτη. Οπότε καταθέτεις στην πολεοδομία τα σχετικά δικαιολογητικά και στην τεχνική έκθεση αναφέρεις τα σχετικά με την τακτοποίηση. Και η πολεοδομία θα πρέπει να σου απαντήσει.
Irini Δημοσιεύτηκε February 28, 2018 at 03:45 μμ Δημοσιεύτηκε February 28, 2018 at 03:45 μμ (edited) Μου απαντησε...δε μπορω να παω με ΥΔ μηχανικου που να λεει οτι ολα εγιναν οπως η ο.α. και να εχω και τακτοποιηση παραλληλα...! Edited February 28, 2018 at 03:53 μμ by Irini
karanus Δημοσιεύτηκε February 28, 2018 at 05:15 μμ Συγγραφέας Δημοσιεύτηκε February 28, 2018 at 05:15 μμ Να το δεχτούμε αυτό (που δεν το δέχομαι , αλλά δεν είναι της παρούσης και τώρα πρέπει να βρούμε λύση). Γιατί δεν πας στην ΔΕΗ απ' ευθείας με το έντυπο του 4495;
Irini Δημοσιεύτηκε March 1, 2018 at 07:19 πμ Δημοσιεύτηκε March 1, 2018 at 07:19 πμ Πηγα ΔΕΗ. Δεν δεχονται μονο τη βεβαιωση απο 4495. Εφοοσν υπαρχει ο.α., τη θελουν κ αυτη σφραγισμενη.
Faethon11 Δημοσιεύτηκε March 1, 2018 at 09:09 πμ Δημοσιεύτηκε March 1, 2018 at 09:09 πμ Έτσι είναι για την ΔΕΗ και προσωπικά το θεωρώ σωστό. Πελάτης συναδέλφου πήγε να πάρει ρεύμα για βιομηχανία, στην οποία δήλωσε αυθαίρετο ένα τμήμα προσθήκης, μέσω της διαδικασίας Ν4178 χωρίς να έχει γίνει επίβλεψη από τον συνάδελφο....
Recommended Posts
Δημιουργήστε ένα λογαριασμό ή συνδεθείτε προκειμένου να αφήσετε κάποιο σχόλιο
Πρέπει να είστε μέλος για να μπορέσετε να αφήσετε κάποιο σχόλιο
Δημιουργία λογαριασμού
Κάντε μια δωρεάν εγγραφή στην κοινότητά μας. Είναι εύκολο!
Εγγραφή νέου λογαριασμούΣύνδεση
Εάν έχετε ήδη λογαριασμό; Συνδεθείτε εδώ.
Συνδεθείτε τώρα