- 
                Περιεχόμενα137
- 
                Εντάχθηκε
- 
                Τελευταία επίσκεψη
Τύπος περιεχομένου
Profiles
Φόρουμ
Downloads
Gallery
Ειδήσεις
Media Demo
Αγγελίες
Store
Everything posted by iogeo
- 
	  Έδραση μεταλ. υποστ. σύνθετης διατομής με διαξονικήiogeo replied to iogeo's θέμα in Μεταλλικές-Σύμμεικτες τίποτα... να 'στε καλά!
- 
	  Έδραση μεταλ. υποστ. σύνθετης διατομής με διαξονικήiogeo replied to iogeo's θέμα in Μεταλλικές-Σύμμεικτες -ναι Στεφανε η προσομείωση έγινε με άκαμπτες -το INSTANT δεν κάνει έλεγχο έδρασης με διαξονική οπότε ούτε λαμβάνει υπόψη την αλληλεπίδραση απλά έγινε ανάλυση μονοαξονικής μία για το IPE270 και μία για το IPE240 με περιορισμένο λόγο αστοχίας αγκυρίου
- 
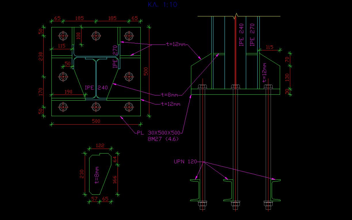
	  Έδραση μεταλ. υποστ. σύνθετης διατομής με διαξονικήiogeo replied to iogeo's θέμα in Μεταλλικές-Σύμμεικτες Λοιπόν παίδες, νέα από την πολεοδομία: 1)το πρόσθετο στοιχείο φτάνει μέχρι την έδραση τελικά 2)μια απλή παρατήρηση είχα στην έδραση που αναφέρεται στις νευρώσεις (όχι ότι ήταν λάθος, απλώς δεν του καθόταν καλά η 75cm) τελικά η έδραση έγινε έτσι:
- 
	  Έδραση μεταλ. υποστ. σύνθετης διατομής με διαξονικήiogeo replied to iogeo's θέμα in Μεταλλικές-Σύμμεικτες thanks, δεν το είχα δει
- 
	  Έδραση μεταλ. υποστ. σύνθετης διατομής με διαξονικήiogeo replied to iogeo's θέμα in Μεταλλικές-Σύμμεικτες ΣτέφανοςΒ: Τώρα για τη διαστασιολόγηση μια ιδέα προς την πλευρά της ασφάλειας είναι να θεωρήσεις πως τα εντατικά μεγέθη κάθε κατευθυνσης αναλαμβάνονται μόνο απο την ισχυρή διατομή προς εκείνη την κατευθυνση. ουσιαστικά αυτό κάνω αφού τα αντίστοιχα φορτία ανέμου είναι δοσμένα στην αντίστοιχη διατομή και όχι μοιρασμένα άρα και αναλαμβάνονται σχεδόν μόνο απο την ισχυρή διατομή προς εκείνη την κατευθυνση γνωρίζετε κάποιο freeware για υπολογισμό αδρανειακών και που μπορώ να το βρώ;
- 
	το σκέφτηκα και αυτό και πιστεύω πως είναι εφικτό γιατί είναι οικογενειακή διόροφη οικοδομή σωστός ο Nik...
- 
	  Έδραση μεταλ. υποστ. σύνθετης διατομής με διαξονικήiogeo replied to iogeo's θέμα in Μεταλλικές-Σύμμεικτες Χάρη, μήπως η μελέτη που είδες στην πολεοδομία δεν έφτανε το πρόσθετο μέχρι κάτω γιατί μπορεί να έμπαινε τοιχείο μέχρι τα 0.50μ που είπες; (κάτι σα στηθαίο)
- 
	  Έδραση μεταλ. υποστ. σύνθετης διατομής με διαξονικήiogeo replied to iogeo's θέμα in Μεταλλικές-Σύμμεικτες για να μην πάρω κανένα στο λαιμό μου, όταν δω τον ελεγκτή θα μου πει αν τα έβαλα σωστά ή λάθος (το πρόσθετο στοιχείο μέχρι την έδραση) και τότε θα σας ενημερώσω.
- 
	  Έδραση μεταλ. υποστ. σύνθετης διατομής με διαξονικήiogeo replied to iogeo's θέμα in Μεταλλικές-Σύμμεικτες σελ 425: ουσιαστικά αυτό κάνω αλλά όχι με σταυρωτή διατομή στο INSTANT (είπαμε με τον ελεγκτή) να βάλω δύο στύλους πολύ κοντά ο ένας στον άλλο (περίπου 0.10cm) και να τους συνδέσω με άκαμπτες δοκούς ορίζοντια ανά τμήματα. Εννοείται πως οι άκαμπτες αυτές δοκοί δεν θα ληφθούν υπόψη στο λυγισμό. όσον αφορά τις ΗΕΑ συμφωνώ ότι προτιμούνται αλλά άκου το σκεπτικό μου: στη συγκεκριμένη περίπτωση έχω 2 στύλους για την κύρια διέθυνση του πλαισίου και 5 στην επιμήκη ένα οποιοδήποτε ΗΕΑ έχει λόγο Wy/Wx=1/3 για ένα κύριο πλαίσιο ενεργούν 2Wx για ένα επιμήκες πλαίσιο ενεργούν 6Wy (εγώ όμως έχω 5 στύλους) για το σχήμα 8.7α θα διαφωνήσω πως αυτό που φαίνεται είναι η κεφαλοδοκός αφού στη σελ 341 β)λέει πως είναι τα πρόσθετα στοιχεία
- 
	  Έδραση μεταλ. υποστ. σύνθετης διατομής με διαξονικήiogeo replied to iogeo's θέμα in Μεταλλικές-Σύμμεικτες Στην Πολεοδομία αν δεν κάνω λάθος μου είπαν πως θα φτάσει μέχρι τη βάση το πρόσθετο στοιχείο. Έχετε παρόμοια εμπειρία στην Πολεοδομία Ευόσμου;
- 
	  Έδραση μεταλ. υποστ. σύνθετης διατομής με διαξονικήiogeo replied to iogeo's θέμα in Μεταλλικές-Σύμμεικτες Χάρη, τι εννοείς "ακραίο στύλο από κοίλη διατομή";
- 
	  Έδραση μεταλ. υποστ. σύνθετης διατομής με διαξονικήiogeo replied to iogeo's θέμα in Μεταλλικές-Σύμμεικτες το στατικό σύστημα που χρησομοποίησα το είδα από αυτό το βιβλίο και είναι στην ίδια σελίδα: περίπτωση β) (σχήμα 8.7α)
- 
	  Έδραση μεταλ. υποστ. σύνθετης διατομής με διαξονικήiogeo replied to iogeo's θέμα in Μεταλλικές-Σύμμεικτες αν βάλεις ΗΕΑ πως θα πετύχεις σύνδεση ροπής στην κεφαλή και στους δύο άξονες και κυρίως στην ασθενή διεύθυνση; σημείωση: είναι ακραίος στύλος ο κεφαλόδοσμος (αν εννοείς SHS) μπορεί να εξασφαλίσει σύνδεση ροπής στην ασθενή διέθυνση του ΗΕΑ, IPE κτλ μόνο αν εκατέρωθεν του κορμού του στύλου υπάρχουν δοκοί δηλ. ο στύλος είναι μεσαίου πλαισίου και όχι ακραίου
- 
	  Έδραση μεταλ. υποστ. σύνθετης διατομής με διαξονικήiogeo replied to iogeo's θέμα in Μεταλλικές-Σύμμεικτες το στατικό σύστημα τυγχάνει έλλειψης κατακόρυφων αντιανεμίων συνδέσμων (λόγω αρχιτεκτονικού, ούτε Χ ούτε Λ έμπαιναν) όχι η σύνθετη διατομή δεν περιορίζεται στην έδραση αλλά τρέχει καθ΄όλο το ύψος της διατομής για τη δημιουργία πλαισιακής λειτουργίας και κατά τη διέυθυνση του IPE240
- 
	  Έδραση μεταλ. υποστ. σύνθετης διατομής με διαξονικήiogeo replied to iogeo's θέμα in Μεταλλικές-Σύμμεικτες έχεις δίκιο Aris, ήταν σχεδιαστικό λάθος δικό μου... για την προσομείωση κανείς; αν λύσω μία κατά χ-χ και μία κατά y-y κάθε IPE ξεχωριστά δεν μπορώ στο instant να λάβω υπόψη την αλληλεπίδραση της διαξονικής... απλά σκέφτομαι να περιορίσω τον λόγο αστοχίας αγκυρίου κοντά στο 0.5 αν και η μεγάλη ροπή περί τον y-y είναι >>> της ροπής περί τον χ-χ ευχαριστώ ARIS
- 
	από όσο γνωρίζω οι headed stud connectors χρησιμοποιούνται στο εργοτάξιο κυρίως για να γίνει η σύνδεση του μόνιμου μεταλλότυπου της πλάκας πάνω στο πέλμα της δοκού. Με αυτή τη διαδικασία τα στοιχεία πέλμα-ήλος-χαλυβδόφυλλο συνδέονται μονολιθικά Τα προαναφερθέντα με κάθε επιφύλαξη... αυτό που γνωρίζω σχεδόν σίγουρα είναι πως χρειάζεται εξιδικευμένο χειριστή του πιστολιού για να μην καταστρέψεις το πέλμα όπως είπε και ο Renaissance
- 
	πως θα δημιουργούσατε την έδραση της σύνθετης διατομής που φάινεται στην πρώτη εικόνα; σχόλια για την δέυτερη εικόνα; τι προτείνετε για την προσομείωση στο INSTANT Συνδέσεις;
- 
	Κάποτε (νομίζω ήταν πέρσι) είχα δοκιμαστική του RCAD (και του ROBOT) και αν ενθυμούμαι καλά κατά την εισαγωγή του φορέα στο RCAD μπορούσες να επιλέξεις σταθερή κορυφή του μεταλλικού υποστυλώματος -κάτι αντίστοιχο με τη σταθερή κορυφή του FESPA- έτσι σε περίπτωση αλλαγής της διατομής μπορούν οι εξωτερικές διαστάσεις του κτιρίου να παραμένουν σταθερές! επειδή ήρθε η ώρα να απαλλαγώ από το INSTANT που το δουλεύω στο γραφείο (που παρεπιμπτόντως έβγαλε καινούριο patch αναβάθμισης 5.3.1) σκέφτομαι σοβαρά να αγοράσω το ROBOT... Μετά από επικοινωνία με τον αντιπρόσωπο του, είπε πως θα μου στείλει δοκιμαστική έκδοση με HASP ενός μηνός. Οπότε και αναμένω!
- 
	Η ερώτηση ήταν περισσότερο για επίλυση απορίας (ένας φίλος μου θέλει να κάνει την προσθήκη). Εαν το αποφασίσει και πάρω τη μελέτη μάλλον θα δημιουργηθούν και άλλες απορίες σχετικά με το θέμα, αφού θα δω την κατάσταση του υφιστάμενου. Ας είναι καλά το forum και εσείς τα μέλη του που απαντάτε. Έτσι γινόμαστε καλύτεροι και σαν επιστήμονες και σαν ενεργά μέλη της κοινωνίας.
- 
	απίστευτη δουλειά η ΠΥΞΙΣ bravo iliekater!!!
- 
	δες ΕΔΩ ΕΠΑΓΓΕΛΜΑΤΙΚΟΣ ΟΔΗΓΟΣ - ΜΕΡΟΣ Α' σελ.9
- 
	την πλάκα μπαζώματος εσείς τη θεωρείτε πάνω στη πεδιλοδοκό (ή στο περιμετρικό τοιχείο) ή στο πλάι της; ποια πιστεύετε πως είναι η καλύτερη τεχνική;
- 
	Καταρχήν συγχωρήστε την άγνοιά μου καθότι νέος μηχανικός... Σε περίπτωση προσθήκης ορόφου, κατά το στήσιμο του ξυλοτύπου της πλάκας στήνονται σκαλωσιές στην υφιστάμενη πλάκα ή γίνεται κάπως αλλιώς η στήριξη του εν λόγω ξυλοτύπου; αν ναι (στήνονται), έχει ληφθεί στη στατική μελέτη το πρόσθετο φορτίο της μελλοντικής πλάκας που μεταφέρεται στην υφιστάμενη μέσω της σκαλωσιάς; αν όχι, πως παρεμποδίζονται τα βέλη κάμψης της πλάκας του νωπού σκυροδέματος; ο χρόνος αφαίρεσης του ξυλοτύπου είναι ο συνήθης (12-15 ημέρες) σε περίπτωση προσθήκης; (όσον αφορά την πήξη του σκυροδέματος στη βάση των νέων υποστυλωμάτων λόγω του κατασκευαστικού αρμού)
- 
	chronism, όταν βρεις χρόνο πες μας και την γνώμη σου σχετικά με τα μπετά του Πάντως από ότι καταλάβαμε στα μεταλλικά πρέπει να είναι πολύ καλό. Με τα DXF τι γίνεται τελικά; τα DXF (εκτός των συνδέσεων) που παράγει είναι αξιοποιήσιμα; chronism, η έκδοση που πήρες περιέχει Section definition;
- 
	η νομιμότητα του κτίσματος παίζει ρόλο;εγώ φαντάζομαι πως ναι, γιατί σε περίπτωση αυθαιρέτου η εμπορική του αξία πρέπει να μειώνεται μήπως κάνω λάθος;

 
         
                     
                    