georg coco Δημοσιεύτηκε November 5, 2010 at 02:54 μμ Δημοσιεύτηκε November 5, 2010 at 02:54 μμ Σωστό και αυτό αλλά εδώ νομίζω διευκρινίζεται ότι όλη η όψη πρέπει να είναι ελεύθερη από τοίχους πλην των "οδόντων" των υποστυλωμάτων που εννοούνται στην εγκύκλιο 113/86. Και αυτό είναι το ζητούμενο "δοντάκι" από υποστύλωμα ή και ολόκληρη "οδοντοστοιχία" από τοιχίο...
akkonst Δημοσιεύτηκε November 9, 2010 at 09:48 πμ Δημοσιεύτηκε November 9, 2010 at 09:48 πμ Δεν έχει σημασία αν είναι ''δοντάκι'' ή... δοντάρα. Το θέμα είναι αν είναι υποστήλωμα ή όχι για να υπολογιστεί το ελεύθερο πλάτος του ΗΧ
salpigoal Δημοσιεύτηκε November 29, 2010 at 11:13 μμ Δημοσιεύτηκε November 29, 2010 at 11:13 μμ Βλεποντας αρχικα το σχεδιο, ημουν σιγουρος πως το κομματι του εξωστη μπροστα απ τον Η.Υ χωρο και μεχρι την κολωνα, ειναι και αυτος Η/Υ ασχετα που δεν το αναφερει στην κατοψη. Κοιταξα επιτηδες και το Δ.Κ για να δω τι εχει υπολογισει ο συναδελφος και το θεωρει ΟΛΟ σαν εξωστη... Αγνοω κατι?
banskoboy Δημοσιεύτηκε November 30, 2010 at 05:34 πμ Δημοσιεύτηκε November 30, 2010 at 05:34 πμ εξώστης είναι. Αφού έχει δύο ανοικτές πλευρές.
gio Δημοσιεύτηκε November 30, 2010 at 01:51 μμ Δημοσιεύτηκε November 30, 2010 at 01:51 μμ Ο μπροστα απο τον Η/Υ ειναι εξωστής. Εχει 2 πλευρες ανοικτες. Σύμφωνα με τον ΓOK, όπως ισχύει τροποποιημένος σήμερα (νόμοι 1577/85 και 2831/2000), «ημιυπαίθριος είναι ο στεγασμένος χώρος του κτιρίου, του οποίου η μία τουλάχιστον πλευρά είναι ανοιχτή προς τον κοινόχρηστο χώρο ή τους ακάλυπτους χώρους που δεν προσμετρώνται στην κάλυψη και οι υπόλοιπες πλευρές του ορίζονται από τοίχους ή κατακόρυφα φέροντα και μη στοιχεία και χρησιμοποιείται για τη μετακίνηση ή προσωρινή παραμονή ανθρώπων» (άρθρο 2). 1
salpigoal Δημοσιεύτηκε November 30, 2010 at 01:51 μμ Δημοσιεύτηκε November 30, 2010 at 01:51 μμ Και ο Η/Υ μπορει να εχει 2 πλευρες ανοιχτες.Μην ξεχνας οτι οριζεται ως ο στεγασμενος χωρος κτλ κτλ, που εχει ΤΟΥΛΑΧΙΣΤΟΝ 1 πλευρα ανοιχτη σε κοινοχρηστο χωρο... Ο εξωστης (προβολος) οριζεται ως προεκταση της πλακας.Η υπαρξη της κολωνας στ αριστερα με κανει να πιστευω οτι αυτο το κομματι (παραλληλα με την κολωνα ) ειναι Η/Υ Στην πολεοδομια που ρωτησα σημερα, ο υπαλληλος μου ειπε, οτι για να θεωρηθει Η/Υ θες 2 σταθερα σημεια.Π.χ αλλη μια κολωνα στην απεναντι γωνια.Εξακολουθω να εχω τις αμφιβολιες μου αν και θα το ψαξω περεταιρω στην βιβλιογραφια... ΥΓ : Συγγνωμη συναδελφοι αλλα με ολο το θαρρος, ειναι λαθος οι απαντησεις σας.Υπαρχει Η/Υ χωρος και με 3 πλευρες ανοικτες.Αν ΔΕΝ ειναι Η/Υ, ειναι αλλη η αιτια και οχι αυτη που επικαλειστε...
myri Δημοσιεύτηκε November 30, 2010 at 02:19 μμ Δημοσιεύτηκε November 30, 2010 at 02:19 μμ «ημιυπαίθριος είναι ο στεγασμένος χώρος του κτιρίου, του οποίου η μία τουλάχιστον πλευρά είναι ανοιχτή προς τον κοινόχρηστο χώρο ή τους ακάλυπτους χώρους που δεν προσμετρώνται στην κάλυψη και οι υπόλοιπες πλευρές του ορίζονται από τοίχους ή κατακόρυφα φέροντα και μη στοιχεία και χρησιμοποιείται για τη μετακίνηση ή προσωρινή παραμονή ανθρώπων» (άρθρο 2). κανεις τους παραπάνω ελέγχους 1. ειναι στεγασμένος 2. έχει τουλάχιστον μια πλευρά που είναι ανοικτή σε κοινόχρηστο ή ακάλυπτο χώρο 3. οι υπόλοιπες πλευρές του ορίζονται από τοιχους ή κατακόρυφα στοιχεία; 38. Εξώστης είναι η οριζόντια προεξοχή της πλάκας του δαπέδου ορόφου ή δώματος, η οποία προβάλλει, με ή χωρίς τη χρήση δοκών, πέρα από τις επιφάνειες των όψεων του κτιρίου και χρησιμοποιείται για τη μετακίνηση και την προσωρινή παραμονή ανθρώπων πάλι ελέγχεις 1. ειναι οριζόντια προεξοχή πέρα από την επιφάνεια της όψης; άρα δεν μετρά ούτε στο περίγραμμα του κτιρίου ούτε στην κάλυψη ------ συμπληρωματικά μετρά στο περιγραμμα του κτιρίου; άρα και στην κάλυψη;
erling Δημοσιεύτηκε November 30, 2010 at 02:22 μμ Δημοσιεύτηκε November 30, 2010 at 02:22 μμ salpigoal, όταν λένε οι συνάδελφοι "ανοιχτές πλευρές" εννοούν χωρίς κανένα κατακόρυφο στοιχείο. Το συγκεκριμένο που έχεις είναι εξώστης αφού δεξιά και κάτω δεν έχει κατακόρυφα στοιχεία.
salpigoal Δημοσιεύτηκε November 30, 2010 at 02:35 μμ Δημοσιεύτηκε November 30, 2010 at 02:35 μμ ok το πιασα, σας ευχαριστω για τις απαντησεις και το ενδιαφερον σας...
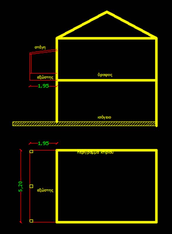
panmyr Δημοσιεύτηκε May 4, 2011 at 05:03 μμ Δημοσιεύτηκε May 4, 2011 at 05:03 μμ Συνάδελφοι καλησπέρα, να ρωτήσω κάτι για εξακρίβωση... Στο παρακάτω σχήμα, ο στεγασμένος εξώστης θεωρείται ημιυπάιθριος, και πρέπει να ληφθεί υπόψη στο 15% της δόμησης του ορόφου, σωστά;Αυτό γιατί, η στέγη του δεν αποτελεί προέκταση της άνω πλάκας του ορόφου; Στην περίπτωση που προεξείχε η άνω πλάκα του όρόφου ή προεξείχε η στέγη του κτιρίου,μέχρι την περασιά του εξώστη, ο χώρος αυτός θα χαρακτηρίζονταν ως εξώστης, παρόλο που είναι στεγασμένος; Σας ευχαριστώ εκ των προτέρων!
Recommended Posts
Δημιουργήστε ένα λογαριασμό ή συνδεθείτε προκειμένου να αφήσετε κάποιο σχόλιο
Πρέπει να είστε μέλος για να μπορέσετε να αφήσετε κάποιο σχόλιο
Δημιουργία λογαριασμού
Κάντε μια δωρεάν εγγραφή στην κοινότητά μας. Είναι εύκολο!
Εγγραφή νέου λογαριασμούΣύνδεση
Εάν έχετε ήδη λογαριασμό; Συνδεθείτε εδώ.
Συνδεθείτε τώρα