dimitris GM Δημοσιεύτηκε May 31, 2022 at 05:45 μμ Δημοσιεύτηκε May 31, 2022 at 05:45 μμ (edited) α] Οι εσωτερικες διαρρυθμισεις δεν αποτελουν αυθαιρεσια....τις ξεχνας προς το παρον. β] εχεις στην αδεια ενα "Χ" περιγραμμα και στην κατοψη ενα διαφορετικο "Ψ' Αυτο αποτελει ΔΔ και δεν απαιτει την συναινεση κανενος, διοτι στηριζεται στην συσταση. γ] εχεις μια κατοψη στην αδεια και αλλη ή και ιδια με την συσταση αλλά ....εάν η πραγματικοτητα διαφερει και σε σχεση με το ομορο και σε σχεση με τον διαδρομο ειτε υπερ ειτε κατα..... αυτο δεν ειναι ΔΔ. Εχεις προβλημα Διευκρινισε πώς εχει η κατασταση. Edited May 31, 2022 at 05:46 μμ by dimitris GM
RoreK Δημοσιεύτηκε June 15, 2022 at 06:56 μμ Δημοσιεύτηκε June 15, 2022 at 06:56 μμ Σε ισόγειο οικοδομής υφίστανται 3 καταστήματα που ανήκουν σε 3 ιδιοκτήτες. Ακριβώς από κάτω υπήρχε ένας ενιαίος υπόγειος χώρος μη προσβάσιμος (κατά την Ο.Α.) από τα καταστήματα που ανήκε αναλογικά στους 3 ιδιοκτήτες των καταστημάτων. Έγιναν χωρίσματα με τοιχοποιία στο υπόγειο ώστε κάτω από κάθε κατάστημα να υπάρχει χώρος υπογείου το οποίο συνενώθηκε με το αντίστοιχο κατάστημα με οπή στο δάπεδο και κλίμακα. Κάνω μία διαμερισματοποίηση για όλο το υπόγειο με συναίνεση όλων και ξεχωριστές δηλώσεις για κάθε κατάστημα με μία λοιπή παράβαση για τις εργασίες της κλίμακας;
dimitris GM Δημοσιεύτηκε June 15, 2022 at 07:02 μμ Δημοσιεύτηκε June 15, 2022 at 07:02 μμ "Ακριβώς από κάτω υπήρχε ένας ενιαίος υπόγειος χώρος μη προσβάσιμος (κατά την Ο.Α.) από τα καταστήματα που ανήκε αναλογικά στους 3 ιδιοκτήτες των καταστημάτων" - Με ποιο συμβολαιο ανηκε το υπογειο αναλογικα στα καταστηματα. - Φαινεται πουθενα το -εξ αδιαιρετου - δικαίωμα χρησης
RoreK Δημοσιεύτηκε June 15, 2022 at 07:07 μμ Δημοσιεύτηκε June 15, 2022 at 07:07 μμ On 24/5/2022 at 1:40 ΜΜ, bag said: Ερώτηση γενικής φύσης . Έχουμε ακίνητο το οποίο εμφανίζει διαφορετική εσωτερική διαρρύθμιση σε σχέση με την οικ. άδεια . Αν θέλουμε να εντάξουμε την διαφορετική διαρρύθμιση στο Ν 4495 (που με βάση το νόμο δεν είναι παράβαση ) , αυτό πως θα γίνει ; Δηλαδή πως συντάσσουμε τον προϋπολογισμό της υποτιθέμενης λοιπής παράβασης ; ΠΧ. α) διαφορά νομίμων εργασιών - πραγματικές ή β) κατεδάφιση θεωρητικών νομίμων και επανακατασκευή πραγματικών εκ΄του μηδενός ; ή γ) απλά περιγράφουμε την διαφορετική διαρρύθμιση και την αναφέρουμε λεκτικά στην τεχνική έκθεση στις ήδη υπάρχουσες λοιπές παραβάσεις του ακινήτου ; Εγώ νομίζω ότι η πρώτη αντιμετώπιση είναι η πιό σωστή . Θα ήθελα αν είναι δυνατόν την άποψη του φόρουμ . Εγώ σ' αυτή την περίπτωση ανεβάζω απλώς στην ΗΤΚ την πραγματική κάτοψη στα "Γενικά έγγραφα" - "κατόψεις αποτύπωσης" On 15/6/2022 at 10:02 ΜΜ, dimitris GM said: "Ακριβώς από κάτω υπήρχε ένας ενιαίος υπόγειος χώρος μη προσβάσιμος (κατά την Ο.Α.) από τα καταστήματα που ανήκε αναλογικά στους 3 ιδιοκτήτες των καταστημάτων" - Με ποιο συμβολαιο ανηκε το υπογειο αναλογικα στα καταστηματα. - Φαινεται πουθενα το -εξ αδιαιρετου - δικαίωμα χρησης Όλο το υπόγειο έχει 75 χιλιοστά στη σύσταση και ο καθένας έχει από 25.
dimitris GM Δημοσιεύτηκε June 15, 2022 at 07:21 μμ Δημοσιεύτηκε June 15, 2022 at 07:21 μμ (edited) - Το υπογειο ειναι μια ΟΙ με τρεις συνιδιοκτητες εξ αδιαιρετου. - το "εξ αδιαιρετου" σημαινει ..."παντου και πουθενα" Με την ΔΔ θα δημιουργησεις τρεις χωρους, αλλα καθε ενας θα ανηκει και στους τρεις κατα το/13 εξ αδιαιρετου. Θα πρεπει να επακολουθησει συσταση ΟΙ και "διανομη" [θεωρω οτι μπορεις να πας χωρις ΔΔ, επειδη η ΔΔ προυποθετει να υπαρχει σχετικο συμβολαιο/κατοψη, ...διαφορετικο απο της αδειας, πραγμα που δεν εχεις.. με μονον την αυθαιρεσια διαχωρισμου και την τρυπα σκαλα] Αρα, εχεις και απο μια "τρυπα- σκαλα" για καθε τμημα... Η τρυπα ....αποτελει επεμβαση στα κοινοχρηστα..εγινε "κατα την κατασκευη"...αρα δεν ψαχνεις συναινεση. εχει εδω σχετικη συζητηση...δες τους προβληματισμους . Edited June 15, 2022 at 07:32 μμ by dimitris GM
RoreK Δημοσιεύτηκε June 16, 2022 at 10:22 πμ Δημοσιεύτηκε June 16, 2022 at 10:22 πμ Άρα θα δηλώσω ως λοιπή παράβαση τις εργασίες τοιχοποιίας του υπογείου και όχι ως Δ.Δ.
body125z Δημοσιεύτηκε July 6, 2022 at 02:56 μμ Δημοσιεύτηκε July 6, 2022 at 02:56 μμ Καλησπέρα Συνάδελφοι, έχω περίπτωση που πελάτης μου μαζί με άλλους 2 έβγαλε άδεια και κατασκεύασε ισόγεια οικοδομή στην οποία έγινε σύσταση 6 οριζοντίων ιδιοκτησιών (εκ των οποίων 2 του ανήκουν, και από άλλες 2 οριζ. ιδιοκτησίες στον καθένα από τους υπόλοιπους) επίσης έμεινε και ποσοστό για δικαίωμα υψουν για κάθε έναν από τους τρεις ιδιοκτήτες. Έπειτα έγινε προσθήκη οροφου με νέα άδεια. Η σύσταση δεν τροποποιήθηκε αλλά έμεινε στην αρχική της μορφή, ως οτι υπάρχει μόνο ισόγειος όροφος. Στην πράξη σήμερα που έρχομαι να τακτοποιήσω, ούτε τα σχέδια της οικοδομικής άδειας, ούτε της σύστασης αντιπροσωπεύουν την πραγματικότητα. Τι κάνω σε αυτή την περίπτωση; Για να ορίσω ποια ειναι η καθε οριζόντια ιδιοκτησία, λόγω της διαφορετικής διάταξης πρέπει να κάνω την Πυθία. Ακόμη στον ένα ιδιοκτήτη στην πράξη οι δυο οριζόντιες συγχωνεύθηκαν σε μία. Τέλος μπορεί να θεωρηθεί οτι μετά την έκδοση της οικοδομικής άδειας προσθήκης ορόφου, οτι αυτό αποτελούσε την υλοποίηση του δικαιώματος υψούν (παρότι δεν έγινε τροποποίηση της σύστασης) ή είναι αυτό λάθος;
venezia Δημοσιεύτηκε July 6, 2022 at 03:29 μμ Δημοσιεύτηκε July 6, 2022 at 03:29 μμ Συνάδελφε δεν χρειάζεται να γίνεις ..Πυθία . Εσύ εξετάζεις τα εγκεκριμένα σχέδια της άδειας με την υφιστάμενη κατάσταση και τακτοποιείς ότι δεν συμφωνεί με τα εγκεκριμένα σχέδια . Τις κατόψεις της σύστασης θα τις χρησιμοποιήσεις για τον προσδιορισμό της ιδιοκτησίας του πελάτη σου όσον αφορά το ισόγειο . Η άδεια ορόφου σε ποιο όνομα εκδόθηκε ? Αν για το δικαίωμα υψούν αναφέρει απλά μόνο ποσοστά εξ αδιαιρέτου συνιδιοκτησίας χωρίς να προσδιορίζει περίγραμμα για κάθε ιδιοκτήτη , τότε ο όροφος ανήκει με τα αντίστοιχα ποσοστά σε όλους και ανάλογα τακτοποιούνται και οι τυχόν παραβάσεις σε σύγκριση με την άδεια . Ανέβασε εγκεκριμένα σχέδια άδειας και υφιστάμενης κατάστασης. 1 1
dimitris GM Δημοσιεύτηκε July 6, 2022 at 07:05 μμ Δημοσιεύτηκε July 6, 2022 at 07:05 μμ σωστα - εχεις συσταση για τις 6 ΟΙ του ισογειου. Εδω τακτοποιεις με βαση τι αυθαιρεσιες εκαναν. - Προφανως υπηρχε υπολοιπο σδ και ειχαν κρατησει χιλιοστα για τον αερα, αρα εχεις και εναν οροφο που ανηκει και στους τρεις. Και εδω θα δεις τι αυθαιρεσιες εχει. 1
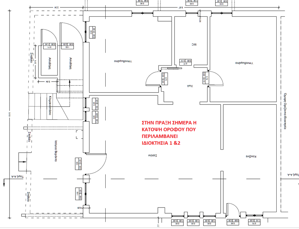
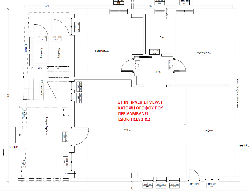
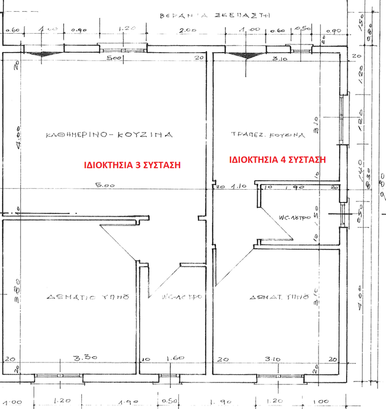
body125z Δημοσιεύτηκε July 7, 2022 at 08:58 πμ Δημοσιεύτηκε July 7, 2022 at 08:58 πμ Αρχικά όπως σωστά αναφέρθηκε από το venezia, η σύσταση στην κατανομή των οριζοντίων ιδιοκτησιών αναφέρει οτι 'το δικαίωμα υψούν που αντιστοιχεί στην οριζόντια ιδιοκτησία 1 &2 -του ενός ιδιοκτήτη- ευρίσκεται πάνω από τα στοιχεία (δλδ οριζόντιες ιδιοκτησίες) 1 & 2. Κατά αντιστοιχία το ίδιο κάνει για το δικαίωα υψούν και στους λοιπούς συνιδιοκτήτες. Επομένως ξεκάθαρα προσδιορίζεται περίγραμμα για κάθε ιδιοκτήτη στον ανώτερο όροφο, αρά η λογική πάει οτι τακτοποιώ στον ανώτερο όροφο ως μια νέα οριζόντια με το ποσοστό που αναλογεί στο υψούν του ιδιοκτήτη και πάντα σε σύγκριση με τα σχέδια οικοδομικής άδειας του ορόφου. Τώρα όσο αφορά το ιδιοκτησιακό και τις διαφορές κατόψεων αδείας, με σύσταση και πράξη επισυνάπτω απόσπασμα από τα σχετικά σχέδια. Περίπτωση Ιδιοκτησία 1 & 2 (με σχέδια άδειας, σύστασης & πράξης) Στην άδεια η κάτοψη δείχνει ενιαίες τις ιδιοκτησίες 1 & 2, η σύσταση όμως δεν ενημερώθηκε και κράτησε το και καλά ξεχωριστό των δύο οριζοντίων ιδιοκτησίων. Πλέον η μία έχει συγχωνευθεί με την άλλη... Πως να δηλωθεί αυτό, ένα φύλλο με τη μία που έφαγε και όλη την άλλη και στο δεύτερο φύλλο που θα αφορά την έτερη ιδιοκτησία τί; Μηδενικό εμβαδό? Κανονικά η σύσταση δεν πρέπει να τροποποιηθεί και πως θα γίνει αυτό αν δεν υπάρχει η μία οριζόντια αφού απορροφήθηκε και τι βεβαίωση να δώσεις στο συμβολαιογράφο για αυτήν.... Περίπτωση Ιδιοκτησία 3 & 4 Εδώ πάλι η σύσταση το κόβει τον όροφο κάθετα σε δύο οριζόντιες, στην πράξη ο διαχωρισμός είναι διαφορετικός (κάθετα αλλά με σπασίματα) και στην άδεια έδειχνε στην κάτοψη διαχωρισμό των οριζοντίων με οριζόντια τομή στον όροφο. Και εδώ ποιος μπορεί να πει σήμερα ποια είναι η οριζόντια 3 και ποια η οριζόντια 4? Ομορφιές....
Recommended Posts
Δημιουργήστε ένα λογαριασμό ή συνδεθείτε προκειμένου να αφήσετε κάποιο σχόλιο
Πρέπει να είστε μέλος για να μπορέσετε να αφήσετε κάποιο σχόλιο
Δημιουργία λογαριασμού
Κάντε μια δωρεάν εγγραφή στην κοινότητά μας. Είναι εύκολο!
Εγγραφή νέου λογαριασμούΣύνδεση
Εάν έχετε ήδη λογαριασμό; Συνδεθείτε εδώ.
Συνδεθείτε τώρα