CHRIS_M
Core Members-
Περιεχόμενα
232 -
Εντάχθηκε
-
Τελευταία επίσκεψη
Τύπος περιεχομένου
Profiles
Φόρουμ
Downloads
Gallery
Ειδήσεις
Media Demo
Αγγελίες
Store
Everything posted by CHRIS_M
-
Το θέμα της κοστολόγησης των Τοπογραφικών έχει πολυσυζητηθεί σε αυτό το forum. Νομίζω ότι λίο πιο σύνθετο από αυτά που αναφέρει ο Ηans Lada. Γενικά, τείνω να συμφωνήσω με agios. Πρέπει ωστόσο σε κάθε περίπτωση το θέμα να εξατάζεται από δύο σκοπίες: 1) Ζήτηση vs Προσφορά, 2) Κόστος αγοράς - απόσβεσης του ιδιαίτερα δαπανηρού εξοπλισμού + απόσβεση κόστους "5ετους +++ φοίτησης" + ώρες εργασίας Μιλώντας με φίλους παλιούς συμφοιτητες, διαπιστώνω ότι οι αμοιβες διαφοροποιούνται σημαντικά στον Ελλαδικό χώρο. Πάντως, για να γίνω πιο συγκεκριμένος, θεωρώ ότι η αμοιβή σου δεν πρέπει να πέσει κάτω από 400ευρώ + ΦΠΑ. Αν τον εδεις κονομημένο χρέωσε κανα πενηντάρικο - κατοστάρικο παραπάνω.
-
Δήλωση Στοιχείων Ακινήτων ( Ε9 ) οικ. έτους 2012
CHRIS_M replied to CHRIS_M's θέμα in Φορολογικά-Λογιστικά
Πήρε παράτσαση τελικά ώς 30 Νοέμβρη 2012. Για περισσότερες πληροφορίες: http://www.gsis.gr/cmdocs/8740.pdf -
Δήλωση Στοιχείων Ακινήτων ( Ε9 ) οικ. έτους 2012
CHRIS_M replied to CHRIS_M's θέμα in Φορολογικά-Λογιστικά
18-7-2012 και ακόμα δεν έχει ανοιξει το σύστημα. Απαράδεκτοι -
Καλημέρα, ήθελα να ρωτήσω το εξής: Οι προθεσμίες δήλωσης Στοιχείων Ακινήτων ( Ε9 ) οικ. έτους 2012 λήγουν όπως έχει ανακοινωθεί στις 31.07.2012. (Αναφέρομαι σε μεταβολές που έχουν πραγματοποιηθεί κατά το ημερολογιακό έτος 2011 και όχι στην εφαρμογή που αφορά την τροποποίηση στοιχείων ακινητων μέχρι 01-01-2011). Ωστόσο το σύστημα δεν έχει ανοιξει ακόμα. Έχετε κάποια πληροφορία για το πότε θα ανοιξει το συστημα. Μπορούμε να κάνουμε χειρόγραφα τις δηλώσεις?
-
Και οι Πολιτικοί Μηχανικοί - απόφοιτοι ΕΜΠ ή ισότιμης σχολής του εσωτερικού - εξωτερικού- μπορούν να υπογράψουν εξαρτημένο Τοπογραφικό
-
Όχι, Αρχιτέκτονες δεν έχουν δικαίωμα υπογραφής εξαρτημένων Τοπογραφικών.
-
-
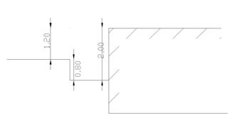
Σωστός ο ssouanis! Συνεπώς, μειωτικός συντελεστής 0,5 σε όλα τα υπόγεια ανεξαρτήτως της χρήσης. Να ρωτήσω όμως κάτι ακόμα... Για να οριστεί ενας όροφος ως υπόγειο πρέπει η οροφή του να βρίσκεται ως 1,5μ. ψηλότερα από την οριστική στάθμη του εδάφους. (α) Ο κανόνας του 1,5μ. ισχύει και για τα εκτός σχεδίου ή εκεί πάμε στα 0,80μ.? (β) Σε περίπτωση που γύρω από το υπόγειο υπάρχει μία περιμετρική λωρίδα - διαμορφωμένος με beton διάδρομος (μέσου πλάτους 1 με 1,5μ), στον οποίο έχει υποβιβαστεί η στάθμη του εδάφους κατά 80cm περίπου τότε η από που μετράμε το ύψος? Αποψή μου είναι πως για να είμαστε τυπικοί το μετράμε από την υποβιβασμένη λωρίδα? βέβαια αυτό μετατρέπει πολλά υπόγεια σε ισόγεια Δηλ. στην επόμενη εικόνα το κτίσμα είναι ισόγειο και όχι υπόγειο επειδή η οροφή του βρίσκεται 2,0μ. από το γυρω διαμορφωμένο έδαφος. Σωστά? Υάρχει κάποια Εγκ ή άλλο επίσημο έγγραφο που να αναφέρει κάτι διαφορετικό για αυτές τις περιπτώσεις?
-
Ρύθμιση υπογείου με Ν.4014/11 με άδεια του 1980
CHRIS_M replied to babolouka's θέμα in Ν. 4014/11 - Ρυθμίσεις Αυθαιρέτων
Η απάντηση 4 του η' τευχους ερωτοαπαντήσεων αναφερεται σε υπόγειο το οποίο υπάρχει στην Ο.Α. και για το οποίο έχει γίνει αλλαγή χρήσης. Συνεπώς, δεν αφορά το παράδειγμα του φίλου babolouka Αποψή μου είναι πως δεν πρέπει να βάλεις μειωτικό συντελεστή δεδομένου ότι το υπόγειο χρησιμοποιείται ως Κ.Χ. Αν ήταν βοηθητικός χώρος π.χ. αποθήκη θα έβαζες 0,50. -
Σε περίπτωση όμως που σε εκτος σχεδίου περιοχή - χωρίς οικοδομική άδεια - έχουμε Υπόγειο + Ισόγειο, τα οποία έχουν και τα δύο Κύρια Χρήση, δηλ. κατοικία, τότε υποθέτω ότι δεν βάζω πουθενά τον μειωτικό συντελεστή 0,50. Μειωτικό συντελεστή 0,50 θα έβαζα στο υπόγειο αν είχα βοηθητική χρήση. Με άλλα λόγια, για να βάλω μειωτικό συντελεστή 0,50 πρέπει να συντρέχουν και τα δύο επόμενα: (α) Υπόγειο (β) Βοηθητική Χρήση. Άν έχουμε μόνο υπόγειο με Κ.Χ. τότε δε βάζω το μειωτικό συντελεστή 0,5. Σωστά?
-
Μόλις τις διάβασα τις νέες ερωτοαπαντήσεις και έχω την ίδια απορία με τον letom. Δηλαδή, οι εξώστες δεν προσμετρώνται στο πρόστιμο εκτός αν παραβιάζονται οι σχετικές διατάξεις. Ποιες διατάξεις εννοεί?
-
(α) Σε περίπτωση που ο εξώστης αφορά εκτός σχεδίου κατασκευή, τότε πάει και αυτός με τον αναλυτικό υπολογισμό? (β) Αν π.χ πρόκειται για κτίσμα 100τ.μ. ισόγειο και 100τ.μ. υπόγειο τότε τα πρώτα 35% = 35τ.μ. δεν προσμετράνε η μετράνε ολοι οι εξώστες?
-
Τοπογραφοι Μηχανικοί σίγουρα . Τώρα αν μπλέκουν και κάποιες άλλες ειδικότητες όπως Δασολόγοι (π.χ. για δικαστικές διεκδικήσεις ιδιωτών έναντι δασαρχείων)
-
Το ερωτημα μου είναι αν μπορώψ σήμερα να κάνω τροποποιητική της δήλωσης Ε1? Αναφέρω τα ακόλουθα: (1) Έχει γίνει η εκκαθάριση (2) Έχω πάρει την επιστροφή (3) Από την τροποποίηση της Ε1 δεν αλλάζει το φορολογητέο εισόδημα - ούτε το ποσό της επιστροφής (4) Θέλω να αλλάξω τον κωδικό 659, ο οποίος αφορά σε εισοδήματα που απαλάσσονται από φόρο (π.χ. τόκοι από καταθέσεις σε τράπεζα) Αυτό θα έχει ως αποτέλεσμα τη μείωση της ειδικής εισφοράς... (α) Γίνεται? (β) Πόσο είναι το πρόστιμο?
-
αν εισαι σε διαφορες εκατοστων καλα είσαι... υπάρχουν και περιπτώσεις (όχι σπάνιες) στις οποίες οι διαφορες μπορεί να ξεπερνουν και το μέτρο
-
προκυπτει από κάποια ερευνα - μελετη οτι είναι (οι σφαίρες από μπετόν) πιο φιλικες σε ποδηλάτη ή μηχανόβιο σε περίπτωση ατυχήματος από τα κολωνακια?
-
σωστα τα λες... δεν υπάρχει τέτοια διαταξη ή έγκριση. Συνεπώς, θεωρητικά είσαι εκεθειμενος αν προτεινεις την τοποθετηση τους (κολωνακια). Ωστόσο, εαν η αίτηση σου προς το Δήμο συνοδευεται και από μία Τεχνικη Έκθεση, στην οποια θα αναφερεται ότι προτεινεται για λόγους οδικής ασφαλειας κ.λπ. θεωρω είσαι καλυμενος. Επίσης, αυτο που πρεπει κανεις να προσέξει είναι να εξασφαλίζεται το απαιτουμενο πλάτος πεζοδομιου (ελευθερος εμποδιων χώρος κίνησης πεζων) σύμφωνα με προδιαγραφες ΥΠΕΧΩΔΕ. Αν θυμαμαι καλα 1,20μ. ή κατεξαιρεση (0,90μ) ετσι και αλλιώς το κολωνάκι δε θα το βάλεις 1μ από το κρασπεδο...
-
ωραία, τότε γιατί στο Π.Δ.6.12.1982 (ΦΕΚ588Δ/1982) αναφέρει συνεχώς τη λέξη "γήπεδο" και όχι τη λέξη "οικόπεδο" όπως στο Π.Δ.3.5.1985 ή στο Π.Δ.13.3.1981? Θα μου πεις ότι η λέξη "γήπεδο" είναι ευρύτερη έννοια που περιλαμβανει και την έννοια "οικόπεδο". Ωστόσο αν προσέξεις όταν τα νομοθετήματα αφορούν σε ακίνητα εκτός οικισμών αναφέρουν τη λέξη "γήπεδο" (π.χ. τα δύο παραπάνω που ανέφερα + το ΦΕΚ270Δ/1985) ενώ για τα εντός οικισμού αναφέρεται η λέξη "οικόπεδο".
-
Νέο ερώτημα σχετικά με τα γήπεδα τα οποία ευρίσκονται σε οικισμους χαρακτηρισμένους ως στάσιμους και ειδικότερα εκτός του συνεκτικού τμήματος αλλά εντός της ζώνης των 800μ: στη δήλωση του Ν.651/77 έγραφα ότι το γήπεδο βρίσκεται εκτός του οικισμού αλλά εντός ζώνης των 800μ από το κέντρο του οικισμού και είναι.... (ύστερα από υπόδειξη του Υπαλλήλου της Πολεοδομίας). Ωστόσο, διαβάζοντας το αρ.4 του Π.Δ.24.4/31.5.1985(ΦΕΚ 181Δ/85) λέει ότι: "Σε οικισμούς που έχουν καθορισθει ως στάσιμοι με απόφαση Νομάρχη σε εφαρμογή των διατάξεων του Π.Δ.6.12.1982 (ΦΕΚ588Δ/1982), το όριο τους προσδιορίζεται από ακτίνα 800μ. από το κέντρο του οικισμού..." Τελικά, τα γήπεδα που βρίσκονται εκτός συνεκτικού τμήματος αλλά εντός ζώνης 800μ θεωρούνται εντός ή εκτός οικισμού??? Μέχρι στιγμής, τα υπόψη γήπεδα τα θεωρούσα ως εκτός του οικισμού, ωστόσο το αρ.4 του Π.Δ.31.05.1985 με κάνει να το ξανασκεφτώ - αναθεωρήσω τις απόψεις μου... Επίσης, αν είναι τελικά εντός του οικισμού τότε αλλάζουν πολλά - μεταξύ άλλων: α) υπολογισμός αντικειμενικής αξίας από συμβολαιογράφο κατά τη μεταβίβαση β) δυνατότητα σύστασης κάθετης ιδιοκτησίας κ.λπ. Απόψεις???
-
Τα έξοδα οχήματος Ι.Χ. (βενζίνες, εξοδα συνεργείου, ασφάλειες κ.λπ.) αν δεν κάνω λάθος δεν τα βάζουμε πουθενα στην περιοδική δήλωση ΦΠΑ. (δηλ. με άλλα λόγια για την περιοδική δήλωση Φ.Π.Α. είναι σαν να μην υπάρχουν) Τα βάζουμε μόνο στην εκκαθαριστική ΦΠΑ στον κωδικό 666 (λοιπές εισροές απαλ/νες εξαιρουμ. χωρίς δικαίωμα έκπτωσης) σωστά?
-
Η πράξη εφαρμογής είναι όντως παλιά (κυρώθηκε το 1988 ) και για αυτό ίσως να μην υπάρχουν συν/νες τελικών ιδιοκτησιών. Σε ερώτημα μου προς υπάλληλο στο Δήμο μου απάντησε πως ακριβώς επειδή τα όρια των ιδιοκτησιών προσδιορίζονται γραφικά υπάρχει μία ανοχή 2% μεταξύ του εμβαδού που αναγράφεται στον Πίνακα της Πράξης και του εμβαδού της μέτρησης (και το οποίο θα αναγραφεί στο συμβόλαιο). Πάνω από 2% διαφορά θέλει διορθωτική Πράξη Εγώ ήθελα να ρωτήσω εαν αυτό το 2% (επιτρεπόμενη ανοχή) προκύπτει από κάποια επίσημη Απόφαση (εγκύκλιο κ.λπ.) - ο Υπάλληλος δεν ήξερα - εμπειρικά το γνωρίζει και αυτός... Η Εγκ31/2001 του ΥΠΕΧΩΔΕ που έχει αναγραφεί πιο πάνω δεν βοηθάει και πολύ...
-
Μήπως όμως σε κάποιες περιπτώσεις που έχουμε κυρωμένη Πράξη Εφαρμογής πρέπει να γράφουμε ότι τα όρια υποδείχθηκαν από τον ιδιοκτήτη??? Γίνομαι συγκεκριμένος: σε κυρωμένη Πράξη Εφαρμογής ενω υπάρχουν συντεταγμένες των κορυφών των Ο.Τ. δεν υπάρχουν συνταταγμένες των τελικών ιδιοκτησιών (την απάντηση αυτή την πήρα και από την Πολεοδομία και από τον Δήμο). Διάγραμμα Εφαρμογής βέβαια υπάρχει στο οποίο απεικονίζονται και οι τελικές ιδιοκτησίες. Υπάρχει και ο Πίνακας της Πράξης Εφαρμογής στον οποίο αναφέρονται τα τελικά εμβαδά των ιδιοκτησιών. Στην περίπτωση αυτή υπάρχουν δύο τινά: Α) ή γράφουμε ότι τα όρια με τους γείτονες καθορίστηκαν γραφικά από το Δ.Ε. ή Β) Λέμε ότι τα όρια υποδείχθηκαν απο τον ιδοκτητη. Απόψεις επί του θέματος? Σας έχει ξανατύχει σε κυρωμένη Πράξη Εφαρμογής να μην υπάρχουν οι συντεταγμένες των τελικών ιδιοκτησιών?
-
εγω πάντως πήρα τηλ. σήμερα σε Πολεοδομία και μου είπε ο υπάλληλος πως μπορώ να καταθέσω κανονικά και μετά τις 30 Ιούνη... τώρα αν κάποιες Πολεοδομίες δεν έχουν ακόμη ενημερωθει επίσημα είναι άλλο θέμα...
-
Φορολογική αναμόρφωση - λογιστικές διαφορές
CHRIS_M replied to johnskop's θέμα in Φορολογικά-Λογιστικά
O Πίνακας φορολογικής αναμόρφωσης θέλει υποχρεωτικά λογιστή όπως η αυτοπεραίωση? -
Προφανώς εννοεις ότι στην περίπτωση που κατατίθενται δύο φάκελοι στην Πολεοδομία τότε πάμε στο 5% (επειδή είναι μικρότερος από 25τ.μ. ο Η/Χ στον Γ όροφο). Ήθελα όμως να ρωτήσω και το εξής : δεδομένου ότι όπως είπα πιο πάνω ο Η/Χ στον Γ όροφο δεν είναι λειτουργικά ενιαία ιδιοκτησία με τις κλειστές θέσεις γκαραζ μήπως οι κλειστές θέσεις γκαράζ πάνε ως λοιπή κατοικία και όχι ως Α κατοικία όπως πάει ο Γ όροφος??? έχει κανείς παρόμοια εμπειρία???
