Μετάβαση στο περιεχόμενο

akkonst

Members
  • Περιεχόμενα

    73
  • Εντάχθηκε

  • Τελευταία επίσκεψη

Everything posted by akkonst

  1. Αν έχεις οικόπεδο ή κενό δεξιά αριστερά τότε είναι όπως έγραψα. Αν οι τοίχοι δεξιά αριστερά είναι τοίχοι άλλων χώρων του κτίσματός σου τότε δε μετράνε στον ΗΧ
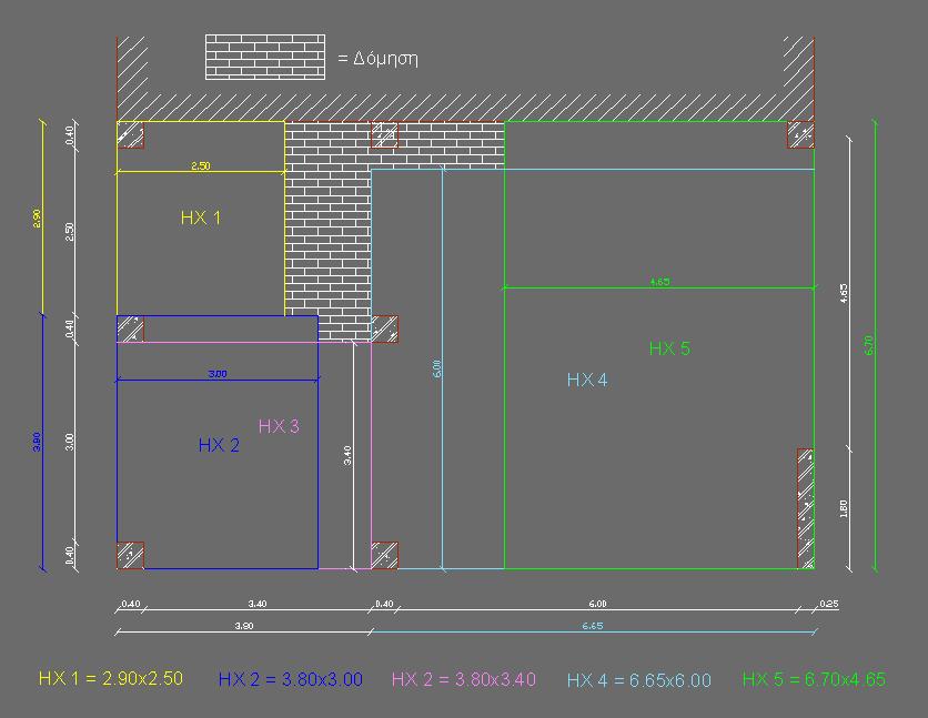
  2. Ναι είναι Η.Χ. Αλλά έτσι όπως τον έχεις δεν είναι ολόκληρος Η.Χ. Δηλαδή δεν είναι ΗΧ=15.00x5.00 Πρέπει να συμπεριλάβεις στο πλάτος και τα τειχεία. Και επίσης στο βάθος μετράει και το τειχείο. Άρα έτσι όπως το έχεις η βεράντα σου δεν είναι όλη ΗΧ. Το 2.5m είναι το ελάχιστο άνοιγμα. Όμως το ελεύθερο άνοιγμα είναι και αυτό που σου περιορίζει το βάθος του Η.Χ. Δεν μπορεί να είναι παραπάνω από αυτό
  3. Ναι είναι. Πλάτος όλη η δεξιά πλευρά, βάθος όσο είναι το ανοικτό κομμάτι ανάμεσα στους μπλέ τοίχους (το οποίο πρέπει να είναι και μεγαλύτρο από 2.50m αλλιώς δεν είναι Η.Χ.)
  4. Πάλι με μπερδεύεις. Στην ουσία έχεις 1) ισόγειο - Α'κΒ' (μία κατοικία) - Δώμα; 2) Ή έχεις Ισόγειο - Α' - Β'κΓ' (μια κατοικία) - Δώμα; Αν κατάλαβα σωστά και είναι το πρώτο, μπορείς να κάνεις σκάλα πλάτους 0.90m με ευθύγραμμα τμήματα και πλατύσκαλο, όχι με σφηνοειδή.
  5. Ο ανθρωπάκος είναι ο ιδιοκτήτης, όχι ο εργάτης. Αυτή είναι η άποψη μου. Αν πας και τρείς φορές να δείς πως πάνε οι εργασίες μιας μικροκατασκευής και αν χρειάζονται κατεύθυνση γιατί να πληρωθούμε τόσο; Είναι μια επιβάρυνση στον προϋπολογισμό του ιδιοκτήτη χωρίς ορατό οφέλιμο αντίκρυσμα προς αυτόν. Η επίβλεψη έπρεπε να είναι μέρος της αμοιβής μας, εκτός κι αν υπάρχει πρόβλημα παράστασης ή τελος πάντων δε θέλεις/θέλεις κάποιος άλλος να την κάνει. Αλλιώς μου θυμίζει τα έξοδα παράστασης των βουλευτών στις διάφορες επιτροπές όπου πίνουν καφέ και συζητούν πως πέρασαν τα σ/κ. Α, υπογράφουν και την απόφαση. Υ.Γ. οκ αυτή η φορά ήταν η τελευταία, δε ξαναγραφώ! (Μιλάω για μικρο κατασκευές, όχι για μεγάλα τεχνικά έργα όπου πρέπει να είσαι από πάνω απ το προσωπικό να τους κατευθύνεις.)
  6. Ναι στα ΚΕΠ και οι δύο. Και ξεχωριστές εξουσιοδοτήσεις. Εγω στην αίτηση τους βάζω μαζί και τους χωρίζω με "/". Όλα, Α.Φ.Μ. Α.Δ.Τ. κτλ
  7. Ναι σωστά με την προϋπόθεση πως δεξιά αριστερά δεν υπάρχει κάτι άλλο.
  8. A ok γιατι νομισα πως με το κιτρινο περιγραμμα εδειχνες τους ΗΧ οκ Αν καταλαβα καλα αυτο που λες θα ειναι 7.00x3.00. Αν μπορεις κανε ενα σκετς
  9. Οι κολώνες μετράνε κανονικότατα στους Η.Χ. Γιατί τους έχετε πως δε μετράνε; Έκανα ένα παράδειγμα στο CAD. Αν έχω κάτι λάθος ή τυχόν ενστάσεις πείτε μου. Α διόρθωση. Τις διαστάσεις τις επέλεξα επίτηδες έτσι ώστε να περισσεύει χώρος ο οποίος να μετράει στη δόμηση. Στην περίπτωσή σου (δε ξέρω τις διαστάσεις σου) όλος ο στεγασμένος χώρος φαίνεται να είναι ΗΧ και ο υπόλοιπος αίθριος.
  10. Καλή επιτυχία. Α και κάτι που δεν είχα προσέξει πιο πριν. Τί εννοείς πως είσαι εντάξει από νομικής πλευράς; Το κλείσιμο εξώστη, έστω και με κινητά στοιχεία, είναι παράνομο. Κοίταξε να το φτιάξεις με κινητά στοιχεία και αν γίνεται με κατασκευή που να χαλάει εύκολα για να μη σε κηνυγήσει κανένας γείτονας ε;
  11. Βεβαίως και είναι, μεγαλύτεροι νταβατζήδες από τους δικηγόρους εγώ δε ξέρω. Επίσης, δεν εννόησα να μη γίνεται επίβλεψη... Η επίβλεψη είναι απαραίτητη, αλλά οι τιμές στην εποχή την οποία διανύουμε φαντάζουν υπέρογκες. Αύξηση της αμοιβής, μείωση της επίβλεψης είναι μια πρόταση. Συγνώμη καταστρέψαμε το thread, σταματάω εδώ!
  12. Ε ναι αλλά αν έχει φτάσει η επίβλεψη να κοστίσει όσο και η προσθήκη τμήματος στέγης στο δώμα; Δεν είναι κρίμα ο ανθρωπάκος να πληρώνει έτσι τσάμπα διότι έτσι απαιτεί ο νόμος; Έρχονται κάτι ανθρωπάκια και ζητάνε κάτι μικροπράγματα. Πώς του λες μετά το ύψος της επίβλεψης; Σκέψου το κι έτσι.
  13. Το σωστό είναι να μην αφαιρέσεις τις κολώνες. Σε έναν ημιυπαίθριο δε θα τις μετρούσες; Με την ίδια λογική τις μετράς και στην πιλοτή. Αλλά εφόσον σου έδωσαν "οκ" και πως θα το περάσουν ως είναι, τότε προχώρα.
  14. Τί ρωτάς τώρα γιατί μπερδεύτηκα λιγάκι. Αν μπορείς να έχεις κλίμακα μικρότερη μόνο στο τελευταίο στάδιό της που οδηγεί στο δώμα;
  15. Καμία από αυτές τις υπηρεσίες δεν έχει δικαιοδοσία σε τακτοποιηθέντα χώρο. Το αναφέρει ο ίδιος ο νόμος αλλά βαριέμαι να το βρώ τώρα διότι φεύγω. Αυτά που είχαν γίνει στις ειδήσεις σε κάποιες περιοχές ήταν απλώς γελοία, κάνανε ότι τους κατέβηκε, ούτε να διαβάσουν δεν κατάφεραν. Τελος πάντων, περασμένα και εύχομαι και ξεχασμένα.
  16. Μια αυτοψία θα τους πείσει τότε, αρκεί να έχει τηρηθεί το σχέδιο...! χεχε
  17. Τι εννοείς; Γιατί να χρειαστεί να αποδείξεις πως μέρος του υπογείου χρησιμοποιείται πια ως κύριος χώρος. Απλώς το δηλώνεις και πλερώνεις. Αυτός είναι άλλωστε και ο σκοπός του νόμου αυτού.
  18. Παιδιά οι κολώνες δεν αφαιρούνται... μόνο αυτές που ανήκουν στο περίγραμμα της εισόδου.
  19. Τα τοιχεία/κολώνες δεν αφαιρούνται, εκτός από αυτά που βρίσκονται εντός της εισόδου. Μόνο ο τοίχος που ακουμπά σε γειτονικό οικόπεδο αφαιρείται.
  20. Erling που βασίζεις την άποψη πως μπορεί να υπάρξει σφηνοειδής κλίμακα με πλάτος 0.90; Εφόσον αποφασιστεί να γίνει 0.90 δεν πάει αυτομάτως στον τυπο ΙΙ και άρα δεν επιτρέπονται (στο βαθμό στον οποίο να θέλουμε) σφηνοειδή πατήματα; Διαβάζω και ξαναδιαβάζω αλλά πουθένα δε βλέπω τέτοιο παράθυρο
  21. Εμένα μου είπαν στις αιτήσεις να αναγράφονται όλοι οι συνιδιοκτήτες όχι μόνο ο ένας. Τους χωρίζω με / σε όλα τα στοιχεία τους και είμαι εντάξει. Νομίζω είναι λάθος να έχεις τα στοιχεία μόνο του ενός, απλώς δεν ασχολούνται περισσότερο και τα διεκπεραιώνουν ούτως ή αλλως. Αλλά αφού γίνεται η δουλειά όλα καλά
  22. Σόρι αν βιάστηκα, αλλά δεν είδα πουθενά να λέει Αττική. Είδα Αθήνα στις πληροφορίες του και υπέθεσα πως για εκεί αναφέρεται.
  23. Αφού αυτοί έχουν καταλήξει να κατευθύνουν τα πάντα, τι ήθελες να σου πω. Αυτοί μας κυβερνάνε ουσιαστικά. Αν δεν πάρουν αυτοί απόφαση, δεν πα να χτυπιόμαστε εμείς για το δίκαιο των αιτημάτων μας... Όπως είπε και ο ερλινγ λοιπόν... μια χαρά τα ξέρουν αλλά έλα μώρε τώρα ποιός ασχολείται... άσε που θα χάσουμε και τις επιρροές μας... Ξέρω! Με έχει φάει η αισιοδοξία
  24. Αν έριξες μια ματιά στο link θα πρόσεξες πως ο αριθμός των απαιτούμενων χώρων στάθμευσης εξαρτάται από το εμβαδό της δόμησης και όχι από τον αριθμό των διαμερισμάτων. Άρα είσαι καλυμμένος, αυτό ήθελα να σου πω. Εφόσον τα μέτρα δεν αλλάζουν, δεν απαιτείται επιπλέον χώρος στάθμευσης.
  25. Το μήνυμα συναδελφωσύνης δυστυχώς δεν φτιάχνει την κατάσταση των καταστρατηγημένων επαγγελματικών δικαιωμάτων. Και σε ποιόν να απευθυνθούμε για πιθανή σκέψη διευθέτησης όλων αυτών. Αφου οι συνδικαλιστές σφυράνε αδιάφορα.
×
×
  • Create New...

Σημαντικό

Χρησιμοποιούμε cookies για να βελτιώνουμε το περιεχόμενο του website μας. Μπορείτε να τροποποιήσετε τις ρυθμίσεις των cookie, ή να δώσετε τη συγκατάθεσή σας για την χρήση τους.