Meremeti
Core Members-
Περιεχόμενα
470 -
Εντάχθηκε
-
Days Won
1
Τύπος περιεχομένου
Profiles
Φόρουμ
Downloads
Gallery
Ειδήσεις
Media Demo
Αγγελίες
Store
Everything posted by Meremeti
-
Αν δεν πήρες ήδη, μόλις πριν λίγα λεπτά (ξανα)βγήκε ο ΟΚΙ σε προσφορά. Σχόλια χρηστών εδώ.
-
Μπορείς να μου πεις αν ήσουν στην χαμηλότερη ασφαλιστική κατηγορία με 1816,32€ και πόσο σου βγήκαν οι τόκοι ακριβώς; 12,71€; Σύνολο 1816,32 + 12,71 = 1829,03€
-
Γύρισα πριν λίγο από Attica.. Για πληρωμή του Α' 2016 στο χρεώνουν μεν στην κάρτα με δόσεις, αλλά σου δίνουν επιταγή στο χέρι για να την πας στο ΤΣΜΕΔΕ (επειδή οι τράπεζες, ως γνωστόν, δεν δέχονται την πληρωμή ληγμένου ειδοποιητηρίου). Με τους τόκους υπερημερίας, που πλέον μειώθηκαν σε ~15 ευρώ, δεν ξέρω τι γίνεται και κατά πόσον θα δεχθούν στο ταμείο να τους τα δώσεις σε μετρητά ή πρέπει να τους συμπεριλάβεις ντε και καλά στην επιταγή. ΥΓ: Για ανανέωση της κάρτας, σε όσους είναι στο μήνα λήξης της, πρέπει να την παραλάβεις από το κατάστημα με την ταυτότητά σου, όπου αν θες παίρνεις επιτόπου τηλέφωνο στα κεντρικά για ενεργοποίησή της.
- 95 απαντήσεις
-
- visa
- mastercard
-
(and 1 more)
Με ετικέτα:
-
Λέτε να δώσουν την παράταση μέσα στον Δεκέμβριο για έως 30/11 (αναδρομικά); Σε μια τέτοια περίπτωση αξίζει να πληρώσουμε μέχρι αύριο , για να μη χάσουμε τις ρυθμίσεις. Αν δεν δώσουν, συμφέρει να αφήσουμε το Α' 2016 να καταστεί ληξιπρόθεσμο για να το συμπεριλάβουμε στη νέα ρύθμιση των 120 δόσεων, αν και όποτε έρθει. Το ιδανικό σενάριο είναι φυσικά να δώσουν παράταση μέχρι τέλος του έτους.
-
απαλλαγή ΦΠΑ για αγορές από το amazon.co.uk
Meremeti replied to ileve's θέμα in Φορολογικά-Λογιστικά
Γιατί να μην αποδώσει το ΦΠΑ στην αγγλική εφορία; Αγγλικό % δεν χρέωσε; Εγώ νομίζω ότι θα χρειαστεί να το αποδώσει. Εκτός αν είναι κανένας κινέζος που δραστηριοποιείται στην ΕΕ μέσω Αγγλίας ημι-παράνομα (έχει γεμίσει ο τόπος από τέτοιους), οι οποιοι κάνουν μεγάλες κομπίνες με το ΦΠΑ εις βάρος των νομοταγών επιχειρήσεων βεβαίως βεβαίως.. Δυνατότητα επιστροφής δεν υπάρχει; Π.χ. να το βγάλεις σε DOA με υποθετικό πρόβλημα.. Να αναγκαστεί να σου κόψει επιστροφικό και να το ξαναπαραγγείλεις ακόμη και από τον ίδιο; Γιατί να μην γλυτώσεις τα 70€ αφού είσαι ήδη στις ενδοκοινοτικές. Αμαρτία είναι.. -
απαλλαγή ΦΠΑ για αγορές από το amazon.co.uk
Meremeti replied to ileve's θέμα in Φορολογικά-Λογιστικά
Δεν νομίζω ότι μπορείς να εκπέσεις από τα εξοδά σου invoice από άλλη χώρα, χωρίς να έχεις κάνει από πριν την διαδικασία με τις ενδοκοινοτικές αποκτήσεις. Παρόλαυτά ορισμένοι τα περνάνε στα έξοδά τους μαζί με το ΦΠΑ. Εγώ θα το περνούσα, όλο το ποσό. -
Δεν πήρε εκ νέου παράταση (ακόμα) είπαμε.
-
Μάλλον το Α' 2016 πλήρωσε, για το οποίο δεν δώθηκε ακόμα παράταση (και απ' ότι βλέπω ούτε θα δοθεί).
-
Ntanos έκλαψα! Άψογος!!!
-
Τον ήπιαμε όσοι δεν προλάβαμε, αν περιμένουμε να δώσει το ΟΚ η τρόικα που δεν έχει κάνει ποτέ κάτι αντίστοιχο. Η μόνη μου παρηγοριά είναι το ότι θα βγει ο Τραμπ και θα γίνει ο Γ' Παγκόσμιος Πόλεμος όποτε τίποτα απ' όλα αυτά δεν θα έχει σημασία πια.
-
Συμβολαιογραφική πράξη δέσμευσης θέσης στάθμευσης
Meremeti replied to nikpat's θέμα in ΓΟΚ - Κτιριοδομικός
Δικηγόρο - συμβολαιογράφο καλύτερα να ρωτήσεις. Σε δικιά μου αντίστοιχη περίπτωση είχα καταλήξει ότι μπορεί να χρησιμοποιήσει και τις προαιρετικές και τις υποχρεωτικές. Δεν προχώρησε όμως γιατί δεν πληρούνταν οι προϋποθέσεις εισόδου - εξόδου. -
Είναι από τα πιο σημαντικά! Υπάρχουν αλυσιδωτές αντιδράσεις και επηρεάζονται ήδη ανθρώπινες ζωές! Δείτε το ντοκιμαντέρ "Racing Extinction" και τόσα άλλα.
-
Ακόμα δεν έχει εγκριθεί η παράταση που ζήτησε ο Στασινός: Το ΔΣ του ΕΤΑΑ, σε συνέχεια του αιτήματος του Προέδρου του ΤΕΕ και της σχετικής απόφασης της ΔΕ του ΤΣΜΕΔΕ, για παράταση της προθεσμίας πληρωμής των ασφαλιστικών εισφορών του Ά εξαμήνου του 2016 των ελεύθερων επαγγελματιών μηχανικών για ένα μήνα και συγκεκριμένα μέχρι και τις 30.11.2016, αποφάσισε να μεταβιβάσει την συγκεκριμένη απόφαση στον αρμόδιο υπουργό Εργασίας, Κοινωνικής Ασφάλισης και Κοινωνικής Αλληλεγγύης κ. Γ. ΚΑΤΡΟΥΓΚΑΛΟ, προκειμένου να εγκριθεί το αίτημα των χιλιάδων συναδέλφων μηχανικών. (Τελ. ενημέρωση 02/11/2016 17:30)
-
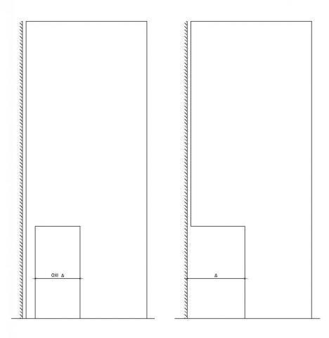
Φωταγωγός 1,20x4,00 που έγινε 1,00x4,00 μήπως είναι πιο σωστό να χρεωθεί όλος ως Υ.Δ.;
- 1.410 απαντήσεις
-
- υπερβάσεις
- δόμηση
-
(and 2 more)
Με ετικέτα:
-
Ενημερώνω ότι και με internet banking να πληρώσεις το σύστημα πάλι καταχωρεί την πληρωμή την επόμενη εργάσιμη, όπως και δια ζώσης στο κατάστημα. Συνεπώς αν υπάρχουν προθεσμίες χρειάζεται να αφήνουμε μια εργάσιμη περιθώριο.
- 95 απαντήσεις
-
- visa
- mastercard
-
(and 1 more)
Με ετικέτα:
-
Από το άλλο σχετικό θέμα είχαμε μείνει στα παρακάτω και δε νομίζω να έχει αλλάξει κάτι:
-
Μόνο που δεν έχει ξεκαθαριστεί αν έστω και μία απόδειξη με ιδιώτη σε καθιστά Ε.Ε. Στην εφορία που υπάγομαι έτσι το αντιλαμβάνονται και κατά τη γνώμη μου έχουν δίκιο.
-
Συγκεντρωτικές Καταστάσεις Πελατών-Προμηθευτών ΜΥΦ
Meremeti replied to Antiermitianos's θέμα in Φορολογικά-Λογιστικά
Είναι απαραίτητο να συμφωνούν οι ΜΥΦ με το Ε3; Αναφέρομαι στην περίπτωση που (κακώς) ξεχάστηκε ένα τιμολόγιο δαπανών και δεν συνυπολογίστηκε στο Ε3. Καλύτερα να αφήσουμε την απόκλιση στις ΜΥΦ ή να το δηλώσουμε; (σημ: είμαι στην απαλλαγή ΦΠΑ) -
Δεν είναι δυνατόν να εμπνέυστηκε η ίδια η Ζαχα αυτό το τερατούργημα! Κάποιος βλάξ από το γραφείο της θα ήταν, κάποιος που έχει δει πολύ StarWars!
-
Συγκεντρωτικές Καταστάσεις Πελατών-Προμηθευτών ΜΥΦ
Meremeti replied to Antiermitianos's θέμα in Φορολογικά-Λογιστικά
Δηλαδή σου είπε ό,τι ακριβώς σου είχε ήδη πει ο georgegaleos.. Φταίει λίγο κι αυτός - να τα λέμε - επειδή δεν χρησιμοποίησε το παράδειγμα του κουμπαρά Καλημέρα -
Αν είχατε παλαιότερα κάνει Σύσταση Οριζόντιας Ιδιοκτησίας, θα μπορούσε ο μηχανικός να ασχοληθεί ξεχωριστά με την κάθε ιδιοκτησία, οπότε θα μπορούσατε να αφήνατε τα 48τμ για να τα τακτοποιήσετε στο μέλλον, αφού δεν έχετε τα λεφτά τώρα. Σε αντίθετη περίπτωση (που πιθανότατα είναι και η συγκεκριμένη όπως μας τα λέτε) δεν μπορεί (νόμιμα) ο μηχανικός να "κάνει τα στραβά μάτια". Όμως ούτε οποιαδήποτε μεταβίβαση μπορεί να γίνει χωρίς βεβαίωση από τον μηχανικό, οπότε και το σενάριο που σκεφτήκατε καταργείται. Επομένως, μένετε ως έχετε για την ώρα και στο μέλλον τακτοποιείτε το σύνολο της οικοδομής. Οι νόμοι αυθαιρέτων απ΄ό,τι φαίνεται ήρθαν για να μείνουν για αρκετό καιρό. Δε συντρέχει λόγος ιδιαίτερης ανησυχίας. Στα έξοδα, εκτός από αμοιβές, υπάρχουν και πρόστιμα αυθαιρέτων καθώς και άλλες εργασίες που ενδεχομένως απαιτηθούν. Κάθε περίπτωση είναι ξεχωριστή. Επιπλέον, το αυθαίρετο του 2ου ορόφου μπορεί να το έκτισαν και να το χρησιμοποιούν συγγενείς σας, αλλά από τη στιγμή που έχετε τον αέρα, εάν ανήκει σε κάποιον, ανήκει μάλλον σε σας.
- 2 απαντήσεις
-
πως βλεπω αν εχω ιατροφαρμακευτική κάλυψη στο τσμέδε?
Meremeti replied to tzitzikas's θέμα in Ασφαλιστικά
Μάλλον πρέπει να στο ενεργοποιήσει ένας οποιοσδήποτε γιατρός στην επόμενή σου επίσκεψη. Είχα προσπαθήσει επανειλημμένως να το ενεργοποιήσω σε γιατρούς όταν είχε πρωτοβγεί αλλά χωρίς αποτέλεσμα.
