ppanag Δημοσιεύτηκε November 14, 2022 at 07:05 πμ Δημοσιεύτηκε November 14, 2022 at 07:05 πμ 17 ώρες πριν, Vasilis101 said: 1) Τα τοιχώματα που έχουν μεγάλο μήκος..... .... 6) Συμπληρωματικά, ο οπλισμός τοιχωμάτων περιμετρικά ανοιγμάτων υπολογίζεται όπως ο αντίστοιχος οπλισμός δοκών σύζευξης (δυσδιαγώνιοι οπλισμοί)? Σε αυτά τα σημεία για να βρεθεί ο οπλισμός χρειάζονται επιφανειακά πεπερασμένα? 1. πόσο μεγάλο??? Τι είδους κτίριο έχεις??? Τοίχωμα υπογείου ή ανωδομής??? 6. Θεωρητικά ναι με επιφανειακά πεπερασμένα, αν πρόκειται για κτίριο με φορέα, που να αξίζει τέτοιες επιλύσεις (ελπίζω να μην έπεσες τόσο βαθιά)... Διαφορετικά για συμβατικά κτίρια αρκεί ο ελάχιστος δισδιαγώνιος οπλισμός και οι πλευρικές ενισχύσεις με μόρφωση υποστυλώματος στα άκρα του τοιχώματος, αν το άνοιγμα είναι σημαντικό... Γενικά οι πρώτες μελέτες καλό είναι να γίνονται σε συνεργασία με έμπειρους μηχανικούς για να αποφεύγονται λάθη και χάσιμο χρόνου. Το ίδιο ισχύει και για την εφαρμογή τους στο εργοτάξιο!!! Καλή αρχή !!! 1 1
Vasilis101 Δημοσιεύτηκε November 14, 2022 at 09:36 μμ Δημοσιεύτηκε November 14, 2022 at 09:36 μμ Ένα "συμβατικό" διώροφο κτίριο είναι, και με έχει δυσκολέψει λόγω αρχιτεκτονικών δυσκολιών και απειρίας. Η πλάκα ισογείου στηρίζεται περιμετρικά σε τοιχώματα και η πλάκα ορόφου σε κολώνες, δοκούς, τοιχώματα. Ανεβάζω κάτοψη πλάκας ισογείου για να μου πείτε γνώμη. Με διαγράμμιση στοιχεία που θα οπλιστούν ως υποστυλώματα, τοιχώματα με γέμισμα και υποστυλώματα του πάνω ορόφου με κόκκινο χρώμα. Τα τοιχώματα και υποστυλώματα ισογείου επέλεξα να είναι 25εκ. Προτείνετε κάποια αλλαγή? Σημείωση ότι τα υποστυλώματα του πάνω ορόφου (με κόκκινο) δε μπορούν να αλλάξουν εκτός εάν αποφασίσω μετέπειτα να βάλω κάποιο φυτευτό λόγω ανεπάρκειας αντοχών. Επιπλέον θέμα που σκέφτομαι είναι η φέρουσα ικανότητα του εδάφους και τα ελατήρια Winkler για την προσομοίωση. Η θεμελίωση θα είναι κοιτόστρωση 50εκ περίπου με ενισχυμένες ζώνες για τη διάτρηση. Ως αρχικές τιμές ποιες επιλέγετε συνήθως? Εκτίμηση του cu=100kPa και Ks=30-70MN/m3 είναι ρεαλιστικά μεγέθη? Θα ρωτήσω και στην πολεοδομία για γειτονικά έργα φυσικά και πριν ξεκινήσουν οι εργασίες θα γίνουν εδαφικοί έλεγχοι, αλλά σε στάδιο κατάθεσης για την άδεια οικοδομής ποιες τιμές χρησιμοποιείτε συνήθως?
Vasilis101 Δημοσιεύτηκε November 16, 2022 at 09:54 μμ Δημοσιεύτηκε November 16, 2022 at 09:54 μμ Επίσης, σε εσωτερικούς χώρους ή βατά δώματα που είναι κατασκευασμένοι προβολικά, θεωρείτε κινητό φορτίο 2kPa ή 5kPa?
ilias Δημοσιεύτηκε November 17, 2022 at 07:38 πμ Δημοσιεύτηκε November 17, 2022 at 07:38 πμ Ό,τι είναι πρόβολος αυτονόητα φορτίζεται και ως πρόβολος. Επίσης σε κάποιες περιπτώσεις πέρα από το κλασσικό 2/5 φορτίο, απαιτείται και ένα γραμμικό φορτίο στην άκρη του προβόλου, ας πούμε και εκεί 5αρι. θα σου πρότεινα (για να γίνεσαι πιο κατανοητός) να μιλάς με όρους διαφορετικούς, δηλαδή Οροφή Ισογείου, Οροφή Ορόφου και όχι πλάκα Ορόφου. Με τον όρο πλάκα ορόφου τι εννοείς; Το δάπεδο του ορόφου την οροφή του ορόφου;;; Για το έδαφος πρέπει να δεις τη σύστασή του πρώτα. Για ένα κλασσικό αργιλικό με λίγη άμμο εντός, μία τιμή Ks=60.000 είναι λογική, όπως επίσης και μία σεπ=150.
ppanag Δημοσιεύτηκε November 17, 2022 at 09:54 πμ Δημοσιεύτηκε November 17, 2022 at 09:54 πμ Δεν είναι κάπως υπερβολικό να γίνει κοιτόστρωση για ένα απλό δυώροφο κτίριο? Αν το έδαφος δεν έχει τίποτα αποθέσεις ρέματος κλπ., νομίζω οι πεδιλοδοκοί μια χαρά θα είναι.
ilias Δημοσιεύτηκε November 17, 2022 at 10:49 πμ Δημοσιεύτηκε November 17, 2022 at 10:49 πμ Συνήθως ναι αλλά αν έχει υπόγειο μπορείς να χρησιμοποιήσεις την κοιτόστρωση σαν τελικό δάπεδο.
Vasilis101 Δημοσιεύτηκε November 18, 2022 at 12:37 πμ Δημοσιεύτηκε November 18, 2022 at 12:37 πμ Έχω προβολικές πλάκες που υποστηρίζουν και τμήματα του δώματος και κάποια υπνοδωμάτια (καθώς δε θέλω να βάλω φυτευτές κολώνες). Οπότε, προτείνετε να χρησιμοποιήσω φορτίο μπαλκονιού όταν υπάρχει στατική λειτουργία προβόλου, δηλαδή 5kPa αντί για φορτίο κατοικίας 2kPa ή φορτίο βατού δώματος? Η κοιτόστρωση επιλέχθηκε για "κατασκευαστική ευκολία" αν και δεν υπάρχει υπόγειο. Το μεγαλύτερο ποσοστό των θεμελιώσεων στην Κύπρο γίνεται με κοιτόστρωση για να μην έχουν πολλά χωματουργικά, να μην ξανακάνουν εδαφόπλακα και για λόγους ταχύτητας. Τώρα με προβληματίζει το βάθος θεμελίωσης που είναι σχεδόν ανύπαρκτο, αλλά χωρίς θέματα παγετού το μόνο πρόβλημα που δημιουργείται είναι η αγκύρωση των κολωνοσιδέρων που σε μια 50ρα κοιτόστρωση είναι αρκετό μαζί με τα καμπύλα. Εγώ σκέφτομαι να χρησιμοποιήσω σεπ=100kPa και Ks=30,000-100,000 kN/m3 για να είμαι καλυμμένος πριν τη γεωτεχνική. Εξάλλου, η θεμελίωση είναι το πιο απρόβλεπτο τμήμα μιας κατασκευής..
tetris Δημοσιεύτηκε November 18, 2022 at 06:33 πμ Δημοσιεύτηκε November 18, 2022 at 06:33 πμ 5 ώρες πριν, Vasilis101 said: ... Το μεγαλύτερο ποσοστό των θεμελιώσεων στην Κύπρο γίνεται με κοιτόστρωση για να μην έχουν πολλά χωματουργικά, να μην ξανακάνουν εδαφόπλακα και για λόγους ταχύτητας. ... Το να εφαρμόζεις "στατιστικά" δεδομένα στη μελέτη σου, είναι ό,τι χειρότερο. Δουλειά του μελετητή μηχανικού είναι να βρίσκει το βέλτιστο συνδυασμό ΑΣΦΑΛΕΙΑΣ και οικονομίας, εφαρμόζοντας τους κανονισμούς. Διότι αν τύχει μια στραβή, και βρεθείς ενώπιον εισαγγελέα, δεν θα μπορείς να επικαλεστείς "το μεγαλύτερο ποσοστό". Κάνε λοιπόν τη δουλειά σου όπως πρέπει, και μην ξεχνάς ότι τα διαμάντια έχουν μεγαλύτερη αξία από το κάρβουνο😏. Σε ό,τι αφορά στους προβολικούς φορείς (πλάκες) φρόντισε να έχουν επαρκή δυσκαμψία, έχοντας υπόψιν τις ρηγματώσεις της ανωδομής λόγω βέλους. Αν και η άποψή μου είναι να τους χρησιμοποιείς μόνον ως εξώστες
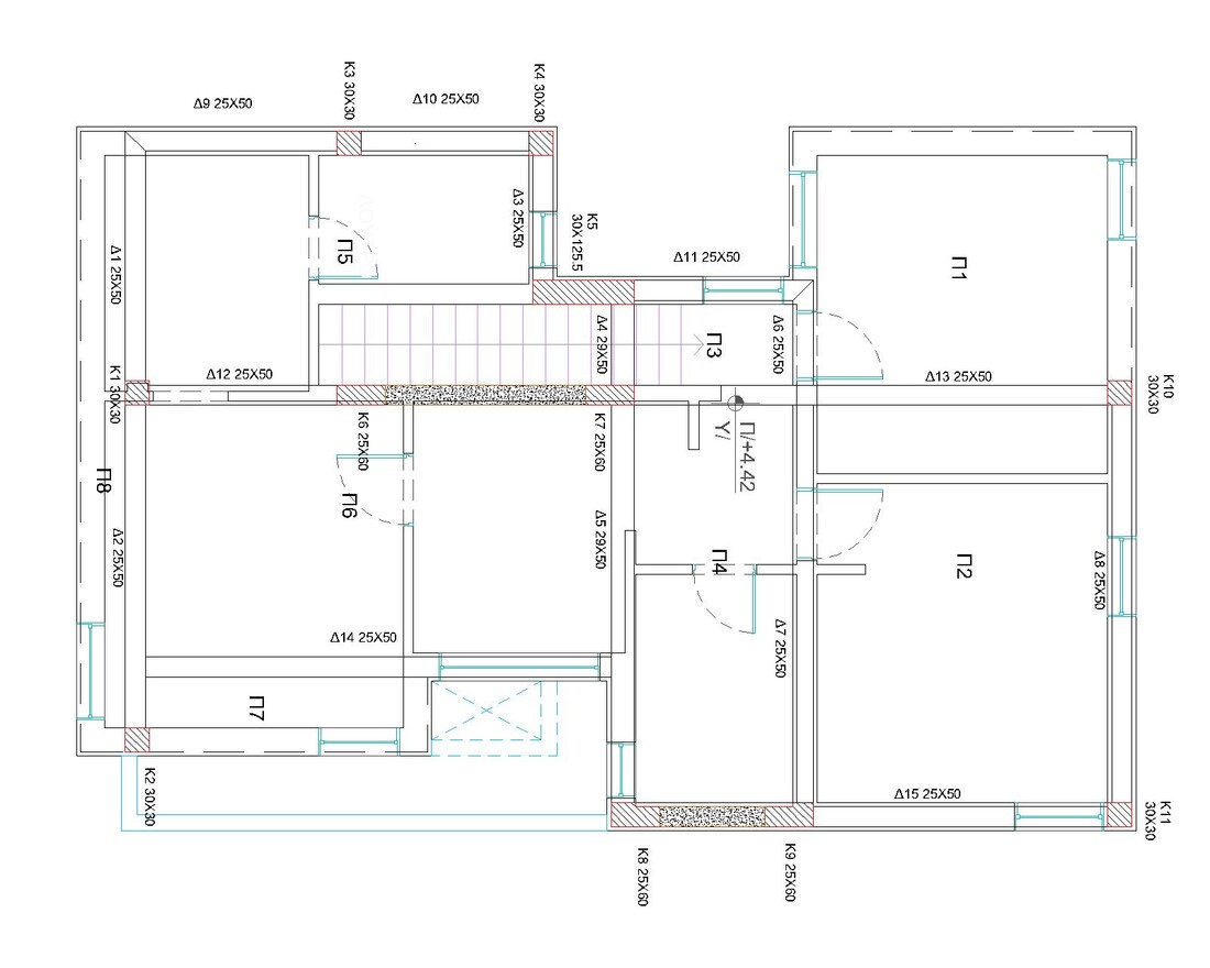
Vasilis101 Δημοσιεύτηκε November 19, 2022 at 06:44 μμ Δημοσιεύτηκε November 19, 2022 at 06:44 μμ Συμφωνούμε tetris, η ασφάλεια πάνω από όλα φυσικά! Μπορείτε να μου πείτε τη γνώμη σας για την κάτοψη της οροφής ορόφου? Δεν υπάρχει χώρος να κατέβουν άλλες κολώνες στο ισόγειο. Εάν δε φαίνονται καλά, οι Κ6,Κ7,Κ8,Κ9 είναι στοιχεία άκρων των 2 τοιχωμάτων. 1) Θα προτιμούσατε στην πλάκα Π1 διαμόρφωση προβόλου όπως φαίνεται ή διαμόρφωση με 2 φυτευτά υποστύλωματα στον άξονα με Κ3 και Κ9? Το καθαρό μήκος είναι 3.20μ και η πλάκα θα είναι 25εκ. 2) Για τις πλάκες Π6 και Π7 τι διαμόρφωση θα προτείνατε? Η δοκός Δ14 είναι 6μ και στηρίζει μόνη της την Π6 που είναι 1μ και φορτίζεται και από την Π6. Η άλλη επιλογή που σκέφτομαι είναι φυτευτό υποστύλωμα στη γωνία στον άξονα με την Κ2. Φυσικά θα αλλάξει αντίστοιχα και η διαμόρφωση των δοκών. 3) Οι αγκυρώσεις δοκών Φ14 σε 30εκ υποστυλώματα που σκέφτομαι βγαίνει βασικά Ευρωκώδικα, αλλά θα ήθελα και τη γνώμη σας. Κυρίως ενδιαφέρομαι για ποιοτικό έλεγχο καθώς ένα πρόγραμμα μπορεί να σου περνάει πολλές διαφορετικές διαμορφώσεις, αλλά αυτό δε σημαίνει ότι είναι και οι "σωστές".
ppetros Δημοσιεύτηκε November 19, 2022 at 07:43 μμ Δημοσιεύτηκε November 19, 2022 at 07:43 μμ On 11/18/2022 at 2:37 AM, Vasilis101 said: 1. καθώς δε θέλω να βάλω φυτευτές κολώνες. 2. Η κοιτόστρωση επιλέχθηκε για "κατασκευαστική ευκολία". 3. Ks=30,000-100,000 kN/m3. 1. γιατί? 2. το θέμα είναι και ο φορέας. 3. ποιά τιμή? με τέτοια διαφορά θα έχεις διαφορετικούς οπλισμούς.
Recommended Posts
Δημιουργήστε ένα λογαριασμό ή συνδεθείτε προκειμένου να αφήσετε κάποιο σχόλιο
Πρέπει να είστε μέλος για να μπορέσετε να αφήσετε κάποιο σχόλιο
Δημιουργία λογαριασμού
Κάντε μια δωρεάν εγγραφή στην κοινότητά μας. Είναι εύκολο!
Εγγραφή νέου λογαριασμούΣύνδεση
Εάν έχετε ήδη λογαριασμό; Συνδεθείτε εδώ.
Συνδεθείτε τώρα