aretiemp Δημοσιεύτηκε May 3, 2018 at 07:31 πμ Δημοσιεύτηκε May 3, 2018 at 07:31 πμ Καλημέρα σας, Έχω μια περίπτωση διώροφου κτίσματος που κατασκευάστηκε ακριβώς ίδιο με την Ο.Α. αλλά μετατοπισμένο κατά 5 μ μέσα στο οικόπεδο. Αυτή η μετακίνηση δεν παραβιάζει πλάγιες αποστάσεις και είναι εντός της Ο.Γ. Ταυτόχρονα στο ίδιο κτίσμα έχω κλεισιμο εξώστη (άρα ΥΔ) και δημιουργία κατοικίας στο υπόγειο αφού ξεμπαζώθηκε (πάλι ΥΔ μόνο). Θα ήθελα να ρωτήσω για τη μετακίνηση του κτιρίου θα μπορούσα να το θεωρήσω ως Κατηγορία 3 και τις άλλες παραβάσεις να τις βάλω ως ΥΔ με Ο.Α. ή πρέπει να λάβω υπόψη τις παραβάσεις του κτιρίου ως χωρίς Ο.Α. ? Σας ευχαριστώ εκ των προτέρων για τη βοήθειά σας.
Largy Δημοσιεύτηκε May 3, 2018 at 08:06 πμ Δημοσιεύτηκε May 3, 2018 at 08:06 πμ (edited) H μετατοπιση της κατηγοριας 3 δεν πρεπει να παραβιαζει πολεοδομικες διαταξεις (εντος ΟΓ εχεις παραβιαση) Οποτε τη μετατοπιση θα τη βαλεις με αναλυτικο . Γιατι να βαλεις χωρις ΟΑ? Για να γινει αυτο θα πρεπει το νεο περιγραμμα του κτιριου να μη συμπιπει σε κανενα σημειο με αυτο της αδειας. Αφου λες η μετατοπιση ειναι 5 μ καπου θα συμπιπει, οποτε ΥΔ με ΟΑ Edited May 3, 2018 at 08:07 πμ by Largy
aretiemp Δημοσιεύτηκε May 3, 2018 at 08:10 πμ Δημοσιεύτηκε May 3, 2018 at 08:10 πμ Ευχαριστώ πολύ για την άμεση απάντηση. Στον αναλυτικό τι θα υπολογίσω? Οπλισμένο σκυρόδεμα το κομμάτι που δεν ταυτίζεται με την παλιά θέση?
laxanos Δημοσιεύτηκε May 3, 2018 at 08:19 πμ Δημοσιεύτηκε May 3, 2018 at 08:19 πμ (edited) εξηγεί κάποιος τι σημαίνει εντός τις ΟΓ? Κατα τα λοιπά μετακίνηση με αναλυτικό πρώτη φορά ακούω. Εφόσον το κτίριο είναι σε σύννομη θέση σήμερα μπορεί να πάρει το σχετικό εδάφιο της κατηγορία 3. Τωρα τη γιαλαντζι αντιμετώπιση προσωπικά την αποφευγω εννοντας να βάλω Κατηγορία 3 για τη μετακίνηση σε νομιμη θεση και το τμήμα εντός δ κλπ ώς Υ.Δ ΥΚ κλπ. Edited May 3, 2018 at 06:43 μμ by laxanos
aretiemp Δημοσιεύτηκε May 3, 2018 at 08:24 πμ Δημοσιεύτηκε May 3, 2018 at 08:24 πμ Εντός της Ο.Γ. εννοούσα πως στη σημερινή του νέα θέση δεν έχει κομμάτι του που να είναι εντός της πρασιάς.
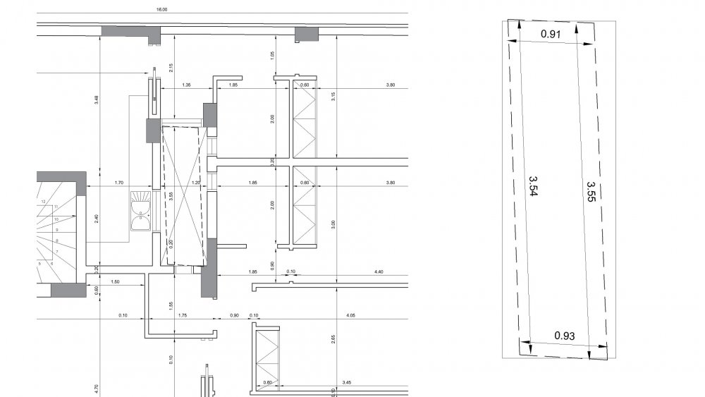
Alex99 Δημοσιεύτηκε May 3, 2018 at 10:26 πμ Δημοσιεύτηκε May 3, 2018 at 10:26 πμ (edited) Σε πολυκατοικία οι εξωτερικές διαστάσεις μετρήθηκαν 10,07 x 16,09 με το total station και είναι σχεδόν ίδιες με της άδειας (10x16μ). Τα επιπλέον 7 με 9εκ υποθέτω μπορούμε να θεωρήσουμε ότι είναι όλα σοβάς. Έχω όμως και ένα φωταγωγό διαστάσεων 1,20xΔ (από αυτούς που μετρούν στην κάλυψη αλλά όχι στην δόμηση) και το καθαρό το μετράω σήμερα 0,90xΔ. Μπορώ να το πάω ΚΑΤ3? Edited May 3, 2018 at 10:31 πμ by Alex99
Largy Δημοσιεύτηκε May 3, 2018 at 11:17 πμ Δημοσιεύτηκε May 3, 2018 at 11:17 πμ 2 ώρες πριν, aretiemp said: Εντός της Ο.Γ. καταλαβα εντος της πρασιας. Οποτε εχεις κατηγ. 3 ALEX99 γιατι μειωθηκε ο φωτ/γος? Μηπως εις βαρος του εχεις ΥΔ? 1
Alex99 Δημοσιεύτηκε May 3, 2018 at 04:26 μμ Δημοσιεύτηκε May 3, 2018 at 04:26 μμ Ναι, ασφαλώς έχουμε ΥΔ προς όφελος των διαμερισμάτων.. Αλλά και όταν η εξωτερική διάσταση του περιγράμματος του κτιρίου ή της αυτοτελούς ιδιοκτησίας μεγαλώνει έως 5% πάλι ΥΔ έχουμε και παρ' όλ' αυτά το δηλώνουμε με κατηγορία 3.
Pavlos33 Δημοσιεύτηκε May 3, 2018 at 05:05 μμ Δημοσιεύτηκε May 3, 2018 at 05:05 μμ (edited) Αν το διαμέρισμα έχει καταλάβει μέρος κοινόχρηστου (φωταγωγός) με τη μεταβολή διάστασης που παρουσιάζεις πως ακριβώς αποδεικνύεται ότι εμπίπτει στο μέγιστο ποσοστό 5% για να υπαχθεί στην κατηγορία 3. Υ.Γ Ανέβασε κάτοψη αποτύπωσης και εγκεκριμένη για να έχουμε εικόνα. Edited May 3, 2018 at 05:06 μμ by Pavlos33 1 1
Alex99 Δημοσιεύτηκε May 3, 2018 at 07:07 μμ Δημοσιεύτηκε May 3, 2018 at 07:07 μμ (edited) Το ότι ο φωταγωγός είναι κοινόχρηστος χώρος αποτελεί πρόβλημα για την ΚΑΤ3; Edit: Τώρα που το ξανασκέφτομαι, πρέπει να εξεταστεί ανά ΟΙ εφόσον υπάρχει σύσταση, επομένως δεν έχω πλέον ορθογωνικό κτίριο όπως στην αρχική μου ερώτηση, αλλά μικρότερες επιμέρους διαστάσεις. Πρέπει αυτές να ελεγχθούν μία - μία για το 5%; (είχε συζητηθεί και παλιότερα αυτό) Εδώ δηλαδή για να πάει κατ. 3 πρέπει η μεταβολή στον φωταγωγό να μην ξεπερνάει τα 1,20x0,05 = 6εκ; Μήπως βοηθάει το ότι μέτρησε στην κάλυψη; Εντωμεταξύ, μόνο τα μισά διαμερίσματα έχουν πάρει ρεύμα, η άδεια του κτιρίου είναι ακόμη ανοικτή από το 2009, οπότε για να κλείσει η επίβλεψη, η δήλωση θα ελεγχθεί και στην ΥΔομ αν έχω καταλάβει σωστά. Edited May 4, 2018 at 01:35 πμ by Alex99
Recommended Posts
Δημιουργήστε ένα λογαριασμό ή συνδεθείτε προκειμένου να αφήσετε κάποιο σχόλιο
Πρέπει να είστε μέλος για να μπορέσετε να αφήσετε κάποιο σχόλιο
Δημιουργία λογαριασμού
Κάντε μια δωρεάν εγγραφή στην κοινότητά μας. Είναι εύκολο!
Εγγραφή νέου λογαριασμούΣύνδεση
Εάν έχετε ήδη λογαριασμό; Συνδεθείτε εδώ.
Συνδεθείτε τώρα