stag94
Members-
Περιεχόμενα
37 -
Εντάχθηκε
-
Τελευταία επίσκεψη
Τύπος περιεχομένου
Profiles
Φόρουμ
Downloads
Gallery
Ειδήσεις
Media Demo
Αγγελίες
Store
Everything posted by stag94
-
Καλησπέρα σας, είμαι μηχανολόγος μηχανικός οπότε αυτό δεν εείναι το αντικείμενο μου, αλλά πρόκειται για μία οικογενειακή επιχείρηση και γι' αυτό το ψάχνω. Στην Κρήτη, στη δημοτική ενότητα Γουβών, Οικισμός Κάτω Γουβών του δήμου Χερσονήσου, δεν υπάρχει νομίζω ΣΧΟΟΑΠ. Ο οικισμός είναι 5307 κατοίκων. Βρήκα ένα προτεινόμενο ΣΧΟΟΑΠ, αυτό που έχω επισυνάψει. Το κτίριο που με ενδιαφέρει βρίσκεται εντός των ορίων του οικισμού στη διαγράμμιση που αντιστοιχει στην ένδειξη "Εγκεκριμένο Σχέδιο Πόλης" στο υπόμνημα. Τι σημαίνει αυτό; Τι χρήσεις επιτρέπονται εκεί; Επίσης μπορώ να βασιστώ σ' αυτό το σχέδιο; Εάν δεν μπορώ να βασιστώ στο προτεινόμενο σχέδιο, τότε πως καθορίζονται οι χρήσεις σε οικισμούς χωρίς ΣΧΟΟΑΠ;
-
Καλησπέρα σας, είμαι μηχανολόγος μηχανικός οπότε αυτό δεν εείναι το αντικείμενο μου, αλλά πρόκειται για μία οικογενειακή επιχείρηση και γι' αυτό το ψάχνω. Στην Κρήτη, στη δημοτική ενότητα Γουβών, Οικισμός Κάτω Γουβών του δήμου Χερσονήσου, δεν υπάρχει νομίζω ΣΧΟΟΑΠ. Ο οικισμός είναι 5307 κατοίκων. Βρήκα ένα προτεινόμενο ΣΧΟΟΑΠ, αυτό που έχω επισυνάψει. Το κτίριο που με ενδιαφέρει βρίσκεται εντός των ορίων του οικισμού στη διαγράμμιση που αντιστοιχει στην ένδειξη "Εγκεκριμένο Σχέδιο Πόλης" στο υπόμνημα. Τι σημαίνει αυτό; Τι χρήσεις επιτρέπονται εκεί; Επίσης μπορώ να βασιστώ σ' αυτό το σχέδιο; Εάν δεν μπορώ να βασιστώ στο προτεινόμενο σχέδιο, τότε πως καθορίζονται οι χρήσεις σε οικισμούς χωρίς ΣΧΟΟΑΠ;
-
Μετά το Π.Δ. 71/88, πιο συγκεκριμένα από το 2004 έως 2011
-
Καλησπέρα, συμφωνα με τη διευκρινιστική εγκύκλιο του π.δ. 41/18, για αυθαίρετο που έχει τα τακτοποιηθεί και χρειάζεται εργασίες δομησης μικρής κλιμακας, οι οποίες θα γίνουν τώρα δηλαδή μετά τις 7/8/2018 με ποια νομοθεσία θα πάμε για την μελέτη παθητικής πυροπροστασίας;
-
Ακόμα και αν κάνω σαν να μην υπάρχουν τα έπιπλα δεν καλύπτεπαι η διαφορά γιατί είναι 5.45m. Γίνεται να υπολογίσω την υπτείνουσα για τη σκάλα; Σύμφωνα με το 5.3.4 του π.δ. 41/18 έκανα την οριζόντια διαδρομή επί 1.50 Υπάρχει κάποια άλλη λύση πιστεύτε; Ή να πω στον αρχιτέκτονα να αλλάξει το σχέδιο;
-
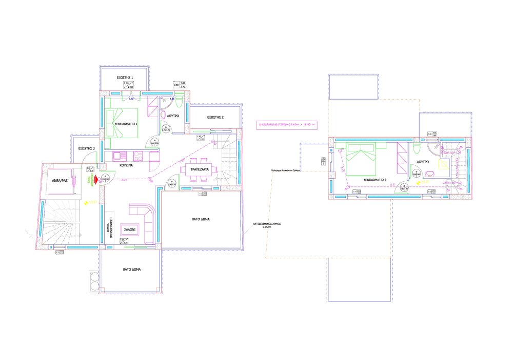
Καλησπέρα, κάνω τη μελέτη πυρασφάλειας σε μία 4όροφη οικοδομή με υπόγειο. Ο 3ος και ο 4ος όροφος είναι μία κατοικία μεζονέτα (ο 4ος είναι σοφίτα) με εσωτερική σκάλα σε αντιδιαμετικό σημείο από το κλιμακοστάσιο της πολυκατοικίας. Όλη η οικοδομή είναι κατοικίες. Το κλιμακοστάσιο το έχω βάλει να είναι πυροπροστατευμένος χώρος. Η μέγιστη πραγματική απροστάτευτη όδευση διαφυγής από το πιο απομακρυσμένο σημείου του κάθε διαμερίσματος μέχρι την έξοδο προς το κλιμακοστάσιο θα πρέπει να είναι 18m. Στην τελευταία κατοικία που είναι μεζονέτα δεν μου φτάνουν τα 18m, μετρώντας από τη σοφίτα έως το κλιμακοστάσιο. Ενδύκνεται να χωρίσω το κάτω πάτωμα με τη σοφίτα με πυραντοχη πόρτα και να κάνω το κάτω πάτωμα πυροπροστατευόμενο; Υπάρχει κάποια λύση γενικότερα που να μπορώ να δώσω εγώ, ή να πώ στον αρχιτέκτονα να αλλάξει το σχέδιο;
-
Καλησπέρα, κάνω τη μελέτη πυρασφάλειας σε μία 4όροφη οικοδομή με υπόγειο. Ο 3ος και ο 4ος όροφος είναι μία κατοικία μεζονέτα (ο 4ος είναι σοφίτα) με εσωτερική σκάλα σε αντιδιαμετικό σημείο από το κλιμακοστάσιο της πολυκατοικίας. Όλη η οικοδομή είναι κατοικίες. Το κλιμακοστάσιο το έχω βάλει να είναι πυροπροστατευμένος χώρος. Η μέγιστη πραγματική απροστάτευτη όδευση διαφυγής από το πιο απομακρυσμένο σημείου του κάθε διαμερίσματος μέχρι την έξοδο προς το κλιμακοστάσιο θα πρέπει να είναι 18m. Στην τελευταία κατοικία που είναι μεζονέτα δεν μου φτάνουν τα 18m, μετρώντας από τη σοφίτα έως το κλιμακοστάσιο. Γίνεται να χωρίσω το κάτω πάτωμα με τη σοφίτα με πυραντοχη πόρτα και να κάνω το κάτω πάτωμα πυροπροστατευόμενο;
-
Καλησπέρα σας, κάνω την πρώτη μου Μ.Ε.Α. και έχω κάποιες απορίες σε ό,τι αφορά τις θερμογέφυρες. Έχω μία μελέτη συναδέλφου σε άλλο κτίριο την οποία συμβουλεύομαι. Στο παρακάτω σκίτσο, το αριστερό σχέδιο (μπλε) είναι ο τρόπος που έχει βάλει τις θεμρογέφυρες η συνάδελφος σε παρόμοια με τη δική μου περίπτωση. Το δεξί σχέδιο (κόκκινο) είναι ο τρόπος που εγώ νομίζω ότι πρέπει να μπουν. Επειδή όμως είναι η πρώτη μου μελέτη δεν νιώθω σίγουρη. Θα μπορούσατε να με βοηθήσετε; (Δεν έχω βάλει θεμογέφυρες με οριζόντια στοιχεία, γιατί η απορία μου δεν αφορά αυτά.)
-
Καλησπέρα είμαι νέα μηχανικός και κάνω την πρώτη μου άδεια Η/Μ. Μου ζητείται λοιπόν και εμένα μία μελέτη θέρμανσης /κλιματισμού με fan coils. Ακολούθησα λοιπόν τις συμβουλές που δώσατε και στο προηγούμενο θέμα. Έκανα τη μελέτη των fan coils χωρίς να βάλω στοιχείο στο μπάνιο. Μετά έκανα έξοδο σε δισωλήνιο, και πέρασα στο δισωλήνιο fcu όπου είχα βάλει και πριν και στο μπάνιο πέρασα ένα θερμαντικό σώμα. Έβαλα θερμοκρασία προσ./επιστ. 45/40. 1)Ωστόσο στο υπολογιστικό στο δισωλήνιο έχει μόνο ένα fcu η βιβλιοθήκη. Οπότε δεν είναι το ίδιο με αυτό που έχω περάσει στο υπολογιστικό των fan coils. Αυτό δεν μας πειράζει; 2)Πέρασα ίδιες σωληνώσεις, ίδιο κυκλοφορητή και ίδιο ασφαλιστικό. Όμως δεν είχε το υπολογιστικό του δισωλήνιου και των fan coils ίδιες αντλίες θερμότητας. Οπότε έβαλα διαφορετικές αλλά ίδιας ισχύος, είναι αυτό οκ; 3)Η σύνδεση της διάταξης για ΖΝΧ από την ανλία δεν πρέπει να φαίνεται στη μελέτη θέρμανσης; 5) Τα κατακόρυφα διαγράμματα χρειάζονται; Διότι σε μία μελέτη θέρμανσης συναδέλφου που έχω δεν βλέπω να τα δείχνει πουθενά. 4)Για το υπολογιστικό τευχος της μελέτης θέρμανσης βάζω το τεύχος των θερμικών απωλειών και το τεύχος που έβγαλα από το δισωλήνιο και για τη μελέτη κλιματισμού βάζω το τεύχος των ψυκτικών φορτιίων και των fan coils, σωστά; Ζητάω συγνώμη εκ των προτέρων εάν κάποια ερώτηση μου είναι πολύ απλοϊκή αλλά είμαι σε φάση που τα μαθαίνω όλα αυτά και δεν έχω εμπειρία ούτε βοήθεια.
-
Καλησπέρα, κάνω το πρώτο ΠΕΑ μετά την κατασκευή σε νέα διώροφη οικοδομή με υπόγειο (1 κατοικία στο Ισόγειο, 1 κατοικία στον Α όροφο και το υπόγειο είναι ΜΘΧ). Εαν κάνω ένα πιστοποιητικό στη συνολική επιφάνεια λαμβάνω και υπόγειο και κλιμακοστάσιο, ενώ στη θερμική ζώνη μόνο τις κατοικίες στον Α και Β όροφο, σωστά; Θα μπορούσα να κάνω ένα ξεχωριστό πιστοποιητικό για κάθε κατοικία; Ποιά είναι τα κριτήρια που πρέπει να ελέγξω για να δω αν μπορώ να κάνω δύο πιστοποιητικά αντί για ένα;
- 7.670 απαντήσεις
-
- ενεργειακή
- μελέτη
-
(and 2 more)
Με ετικέτα:
-
Ευχαριστώ για την απάντηση dib. Κάτι άλλο που ήθελα να ρωτήσω είναι εάν από τη στιγμή που είναι δύο ανεξάρτητες κατοικίες, θα μπορούσα να το χωρίσω σε δύο πιστοποιητικά. Ποιά είναι τα κριτήρια που πρέπει να ελέγξω για να δω αν μπορώ να κάνω δύο πιστοποιητικά αντί για ένα;
-
Ευχαριστώ πολύ για την απάντηση Elec Sakis ! Ο δείκτης πυραντίστασης που δείχνω στο σχέδιο είναι αυτός που με βάσει τη νομοθεσία είδα κι εγώ ότι πρέπει να τηρείται. Όμως επειδή το κλιμακοστάσιο υπάρχει ήδη, υποθέτω θα πρέπει να ελέγξω αν η τοιχοποιία και τα κουφώματα καλύπτουν αυτήν την απαίτηση, έτσι δεν είναι; 2) Σε σχέση με το 2ο ερώτημά μου, η αποθήκη πρέπει να οριστεί χωριστά ως βοηθητικός χώρος με δικό του πληθυσμό ή να τη βάλω ως ένα με το κλιμακοστάσιο;
-
Καλημέρα σας, θα ήθελα κι εγώ να κάνω κάποιες ερωτήσεις για μία μελέτη πυρασφάλειας. Πρόκειται για ένα τριώροφο κτίριο με πυλωτή στο ισόγειο, κατοικία στον α' όροφο και κατοικία στον β' όροφο. Το κτίριο ήταν αυθαίρετο και έχει τακτοποιηθεί. Ο δεύτερος όροφος είναι μη αποπερατωμένος και θα βγει άδεια αποπεράτωσης αυθαιρέτου. Στον όροφο αυτό έχουν γίνει τοιχοποιίες, ηλεκτρολογικές και υδραυλικές εγκαταστάσεις καθώς και εγκαταστάσεις θέρμανσης. Και μου το έδωσε ένα τεχνικό γραφείο για να κάνω μελέτη παθητικής πυροπροστασίας. Από την πολεοδομία μου είπαν να πάω με τον 41/18. !!! Αφού υπάρχει η τοιχοποιία εγώ για να επιτευχθούν οι δείκτες πυραντίστασης που απαιτούνται τι κάνω; Ελέγχω αν ικανοποιούνται με τα υπάρχοντα στοιχεία; Και αν δεν ικανοποιούνται πρέπει να βάλω συστήματα πυρόσβεσης; 1) Στο κλιμακοστάσιο του ορόφου που μελετάω υπάρχει μία μικρή αποθήκη 2τ.μ. με δική της είσοδο. Πρέπει να οριστεί χωριστά ως βοηθητικός χώρος ή να τη συμπεριλάβω ως ένα με το κλιμακοστάσιο; Η αποθήκη αυτή δεν θεωρείτε επικίνδυνος χώρος όπως καταλαβαίνω και από την παραπάνω συζήτησή σας, σωστά; 2) Η τελική έξοδος του κτιρίου είναι η έξοδος που μας βγάζει εκτός του κτιρίου στο δρόμο από το ισόγειο, σωστά; 3) Χρειάζεται σχέδιο που να δείχνει την όδευση από την έξοδο της κατοικίας μέσω του πυροπροστατευμένου κλιμακοστασίου του ορόφου προς την τελική έξοδο; (Πυροπροστατευμένη όδευση διαφυγής) 4) Η θέρμανση της κατοικίας θα είναι ενδοδαπέδια με αντλία θερμότητας η οποία βρίσκεται στο δώμα έξω από το κλιμακοστάσιο. Μέσα στο κλιμακοστάσιο αλλά στο επίπεδο του δώματος βρίσκεται ο ηλεκτρικός θερμαντήρας για το ΖΝΧ. Με βάσει αυτά τα στοιχεία που αναφέρω δεν υπάρχει κάποιος επικίνδυνος χώρος σωστά; 6) Επιπλέον στο κτίριο έχει δημιουργηθεί φρεάτιο για ασανσέρ, αλλά δεν θα κάνουν εγκατάσταση ανελκυστήρα, και έχουν κλείσει το φρεάτιο με γυψοσανίδα. Παίζει πουθενά ρόλο αυτό στην πυρασφάλεια; Εγώ το έχω θεωρήσει ενιαία με το χώρο του κλιμακοστασίου. Σε μία άλλη περίπτωση έχω ισόγεια κατοικία με υπόγειο. Το Ισόγειο βρίσκεται στην στάθμη +1.70, το υπόγειο στην στάθμη -1.55 και η είσοδος για το κλιμακοστάσιο από το δρόμο, η οποία είναι η τελική μου έξοδος, στο +0.00. Σε ποιο επίπεδο να θεωρήσω την τελική έξοδο, υπόγειο ή ισόγειο; Συγχωρέστε με εάν κάποιες από τις ερωτήσεις είναι πολύ απλοϊκές, αλλά είναι οι πρώτες μου μελέτες.
-
Καλησπέρα, κάνω ΠΕΑ σε νέα διώροφη οικοδομή με υπόγειο (δύο κατοικίες) και έχω πάρει τα αρχιτεκτονικά σχέδια και τις μελέτες η/μ από το γραφείο που έκανε τη μελέτη. Η συνολική επιφάνεια είναι περίπου 290τ.μ. και η επιφάνεια ζώνης 211τ.μ. Εγώ ως ενεργειακός επιθεωρητής Α' Τάξης δεν μπορώ να υπογράψω σωστά; Λαμβάνεται η συνολική επιφάνεια, έτσι δεν είναι; Επίσης τα τετραγωνικά που έχει βγάλει στη μελέτη ενεργειακής απόδοσης δεν συμφωνούν με αυτά που βγάζω εγώ. Στην ΜΕΑ είναι περίπου 211τ.μ. η επιφάνεια ζώνης και εγώ τη βγάζω περίπου 217τ.μ. Πιστεύετε θα υπάρχει πρόβλημα;
-
Θα ήθελα να κάνω κάποιες ερωτήσεις για μία μελέτη πυρασφάλειας. Πρόκειται για ένα τριώροφο κτίριο με πυλωτή στο ισόγειο, κατοικία στον α' όροφο και κατοικία στον β' όροφο. Το κτίριο ήταν αυθαίρετο και έχει τακτοποιηθεί. Ο δεύτερος όροφος είναι μη αποπερατωμένος και θα βγει άδεια αποπεράτωσης αυθαιρέτου. Στον όροφο αυτό έχουν γίνει τοιχοποιίες, ηλεκτρολογικές και υδραυλικές εγκαταστάσεις καθώς και εγκαταστάσεις θέρμανσης. Και μου το έδωσε ένα τεχνικό γραφείο για να κάνω μελέτη παθητικής πυροπροστασίας. Από την πολεοδομία μου είπαν να πάω με τον 41/18. !!! Αφού υπάρχει η τοιχοποιία εγώ για να επιτευχθούν οι δείκτες πυραντίστασης που απαιτούνται τι κάνω; Ελέγχω αν ικανοποιούνται με τα υπάρχοντα στοιχεία; Και αν δεν ικανοποιούνται πρέπει να βάλω συστήματα πυρόσβεσης; 1) Στο κλιμακοστάσιο του ορόφου που μελετάω υπάρχει μία μικρή αποθήκη 2τ.μ. με δική της είσοδο. Πρέπει να οριστεί χωριστά ως βοηθητικός χώρος ή να τη συμπεριλάβω ως ένα με το κλιμακοστάσιο; Η αποθήκη αυτή δεν θεωρείτε επικίνδυνος χώρος σωστά; 2) Η τελική έξοδος του κτιρίου είναι η έξοδος που μας βγάζει εκτός του κτιρίου στο δρόμο από το ισόγειο, σωστά; 3) Χρειάζεται σχέδιο που να δείχνει την όδευση από την έξοδο της κατοικίας μέσω του πυροπροστατευμένου κλιμακοστασίου του ορόφου προς την τελική έξοδο; (Πυροπροστατευμένη όδευση διαφυγής) 4) Η θέρμανση της κατοικίας θα είναι ενδοδαπέδια με αντλία θερμότητας η οποία βρίσκεται στο δώμα έξω από το κλιμακοστάσιο. Μέσα στο κλιμακοστάσιο αλλά στο επίπεδο του δώματος βρίσκεται ο ηλεκτρικός θερμαντήρας για το ΖΝΧ. Με βάσει αυτά τα στοιχεία που αναφέρω δεν υπάρχει κάποιος επικίνδυνος χώρος σωστά; 6) Επιπλέον στο κτίριο έχει δημιουργηθεί φρεάτιο για ασανσέρ, αλλά δεν θα κάνουν εγκατάσταση ανελκυστήρα, και έχουν κλείσει το φρεάτιο με γυψοσανίδα. Παίζει πουθενά ρόλο αυτό στην πυρασφάλεια; Εγώ το έχω θεωρήσει ενιαία με το χώρο του κλιμακοστασίου. Σε μία άλλη περίπτωση έχω ισόγεια κατοικία με υπόγειο. Το Ισόγειο βρίσκεται στην στάθμη +1.70, το υπόγειο στην στάθμη -1.55 και η είσοδος για το κλιμακοστάσιο από το δρόμο, η οποία είναι η τελική μου έξοδος, στο +0.00. Σε ποιο επίπεδο να θεωρήσω την τελική έξοδο, υπόγειο ή ισόγειο; Συγχωρέστε με εάν κάποιες από τις ερωτήσεις είναι πολύ απλοϊκές, αλλά είναι οι πρώτες μου μελέτες και δεν έχω κάποια καθοδήγηση πέραν της νομοθεσίας και από την πολεοδομία δεν απαντάει κανείς στα τηλέφωνα.
-
- πυροπροστασία
- 41/2018
- (and 10 more)
