kostaskappa
Members-
Περιεχόμενα
100 -
Εντάχθηκε
-
Τελευταία επίσκεψη
Τύπος περιεχομένου
Profiles
Φόρουμ
Downloads
Gallery
Ειδήσεις
Media Demo
Αγγελίες
Store
Everything posted by kostaskappa
-
H ενταξη της περιοχής στο σχέδιο έγινε το 1989 και τα όμορα κτίσματα ειναι του 1991 δηλ. χτιστηκαν με ΓΟΚ 85.
-
Συναδελφε kan62 θα με βοηθουσες πολυ αν εξηγουσες τον συλλογισμό σου - εγω κατανοώ την παρ.η του Αρ.24 ως εξης : " μονο κατα το τμημα του οικοπέδου αυτου , κατά το οποίο το όμορο κτισμα , βρίσκεται σε απόσταση από το κοινό όριο " ,αρα συμφωνω με τον pavlos33 διαφορετικά ίσως διατυπώνονταν κάπως έτσι : " μόνο κατά το κοινό όριο με το οικόπεδο αυτό" , δηλ. δεν θα αναφέρονταν σε τμήμα οικοπέδου Απο την αλλή παλι εχω αμφιβολιες , διοτι αν η παρ.η αναφερεται σε "τμημα οικοπέδου που αντιστοιχεί σε ομορο κτίσμα" δεν θα είχε καν λογο να υπαρχει ολόκληρη η παρ.η στον νόμο
-
Συναδελφοι καλησπέρα!Καμια βοηθεια μπορει να δωσει κανεις στα ερωτηματα που εθεσα???
-
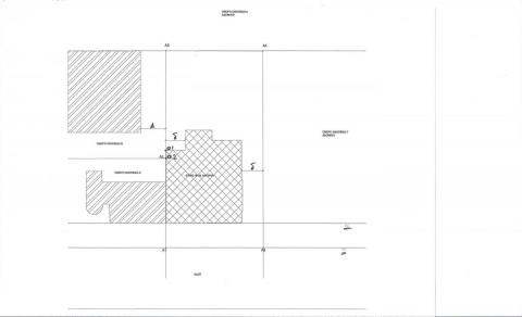
Συναδελφοι καλημερα ! Εχω δύο απορριες σχετικά με το οικοπεδο του σχεδίου που επισυναπτω: a) εχω υποχρέωση να αφισω απόσταση δ στο τμήμα α1-α2 του οικοπέδου μου ή όχι εφοσον κατά το τμήμα αυτό δεν υπάρχει κτίσμα στο ομορο οικόπεδο? β) στο πισω οριο του οικοπεδου μου υπαρχει αδόμητο οικόπεδο - αν σε αυτό χτιστεί κτιριο σε απόσταση Δ και εγω θελήσω να χτίσω δευτερο κτιριο στο οικοπεδό μου , πρέπει να αφίσω απόσταση Δ σε όλο το πίσω όριο ή μόνο σε κάποιο τμήμα του?
-
Σχετικά με τα παραπάνω θα ήθελα να ρωτήσω το εξής: αν επισυναψω συμφωνα με οσα γραφει ο faetthon11 τα σχεδια της κατοψης ,τομης ,Δ.Κ. στο σημειο που ζητάει το στελεχος της οικοδομικής άδειας , τότε τι θα επισυναψω στα σημεια που ζητάει μονο την κάτοψη, την τομη και το Δ.Κ. αντίστοιχα ? Θα επισυνάψω πάλι τα ίδια ή μήπως θα είναι τα ίδια αλλα θα περιλαμβάνουν και σχεδιασμένο και το αυθαίρετι τμήμα?
-
Μα δεν ειναι ξεκάθαρος ο νομος και δεν επιβεβαιωνεται επιπλεον και με την 5η απαντηση Β΄ Μερους Ερωταπαντησεων?Πως αντιμετωπιζεται η περιπτωση που διαφωνουν οι συνιδιοκτητες ως προς την υπαγωγη χωρου στον Ν.4014? Απάντηση : " ...χωρις να ειναι απαραιτητη η συναίνεση των υπολοιπων συνιδιοκτητων"
-
ΤΣΜΕΔΕ στη συμφωνηθείσα ή στη νόμιμη αμοιβή;
kostaskappa replied to geokaloger's θέμα in Φορολογικά-Λογιστικά
Καλησπερα συνλαδελφοι! Μπορει κάποιος να με βοηθήσει , διοτι διαβάζοντας τα οσα γράφτηκαν πιο πάνω μπερδευτηκα ? Α) Η εισφορα στο ΤΕΕ καταργήθηκε για άδειες , Ν.4014 , ΠΕΑ ? Β) Η εισφορα στο ΤΣΜΕΔΕ υπολογίζεται επι της νομιμης (ή της συμφωνηθησας όταν αυτή ειναι μεγαλυτερη) οταν προκειται για άδειες και ν.4014 ενώ υπολογόζεται επι της συμφωνηθείσας για ΠΕΑ? -
N.4014 και σύσταση οριζόντιας ιδιοκτησίας
kostaskappa replied to chrisvach's θέμα in Ν. 4014/11 - Ρυθμίσεις Αυθαιρέτων
Συνάδελφοι καλημέρα! Σε κτιριο που υπάρχει συσταση οριζοντιας προ ν4014 , τα μεγιστα επιτρεπομενα μεγέθη αναφερονται στο συνολο του οικοπέδου ή σε αυτά που αντιστοιχουν βάση της συστασης? Η διαιρεση για να προκυψει το ποσοστο υπερβασης δόμησης γίνεται δια των τ.μ. που αντιστοιχουν στον καθε ιδιοκτητη ή δια των τ.μ. ολοκληρου του οικπέδου? -
didonis αν καταλαβα καλα εφαρμοζουμε τον ΝΟΚ αν προκειται να τακτοποιησουμε αυθαιρετο με εκδοση αδειας με αρθρο 26, διαφορετικα ελεγχουμε με γοκ - δηλ. στο παράδειγμα του αυθαιρετου ανοιχτου κλιμακοστασιου ,εφοσον εχουμε εξαντλησει τη δήμηση , θεωρουμε πως έχουμε και υπερβαση δόμησης (παρότι βαση ΝΟΚ δεν θα είχαμε αφου ανοιχτο κλ/σιο δεν θα προσμετρουσε ) . Επίσης σε αυθαίρετα έπιπλέον τετραγωνικά τα οποία είναι και εντός Δ , προσαυξανουμε με τους αντιστοιχους συντελεστες υ.δ. και παραβιασης Δ , παρότι σύμφωνα με τον ΝΟΚ το Δ στο πλάγιο όριο θα ήταν δ , όπότε και τα τ.μ. της αυαθιρεσίας λιγότερα. sagiasd Καταλαβαίνω πως για να εντοπισουμε τις αυθαιρεσίες , συσχετίζουμε με την οικ. άδεια , αλλα δεν καταλαβαίνω γιατί δεν λαμβάνουμε υπόψιν το τι προβλέπει ο ΝΟΚ στον υπολογισμό του προστίμου , αφου συμφωνα με την ερωταπάντηση Γ2 τα επιτρεπόμενα μεγέθη μπορουν να αναφέρονται " στα μέγιστα επιτρεπόμενα που ισχύουν στην περιοχή του ακινήτου " .Αρα εφοσον σήμερα ισχύει ο ΝΟΚ δεν θα επρεπε να λάβουμε υποψιν τα μεγέθη που αυτός προβλέπει , οπως τη μεγιστη επιτρεπόμενη δόμηση και το τι προσμετραται σε αυτή , τη μεγιστη απόσταση απο πλαγιο όριο κτλ ?
-
Ευχαριστω πολυ συναδελφε για την άμεση απάντηση-ναι το έχω υποψιν αυτό το σημείο των ερωταπαντήσεων - μήπως όμως ορίζει κάτι άλλο για το θέμα αυτό ειδικά ο ΝΟΚ και μου διαφεύγει?υπάρχει κάποιο άλλο αντιστοιχο θέμα στο forum? Ποιο συγκεκριμένα μια από τις αυθαιρεσίες είναι η εξης : σε οικοδομη του 2001 υπάρχει αυθαίρετο ανοιχτο κλιμακοστάσιο - αυτό βάση ΝΟΚ δεν προσμετραται στη δόμηση - οποτε και δεν προκυπτει παράβαση και πρόστομο??δεν είναι κάπως παραδοξο??
-
Καλησπέρα! Παρακαλω για βοηθεια στο εξης: Σε οικοδομή με πολλές αυθαιρεσίες , για την οποία θέλω να υποβάλλω δήλωση με τον Ν.4014 , μπορώ να κάνω τον ελεγχο των διαφόρων μεγεθων , όπως υπέρβαση δόμησης , αποστάσεις Δ,δ, κλιμακοστάσιο κτλ με βάση τον ΝΟΚ , δεδομένου ότι αυτός είναι ευνοικοτερος απο τον ΓΟΚ (οικοδομη με άδεια 2001)
-
άρθρα 12-17 Συντελεστής Κάλυψης – Ακάλυπτοι χώροι
kostaskappa replied to Didonis's θέμα in ΝΟΚ (Νέος Οικοδομικός Κανονισμός)
Ευχαριστώ παρα πολυ kan62 - διάβασα πιο προσεχτικά τα αντιστοιχα- 290 απαντήσεις
-
- νοκ
- συν. κάλυψης
-
(and 3 more)
Με ετικέτα:
-
άρθρα 12-17 Συντελεστής Κάλυψης – Ακάλυπτοι χώροι
kostaskappa replied to Didonis's θέμα in ΝΟΚ (Νέος Οικοδομικός Κανονισμός)
Καλησπέρα ,παρακαλώ ας με βοηθήσει οποιος συναδελφος γνωρίζει: α)οταν υπόγειος όροφος παρκιγκ κατοικίας εκτείνεται πέρα από το περίγραμμα της κάτοψης του ισογείου αλλά ο χώρος πάνω απο αυτόν δεν φυτεύεται , τότε το τμήμα αυτό του υπογείου προσμετράται στην κάλυψη ή δεν επιτρέπεται να κατασκευαστεί καν? β) Μπορεί να δημιουργηθεί εξώστης εντός του δ , ο οποίος να έχει πλάτος >1/4δ και να προσμετρηθεί στην κάλυψη ωστε να μην θεωρείται οτι βρίσκεται εντός του υποχρεωτικά ακάλυπτου χώρου? Συγκεκριμένα όπως φαίνεται στη κάτοψη που επισυνάπτω σε ισόγεια κατοικία με υπόγειο για την οποία έχω πάρει ήδη εγκριση δόμησης έχω τα εξης προβλήματα: Οι Η.Χ.1 και Η.Χ.2 δεν έχουν μήκος ανοιγματος τουλ. 35% του περιγράμματος ανοιχτό (πράγμα που δεν εντοπίστηκε στον έλεγχο στη πολεοδομία).Τι μπορώ να κάνω προκειμένου να αλλάξω κατά το λιγότερο δυνατό τη μελετη??Θα με βόλευε να αναθεωρήσω την έγκριση δόμησης ως εξης: α) Τα τμήματα ΗΧ1 και ΗΧ2 που έχω ήδη μετρήσει στην κάλυψη να τα μετατρέψω σε εξωστες (χωρις τοιχο προς το οριο) οπότε δεν θα είναι εξωστες εντος του υποχρεωτικά ακαλύπτου αλλά εντος κάλυψης β) Επίσης το τμήμα πάνω από το υπόγειο το οποίο θα εκτείνεται πια πέρα από το περίγραμμα της κάλυψης του ισογείου δεν χρειάζεται να φυτευτεί εφοσον το αντίστοιχο τμήμα του υπογείου θα έχει προσμετρηθεί στη κάλυψη Ευχαριστώ πολύ- 290 απαντήσεις
-
- νοκ
- συν. κάλυψης
-
(and 3 more)
Με ετικέτα:
-
ευχαριστώ πολύ για την απάντηση pavlos33 - κι εγώ την ίδια άποψη έχω αλλα και την ίδια απορία - δηλ. μια εσοχή πρέπει να είναι τουλ. 1,20μ. ως προς τις δύο διαστάσεις ή αρκεί μόνο ως προς το άνοιγμα για να μη μετρήσει στη δόμηση ?? επείδή είμαι οριακά και έχω πρόβλημα ως προς τη δόμηση ,παρακαλώ ας βοηθήσει όποις συνάδελφος γνωρίζει κάτι !!
-
Καλησπέρα! Μήπως τελικά γνωρίζει κανείς να μου απαντήσει σχετικά με το ερώτημα που έκανα και χθες: Εσοχή στο κτίριο με διασταση 1.20*0,60 μ. προσμετράται στη δόμηση ή μόνο στην κάλυψη ?? προσθέτω και σκίτσο
-
παρακαλώ όποιον συνάδελφο γνωρίζει να μου απαντήσει στο εξής : εσοχή στο κτίριο με βάθος 0,60μ. και πλάτος 1,20 μ. προσμετράται στη δόμηση ή μονο στην κάλυψη ?? παραθέτω και σκίτσο
-
Γνωρίζει κανείς να μου απαντήσει στο εξής που μου κάνανε ως παρατήρηση σε Δ.Κ. στη πολεοδομία : η επίχωση του οικοπέδου μου (εντός σχεδίου) κοντά στα πλάγια όρια θα πρέπει να είναι υποχρεωτικά 1μ. , διότι αν είναι 1.50 μ. (που τόσο είναι η δική μου) δημιουργείται περίφραξη ύψους 1,50 συμπαγής που δεν επιτρέπεται ??? Εγω θεωρώ πως το 1 μ. περίφραξη μετράται απο την ψηλότερη από τις διαμορφομένες στάθμες εκατέρωθεν της περίφραξης .Δηλ. πως μπορώ να μπαζώσω 1,50μ. και από την τελική στάθμη και πάνω να σηκώσω και τοχείο 1μ...(Η αρχική στάθμη του οικοπέδου μου είναι ιδια με αυτή του γείτονα)
-
Γνωρίζει κανείς να μου απαντήσει στο εξής που μου κάναν ως παρατήρηση σε Δ.Κ. : η επιχωση του οικοπέδου μου (εντός σχεδίου) κοντά στα πλάγια όρια θα πρέπει να είναι υποχρεωτικά ως 1μ. , διοτι αν είναι 1,50 μ. (που τόσο είναι η δική μου) δημιουργείται περιφραξη ύψους 1,50 συμπαγής που δεν επιτρέπεται??? - εγω θεωρώ πως το 1μ. περίφραξη μετράται απο την ψηλότερη από τις διαμορφομένες στάθμες εκατέροθεν της περίφραξης. Δηλ. πως μπορώ να μπαζώσω 1.50 και απο την τελική στάθμη και πάνω να σηκώσω και τοχείο 1μ.
-
Νέα έντυπα άδειας δόμησης σε μορφή Excel
file σχολίασε στο kostaskappa's st2 στις 12.3 Έντυπα - Αιτήσεις
-
Γνωρίζει κανείς αν για την εκδοση αδειας με το άρθρο 26 οι διαδικασία είναι αντίστοιχη με νέα άδεια, δηλ. εγκριση δόμησης , άδεια δόμησης κτλ??Τι γίνεται με με τις αμοιβές μελετών ? Γινονται μελέτες σαν να πρόκειται για νέο κτίριο ή απαιτούνται μελετες αποτύπωσης αρχιτεκτονικών, στατικων , παθατικής (ή τι αλλο ακόμη ?).
-
συναδελφε , ευχαριστώ πολύ για τη βοήθεια-μου ήταν πολύτιμη!!
-
Faethon11 εννοείς πως είναι δύσκολο να απαντηθεί ή όχι δεν προσμετραται ή η απαντηση σου αφορα άλλη ερώτηση???
-
Καλησπερα! Μπορει να μου απαντήσει κανεις στο εξης: Σε διώροφη οικοδομη επι pilotis με κάλυψη 80τ.μ , εχω στον 1o και 2ο όροφο μεζονέτα , ενω στο ισόγειο 10 τ.μ. κλιμακοστασιο , 30 τ.μ. κατοικια , 40 τ.μ. pilotis - Προσμετρώνται στη δόμηση τα 10 τμ. κλιμακοστασίου επειδή υπάρχει και κατοικία ή όχι ????
