nik Δημοσιεύτηκε November 8, 2023 at 01:28 μμ Δημοσιεύτηκε November 8, 2023 at 01:28 μμ Γιατί ποιος θα τα ζητήσει αυτά ? Ο Β επιθεωρητης θα δει ενα αεριο και θα το βαλει στο ΠΕΑ του.
nick_61 Δημοσιεύτηκε November 9, 2023 at 07:26 πμ Δημοσιεύτηκε November 9, 2023 at 07:26 πμ 17 ώρες πριν, nik said: Γιατί ποιος θα τα ζητήσει αυτά ? Ο Β επιθεωρητης θα δει ενα αεριο και θα το βαλει στο ΠΕΑ του. Κανείς. Για δική σου κάλυψη.
fr_sk Δημοσιεύτηκε November 9, 2023 at 11:42 πμ Δημοσιεύτηκε November 9, 2023 at 11:42 πμ Καλησπέρα σε όλους. Σε αίτηση με κλεισμένο και ανεβασμένο ΠΕΑ, ο ιδιοκτήτης ζήτησε στα πλαίσια της περικοπής του μπάτζετ να αλλάξουν οι παρεμβάσεις. Έκανα το προσάρτημα αλλά η πλατφόρμα εμφανίζει ακόμα τα στοιχεία του προηγούμενου ΠΕΑ. Πρέπει να κάνω κάτι για να εμφανιστεί το προσάρτημα στην αίτηση ή το αγνοώ και συμπληρώνω την πρόταση παρεμβάσεων σύμφωνα με το προσάρτημα; Ευχαριστώ
backaftias Δημοσιεύτηκε November 9, 2023 at 03:52 μμ Δημοσιεύτηκε November 9, 2023 at 03:52 μμ On 8/11/2023 at 12:27 ΜΜ, nik said: Να ρωτήσω κάτι. Έστω ότι ένα διαμέρισμα έχει τώρα κεντρικό πετρέλαιο για θέρμανση. Θέλω να βάλω ατομικό αέριο, να αλλάξω κουφώματα, εξωτερική μόνωση και ηλιακό. Στο ΠΕΑ φτιάχνω αυτό το σενάριο και προκύπτει π.χ. εξοικονόμηση 200κβ/μ2. Όμως επειδή α) δεν φτάνει ο προϋπολογισμός λόγω μ2 διαμερίσματος για όλα αυτά και β) μπορεί να βάλει το αέριο εκτος προγράμματος φτηνά λόγω γνωριμίας , λέμε να μην βάλουμε το αέριο στις παρεμβάσεις. Το αέριο θα μπει πάντως. Θα υπάρχει όταν θα έρθει το Β ΠΕΑ. Μπορώ λοιπόν στο σενάριο του Α' ΠΕΑ να βάλω το αέριο, να έχω εξοικονόμηση 200κβ/μ2 και να μην το βάλω στις παρεμβάσεις ? Καλησπέρα, προσοχή με την αποκοπή από τη κεντρική θέρμανση πετρελαίου για τοποθέτηση λέβητα αερίου, διότι σε ερώτηση που έκανα στο support μου είπαν πως για να τοποθετηθεί αέριο πρέπει να αντικατασταθεί ο λέβητας πετρελαίου ακόμα και στην κεντρική θέρμανση, και όχι απλά να αποκοπεί κάποιο διαμέρισμα. Μου ακούγεται παράλογο αφού ο τύπος καυσίμου αλλάζει, αλλά αυτή είναι η απάντηση που έλαβα. Βέβαια εσύ δεν θα ζητήσεις να επιδοτηθείς για αυτό, αλλά καλά θα ήταν να ρωτήσεις αν μπορεί να δηλωθεί ως παρέμβαση στο σενάριο και ας μην επιδοτηθεί.
dib Δημοσιεύτηκε November 9, 2023 at 04:44 μμ Δημοσιεύτηκε November 9, 2023 at 04:44 μμ 47 λεπτά πριν, backaftias said: Καλησπέρα, προσοχή με την αποκοπή από τη κεντρική θέρμανση πετρελαίου για τοποθέτηση λέβητα αερίου, διότι σε ερώτηση που έκανα στο support μου είπαν πως για να τοποθετηθεί αέριο πρέπει να αντικατασταθεί ο λέβητας πετρελαίου ακόμα και στην κεντρική θέρμανση, και όχι απλά να αποκοπεί κάποιο διαμέρισμα. Είπαν τέτοιο πράγμα τα αστροπελέκια του ΤΕΕ? 😀 Σου είπαν συνάδελφε σε ποια νομοθεσία αυτό αναφέρεται γραμμένο? 😉 1
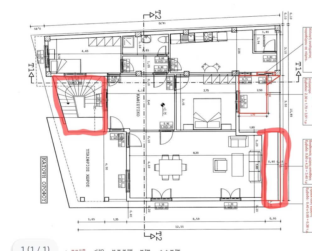
The_Bl4ck_Sheep Δημοσιεύτηκε November 9, 2023 at 05:23 μμ Δημοσιεύτηκε November 9, 2023 at 05:23 μμ Αξιότιμοι συνάδελφοι, καλησπέρα σας. Θα ήθελα τα φώτα σας για την εξής περίπτωση. Διώροφη κατοικία με οροφοδιαμερίσματα της οποίας έχει γίνει νομιμοποίηση τακτοποίηση και όλα τα καλά, επιθυμεί να μπει στο Εξοικονομώ. Σύμφωνα με την τελευταία τακτοποίηση, κάθε όροφος/διαμέρισμα έχει επιφάνεια δόμησης 119 τ.μ. Κάνω το περίγραμμα μου για το Α ΠΕΑ και καταλήγω σε 107 τ.μ. Ψάχνω ξανά τις τακτοποιήσεις και παρατηρώ ότι τα 119 τ.μ. εμπεριέχουν ένα βοηθητικό ΜΘΧ (άντε και τον βάζω στο ΠΕΑ με κάποιον τρόπο κι ας μην υπάρχει πρόσβαση από το διαμέρισμα - είσοδος από το μπαλκόνι), αλλά ΚΑΙ το ανοιχτό εξωτερικό κλιμακοστάσιο -αποκλειστικής χρήσης- που οδηγεί στο διαμέρισμα (που δεν μπορώ να το βάλω στο ΠΕΑ.. είναι ανοιχτό!!). Με αυτά και με τα άλλα, προκύπτει η διαφορά των 12 τ.μ. που μετρήθηκε. Ερώτηση: Στο Ε9 αναγράφεται 119 τ.μ., η δόμηση είναι 119 τ.μ. και η ΗΤΚ θα βγει 119 τ.μ. (υποθέτω με ΒΧ). Για το ΠΕΑ τι θα έπρεπε να κάνω? -Να το βαφτίσω 119 τ.μ.? -Να τροποποιήσω το Ε9 (νομίζω όμως πως σωστά αναγράφεται η δόμηση που χρεώνεται το διαμέρισμα)? Ευχαριστώ εκ των προτέρων..
dib Δημοσιεύτηκε November 9, 2023 at 07:28 μμ Δημοσιεύτηκε November 9, 2023 at 07:28 μμ Αν θέλεις ανέβασε μια κάτοψη του ορόφου.
The_Bl4ck_Sheep Δημοσιεύτηκε November 9, 2023 at 08:53 μμ Δημοσιεύτηκε November 9, 2023 at 08:53 μμ (edited) Με κόκκινο "κραγιόν" η σκάλα και το αποθηκάκι.. και η όψη της ανοιχτής κλίμακας που μετράει στη δόμηση και σε όλα βασικά.. Edited November 9, 2023 at 08:56 μμ by The_Bl4ck_Sheep
dib Δημοσιεύτηκε November 9, 2023 at 09:28 μμ Δημοσιεύτηκε November 9, 2023 at 09:28 μμ Συνάδελφε και με τη προσθήκη της αποθήκης (3,40τμ), πάλι έχεις διαφορά 8,60τμ > 7,00 που επιτρέπει το πρόγραμμα. Αντιιλαμβάνομαι οτι έχουν γραφτεί λάθος στο Ε9. Θα έπρεπε να γράφει τμ Κ.Χ. του διαμερίσματος και σαν παρακολούθημα (στην ίδια σειρά ή σε άλλη) τα υπόλοιπα (σκάλες, αποθήκη, κλπ). Αν μπορούν να τα διορθώσουν στο Ε9, πιστεύω θα λυθεί το πρόβλημα. 1 1
The_Bl4ck_Sheep Δημοσιεύτηκε November 9, 2023 at 09:35 μμ Δημοσιεύτηκε November 9, 2023 at 09:35 μμ Ευχαριστώ πολύ για την άποψη. Θα το δω αύριο και με τον λογιστή του πελάτη μήπως και βγάλουμε άκρη για το πως μπορούν να καταχωρηθούν οι υπόλοιποι χώροι. Ευχαριστώ πολύ και πάλι.. 1
Recommended Posts
Δημιουργήστε ένα λογαριασμό ή συνδεθείτε προκειμένου να αφήσετε κάποιο σχόλιο
Πρέπει να είστε μέλος για να μπορέσετε να αφήσετε κάποιο σχόλιο
Δημιουργία λογαριασμού
Κάντε μια δωρεάν εγγραφή στην κοινότητά μας. Είναι εύκολο!
Εγγραφή νέου λογαριασμούΣύνδεση
Εάν έχετε ήδη λογαριασμό; Συνδεθείτε εδώ.
Συνδεθείτε τώρα