filiopoulos Δημοσιεύτηκε March 4, 2013 at 07:44 πμ Δημοσιεύτηκε March 4, 2013 at 07:44 πμ Γεια σας , θα ήθελα να κάνω μία ερώτηση σχετικά με τον καταμερισμό της ισχύος λέβητα και κυκλοφορητή ,σε περίπτωση έκδοσης ενεργειακού πιστοποιητικού διαμερίσματος, και τον τρόπο που αυτός γίνεται κατά την εισαγωγή στο πρόγραμμα ΤΕΕ ΚΕΝΑΚ . Εισάγουμε την συνολική ισχύ του λέβητα και του κυκλοφορητή ή την καταμερίζουμε στο ποσοστό του διαμερίσματος ; και αν ναι πώς Ευχαριστώ.
hkamp Δημοσιεύτηκε March 4, 2013 at 09:06 πμ Δημοσιεύτηκε March 4, 2013 at 09:06 πμ Η συγκεκριμένη ερώτηση έχει συζητηθεί πολλές φορές στην ενότητα του ΚΕΝΑΚ. Πριν αναρτήσετε το post, ψάξτε τα θέματα και κάντε αναζήτηση με τις κατάλληλες λέξεις κλειδιά. Παρακαλώ διαβάστε τους Κανόνες Συμμετοχής. Ευχαριστώ, hkamp
hkamp Δημοσιεύτηκε March 4, 2013 at 09:44 πμ Δημοσιεύτηκε March 4, 2013 at 09:44 πμ (edited) Από την άλλη αν δεν μπορείς να το χειριστείς και δεν βγάζεις άκρη, δες το help του προγράμματος ΤΕΕ-ΚΕΝΑΚ <<περιεχόμενα -> ζώνη -> σύστημα θέρμανσης>>. Edited March 4, 2013 at 09:44 πμ by hkamp 1
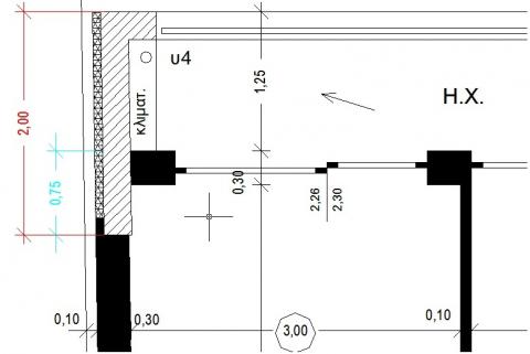
zio7 Δημοσιεύτηκε March 5, 2013 at 09:24 πμ Δημοσιεύτηκε March 5, 2013 at 09:24 πμ (edited) Στην παρακάτω κάτοψη στο κέλυφος υπολογίζουμε όλη την κολώνα (2.00μ) ή μόνο το τμήμα της μέχρι τη τοιχοποιία (0.75μ)? Ίδια ερώτηση και για τις θερμογέφυρες της κολώνας, υπολογίζουμε μήκος 2.00μ ή 0.75μ? Και μια δέυτερη ερώτηση τις αρχιτεκτονικές προεξοχές τις υπολογίζουμε όταν σχεδιάζουμε τους τοίχους (εικόνα 2)? Edited March 5, 2013 at 09:35 πμ by zio7
hkamp Δημοσιεύτηκε March 5, 2013 at 10:03 πμ Δημοσιεύτηκε March 5, 2013 at 10:03 πμ Θα κάνεις το περίγραμμα της θερμικής σου ζώνης (ΤΟΤΕΕ1 παρ. 3.1.1) και θα υπολογίσεις τα δομικά που είναι σε αυτό το περίγραμμα. Υποθέτω π.χ. ότι στο πρώτο σχήμα είναι μόνο το 0,75.
zio7 Δημοσιεύτηκε March 5, 2013 at 10:10 πμ Δημοσιεύτηκε March 5, 2013 at 10:10 πμ Και εγώ έτσι πιστεύω οτι είναι. Και στο κέλυφος και στις θερμογέφυρες οτι υπολογίζουμε 0,75μ Για τη δεύτερη εικόνα καμια σκέψη? Η Α.Π. είναι τοιχείο, τις θερμογέφυρες θα τις υπολογίσω σαν τοιχείο ή σαν τοιχοποιία
panos-vicious Δημοσιεύτηκε March 5, 2013 at 11:19 πμ Δημοσιεύτηκε March 5, 2013 at 11:19 πμ Για την πρώτη εικόνα, συμφωνώ πως το περίγραμμα θα φτάνει ως τα 0,75μ και θα έχεις θερμογέφυρα, π.χ. εξωτερικής γωνίας, τύπου ΕΞΓ-23 ή ΕΞΓ-25 ανάλογα με τη θέση της θερμομόνωσης στην τοιχοποιία. Για τις αρχιτεκτονικές προεξοχές, θεωρώ πως πρέπει να τις συμπεριλάβεις στο περίγραμμα. Θα βοηθούσε αν ανέβαζες μια εικόνα της ευρύτερης κάτοψης, με τη θέση της μόνωσης στο σκυρόδεμα και τις τοιχοποιίες. Έχω μια σχετική απορία. Πως αντιμετωπίζουμε, από άποψη θεμογεφυρών, τις κατακόρυφες και οριζόντιες περσίδες; Δεν μου έχει τύχει ποτέ, αλλά υποθέτω πως είναι αμόνωτα δομικά στοιχεία που "καρφώνονται" στο κτιριακό κέλυφος. Στις θέσεις αυτές τι κάνουμε;
zio7 Δημοσιεύτηκε March 5, 2013 at 11:36 πμ Δημοσιεύτηκε March 5, 2013 at 11:36 πμ (edited) panos και εγώ ΕΞΓ-23 επέλεξα συν τις θερμογέφυρες προς πιλωτή και ενδιάμεσο δάπεδο με μήκος 0,75μ. ( Θα χρησιμοποιηθεί ενεργειακό τούβλο της ΚΕΒΕ 30cm, και σύμφωνα με απάντηση του ΥΠΕΚΑ "Επειδή δεν υπάρχουν λεπτομέρειες Ψ για αυτά τα στοιχεία, μπορείτε να θεωρήσετε ότι η μόνωση βρίσκεται σε οποιαδήποτε θέση σας ευνοεί σε κάθε λεπτομέρεια" επιλέγω οτι έχει εξωτερική μόνωση ) Για τις αρχιτεκτονικές προεξοχές δεν ξέρω τι να κάνω, σκέφτομαι να μην τις υπολογίσω στο κέλυφος, ούτε σαν περίγραμμα ούτε σαν σχεδιασμό του τοίχου σε εκείνο το σήμείο, με τη λογική οτι πάω σε δυσμενέστερη περίπτωση (μόνο του το ενεργειακό τούβλο έχει "χειρότερο" U απο το να υπολόγιζα και την αρχιτεκτονική προεξοχή) Τις θερμογέφυρες στα σημεία των Α.Π. θα τις υπολογίσω σαν τοιχείο ή σαν τοιχοποιία? Σύμφωνα με τη παραπάνω απάντηση του ΥΠΕΚΑ μπορώ στις θερμογέφυρες σε λάμπα κουφώματος να αντί για Λ-4 (εξωτερική μόνωση) να βάλω Λ-5 (μόνωση στο πυρήνα)? Για τις περσίδες δεν μου έχει τύχει ποτέ κάτι... Edited March 5, 2013 at 11:55 πμ by zio7
Sw0rdf1sh Δημοσιεύτηκε March 5, 2013 at 12:44 μμ Δημοσιεύτηκε March 5, 2013 at 12:44 μμ Εαν προκειται για μελετη προφανως στον υπολογισμο του u λαμβανονται ολες οι στρωσεις με τα υλικα που τις καθοριζουν (ομογενη και ισοτροπα για να θεωρηθει μονοδιαστατη ροη). Σε καθε θεση. Αλλο αν το παχος ενος τοιχου λαμβανεται σε ολη την εκταση 0,2. Θα μπορουσε να "παιζει" το παχος λογω αυτων των α.π. Στις ενωσεις απο παχοσ σε παχοσ προφανως υπαρχει η διορθωση στη θεωρηση της μονοδιαστατη ροη θερμοτητας, δηλαδη θερμογεφυρα.
zio7 Δημοσιεύτηκε March 5, 2013 at 01:00 μμ Δημοσιεύτηκε March 5, 2013 at 01:00 μμ Θα μπορουσε να "παιζει" το παχος λογω αυτων των α.π. Στις ενωσεις απο παχοσ σε παχοσ προφανως υπαρχει η διορθωση στη θεωρηση της μονοδιαστατη ροη θερμοτητας, δηλαδη θερμογεφυρα. Δεν το πολυκατάλαβα αυτό.
Recommended Posts
Δημιουργήστε ένα λογαριασμό ή συνδεθείτε προκειμένου να αφήσετε κάποιο σχόλιο
Πρέπει να είστε μέλος για να μπορέσετε να αφήσετε κάποιο σχόλιο
Δημιουργία λογαριασμού
Κάντε μια δωρεάν εγγραφή στην κοινότητά μας. Είναι εύκολο!
Εγγραφή νέου λογαριασμούΣύνδεση
Εάν έχετε ήδη λογαριασμό; Συνδεθείτε εδώ.
Συνδεθείτε τώρα