dazisimo Δημοσιεύτηκε March 10, 2015 at 06:32 μμ Δημοσιεύτηκε March 10, 2015 at 06:32 μμ Είναι πανταχώθεν ελεύθερο. Το ξέρω ότι θέλει πιο πολύ ψάξιμο, ήλπιζα μήπως έχει τύχει σε κανέναν και ήξερε να μου πει. Οπότε εφόσον υπάρχει και αντιδικία με τον έναν συνιδιοκτητη, σκεφτόμαι να βάλω πλάγιες αποστάσεις >20% και υπέρβαση κάλυψης ώστε να μην θεωρηθεί ότι προσπαθώ να μειώσω το πρόστιμο.
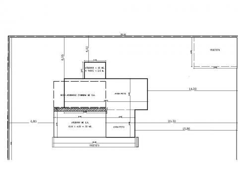
lia1 Δημοσιεύτηκε March 11, 2015 at 09:36 μμ Δημοσιεύτηκε March 11, 2015 at 09:36 μμ Καλησπέρα, έχω περίπτωση αποθήκης σε εκτός σχεδίου, για την οποία εκδόθηκε πρωτ. αυθαιρέτου το 1993, στο οποίο εμφανίζεται: α) η αποθήκη με μεγαλυτερο εμβαδόν...χωρίς όμως να τον γράφουν γιαυτό. β) αυθαίρετη κατασκευή κατ'επέκταση αλλά ανεξάρτητη από την αποθήκη, εμβαδού, κατά το πρωτ. 73,35 μ2, ενώ στην πραγματικότητα είναι 78,70 μ2. γ) ισόγεια αποθήκη, η οποία σήμερα έχει κατεδαφιστεί, και μάλιστα πρόσφατα. Σας επισυνάπτω και αρχείο μήπως και γίνει περισσότερο κατανοητό. Ρωτώ γιατί έχω μπλεχτεί άσχημα. Η άποψή μου είναι να δηλωθεί ως εξής: --1Φ.Κ, το οποίο θα αφορά το α) με Υ.Δ., Υ.Κ. για το τμήμα το οποίο φαίνεται στο πρωτ. αυθαιρέτου αλλά δεν υπολογίστηκε και 1 παράβαση -για την αλλαγή θέσης.Δεν βάζω τπτ άλλο σχετικά με την αλλαγή θέσης (ΥΔ, ΥΚ) γιατί η νέα του θέση είναι εντός των επιτρεπόμενων πλαγίων αποστάσεων και του τότε (7,00 μ) και του τώρα (2,5 μ)-αυτό γιατί παρατηρώ άλλοι να υποστηρίζουν ότι το Δ πάει με τα τότε δεδομένα. --2Φ.Κ., το οποίο θα αφορά το β) με Υ.Δ., Υ.Κ. για το εμβαδόν που μέτρησα εγώ και όχι για αυτό που δηλώθηκε στο πρωτ. αυθαιρέτου και Υπέρβαση Δ. η οποία παραβιάζεται μόνο στην πίσω πλευρά και για 50 εκ. Τώρα, πέραν των όσων δηλώθηκαν στο πρωτ. αυθαιρέτου, έχει επίσης κατασκευαστεί μια αποθήκη < των 15 μ2., και ύψους < 2,5μ., η οποία όμως παραβιάζει Δ.Οπότε --3Φ.Κ., με την αποθήκη ως κατ 3? ή λόγω της παραβίασης Δ θα πρέπει να πάω κανονικά με Υ.Δ, Υ.Κ. ΚΑΙ Δ? και εαν πάω με Υ.Δ. και όχι με κατ 3 , τότε καταδικάζω το κτίσμα σε κατ.5. --4Φ.Κ., σχετικά με το παραπάνω γ) στο οποίο θα δηλώσω 1 λοιπή παράβαση, λόγω της κατεδάφισης ???? --5Φ.Κ, το οποιο θα είναι σχετικό με τις λοιπές παραβάσεις (έχω υπόστεγά, περιφραξη, προσθήκη κεραμιδιών στην στέγη της αποθήκης αντί για λαμαρίνα και πλακόστρωση). Καμία ιδέα για το εαν είναι σωστός ο τρόπος σκέψης γενικά και καμία απάντηση για το 3 & 4 Φ.Κ. ?? Ευχαριστώ εκ των προτέρων!!!
lia1 Δημοσιεύτηκε March 11, 2015 at 09:37 μμ Δημοσιεύτηκε March 11, 2015 at 09:37 μμ Καλησπέρα, έχω περίπτωση αποθήκης σε εκτός σχεδίου, για την οποία εκδόθηκε πρωτ. αυθαιρέτου το 1993, στο οποίο εμφανίζεται: α) η αποθήκη με μεγαλυτερο εμβαδόν...χωρίς όμως να τον γράφουν γιαυτό. β) αυθαίρετη κατασκευή κατ'επέκταση αλλά ανεξάρτητη από την αποθήκη, εμβαδού, κατά το πρωτ. 73,35 μ2, ενώ στην πραγματικότητα είναι 78,70 μ2. γ) ισόγεια αποθήκη, η οποία σήμερα έχει κατεδαφιστεί, και μάλιστα πρόσφατα. Σας επισυνάπτω και αρχείο μήπως και γίνει περισσότερο κατανοητό. Ρωτώ γιατί έχω μπλεχτεί άσχημα. Η άποψή μου είναι να δηλωθεί ως εξής: --1Φ.Κ, το οποίο θα αφορά το α) με Υ.Δ., Υ.Κ. για το τμήμα το οποίο φαίνεται στο πρωτ. αυθαιρέτου αλλά δεν υπολογίστηκε και 1 παράβαση -για την αλλαγή θέσης.Δεν βάζω τπτ άλλο σχετικά με την αλλαγή θέσης (ΥΔ, ΥΚ) γιατί η νέα του θέση είναι εντός των επιτρεπόμενων πλαγίων αποστάσεων και του τότε (7,00 μ) και του τώρα (2,5 μ)-αυτό γιατί παρατηρώ άλλοι να υποστηρίζουν ότι το Δ πάει με τα τότε δεδομένα. --2Φ.Κ., το οποίο θα αφορά το β) με Υ.Δ., Υ.Κ. για το εμβαδόν που μέτρησα εγώ και όχι για αυτό που δηλώθηκε στο πρωτ. αυθαιρέτου και Υπέρβαση Δ. η οποία παραβιάζεται μόνο στην πίσω πλευρά και για 50 εκ. Τώρα, πέραν των όσων δηλώθηκαν στο πρωτ. αυθαιρέτου, έχει επίσης κατασκευαστεί μια αποθήκη < των 15 μ2., και ύψους < 2,5μ., η οποία όμως παραβιάζει Δ.Οπότε --3Φ.Κ., με την αποθήκη ως κατ 3? ή λόγω της παραβίασης Δ θα πρέπει να πάω κανονικά με Υ.Δ, Υ.Κ. ΚΑΙ Δ? και εαν πάω με Υ.Δ. και όχι με κατ 3 , τότε καταδικάζω το κτίσμα σε κατ.5. --4Φ.Κ., σχετικά με το παραπάνω γ) στο οποίο θα δηλώσω 1 λοιπή παράβαση, λόγω της κατεδάφισης ???? --5Φ.Κ, το οποιο θα είναι σχετικό με τις λοιπές παραβάσεις (έχω υπόστεγά, περιφραξη, προσθήκη κεραμιδιών στην στέγη της αποθήκης αντί για λαμαρίνα και πλακόστρωση). Καμία ιδέα για το εαν είναι σωστός ο τρόπος σκέψης γενικά και καμία απάντηση για το 3 & 4 Φ.Κ. ??
soulis13pao Δημοσιεύτηκε March 19, 2015 at 11:25 πμ Δημοσιεύτηκε March 19, 2015 at 11:25 πμ (edited) Γεια σας, εχω την εξης απορια: Διώροφο Κτίσμα εγκριθηκε για αδεια κολλητα με το οριο του οικοπεδου οπως δειχνει και το διαγραμμα καλυψης της ΟΑ. Η περιοχη ανηκει στο Εθνικο Κτηματολογιο.. Κανοντας το τοπογραφικο διαπίστωσα πως τα ορια του Κτηματολογιου δεν συμπιπτουν απολυτα με το οριο του οικοπεδου βασει διαγραμματος καλυψης-τοπογραφικου της Αδειας. Σχηματιζεται λοιπον ενα τριγωνο αναμεσα στο κτιριο και στο οριο του ΚΑΕΚ που φτανει το 1.20 μ. Παω σιγουρα για τακτοποιηση καθως εχει ΥΔ και ΥΚ. Αυτο που ηθελα να ρωτησω ειναι αν πρεπει να τακτοποιησουμε και για παραβιαση πλαγιων αποστασεων. Επισυναπτω 1)τοπογραφικο-υφιστ. κατασταση και 2) τοπογραφικο της τοτε αδειας Ευχαριστω! Edited March 19, 2015 at 11:45 πμ by soulis13pao
Panmalk Δημοσιεύτηκε April 2, 2015 at 09:55 πμ Δημοσιεύτηκε April 2, 2015 at 09:55 πμ Γεια σας! Σε προσθήκη κατ'επέκταση η Ο.Α. προέβλεπε η προσθήκη να "κολλήσει" με το διπλανό κτίριο, αλλά ο ιδιοκτήτης άφησε 0,5 μέτρο απόσταση. Έτσι, κατασκευάστηκαν λιγότερα τ.μ., αλλά αυτά πλέον παραβιάζουν το Δ = 2,5μ. Πως πρέπει να περάσω την παραβαση αυτή; Πρέπει να θεωρήσω πως όλη η προσθήκη είναι αυθαίρετη, αφού για να βάλω παραβίαση Δ απαιτείται να βάλω και Υ.Δ.; Μπορώ/πρέπει να το βάλω σαν Κατ.3; (αν και βγαίνει περίπου ίδιο το πρόστιμο) Ευχαριστώ!
apier Δημοσιεύτηκε April 2, 2015 at 11:12 πμ Δημοσιεύτηκε April 2, 2015 at 11:12 πμ Γεια σας! Σε προσθήκη κατ'επέκταση η Ο.Α. προέβλεπε η προσθήκη να "κολλήσει" με το διπλανό κτίριο, αλλά ο ιδιοκτήτης άφησε 0,5 μέτρο απόσταση. Έτσι, κατασκευάστηκαν λιγότερα τ.μ., αλλά αυτά πλέον παραβιάζουν το Δ = 2,5μ. Πως πρέπει να περάσω την παραβαση αυτή; Πρέπει να θεωρήσω πως όλη η προσθήκη είναι αυθαίρετη, αφού για να βάλω παραβίαση Δ απαιτείται να βάλω και Υ.Δ.; Μπορώ/πρέπει να το βάλω σαν Κατ.3; (αν και βγαίνει περίπου ίδιο το πρόστιμο) Ευχαριστώ! γιατί ρε φίλε δεν το χτίζετε το ρημάδι το 0,5 μ. να τελειώνετε; κι ούτε Δ ούτε υπέρβαση ούτε τίποτα. μόνο κτιριοδομική για αλλαγή σχεδίων και τοίχο δήθεν 0,5 μ. πάχους 1
da-mi Δημοσιεύτηκε April 2, 2015 at 12:34 μμ Δημοσιεύτηκε April 2, 2015 at 12:34 μμ γιατί ρε φίλε δεν το χτίζετε το ρημάδι το 0,5 μ. να τελειώνετε; Έτσι!!!!!! Δεν είμαστε και μάγοι να λύνουμε όλα τα άλυτα προβλήματα χωρίς κόστος για τον πελάτη....
Panmalk Δημοσιεύτηκε April 3, 2015 at 09:13 πμ Δημοσιεύτηκε April 3, 2015 at 09:13 πμ Ευχαριστώ για τις απαντήσεις! Το χτίσιμο είναι το 1ο που σκέφτηκα και 'γω φυσικά, αλλά έχει και αλλού Υ.Δ. (θα μπει έτσι κι αλλιώς) και θέλει και καλές σχέσεις με το γείτονα... Προτιμάει να πληρώσει... Να το βάλω Υ.Δ. ή κατ.3 τελικά; Ευχαριστώ!
apier Δημοσιεύτηκε April 3, 2015 at 09:59 πμ Δημοσιεύτηκε April 3, 2015 at 09:59 πμ για κατ. 3 δεν πρέπει να είναι σε νόμιμη θέση; έτσι όπως το λες εσύ θέλει ΥΔ, ΥΚ και Δ νομίζω
Pavlos33 Δημοσιεύτηκε April 3, 2015 at 10:28 πμ Δημοσιεύτηκε April 3, 2015 at 10:28 πμ Σε προσθήκη κατ'επέκταση η Ο.Α. προέβλεπε η προσθήκη να "κολλήσει" με το διπλανό κτίριο, αλλά ο ιδιοκτήτης άφησε 0,5 μέτρο απόσταση. Έτσι, κατασκευάστηκαν λιγότερα τ.μ., αλλά αυτά πλέον παραβιάζουν το Δ = 2,5μ. Πως πρέπει να περάσω την παράβαση αυτή; Πρέπει να θεωρήσω πως όλη η προσθήκη είναι αυθαίρετη, αφού για να βάλω παραβίαση Δ απαιτείται να βάλω και Υ.Δ.; Μπορώ/πρέπει να το βάλω σαν Κατ.3; (αν και βγαίνει περίπου ίδιο το πρόστιμο) Είναι κλασσική περίπτωση, που ενώ το κτίριο έχει δομηθεί με μικρότερη επιφάνεια και υπό άλλες συνθήκες δεν θα αποτελούσε αυθαιρεσία, επειδή παραβιάζει πολεοδομικές διατάξεις θα πρέπει να χρεωθεί η παραβίαση υποχρεωτικής πλάγιας απόστασης, η οποία στο ηλεκτρονικό σύστημα δυστυχώς καταχωρείται με επιφάνεια παραβίασης της Δ. Την κατηγορία 3 γιατί την αναφέρεις; Δεν αφορά αλλαγή θέσης με ταυτόχρονη μη παραβίαση πολεοδομικών διατάξεων ώστε να μπορεί να ενταχθεί στην κατηγορία 3 όπως πολύ σωστά αναφέρει ο συνάδελφος apier.
Recommended Posts
Δημιουργήστε ένα λογαριασμό ή συνδεθείτε προκειμένου να αφήσετε κάποιο σχόλιο
Πρέπει να είστε μέλος για να μπορέσετε να αφήσετε κάποιο σχόλιο
Δημιουργία λογαριασμού
Κάντε μια δωρεάν εγγραφή στην κοινότητά μας. Είναι εύκολο!
Εγγραφή νέου λογαριασμούΣύνδεση
Εάν έχετε ήδη λογαριασμό; Συνδεθείτε εδώ.
Συνδεθείτε τώρα