papalekos
Members-
Περιεχόμενα
97 -
Εντάχθηκε
-
Τελευταία επίσκεψη
Τύπος περιεχομένου
Profiles
Φόρουμ
Downloads
Gallery
Ειδήσεις
Media Demo
Αγγελίες
Store
Everything posted by papalekos
-
-
- 181 σχόλια
-
-
Οικόπεδο στα ορια οικισμού (εντός & εκτός)
papalekos replied to elli_summers's θέμα in Αρτιότητα - Οικοδομησιμότητα
Ευχαριστώ για τις απαντήσεις. Εννοείται πως το όριο του οικισμού δε συνιστά κατάτμηση και ότι το γήπεδο είναι ένα. Απλώς στην πολεοδομία σε αντίστοιχες περιπτώσεις μου έχουν πει πως πρέπει να αναφερθώ στην αρτιότητα - οικοδομησιμότητα του κάθε ενός από τα δύο τμήματα. Εύνοστε, η υποθετική κατάτμηση για την οποία μιλάω είναι όπως την κατάλαβες: ιδανικά κόβεται το γήπεδο στη μέση και χωρίζουν όλα δια 2: το εντός τμήμα, το εκτός και το πρόσωπο. Δεν κατάλαβα όμως σε ποια παρέκκλιση αναφέρεσαι και λες ότι την χάνω. Στην προ 31/12/03 για μη απαίτηση προσώπου στα εκτός; (ο αγροτικός δρόμος πράγματι συνεχίζει και μπαίνει μες στον οικισμό) Tetris, θεωρείς λοιπόν πως για την κατάτμηση θα το αντιμετωπίσω σα να είμαι εξ' ολοκλήρου εκτός; Επομένως τα υποθετικά δυο καινούργια γήπεδα δε θεωρείται πως έχουν πρόσωπο επειδή αυτό βρίσκεται στο εκτός οικισμού τμήμα; -
Οικόπεδο στα ορια οικισμού (εντός & εκτός)
papalekos replied to elli_summers's θέμα in Αρτιότητα - Οικοδομησιμότητα
Επαναφέρω λίγο το θέμα και συγγνώμη αν έχει απαντηθεί και δεν το πρόσεξα. Έχω ένα γήπεδο 10 στρ, τα 3 εντός και τα 7 εκτός οριοθετημένου οικισμού. Πρόσωπο σε κοινόχρηστο (αγροτικό πλάτους 4 μ) έχει μόνο το εκτός τμήμα, 80 μέτρα περίπου. Στη δήλωση μου θα αναφερθώ στα δύο τμήματα: το εκτός σίγουρα είναι άρτιο οικοδομήσιμο. Το εντός είναι άρτιο οικοδομήσιμο; Ή απλώς άρτιο αλλά μη οικοδομήσιμο; Το ότι το πρόσωπο δηλαδή είναι στο εκτός και όχι στο εντός τμήμα επηρεάζει την αρτιότητα του εντός; Σαν επέκταση του παραπάνω, σε ενδεχόμενη μελλοντική κατάτμηση σε δυο ιδιοκτησίες με 1,5 στρ εντός και 3,5 στρ εκτός και 40 μ πρόσωπο η καθεμία, τα εντός τμήματα των δύο θα είναι άρτια οικοδομήσιμα; -
Μέτρηση γεωτεμαχίου εντός αναδασμού
papalekos replied to Ιωάννα Φαρμ's θέμα in Τοπογραφικά-Χωροταξικά
Επαναφέρω λίγο το θέμα. Σαφώς συμφωνώ πως όταν υπάρχει αναδασμός πάμε υποχρεωτικά με αυτόν. Αυτό που ψάχνω είναι σε ποια νομοθεσία αναφέρεται αυτό. Στην περίπτωσή μου, επειδή στην περιοχή έχει συνταχθεί και κτηματολόγιο, και τα όρια του γηπέδου βάσει κτηματολογίου συμφωνούν (με τις πολύ μικρές αναμενόμενες αποκλίσεις) με τον αρχικό αναδασμό, που ακριβώς αναφέρεται στη νομοθεσία πως οφείλουμε να υιοθετήσουμε τα όρια αυτά; -
Έχω περίπτωση τυφλού γηπέδου 2.000 τμ εκτός σχεδίου αλλά εντός ζώνης 800 μ από στάσιμο οικισμό που έχει μέσα ένα ξωκλήσι 50 τμ. Όπως ήδη αναφέρθηκε, σύμφωνα με το αρ.12 του πδ 78 επιτρέπεται η ανέγερση ιερών ναών σε γήπεδα με επιφάνεια τουλάχιστον πεντακόσια (500) τμ και το κτίριο του ναού δεν μπορεί να καταλαμβάνει επιφάνεια μεγαλύτερη του είκοσι τοις εκατό (20%) της επιφάνειας του γηπέδου. Η ερώτησή μου είναι η εξής: στην δήλωση περί αρτιότητας - οικοδομησιμότητας, τι βάζω; Χωρίς αρχικά να λάβουμε υπόψιν την ακτίνα των 800, είναι γενικότερα άρτιο - οικοδομήσιμο ένα γήπεδο που πληροί την προϋπόθεση των 500 τμ του αρ.12 αλλά κατά τα άλλα δεν είναι άρτιο - οικοδομήσιμο σύμφωνα με το αρ.1 του 270/Δ/85; Και λαμβάνοντας υπόψιν και την ακτίνα των 800 που ισχύει μόνο για κατοικία, το συγκεκριμένο γήπεδο είναι τελικά άρτιο οικοδομήσιμο;
-
Πραγματικά πολύ καλό.
-
Κατάτμηση οικοπέδου μισό εντός- μισό εκτός οικισμού
papalekos replied to θανος_'s θέμα in Αρτιότητα - Οικοδομησιμότητα
Γήπεδο 220 τμ στο σύνολο, τα 160 εντός και τα 60 εκτός του ορίου του προ '23 συνεκτικού τμήματος του οικισμού. Υπάρχει κτίριο εντός του οικοπέδου, στο εντός τμήμα, το οποίο είναι αυθαίρετο και για το οποίο θα εκδοθεί άδεια νομιμοποίησης και προσθήκης, μέσα στο εντός τμήμα πάλι. Σε απόσταση 1 μ από την προσθήκη περνά η νοητή γραμμή του ορίου. Η απόσταση της προσθήκης από τα όρια του οικοπέδου προς τη μεριά αυτή, είναι πέντε μέτρα. Δηλαδή το πλάτος του εκτός είναι τέσσερα μέτρα. -
Κατάτμηση οικοπέδου μισό εντός- μισό εκτός οικισμού
papalekos replied to θανος_'s θέμα in Αρτιότητα - Οικοδομησιμότητα
Σε οικισμό προ '23 το όριο του οικισμού (όριο συνεκτικού τμήματος) συνιστά κατάτμηση στο οικόπεδο; Έχω ένα οικόπεδο εν μέρει εντός και εν μέρει εκτός προ '23 οικισμού. Έστω ότι τοποθετώ το κτίριό μου εντός του τμήματος που είναι εντός οικισμού αλλά η απόστασή του από τη γραμμή του ορίου είναι μικρότερη των 2,5 μ. Υπάρχει πρόβλημα εκεί; Θα πρέπει να κολλήσω στη γραμμή του ορίου; Η απόσταση δ δεν μετρά από τα όρια του οικοπέδου, έστω κι αν αυτά είναι εκτός οικισμού; Αυτό σίγουρα ισχύει στους οριοθετημένους, αλλά στην ΥΔΟΜ μου είπαν πως στους προ '23 οικισμούς δεν είναι ακριβώς έτσι. -
Καλοί συνάδελφοι παρακαλώ πολύ τη βοήθεια σας. Κτίσμα αυθαίρετο 50 τμ σε οικισμό στάσιμο και προ 23. Ημιτελές. Ο ιδιοκτήτης θέλει να νομιμοποιήσει, να αποπερατώσει και να κάνει και προσθήκη άλλα 25 τμ. Από τα 50 τμ τα 7 τμ παραβιάζουν δ. Στην τακτοποίηση τακτοποιούμε τα 7 τμ και τα υπόλοιπα 43 πάνε προς έκδοση οικ. αδείας. Καταθέτω για έγκριση δόμησης : "Νομιμοποίηση και αποπεράτωση υφιστάμενου ισογείου και προσθήκη κατ΄επέκταση". Στον έλεγχο στην Υ.ΔΟΜ. μου λένε πως για να πάρω την έγκριση δόμησης θα πρέπει πρώτα να εκδοθεί άλλη μια ξεχωριστή άδεια η οποία θα αφορά καθαρά την αποπεράτωση του τακτοποιημένου τμήματος, σύμφωνα με το αρθ. 25 παρ. 5 του 4178. Δεν μπορεί να μπει όλο στην ίδια άδεια γιατί αποτελεί έγκριση εργασιών κατά παρέκκλιση όλων των άλλων διατάξεων. Αυτό το τελευταίο ισχύει; Σας έχει τύχει αντίστοιχη περίπτωση; Γιατί δεν μπορεί να μπει όλο στην ίδια άδεια; Η περίπτωση μου δεν αποτελεί μια μεγαλύτερη, ευρύτερη κατάσταση, στην οποία χωράει να μπει και το τακτοποιημένο κομμάτι;
-
Πριν 15 χρόνια η όδευση θα ήταν μονόδρομος!
-
Εγώ θα πρότεινα να απευθυνθείς σε κάποιον συνάδελφο που έχει (γεωδαιτικό) gps για να σου "κατεβάσει" δυο - τρία σημεία πολύ κοντά στο γήπεδο που θες να εργαστείς. [Αν είσαι σε περιοχή με κτηματολόγιο να κάνει διορθώσεις σύμφωνα με τα πλησιέστερα προσβάσιμα τριγωνομετρικά του κτηματολογίου. Μη μετρήσει απλά με την οποιαδήποτε εταιρεία παροχής δεδομένων, γιατί παρουσιάζουν μεταξύ τους (αλλά και με το κτηματολόγιο) αποκλίσεις.] Δε θα σου πρότεινα να κάνεις όδευση με το total από τριγωνομετρικά γιατί το σφάλμα που θα σου προκύψει θα είναι μεγάλο αν αυτά δεν είναι σχετικά κοντά, ή τουλάχιστον αρκετά μεγαλύτερο από το να "κατεβάσεις" με gps. Εκτός αν είσαι σε θέση και έχεις όρεξη να κάνεις μια ωραία μεγάλη όδευση από ένα τριγωνομετρικό σε άλλο που να περνάει δίπλα από το γήπεδο που σε ενδιαφέρει και να την επιλύσεις και μετά να κάνεις τις μετρήσεις σου. Αν είσαι σε αστική περιοχή δεν είναι πολύ εύκολο αυτό. Γενικότερα, αν είσαι στην αρχή της σταδιοδρομίας σου, βρες έναν σοβαρό επαγγελματία συνάδελφο και θήτευσε κοντά του για κάποιο διάστημα για να είσαι εντάξει και με τον εαυτό σου αλλά και με τους πελάτες σου.
-
Ευχαριστώ Παύλο, ομολογώ πως δεν το είχα δει αυτό. Εγκ-66931/4/13 Οδηγίες για την εφαρμογή του Ν-4178/13 Αντιμετώπιση της Αυθαίρετης Δόμησης ΑΡΘΡΟΝ-23 40) Παρ.2: Στην περίπτωση που προκύψει ανάγκη μεταβίβασης ή σύστασης εμπραγμάτων δικαιωμάτων προ της έκδοσης της σχετικής οικοδομικής άδειας, τροποποιείται η επιλογή στο πληροφοριακό σύστημα σε απλή ρύθμιση και υπολογίζεται το ενιαίο ειδικό πρόστιμο της αυθαίρετης κατασκευής ή της αυθαίρετης αλλαγής χρήσης προκειμένου να καταβληθεί το 30% του προστίμου και να είναι δυνατή η μεταβίβαση ή η σύσταση εμπραγμάτου δικαιώματος κατά τα οριζόμενα στη σχετική παράγραφο.
-
Ζητώ συγγνώμη για την περίπτωση του να έχει απαντηθεί ήδη παρόμοια περίπτωση αλλά δεν μπορούσα να διαβάσω 2000 δημοσιεύσεις... Θα ήθελα τη γνώμη σας για την εξής περίπτωση: Οικόπεδο εντός οικισμού με αυθαίρετο 50 τμ. Ο πελάτης θέλει να βγάλει άδεια νομιμοποίησης (και προσθήκης κατ' επέκταση, αλλά δεν επηρεάζει κάπου στην περίπτωσή μου αυτό). Στο τοπογραφικό που έγινε διαπιστώθηκε πως το οικόπεδο είναι μεγαλύτερο από όσο αναφέρεται στο συμβόλαιο, τόσο που να ξέρω πως σίγουρα θα ζητηθεί από την πολεοδομία διόρθωση συμβολαίου για να εκδοθεί η άδεια. Για να γίνει η διόρθωση συμβολαίου θα πρέπει να δοθεί βεβαίωση περί μη αυθαιρεσίας. Πως μπορεί να γίνει αυτό όμως, από τη στιγμή που η νομιμοποίηση θα ισχύει από όταν εκδοθεί η άδεια; Μπορεί να εκδοθεί βεβαίωση σε περίπτωση που το κτίριο πηγαίνει για νομιμοποίηση; Έχει τύχει σε κάποιον συνάδελφο; Η μελλοντική νομιμοποίηση δεν αναφέρεται στις εξαιρέσεις της παρ.2, σωστά;
-
Τι σημασία έχει τι λες, όταν έρχεται η κρίσιμη ώρα και στηρίζεις με την υποψηφιότητά σου αυτόν που καταγγέλλεις; Για εμένα χάνεται κάθε κύρος όταν το κάνεις αυτό. Δηλαδή νομίζεις ότι θα άλλαζε η νδ έστω και στο ελάχιστο αν έβγαινε βουλευτής ο συγκεκριμένος; Νομίζεις ότι τους ενδιέφερε έστω και στο ελάχιστο οτιδήποτε άλλο εκτός από τις έξτρα ψήφους που θα τσίμπαγαν λόγω της συγκεκριμένης υποφηφιότητας;
-
Μια χαρά τα λέει ο Άγης Βερούτης, δεν είχε πρόβλημα όμως τον Ιανουάριο να είναι υποψήφιος με τη ΝΔ, που συνέβαλε τα μέγιστα για τη δημιουργία και διαιώνιση της κατάστασης που καταγγέλλει.
-
Σε ευχαριστώ ΚΑΝΑ.
-
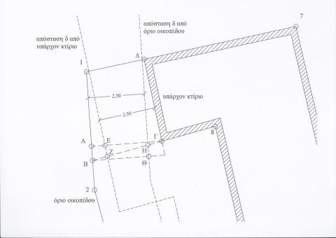
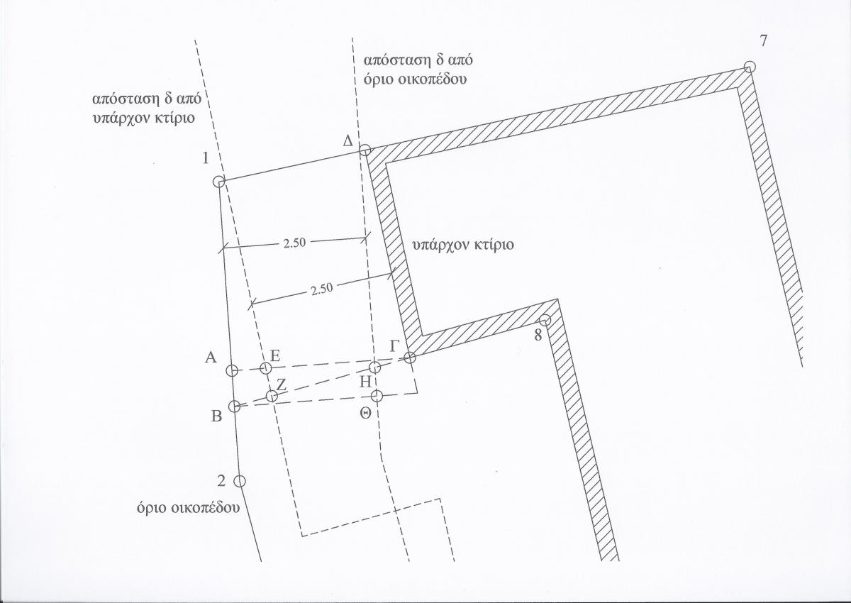
Καλοί συνάδελφοι παρακαλώ τα φώτα σας... Σε προσθήκη κατ' επέκταση σε υπάρχον κτίσμα που θέλουμε να γίνει στην περιοχή 8-Γ-(Α ή Β)-2-...-8, το όριο 1-2 και η πλευρά του κτιρίου ΔΓ δεν είναι παράλληλα. Ποιό είναι το σωστό σημείο για να γίνει η προέκταση, το Α ή το Β; Με δεδομένο πως η ΓΑ είναι κάθετη στο όριο 1-2 αλλά όχι στο ΔΓ, και η ΓΒ είναι κάθετη στο ΔΓ αλλά όχι στο 1-2. Έστω πως το φέρνω στο Α. Το τριγωνικό τμήμα ΓΕΖ παραβιάζει το δ ως προς το υπάρχον κτίριο. Έστω πως το φέρνω στο Β. Το τριγωνικό τμήμα ΒΗΘ παραβιάζει το δ ως προς το όριο. (Η ΒΘ είναι κάθετη στο όριο 1-2) Ευχαριστώ προκαταβολικά!
-
Οριοθετημένοι είναι οι οικισμοί των οποίων τα όρια έχουν καθοριστεί επίσημα και δημοσιευτεί σε ΦΕΚ. Για αυτούς ισχύουν οι διατάξεις του 181/Δ/3-5-85, όπως έχει τροποποιηθεί και ισχύει. "Οικισμοί κάτω από 2000 κατοίκους" είναι μια εναλλακτική ονομασία για τους οριοθετημένους. Προ '23 οι οικισμοί που προϋφίστανται του '23 οι οποίοι έχουν το "συνεκτικό προ του '23 τμήμα" (αν θες ο παλαιός "πυρήνας" του οικισμού), για το οποίο ισχύει το 138/Δ/13-3-81. Ό,τι είναι εκτός του τμήματος αυτού θεωρείται εκτός οικισμού. Τα όρια αυτού στην πολεοδομία. Στάσιμοι είναι οι οικισμοί που έχουν χαρακτηριστεί έτσι και για τους οποίους ισχύει το 588/Δ/23-12-82, η λεγόμενη ακτίνα των 800μ από το καθορισμένο κέντρο του στασίμου. (Στο 588/Δ προβλέπεται χωρισμός σε ζώνες, κάτι το οποίο έμπρακτα δεν έχω δει ποτέ εγώ.) Ο χαρακτηρισμός ενός οικισμού ως προ '23 ή/και ως στάσιμος δεν είναι απαραίτητο να έχει δημοσιευθεί σε ΦΕΚ, επομένως είναι απαραίτητη η ερώτηση σε πολεοδομία. Πολλοί προ '23 είναι ταυτόχρονα και στάσιμοι. Η ζώνη των 500 είναι παρέκκλιση για εκτός σχεδίου. Αν είσαι εκτός σχεδίου, μέσα στη απόσταση 500 μ από όριο προ του '23 οικισμού μπορείς να πας με το Αρ.1 παρ. 2α του 270/Δ για αρτιότητα με 2 στρέμματα. Για παραδοσιακούς πρέπει αντίστοιχα να έχει δημοσιευθεί σε ΦΕΚ ο χαρακτηρισμός και οι ειδικοί όροι που ισχύουν για τον εκάστοτε οικισμό.
