Όλη η δραστηριότητα
Αυτή η ροή ανανεώνεται αυτόματα
- Past hour
-
Σελ 168 εγώ βλεπω παραγραφο 6.3.1.1 Σε κάθε περίπτωση, υπαρχει δίκτυο διανομης
- 7.636 απαντήσεις
-
- ενεργειακή
- μελέτη
-
(and 2 more)
Με ετικέτα:
-
Απορίες για ενεργειακές μελέτες, επιθεωρήσεις και ΠΕΑ
getsakna replied to af.civileng's θέμα in ΚΕΝΑΚ
Δεν εχω δικτυο διανομης..ειναι τοπικος λεβητας χωρις δικτυο διανομης συμφωνα με σελ 168 ΤΟΤΕΕ-1. Επομένως δεν μετραει η αντισταθμιση η οποια αναφερεται στο δικτυο..- 7.636 απαντήσεις
-
- ενεργειακή
- μελέτη
-
(and 2 more)
Με ετικέτα:
-
Έχεις αντισταθμιση?
- 7.636 απαντήσεις
-
- ενεργειακή
- μελέτη
-
(and 2 more)
Με ετικέτα:
-
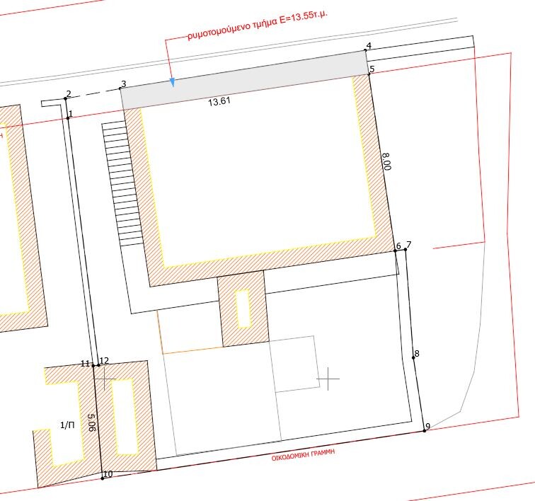
magda_nt started following Έκδοση Άδειας μικρής κλίμακας σε ρυμοτομούμενο κτίσμα προ του '55
-
Καλησπέρα, Θα ήθελα πληροφορίες για το πώς μπορώ και αν μπορώ να εκδόσω άδεια μικρής κλίμακας σε κτίσμα προ του '55 του οποίου τμήμα του ρυμοτομείται, χωρίς να αποδώσω το ρυμοτομούμενο τμήμα. Στην περιοχή υπάρχει σχέδιο πόλης, αλλά δεν υπάρχει πράξη εφαρμογής. Για το ακίνητο έχει γίνει υπαγωγή στον Ν. 4495/2017 και έχουν ρυθμιστεί κάποια στέγαστρα και ένα μικρό wc που υπάρχουν στον περιβάλλοντα χώρο. Αν δεν γίνεται να βγει μικρής κλίμακας, μπορώ να το προχωρήσω με τον άρθρο 107 παρ. 5β (εργασιών επισκευής, οι οποίες αποβλέπουν στην υγιεινή, την αισθητική βελτίωση-αποκατάσταση, τη συνήθη συντήρησή τους...) Οποιαδήποτε πληροφορία είναι ευπρόσδεκτη! Ευχαριστώ εκ των προτέρων για το χρόνο.
- Σήμερα
-
Καλησπέρα. Έχω το FINE και όλες τις εφαρμογές ADAPT και προσπαθώ εδώ και μέρες να βρω πως μπορώ να τοποθετήσω στο σχέδιο ένα split unit και ύστερα από τους υπολογισμούς του adapt να ενημερωθεί το σχέδιο με το μοντέλο και την ισχύ του unit (όπως γίνεται με τα καλοριφέρ π.χ. που τα ενημερώνει η εφαρμογή δισωλήνιο). Γνωρίζει κανείς πως μπορώ να ‘’χρησιμοποιήσω-εισαγω’’ ένα split unit για θέρμανση και ψύξη μέσω των προγραμμάτων της 4M? Ευχαριστώ.
-
Πολεοδομική Μελέτη (ΠΜ) και Πράξη Εφαρμογής
nbr replied to maria_m2's θέμα in Σχέδια Πόλης - Εφαρμογή
Νομίζω πως η φιλοσοφία του ν, 1337/83 είναι αυτό ακριβώς που γράφει παραπάνω ο "Τετρις". Σε ρωτάει ακόμη και τι γράφει στον πίνακα της Π.Ε. Πρέπει να δεις στον Πίνακα της Πράξης την γραμμή που αφορά σε αυτή την ιδιοκτησία και περισσότερο τις στήλες: με το αρχικό εμβαδόν, τα ρυμοτομούμενα ,,,,,... αλλά και την τελευταία στήλη με τις "παρατηρήσεις". Εκεί πρέπει να αναγράφεται αν υπόκειται στο αρθρο 25 του νόμου. -
Απορίες για ενεργειακές μελέτες, επιθεωρήσεις και ΠΕΑ
getsakna replied to af.civileng's θέμα in ΚΕΝΑΚ
Λαθος..Διαβασε την εσυ καλυτερα!- 7.636 απαντήσεις
-
- ενεργειακή
- μελέτη
-
(and 2 more)
Με ετικέτα:
-
Κατάτμηση Ακινήτου σε οικισμό < 2000 κατοίκων
Pavlos33 replied to Ψαλιδάκης's θέμα in Αρτιότητα - Οικοδομησιμότητα
Καλησπέρα. Υποθετικά μιλώντας, θα πρέπει να ξέρουμε το καθεστώς ύπαρξης του κτίσματος. Πχ είναι με οικοδομική άδεια κλπ. -
Δ Διάβασε την ΤΟΤΕΕ
- 7.636 απαντήσεις
-
- ενεργειακή
- μελέτη
-
(and 2 more)
Με ετικέτα:
-
getsakna started following ΔΙΑΤΑΞΕΙΣ ΑΥΤΟΜΑΤΟΥ ΕΛΕΓΧΟΥ
-
Καλησπέρα, ερώτηση για διατάξεις αυτόματου ελέγχου. Συστημα με λέβητα αερίου συμπύκνωσης με χρονοπρογραμματιστή θερμοστάτη και θερμοστατικες κεφαλές θεωρείται Δ ή Γ κατηγορίας;;
-
Πολεοδομική Μελέτη (ΠΜ) και Πράξη Εφαρμογής
Pavlos33 replied to maria_m2's θέμα in Σχέδια Πόλης - Εφαρμογή
Καλησπέρα. @MK-ATM Kατά τη γνώμη μου από την στιγμή που η περιοχή εντάχθηκε σε σχέδιο πόλης μέσω του ΦΕΚ της Π.Μ προ του ΓΟΚ 85 τα οικόπεδα δημιουργήθηκαν πριν τον ΓΟΚ 85. Η Π.Ε τακτοποίησε τα οικόπεδα (όσα έπρεπε να τακτοποιηθούν) και ενδεχομένως μέσω προσκυρώσεων απέδωσε κάποια οικόπεδα σε διαφορετικές θέσεις. Άρα, όπως περιγράφεις το θέμα, η γνώμη μου είναι ότι ισχύει το άρθρο 7 παρ 1 του ΝΟΚ ΑΡΘΡΟΝ-7 Αρτιότητα και οικοδομησιμότητα 1. Οικόπεδο που εντάσσεται σε σχέδιο πόλης μετά τη δημοσίευση του Ν-1577/85 , θεωρείται άρτιο και οικοδομήσιμο όταν: α) έχει τα ελάχιστα όρια εμβαδού και προσώπου, κατά τον κανόνα ή κατά παρέκκλιση, τα οποία καθορίζονται από τους όρους δόμησης της περιοχής, β) ή έχει τα ελάχιστα όρια εμβαδού και προσώπου που ισχύουν κατά τον κανόνα στην περιοχή ή εκείνα που αναφέρει το ΝΔ-8/73 αν αυτά είναι μεγαλύτερα και συγχρόνως εάν μπορεί να εγγράφεται στο οικοδομήσιμο τμήμα του, κάτοψη κτιρίου με ελάχιστη επιφάνεια 50 τμ και ελάχιστη πλευρά 5 μ., με την επιφύλαξη των διατάξεων του Αρθ-25 του Ν-1337/83, όπως εκάστοτε ισχύει. 2. Οικόπεδο που έχει δημιουργηθεί πριν από τη δημοσίευση του Ν-1577/85 και έχει τα ελάχιστα όρια εμβαδού και προσώπου, κατά τον κανόνα ή κατά παρέκκλιση, που ισχύουν στην περιοχή, θεωρείται άρτιο και οικοδομήσιμο. Επιπλέον των ανωτέρω, αναφέρεις ότι το οικόπεδο πληροί το ελάχιστο μήκος προσώπου (7 μέτρα) που ορίζει η κατά παρέκκλιση αρτιότητα. Άρα, ακόμη και αν ήταν απαιτητό, υφίσταται ελάχιστο μήκος πλευράς 5 μέτρα. -
Που μπορώ να βρω αεροφωτογραφίες
The_Bl4ck_Sheep replied to didroug's θέμα in HEPOS-Προβολικά Συστήματα
Καλησπέρα σας. Θα μπορούσα να έχω το Link για την εταιρία διάθεσης αεροφωτογραφιών? -
Πολεοδομική Μελέτη (ΠΜ) και Πράξη Εφαρμογής
MK-ATM replied to maria_m2's θέμα in Σχέδια Πόλης - Εφαρμογή
Σωστά, όμως εδώ αυτό που απομένει μετά την ρυμοτόμηση έχει τα ελάχιστα όρια κατά παρέκκλιση που ορίζει η πράξη, γιατί λοιπόν να ψάξω αν μπορεί να εγγραφεί κτίσμα 5-50; Η πράξη δίνει τελικό οικόπεδο 120 τμ με ΣΔ 0.8 οπότε θεωρώ πως χτίζει κανονικά αυτά που του αναλογεί στον χώρο που του αναλογεί κ ας μην έχει σχήμα 5-50. -
Το άρθρο 127 (παρ. 5) ορίζει ότι (για εργασίες αποσύνδεσης από το υπάρχον σύστημα κι εγκατάσταση νέου ατομικού) θα πρέπει να υπάρχει απόλυτη πλειοψηφία της γ.σ.. Συνεπώς, θα τη χρειαστείς για την ΕΕΔΜΚ
-
Πολεοδομική Μελέτη (ΠΜ) και Πράξη Εφαρμογής
tetris replied to maria_m2's θέμα in Σχέδια Πόλης - Εφαρμογή
Οικόπεδα που προκύπτουν από την ΠΕ είναι αυτά που, λόγω ρυμοτομίας, έχουν απωλέσει μέρος της αρχικής επιφάνειας, με αποτέλεσμα να μην εμπίπτουν στην αρτιότητα του κανόνα ή των παρεκκλίσεων. Σε κάθε περίπτωση, όμως, η ΠΕ ΔΕΝ επιτρέπεται να δημιουργεί μη άρτια και μη οικοδομήσιμα. Στην πινακίδα, τι αναφέρει? -
Πρόγραμμα Εξοικονομώ 2021
dimpep2 replied to nick_61's θέμα in Εξοικονομώ - Αυτονομώ και Εξοικονομώ 2021
Για κάποιο λόγο (?) δεν με άφηνε να απαντήσω με τον αρχικό μου λογαριασμό οπότε για να ενημερώσω επι του θέματος αναγκάστικα και έφτιαξα καινούριο λογαριασμό. Ενημερώνω λοιπόν οτι σήμερα ήρθε email επιτυχούς ολοκλήρωσης του ελέγχου τελικής εκταμίευσης και είμαι πλέον σε κατάσταση "09. Αίτηση προς τελική εκταμίευση - επιτυχής έλεγχος παραστατικών και λοιπών δικαιολογητικών" με επιπλέον σχόλιο οτι εχει μηδενιστεί το ποσό των καταχωρημένων ασφαλιστικών εισφορών του 2.Γ1 στον αντίστοιχο πίνακα. Δηλαδή δέχθηκαν την Υ.Δ περι μη επιθυμίας επιστροφής των εισφορών όπως είχαμε ενημερώσει οτι θα κάνουμε και στο email που είχαμε στείλει στο πρόγραμμα. Αυτα απο μένα. Ευχαριστώ και καλή συνέχεια σε όλους -
Πολεοδομική Μελέτη (ΠΜ) και Πράξη Εφαρμογής
MK-ATM replied to maria_m2's θέμα in Σχέδια Πόλης - Εφαρμογή
Εγώ αυτό που δεν μπορώ να καταλάβω είναι γιατί να με αφορά το άρθρο 25, δεν ζητάω κατ εξαίρεση οικοδομησιμότητα, ο όμορος πιάνει τα 7-100 που ορίζει η πράξη εφαρμογής, και στο οικοδομήσιμο του τμημα μπορεί να εγγραφεί κτίσμα κάτοψης περίπου 52 τμ (3.5 Χ 14). Γιατί να το πω μη άρτιο & μη οικοδομήσιμο; Είναι οικόπεδο που προκύπτει από πράξη εφαρμογής -
dimpep2 joined the community
-
Πολεοδομική Μελέτη (ΠΜ) και Πράξη Εφαρμογής
dimitris GM replied to maria_m2's θέμα in Σχέδια Πόλης - Εφαρμογή
Μια λυση θα ηταν η συνενωση των δυο οικοπεδων και η εν συνεχεία συσταση καθετων. Κατα τα λοιπα, αυτο το αρθρο 25 εχει κριθει αντισυνταγματικο. Υπαρχει και αυτη η συζητηση στο φορουμ Υπαρχει και ο ν. 3212 με το αρθρο 11... Και εδω, αναλυση του αρθρου 25 https://nomosphysis.org.gr/13420/ste-3692016-paranomi-kyrosi-memonomenis-praksis-efarmogis-gia-tin-paralia-kalyvion/ -
Πολεοδομική Μελέτη (ΠΜ) και Πράξη Εφαρμογής
MK-ATM replied to maria_m2's θέμα in Σχέδια Πόλης - Εφαρμογή
Δεν γνωρίζονται, είναι νέοι ιδιοκτήτες στην περιοχή -
Απορίες για ενεργειακές μελέτες, επιθεωρήσεις και ΠΕΑ
getsakna replied to af.civileng's θέμα in ΚΕΝΑΚ
Καλησπέρα, ερώτηση για διατάξεις αυτόματου ελέγχου. Συστημα με λέβητα αερίου συμπύκνωσης με χρονοπρογραμματιστή θερμοστάτη και θερμοστατικες κεφαλές θεωρείται Δ ή Γ κατηγορίας;;- 7.636 απαντήσεις
-
- ενεργειακή
- μελέτη
-
(and 2 more)
Με ετικέτα:
-
Υπολειπόμενος Χρόνος: 1 μήνας and 28 days
- ΠΩΛΗΣΗ
- ΜΕΤΑΧΕΙΡΙΣΜΕΝΟ
Πωλείται GPS Base Trimble R8s (τιμή Base 3.250 ευρώ) Χαρακτηριστικά base: GPS + Glonass Ενσωματωμένο radio UHF modem TX Δυνατότητα χρήσης σαν Base συμβατικού συστήματος Τι περιλαμβάνει: Δέκτης Trimble R8s x 1 Σκληρή βαλίτσα μεταφοράς x 1 Κεραία UHF x 1 Εσωτερικές μπαταρίες x 2 Φορτιστής και τροφοδοτικό x 1 Τρικόχλιο x 1 Επέκταση για το τρικόχλιο x 1 Αντάπτορας επέκτασης+τρικόκλιου x 13.250 €
-
Πολεοδομική Μελέτη (ΠΜ) και Πράξη Εφαρμογής
dimitris GM replied to maria_m2's θέμα in Σχέδια Πόλης - Εφαρμογή
Πώς ειναι οι σχεσεις μεταξυ των δυο γειτονων;