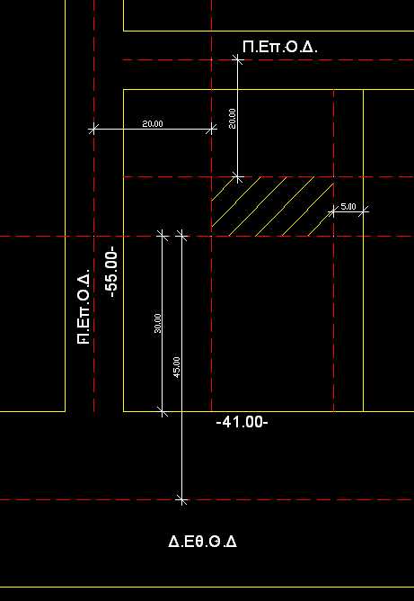
erling Δημοσιεύτηκε December 22, 2009 at 12:53 μμ Δημοσιεύτηκε December 22, 2009 at 12:53 μμ Συνάδελφοι αντιμετωπίζω το παρακάτω ζήτημα για κάτι κτήρια γραφείων. Έχω γήπεδο όπως δείχνει το σχέδιο Είναι γήπεδο που προϋφίσταται το 1970, δηλαδή ανήκει στην περίπτωση 2.β.γγ του άρθρου 1. γγ) Τα γηπεδα που υφίστανται κατά τη 17.10.1978 ημέρα δημοσίευσης του από 6.10.1978 π.δ./τος (ΦΕΚ 538/Δ).Ελάχιστο πρόσωπο : είκοσι πέντε (25) μέτρα. Ελάχιστο βάθος: σαράντα (40) μέτρα Ελάχιστο εμβαδόν δύο χιλιάδες (2.000) μ2. Στο ίδιο άρθρο λέει η 5.ββ ββ) Οι πλάγιες και οπίσθιες αποστάσεις των κατά παρέκκλιση αρτίων και οικοδομήσιμων γηπέδων της παρ. 2 του παρόντος ορίζονται σε δύο και μισό (2.50,) τουλάχιστον για τα γήπεδα της υποπερίπτωσης αα, της περιπτώσεως β και σε πέντε (5) μ. τουλάχιστον για τα γήπεδα της περίπτωσης α και των υποπεριπτώσεων ββ και γγ της περίπτωσης β. Για τα γήπεδα της περίπτωσης β οι αποστάσεις αυτές ισχύουν μόνον εφόσον τα μήκη προσώπου και βάθους του γηπέδου είναι μικρότερα των: 20 Μ. για το πρόσωπο και 35 μ. για το βάθος για τα γήπεδα της υποπερίπτωσης αα της περίπτωσης β και 45 μ. για το πρόσωπο και 50 μ για το βάθος για τα γήπεδα των υποπεριπτώσεων ββ,γγ, της ίδιας περίπτωσης Η εγκύκλιος όμως 34844/5574/104/86 που ανέφερε παραπάνω ο DAG) λέει πως "οι ελάχιστες αποστάσεις εξαρτώνται όχι μόνο από την περίπτωση της κατά παρέκκλιση αρτιότητας (Παρ.2β περιπτώσεις αα, ωω και γγ αλλά επίσης και από το πρόσωπο ή το βάθος τους". Έτσι λοιπόν πιστεύω πως η απόσταση από το πλάγιο όριο θα πρέπει να είναι ίση με 5μ, αφού το πρόσωπό μου είναι 41μ δηλαδή μεταξύ 20μ και 45μ αλλά και από το πίσω όριο (που είναι το ίδιο) 5μ αφού το βάθος μου είναι 41μ δηλαδή μεταξύ 25μ και 50μ. Έχω δίκιο ή πλανάμε οικτρά? Ευχαριστώ. υ.γ. ΕΠΕΞΗΓΗΣΕΙΣ Δ.Εθ.Ο.Δ = Δευτερεύον Εθνικό Οδικό Δίκτυο Π.Επ.Ο.Δ. = Πρωτεύον Επαρχιακό Οδικό Δίκτυο
GEODEL79 Δημοσιεύτηκε December 22, 2009 at 05:33 μμ Δημοσιεύτηκε December 22, 2009 at 05:33 μμ Σκεφτομαι και εγω λοιπον και λεω. 1.αν θεωρηθει προσωπο αυτο επι τησ δευτ.εθ.ο αυτο δηλαδη των 41μ τοτε εισαι <45 .το βαθος ομως εναι 55 δηλαδη >50 αρα για την πλαγιες αποστασεις 5 (μπορεις μονο απο δεξια και οχι αριστερα(αποστασει απο οδικα δικτυα) οπως και εχεις. οι οπισθιες οπως εχεις αλλα και 15 απο οριο(πισω). 2.ομοια και θεωρηθει προσωπο επι της επ.οδ αυτησ που ειναι παραλληλα με εθν.οδο. 3.αν θεωρηθει προσωπο αυτο των 55 επι την επ.οδου τοτε εισαι >45 και με βαθος 41<50 αρα για τις πλαγιες δεν επιτρεπεται η παρεκκλιση των 5μ και πας με αποστασεισ απο οδικα δικτυα.οι οπισθιεσ αποστασεις ομως αφου εισαι <50 σε βαθος πας στα 5 μ . Η εγκυκλιος του 86 αυτο ακριβώς εξηγει πως σε ενα γηπεδο μπορει να προκυπτουν διαφορετικες πλαγιες απο οπισθιες αποστασεις. Τα παραπανω προκυπτουν οταν ερμηνευσει κανεις και το παραδειγμα της εν λογω εγκυκλιου για γηπεδο 62 παρ2 βαα. Και μπορει να ειναι ασχετο για την περιπτωση αλλα στην εκτος σχεδιου κατα παρεκκλιση οικοδομησιμοτητα αυτο που ελεγχω επιπλεον ειναι αν ισχυουν οιι παρεκκλισεις και αυτο γιατι υπαρχουν στο νμο μου περιοχες της ΖΟΕ οπου δεν ισχυει..και ομως....
erling Δημοσιεύτηκε December 22, 2009 at 06:45 μμ Δημοσιεύτηκε December 22, 2009 at 06:45 μμ Ευχαριστώ GEODEL79. Το θέμα είναι πως στο συγκεκριμένο γήπεδο, έχουμε 3 πρόσωπα και μόνο μία πλάγια ή οπίσθια απόσταση, η οποία είναι η ίδια. Τελικά όμως και με τον δικό σου συλλογισμό, καταλήγουμε πως η απόσταση των 5.00μ που έχω στο σχέδιο είναι σωστή. * Είμαι εκτός ΖΟΕ * Συνάδελφοι, κάποιος άλλος έχει να αναφέρει κάτι επ'αυτού ή έχω δίκιο τελικά.????
tao Δημοσιεύτηκε March 16, 2010 at 08:39 μμ Δημοσιεύτηκε March 16, 2010 at 08:39 μμ Γήπεδο εκτός σχεδίου, εμβαδό 1400 τ.μ., πρόσωπο σε δημοτική οδό 23μ., βάθος 68μ., δημιουργήθηκε το 1963, είναι άρτιο και οικοδομήσιμο κατά παρέκκλιση. Για τις αποστάσεις από τα όρια, τι ισχύει για την περίπτωση αυτή (5μ. ή 15μ.); Αναφέρομαι πάντα για ανέγερση κατοικίας.
GRTOPO Δημοσιεύτηκε March 16, 2010 at 09:18 μμ Δημοσιεύτηκε March 16, 2010 at 09:18 μμ Είναι Κύρια Δημοτική ή απλά δημοτική οδός??
anastiakp35 Δημοσιεύτηκε March 18, 2010 at 09:13 πμ Δημοσιεύτηκε March 18, 2010 at 09:13 πμ καλημέρα είμαι καινούρια στο φόρουμ θα ήθελα να ρωτήσω αν μπορώ να βάλω εξώστη μέσα στην απόσταση των δεκαπέντε μέτρων της απόστασης από τον άξονα παλαίας εθνικής οδού Παρατήρηση: Χρησιμοποιείστε την αναζήτηση. Παρακαλώ διαβάστε τους Κανόνες Συμμετοχής του forum. Ευχαριστώ, achille. Παρατήρηση: Τα θέματα πρέπει να αναρτώνται στην σωστή θεματική κατηγορία. Παρακαλώ διαβάστε τους Κανόνες Συμμετοχής του forum. Ευχαριστώ, achille.
tao Δημοσιεύτηκε March 21, 2010 at 08:19 πμ Δημοσιεύτηκε March 21, 2010 at 08:19 πμ κάποια απάντηση στο προηγούμενο ερώτημα;
ilias Δημοσιεύτηκε March 21, 2010 at 01:11 μμ Δημοσιεύτηκε March 21, 2010 at 01:11 μμ @anastiakp35 Μπορείς σίγουρα να βάλεις βεράντα μπαζωμένη και ασκεπή μέσα στο Δ, όπου πάει σαν διαμόρφωση περιβάλλοντος χώρου. Υποθέτω πως το παραπάνω ισχύει και για την περίπτωσή σου μιας και πάλι μιλάμε για περιβάλλων χώρο. Δες και Γ.Ο.Κ. άρθρο 17.
SIRADRAB Δημοσιεύτηκε March 21, 2010 at 01:57 μμ Δημοσιεύτηκε March 21, 2010 at 01:57 μμ Φίλε anastiakp35 , 'Οχι. Και οι εξώστες πρέπει να απέχουν απόσταση 15μ. Αυτή η απόσταση, στα εκτός σχεδίου, έχει την έννοια της γραμμής δόμησης (ΟΓ). Για τις βεράντες δεν υπάρχει θέμα διότι θεωρούνται διαμορφώσεις και προβλέπονται από το άρθρ. 17 του ΓΟΚ. * Είσαι σίγουρος για την 15μ απόσταση από τον άξονα? (το λέω αυτό γιατί δεν θυμάμαι τέτοια απόσταση, συνήθως είναι > από 20μ)
Recommended Posts
Δημιουργήστε ένα λογαριασμό ή συνδεθείτε προκειμένου να αφήσετε κάποιο σχόλιο
Πρέπει να είστε μέλος για να μπορέσετε να αφήσετε κάποιο σχόλιο
Δημιουργία λογαριασμού
Κάντε μια δωρεάν εγγραφή στην κοινότητά μας. Είναι εύκολο!
Εγγραφή νέου λογαριασμούΣύνδεση
Εάν έχετε ήδη λογαριασμό; Συνδεθείτε εδώ.
Συνδεθείτε τώρα