- 
                Περιεχόμενα453
- 
                Εντάχθηκε
Τύπος περιεχομένου
Profiles
Φόρουμ
Downloads
Gallery
Ειδήσεις
Media Demo
Αγγελίες
Store
Everything posted by stek
- 
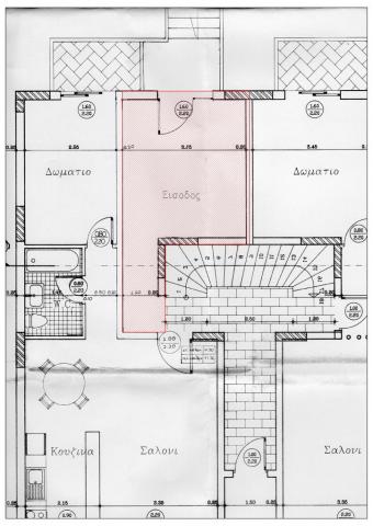
	Παιδιά, επειδή έχω μπερδευτεί και συζητώντας με 3 μηχανικούς περί του θέματος πήρα 3 διαφορετικούς τρόπους υπολογισμού του προστίμου, ρωτάω κι εδώ μήπως μπορέσω να βγάλω μία άκρη και να απαντήσω με τη σειρά μου στον ιδιοκτήτη. Στο ΤΕΕ μέσω email δεν έλαβα καμία απάντηση, στο ΤΕΕ/ΤΚΜ δεν γίνονται οι ενημερώσεις περί υπολογισμών προστίμων μέχρι και 30/10... Περίπτωση πολυκατοικίας που όλη ανήκει σε έναν ιδιοκτήτη, δεν έχει γίνει σύσταση οριζ. ιδιοκτησιών και δηλώνεται στο Ε9 170τμ υπόγειο, 170τμ ισόγειο και 170τμ 1ος όροφος. Τμήμα των τετραγωνικών του κοινόχρηστου (~20τμ) έχουν προσαρτηθεί στο ένα από τα 2 ισόγεια διαμερίσματα κι έτσι έχει κοπεί η πρόσβαση που έπρεπε να υπάρχει βάσει ΓΟΚ από την μία πλευρά του οικοπέδου στην άλλη. Επισυνάπτω φωτογραφίες και από το διάγραμμα κάλυψης της άδειας και από την κάτοψη του ισογείου για να καταλάβετε καλύτερα την απορία μου. Α) Οι τρόποι υπολογισμού προστίμου που έχω σαν πιθανότητες μέχρι στιγμής: 1) Διαφορετική διαμερισμάτωση ορόφου (500€) και άλλη μία παράβαση βάσει αναλυτικού για τροποποίηση όψεων και την περίφραξη του κτιρίου (άλλα 500€). 2) ΥΔΚΧ 20τμ (1.300€) και άλλη μία παράβαση βάσει αναλυτικού για τροποποίηση όψεων και την περίφραξη του κτιρίου (άλλα 500€). 3) ΥΔΚΧ 20τμ + αλλαγή χρήσης (1800€) και άλλη μία παράβαση βάσει αναλυτικού για τροποποίηση όψεων και την περίφραξη του κτιρίου (άλλα 500€). Β) Σε περίπτωση που πάμε στον υπολογισμό με ΥΔΚΧ, παίρνει έκπτωση παλαιότητας καθώς το δήλωνε όλο στο Ε9 σαν πλάκα 170τμ με ημερομηνία 1994 τόσα χρόνια; Γ) Ο ιδιοκτήτης θέλει να τακτοποιήσει τις αυθαιρεσίες για να προχωρήσει σε σύσταση Ο.Ι., δίνουμε 1 βεβαίωση για όλο το κτίριο καθώς δεν έχει γίνει ακόμα η σύσταση; (Η συμβολαιογράφος είπε 1 βεβαίωση για όλο). Δίνουμε την βεβαίωση που βγαίνει από την δήλωση της τακτοποίησης που κάνουμε ή άλλη νέα δήλωση στο σύστημα; Και τώρα πάμε στην δύσκολη ερώτηση. Δίπλα ακριβώς από την συγκεκριμένη οικοδομή, υπάρχει άλλη μία ολόιδια mirror με την ίδια παράβαση ακριβώς και άλλη οικοδομική άδεια. Οι 2 οικοδομές μοιράζονται τον ίδιο λέβητα για την θέρμανση τους και η περίφραξη που μοιράζονται είναι επίσης κοινή. Τα αντιμετωπίζω σαν 2 ξεχωριστές άδειες-δηλώσεις καθώς αφορούν διαφορετικά οικόπεδα ή θα έχω κάπου θέμα λόγω της κοινής περίφραξης; Ευχαριστώ για τις όποιες απαντήσεις κι ελπίζω να βγει μία άκρη!
- 
	Σύγγνώμη προκαταβολικά αν εχει αναφερθεί πολλές σελίδες πιο πριν, αλλά επειδή με μία γρήγορη ανάγνωση δεν έβγαλα σίγουρη απάντηση, είπα να ρωτήσω! Έχω περίπτωση σε Προσωρινή Υπαγωγή, πληρώνεται με δόσεις και έχει πληρωθεί το 45% του ποσού με όλα τα σχέδια ανεβασμένα. 1) Εάν την μεταφέρω στην πλατφόρμα του Ν.4178 θα γίνει αναπροσαρμογή των δόσεων που πληρώνει ο πελάτης με 10% έκπτωση πάνω στο συνολικό πρόστιμο όπως υπολογίστηκε με τον Ν.4014 ή στο υπόλοιπο του ποσού που υπολείπεται; 2) Παράλληλα πληρώνει και το 15άρι του ΤΕΕ ε; 3) Εγώ σαν μηχανικός πρέπει να κάνω κάτι άλλο πέρα από την μετάφορά της δήλωσης; Πρέπει να κάτσω να διορθώνω και στα φύλλα καταγραφής τίποτα; Ευχαριστώ!
- 
	Για κάποιο λόγο δεν μπορώ να επεξεργαστώ το παραπάνω ποστ, οπότε το γράφω από κάτω: Η απάντηση εκπροσώπου του ΤΕΕ ήταν πως για να εκδοθεί το παράβολο προς πληρωμή θα πρέπει να μπει κάποιος τύπος αυθαιρεσίας στα φύλλα καταγραφής, αλλιώς βγαίνει βεβαίωση μηχανικού με μηδενικά πρόστιμα. Ουσιαστικά, επιλέγουμε αυθαιρεσία, και στον τύπο αυθαιρεσίας επιλέγεται "Προς έκδοση οικ. άδειας". Κατηγορία αυθαιρεσίας δεν μου απάντησαν τι πρέπει να μπει, πάει κατά το δοκούν του μηχανικού Προσωπικά, επειδή η αυθαιρεσία μου ενέπιπτε στην παρ.10 του άρθρου 23 την έβαλα κατ. 4, γιατί δεν έμπαινε κατηγορία 3... Όπως και να έχει μου είπαν ότι περιμένουν και οι ίδιοι διευκρινήσεις, γιατί το θέμα με τα προς έκδοση οικοδομ. αδείας τους απασχόλησε και στις δοκιμές της πλατφόρμας και ούτε οι ίδιοι έχουν βγάλει άκρη για το πώς θα πρέπει να δηλώνονται σωστά...
- 
	Απλώς να ενημερώσω πως αν στο Φύλλο Καταγραφής επιλέξεις απλώς το "Προς έκδοση Οικ. Αδείας" δεν υπολογίζει ούτε παράβολο, ούτε κάποιο τέλος ανταπόδοσης και το στέλνει με μηδενικά σε Αρχική Υποβολή. Θα ρωτήσω και στο ΤΕΕ και θα ενημερώσω τους συναδέλφους. Αν κάποιος έχει κάνει ήδη κάποια τέτοια δήλωση, ας αναφέρει εδώ τον τρόπο, μήπως κάνω εγώ κάποιο λάθος!
- 
	1) Όχι, αν η αμοιβή είναι κάτω των 1.500€ δεν ειναι απαραίτητη η κατάθεση αμοιβής στην ΕΤΕ. 2) ναι. 3) ανεβασε το στο συστημα αμοιβων του τεε!
- 
	Περίπτωση οικοδομής που ανήκει όλη σε έναν ιδιοκτήτη, έχει 2 διαμερίσματα στο ισόγειο και στο ένα από τα 2 διαμερίσματα έχει πάρει 19τμ από τα τετραγωνικά του κλειστού κοινόχρηστου χώρου της εισόδου της οικοδομής. Είναι διαφορετική διαμερισμάτωση ορόφου ή υπέρβαση δόμησης; Αν είναι διαμερισμάτωση και έχει και αλλαγές στην θέση των ανοιγμάτων στην όψη πάει κατηγορία 4 με μία λοιπή παράβαση και κλικ το κουμπάκι της διαφορετικής διαμερισμάτωσης να βγάλει πρόστιμο 1000 αντί για 500 που βγάζει στην κατηγορία 3;
- 
	Νίκο καλησπέρα. Όπως καταλαβαίνω από την περιγραφή σου, το πιο λογικό είναι να τακτοποιείται με διαμερισμάτωση και αναλυτικό για τον τοίχο που κατασκευάστηκε. Κατηγορία ή 4 ή 5 (μάλλον 4). Βέβαια η διαμερισμάτωση αναφέρεται στον ν.4178 ως διαφορετική διαμερισμάτωση ορόφου, οπότε ίσως και να σε δεσμεύει αυτό και να μην μπορείς να το τακτοποιήσεις με αυτόν τον τρόπο! Για το 3 που αναφέρεις, μάλλον θα πρέπει να τακτοποιηθούν όλες οι αυθαιρεσίες, από τη στιγμή που θεωρείται όλο μία ενιαία ιδιοκτησία και δεν υπάρχει σύσταση.
- 
	Καλησπέρα συνάδελφοι. Σε κτίριο κατοικιών με υπόγειο με εκδοθείσα Ο.Α. του 2005, έχουν γίνει αυθαιρεσίες στο υπόγειο (μετακίνηση μηχανοστασίου του ανελκυστήρα σε άλλη θέση και καθαίρεση κάποιων τοιχοποιιών). Η αρχική οικοδομική άδεια είχε ολοκληρωθεί και το πρόβλημα ξεκίνησε στην αυτοψία της πυροσβεστικής που είδε τις αλλαγές για τις οποίες αυθαιρεσίες και για την τακτοποίηση τους, αφού βεβαιώθηκαν από την ΥΔΟΜ, είχε εκδοθεί άδεια νομιμοποίησης το 2010. . Στη συνέχεια, όπως με ενημέρωσαν από την ΥΔΟΜ, έπρεπε να βεβαιωθεί και να πληρωθεί το πρόστιμο της αυθαιρεσίας κάτι το οποίο δεν έγινε καθώς το συγκεκριμένο τμήμα που εξέδιδε τα πρόστιμα έκλεισε όταν βγήκε σε ισχύ ο Ν,4014 που μπορούσες με παράβολο να πας προς έκδοση οικ. αδείας. Δεν πληρώθηκε τότε και πρέπει να πληρωθεί τώρα για να κλείσει η άδεια νομιμοποίησης των αυθαιρεσιών. Η ερώτηση μου είναι η εξής, καθώς δεν έχω ασχοληθεί καθόλου στο παρελθόν με περιπτώσεις "προς έκδοση οικ. αδειας". Πέρα από την πληρωμή του παραβόλου, εμείς σαν μηχανικοί ανεβάζουμε τίποτα σχέδια όπως στις υπόλοιπες τακτοποιήσεις; Η μόνο την έκδοση της οικοδομικης αδείας μετά την ολοκλήρωση της διαδικασίας από την ΥΔΟΜ; Επίσης, υπάγεται στην παρακάτω περίπτωση; Η αρχική Οικοδομική άδεια θεωρείται ήδη εκδοθείσα διοικητική πράξη και θα πρέπει να πληρωθεί και το πενταπλάσιο του παραβόλου σαν πρόστιμο; Αυτό, ούτε στην ΥΔΟΜ μπόρεσαν να μου το απαντήσουν... Γιατί άλλο είναι να πω στους ιδιοκτήτες, ότι θα πληρώσετε 500€ και άλλο 3.000€... Ευχαριστώ για τις όποιες απαντήσεις!
- 
	Σε περιπτωση που ενας ιδιοκτητης κατεχει ολα τα διαμερισματα μιας οικοδομης, σε ενα απο τα διαμερισματα (ισογειο) εχει παρει μεσα 15τμ απο τα κοινοχρηστα τμ. Αδεια του 1997. Ολα τα χρονια το δηλωνει με τα σωστα τμ (+15) στο ε9. Θεωρείται αποδεικτικο παλαιοτητας αποκλειστικα το ε9 για να παρει την εκπτωση;
- 
	Η διαμερισμάτωση πάει ως μία στον όροφο (αν θυμάμαι καλά) οπότε δύναται να χρησιμοποιηθεί και να καταγραφούν και να δηλωθούν μόνο οι επιπλέον αυθαιρεσίες του Δ-2. Εξ'αλλου θυμαμαι οτι στην περιπτωση βεβαιωσεων του ν.4014 για καποιο αλλο διαμερισμα γραφοταν απο τον μηχανικο, ότι εχει δηλωθει η αυθαιρεσια της διαφορετικης διαμερισματωσης οροφου συμφωνα με την ταδε α/α δηλωση του ν.4014. Δεν μου εχει τυχει προσωπικα, αλλα σε καποιο νημα στο φορουμ εδω το ειχα διαβασει!
- 
	Κι εγώ το ίδιο. ΑΠΥ και συμφωνητικό και τίποτα περαιτέρω. Μάλιστα όταν είχα κάνει πέρυσι τα σεμινάρια των μονίμων είχα ρωτήσει για το θέμα τον εισηγητή που ήταν και προσωρινός και μου είε κι αυτός το ίδιο. Μόνο ΦΠΑ και τπτ άλλο. Τώρα άλλοι πληρώνουν και ΤΣΜΕΔΕ/ΕΜΠ, ενώ έχω ακούσει και για καταθέσεις στην ΕΤΕ της αμοιβής, ό,τι θεωρείς ότι είναι σωστό κάνεις!
- 
	To άνοιγμα έγινε 60cm μικρότερο, όχι μεγαλύτερο. Με την αλλαγή έχουν αλλάξει η όψη της οικοδομής και η μελέτη θερμομόνωσης σίγουρα έτσι όπως το βλέπω με μια γρήγορη ματιά. Όντως η βεβαίωση γράφει για δόμηση, κάλυψη, ύψος, οπότε λογικά μπορεί να δοθεί... Θα ρωτήσω και στο ΤΕΕ να πάρω και μία ακόμη γνώμη! Επίσης, σε περίπτωση που εγώ δώσω βεβαίωση για το συγκεκριμένο διαμέρισμα και άλλος συνάδελφος τακτοποιήσει την (ίδια) αυθαιρεσία άλλου διαμερίσματος της οικοδομής δεν βγαίνω εγώ κάπου εκτεθειμένος, καθώς η αλλαγή έχει γίνει σε όλα τα διαμερίσματα της οικοδομής; Η αυτό αναιρείται λόγω της ημερομηνίας λήξης της βεβαίωσης μετά από 2 μήνες;
- 
	Να κάνω κι εγώ μία ερώτηση, σε περίπτωση που μου έτυχε για να δώσω βεβαίωση μηχανικού. Μέτρησα διαμέρισμα σε πολυόροφη οικοδομή, όπου το ένα άνοιγμα στο σαλόνι έγινε 2.40 αντί 3.00 όπως όριζε η άδεια. Πέρα από αυτό κάποια άλλη αυθαιρεσία δεν υπάρχει. Σε όλα τα διαμερίσματα της οικοδομής έχει γίνει η συγκεκριμένη αυθαιρεσία. Για να δωθεί η βεβαίωση, πρέπει αναγκαστικά να μπει στον 4178 κατηγορία 4 με υπολογισμό των αυθαιρεσιών βάσει ΑΤΟΕ (καθώς η διαφορά είναι >10% στο άνοιγμα και δεν πάει κατηγ. 3), ή μπορούν οι ιδιοκτήτες να κατεδαφίσουν το τμήμα του ανοίγματος, να το κάνουν 3.00 μέτρα όπως ορίζει η άδεια και να δώσω την βεβαίωση; Φυσικά σε αυτήν την περίπτωση θα ξεχωρίζει στην όψη της οικοδομής η διαφορά του ανοίγματος (θα είναι όμως και το μόνο σύμφωνο με την άδεια)... Κάθε γνώμη δεκτή!
- 
	  Κατάθεση δικαιολογητικών Β' φάσης του Ν.4014/2011stek replied to Gpsakias's θέμα in Ν. 4014/11 - Ρυθμίσεις Αυθαιρέτων Πάντως για την ιστορία, τις τελευταίες 4 ημέρες βάσει των α/α των αρχείων έχουν ανέβει περίπου 120.000 αρχεία!
- 
	Να ενημερώσω (πιστεύω δεν έχει ειπωθεί σε προηγούμενη σελίδα, απ' όσο είδα) πως καθώς τα σεμινάρια των κτηρίων μου κόστισαν 300€, στην αίτηση έβαλα 300€ και αντ' αυτού μου πήρε σαν εισαγωγή 400€. Πήγα στην αλλαγή στοιχείων, να κάνω την αλλαγή σε 300€ και πάλι δεν το πήρε. Οπότε θεωρώ ότι είτε το σύστημα έχει στηθεί με προχειρότητα και δεν επιδέχεται αλλαγές, είτε έχει αποφασιστεί η ενίσχυση να είναι 400€ στα κτήρια, ανεξαρτήτως κόστους σεμιναρίων... Τι από τα 2 συμβαίνει θα το δούμε εν καιρώ.
- 
	  Κατάθεση δικαιολογητικών Β' φάσης του Ν.4014/2011stek replied to Gpsakias's θέμα in Ν. 4014/11 - Ρυθμίσεις Αυθαιρέτων Αυτό ξαναπές το!

 
         
                     
                    