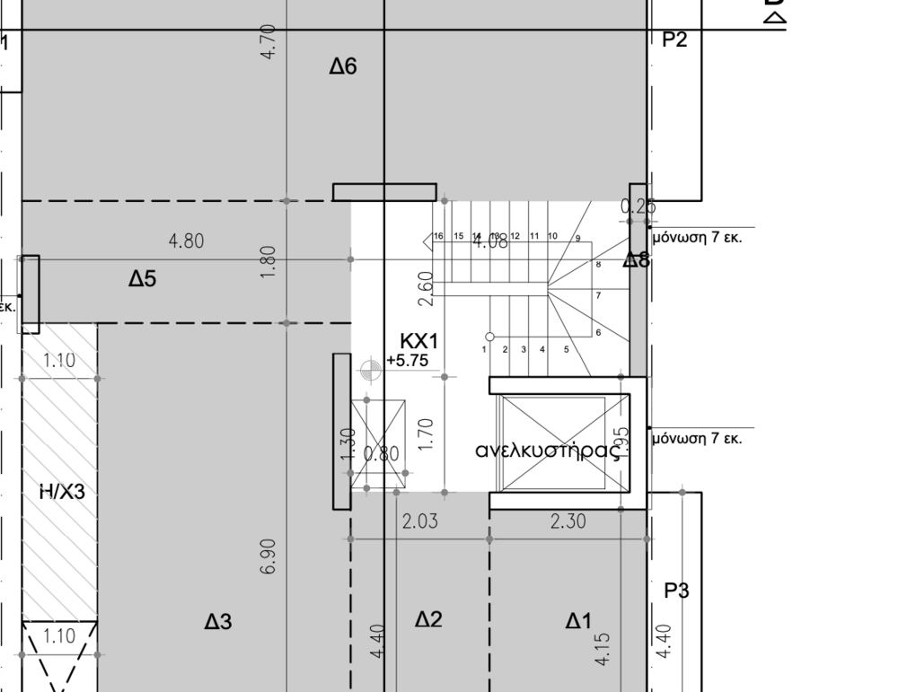
jbosdas Δημοσιεύτηκε May 15, 2021 at 12:02 μμ Δημοσιεύτηκε May 15, 2021 at 12:02 μμ Ναι φυσικά και επιτρέπεται αφού η καταφυγή ελέγχεται για πυρ. Αρα το lift δεν χρησιμοποιείται για το 1.50 αλλά για το 0.80/1.30. Φυσικά πρέπει να εχεις και min πλάτος οδευσης διαφυγης (για πεζούς) το οποιο ειναι 0.70 αν γνωρίζω καλά... (βαλε να δουλέψει το mode πυρκαϊάς δηλ...) Το 0.90 από που προκύπτει @kan62; ΠΔ-41/18 5.3.3. Πλάτος και ύψος όδευσης διαφυγής: Η μονάδα πλάτους της όδευσης διαφυγής ορίζεται σε 0,60 του μ. Το απαιτούμενο ελάχιστο πλάτος οποιασδήποτε όδευσης διαφυγής δεν επιτρέπεται να είναι μικρότερο του 0,70 του μ. - οι φωτό από ΔΔ αναρτημενα στο e-αδειες - 2
kan62 Δημοσιεύτηκε May 15, 2021 at 12:24 μμ Δημοσιεύτηκε May 15, 2021 at 12:24 μμ Εκτός από το γεγονός ότι δίπλα από το παρκαρισμένο καρότσι πρέπει να μπορεί να περάσει άλλο ... Το 0,90 μ. είναι το πλάτος που θεωρείται ως το ελάχιστο καθαρό σε θύρες και διαδρόμους κατοικιών από όλες τις προδιαγραφές προσβασιμότητας που είναι υποχρεωτικές : Για νέα κτήρια : Σχεδιάζοντας για όλους (Κατοικία - παράγραφος 10.3) 10.3. ΟΡΙΖΟΝΤΙΑ ΚΥΚΛΟΦΟΡΙΑ Απαραίτητη προϋπόθεση για την ελεύθερη κυκλοφορία όλων των χρηστών σε μια κατοικία είναι η πρόβλεψη: 10.3.1. διαδρόμων πλάτους 1.20μ με εξασφαλισμένο σε όλο το μήκος τους ελάχιστο ελεύθερο -από κάθε εμπόδιο ή έπιπλο- πλάτος 0.90μ. για υπάρχοντα κτήρια : ΚΕΦΑΛΑΙΟ Β: Τεχνικές Οδηγίες Άρθρο 1 Προσβάσιμες διαδρομές 1. Ως ΠΡΟΣΒΑΣΙΜΗ ΔΙΑΔΡΟΜΗ νοείται η συντομότερη, συνεχής, ασφαλής και χωρίς εμπόδια πορεία, κατάλληλου πλάτους και υλικού επικάλυψης που ακολουθεί ένα άτομο με αναπηρία ή/και εμποδιζόμενο άτομο για τη μετάβασή του από ένα σημείο σε ένα άλλο. Περιλαμβάνει ισόπεδες διαδρομές, ράμπες κατάλληλης κλίσης ή/και ανυψωτικούς μηχανισμούς καθώς και την κατάλληλη σήμανση σε μορφές προσβάσιμες στα άτομα με αναπηρία (ηχητική, φωτεινή και ανάγλυφη). 2. Σε κάθε προσβάσιμη διαδρομή πρέπει να εξασφαλίζεται : α. ελάχιστο καθαρό πλάτος 0,90μ, ελεύθερο από παντός είδους εμπόδια (εξοπλισμοί, μόνιμα ή προσωρινά αποθηκευμένα υλικά κ.λπ.) καθ’ όλο το μήκος της και ελεύθερο καθαρό ύψος 2,20μ. 1 2
jbosdas Δημοσιεύτηκε May 15, 2021 at 03:22 μμ Δημοσιεύτηκε May 15, 2021 at 03:22 μμ Καταλαβα τι εννοείς. Θα πρέπει να δούμε όμως πότε ελέγχουμε τις αντίστοιχες διαστάσεις... Σε καθημερινή χρήση εχουμε το 150 στον ανελκυστήρα, και φυσικά το 90 για την πρόσβαση εξασφαλίζεται. Δεν ελεγχουμε καταφυγή. Σε περίπτωση πυρκαιάς ελεγχουμε την καταφυγή και την όδευση. Αρα το 80/130 και το 0,70 αντίστοιχα και όχι το 0,90 της καθημερινής πρόσβασιμότητας... 2
ΚΑΝΑ Δημοσιεύτηκε May 15, 2021 at 04:39 μμ Δημοσιεύτηκε May 15, 2021 at 04:39 μμ Προσωπικά σας ευχαριστώ πάρα πολύ!. Είχα την εντύπωση ότι ο χώρος προ της εισόδου ασανσέρ αλλά και το πλάτος πλατύσκαλων έμειναν σε κάθε περίπτωση με σταθερά πλάτη π.χ 1.20 και 1.50 μ. Θόδωρε αν υποθέσουμε ότι το ασανσέρ σε περίπτωση εκτάκτων αναγκών πρέπει να αποφεύγεται μάλλον κλείνω προς την άποψη του jbosdas
kan62 Δημοσιεύτηκε May 15, 2021 at 04:47 μμ Δημοσιεύτηκε May 15, 2021 at 04:47 μμ Λάβετε υπόψη το γεγονός ότι την ώρα του έκτακτου γεγονότος πρέπει δίπλα από την κατειλημμένη θέση να μπορεί να βγει και να προσπεράσει άλλο καροτσάκι που βγαίνει από το διαμέρισμα πίσω από τον ανελκυστήρα. Τότε θέλει 0,90 μ., το οποίο δεν είναι διάσταση παροχής είναι η ελάχιστη απαιτούμενη πλέον από τις μελέτες προσβασιμότητας. 1
ΚΑΝΑ Δημοσιεύτηκε May 15, 2021 at 04:51 μμ Δημοσιεύτηκε May 15, 2021 at 04:51 μμ Ναι Θόδωρε αλλά ο κανονισμός αναφέρεται σε μια θέση/κλιμακοστάσιο ή κάνω λάθος (καθώς δεν ασχολήθηκα ιδιαίτερα)
kan62 Δημοσιεύτηκε May 15, 2021 at 05:27 μμ Δημοσιεύτηκε May 15, 2021 at 05:27 μμ Δεν λέω για την απαιτούμενη θέση, αυτή είναι ήδη πιασμένη. Η καθολική προσβασιμότητα και ο κανονισμός πυροπροστασίας δεν εξαιρεί το διαμέρισμα που είναι πίσω από το στενό μεταξύ ΑΜΕΑ-ασανσέρ, και πρέπει να οδεύσει προς τη σκάλα, να έχει και αυτό τον ελάχιστο διάδρομο για να βγει και από εκεί ΑΜΕΑ ή άτομο σε ανάγκη. Εξ' άλλου, βάσει κανονισμού, στο κλιμακοστάσιο της πολυκατοικίας υπάρχει (σχεδόν πάντα) σύμπτωση με το κλιμακοστάσιο των πυροσβεστών το οποίο επίσης απαιτεί ελάχιστο 0,90. Επίσης, μέσα στο διαμέρισμα το ελάχιστο πλάτος απροστάτευτης όδευσης διαφυγής είναι 0,80 και όχι 0,70. Άρα τελικά : μέσα στο διαμέρισμα έχουμε ελάχιστο 0,80 αλλά έξω από την εξώπορτα όπου, δίπλα στο καροτσάκι του ΑΜΕΑ, πρέπει να περάσει ο πυροσβέστης κρατώντας το μωρό ή τον ΑΜΕΑ αγκαλιά ή στην πλάτη έχουμε 0,90 μ. 2
HAPKI Δημοσιεύτηκε May 17, 2021 at 11:03 πμ Δημοσιεύτηκε May 17, 2021 at 11:03 πμ (edited) Καλησπέρα. Ευχαριστώ όλους για τις κατατοπιστικές απαντήσεις. Θα προσπαθήσω να προσαρμόσω αναλόγως την μελέτη Το μόνο που μένει αναπάντητο είναι το κατα πόσο οι εξαιρέσεις που αναφέρονται στο αρθ.26 παρ.5 (αα),(αβ), (αγ) αφορούν και νέα κτίρια κατοικίας? Edited May 17, 2021 at 05:24 μμ by HAPKI
Metridis Δημοσιεύτηκε May 19, 2021 at 04:26 μμ Δημοσιεύτηκε May 19, 2021 at 04:26 μμ Να αναφερθώ και γω στο θέμα, όπως πληροφορήθηκα από την πολεοδομία την Δευτέρα. ότι οι εξαιρέσεις παρ. 5 (αα), (αβ), (αγ), ισχύουν και στα νέα κτίρια κατοικίας, Επίσης με ενημέρωσαν ότι μπορούμε να τοποθετήσουμε σε τριώροφη μονοκατοικία την θέση του αμαξιδίου 0,80*1,30 μπροστά από το ασανσέρ. Και να αφήσουμε όδευση διαφυγής δίπλα. 2 1
dimitris GM Δημοσιεύτηκε May 19, 2021 at 04:57 μμ Δημοσιεύτηκε May 19, 2021 at 04:57 μμ (edited) σωστα και βλ. αναλυτικα στα σχετικα "εγγραφα του αρθρου 26" στην κωδικοποιηση του ΝΟΚ απο τον καν62 Edited May 19, 2021 at 04:58 μμ by dimitris GM 1 1
Recommended Posts
Δημιουργήστε ένα λογαριασμό ή συνδεθείτε προκειμένου να αφήσετε κάποιο σχόλιο
Πρέπει να είστε μέλος για να μπορέσετε να αφήσετε κάποιο σχόλιο
Δημιουργία λογαριασμού
Κάντε μια δωρεάν εγγραφή στην κοινότητά μας. Είναι εύκολο!
Εγγραφή νέου λογαριασμούΣύνδεση
Εάν έχετε ήδη λογαριασμό; Συνδεθείτε εδώ.
Συνδεθείτε τώρα