-
Περιεχόμενα
2.573 -
Εντάχθηκε
-
Τελευταία επίσκεψη
-
Days Won
35
jbosdas last won the day on Ιανουάριος 20
jbosdas had the most liked content!
Φήμη στην κοινότητα
935 ΕξαιρετικήΣχετικά jbosdas

Profile Information
-
Φύλο
Άντρας
-
Τοποθεσία
Χαλάνδρι
-
Επάγγελμα
Μηχανικός
-
Ειδικότητα
Διπλ. Αρχιτέκτων Μηχανικός
Τελευταίοι επισκέπτες προφίλ
14.501 profile views
-
Όχι, δεν αλλάζω κατηγορία. Διορθώνω σφάλματα του 4ου, περνάω τον 3ο σε νεο ΦΚ ΚΑΤ5 (λόγω 40εκ εντός πρασιάς), τον 1ο,2ο σε νεο ΦΚ ως ΚΑΤ2, περνάω μικρές πολεοδομικές <5% σε νέο ΦΚ ΚΑΤ3 και κλείνω με λοιπές ΠΠ σε ΦΚ ΚΑΤ4. Με τη ρύθμιση όλων των κατασκευών, τροποποιώ την ΣΟΙ, με την μία και μοναδική κοινόχρηστη υπόγεια αποθήκη να λαμβάνει ποσοστά συνιδιοκτησίας με ανακατανομή, δημιουργώ 4 αποκλειστικές χρήσεις ΘΣ στην πιλοτή και επιτυγχάνεται η πώληση του 1ου, με μία ΘΣ και χωρίς να έχει πρόσβαση στην πρώην κοινόχρηστη αποθήκη που θέλουν να την κρατήσουν για χρήση των 3ων εκ των 4ων διαμερισμάτων... Το θέμα είναι αν μπορώ να ανοίξω την 5 και να προσθέσω το υπόλοιπο κτίσμα...
-
Σε οροφοδιαμέρισμα του 3ου ορόφου, οικογενειακής πολυκατοικίας με ΣΟΙ, εντοπίζονται παραβάσεις υπέρβασης δόμησης εντός πρασιάς ~40εκ. Υπάρχει δυνατότητα να ανοίξω τη δήλωση του 4ου (και μοναδική στο ακίνητο - ΚΑΤ5) και να προσθέσω όλα τα υπόλοιπα διαμερίσματα και κοινόχρηστους και να μετατραπεί σε μια κοινή δήλωση του κτιρίου; Υπάρχει κάποιο κώλυμα; Για συναινέσεις δεν υπάρχει θέμα (οικογενειακή) αλλά δεν μπορώ να συμπεριλάβω μόνο τον 3ο αφού είναι ξεχωριστοί ιδιοκτήτες (ΣΟΙ). Το πρόστιμο δεν το βλέπω να τροποποιείται >20% (μικρές λοιπές παραβάσεις, μεγάλο αρχικό πρόστιμο) οπότε αποφεύγεται το ΣΥΠΟΘΑ.
-
έχουμε όμως και ... γ] Συγκρίνει υφιστάμενη κατάσταση με τα σχέδια της αδείας. Εντοπίζει μετατόπιση (επισημαίνεται στα σχέδια του συναδέλφου), ρυθμίζει με παρ.9, αρθ100 250€, και σήμερα για την μεταβίβαση, προκύπτει το θέμα της τροποποίησης της ΣΟΙ. Για μονομερή έχουμε την παρ.5α, αρθ98 (εκ της κατασκευής) και χρειαζόμαστε και τα σχετικά της παρ.7 (εντός νομίμου όγκου +10ετία +δικ.αποφ). Αν λοιπόν, αποδεχτούμε οτι είμαστε εκτός νομίμου όγκου, τότε πάει με παρ9, αρθ98 και το >50%, ατυχώς όμως και βάσει κανονισμού και απαιτήσεων συμβολαιογράφου... με το 100% ! Αρα καταλήγουμε στο αναίμακτο β] με τροποποίηση της υπαγωγής ;
-
jbosdas started following Ανοικτό Κλιμακοστάσιο
-
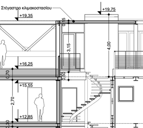
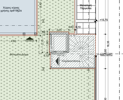
Μια χαρά μπορείς, δεν βλέπω κανένα πρόβλημα αρκεί να μην θεωρηθεί κλειστός χώρος. Παραθέτω αντίστοιχα από εγκεκριμένη άδεια. Το μόνο πρόβλημα στα ανοιχτά κλιμακοστάσια είναι το ισόγειο που δεν ξέρεις αν είναι ανοιχτό ή κλειστό...
-
Βάσει εγκεκριμένων σχεδίων άδειας έχουμε ανοιχτή θέση στάθμευσης ακαλύπτου (παρακολούθημα ιδιοκτησίας ορόφου) η οποία μετατοπίστηκε κατά 1 m προς τον κοινόχρηστο ακάλυπτο χώρο. Ρυθμίζεται ως διαφορετική χωροθέτηση θέσης στάθμευσης (παρ.9,αρθ.100). Πως αντιμετωπίζεται η τροποποίηση της σύστασης με δεδομένο ότι η αυθαίρετη επέκταση έχει υλοποιηθεί κατά την κατασκευή του κτιρίου; Εντός νομίμου όγκου (δεν έχει όγκο, αλλά δεν προσαυξάνεται ο υφιστάμενος...) ή όχι, άρα με συναίνεση 100%
-
Τα νέα κόλπα του ΝΟΚ : Πατάρια και Σοφίτες.
jbosdas replied to JTB's θέμα in ΝΟΚ (Νέος Οικοδομικός Κανονισμός)
Καλησπέρα σε όλους! Σε έλεγχο δόμησης τριώροφης πολυκατοικίας (με προέγκριση), έχει κατασκευαστεί πατάρι όχι με κενό προς το υποκείμενο όροφο αλλά με υποχώρηση του παταριού δημιουργώντας δώμα!! Ισχύει κάτι τέτοιο; -
@inaste44 Σου απάντησε ο @ΙΑΣΟΝΑΣ, και συμπλήρωσε και ο @dimitris GM. Δεν είναι προϋπόθεση η ρύθμιση αυθαίρετων κατασκευών για την αποδοχή κληρονομιάς. Δεδομένου ότι στις αεροφωτογραφίες προ 1983 δεν εμφανίζεται, έχεις Κατηγορία 5, χωρίς δυνατότητα τακτοποίησης. Το μόνο που μπορεί να γίνει είναι η ακριβής αποτύπωση του εμβαδού (όπως θα γινόταν σε διαδικασία ρύθμισης), προκειμένου να παραδοθεί στη συμβολαιογράφο για την ορθή αποτύπωση των στοιχείων στην αποδοχή. (ο θανών, κλίνεται)
-
Κατάληψη κοινόχρηστου είναι, το μόνο σίγουρο, όσο για την απόφαση του ΣτΕ αν και αυτή αναφέρεται σε συγκεκριμένη περίπτωση χωρίς σύσταση, πάντα επισημαίνεται στον ενδιαφερόμενο. Το ερώτημα τίθεται κυρίως για το είδος της παράβασης και κυρίως για τον έλεγχο της κατηγορίας (4/5). Σοφίτα; ΥΔ; Διαμερισμάτωση; Ο ορισμός της σοφίτας, κουλό μεν, ικανοποιείται δε.
