-
Περιεχόμενα
1.219 -
Εντάχθηκε
-
Τελευταία επίσκεψη
-
Days Won
10
Τύπος περιεχομένου
Profiles
Φόρουμ
Downloads
Gallery
Ειδήσεις
Media Demo
Αγγελίες
Store
Everything posted by sdtopo
-
Ορθογώνιο που εγγράφεται σε περιοχή που καθορίζεται από 4 σημεία. sdbox_ZR4.mp4 Website facebook Page facebook Group Videos Instagram FAQ Οδηγός Χρήσης Download trial
-
Εξαγωγή block σε αρχείο. Παράδειγμα 1ο: Εξαγωγή στάσεων (τοπογραφικών σημείων) Παράδειγμα 2ο: Εξαγωγή στοιχείων χώρων sdbox_ZXBL.mp4 Website facebook Page facebook Group Videos Instagram FAQ Οδηγός Χρήσης Download trial
-
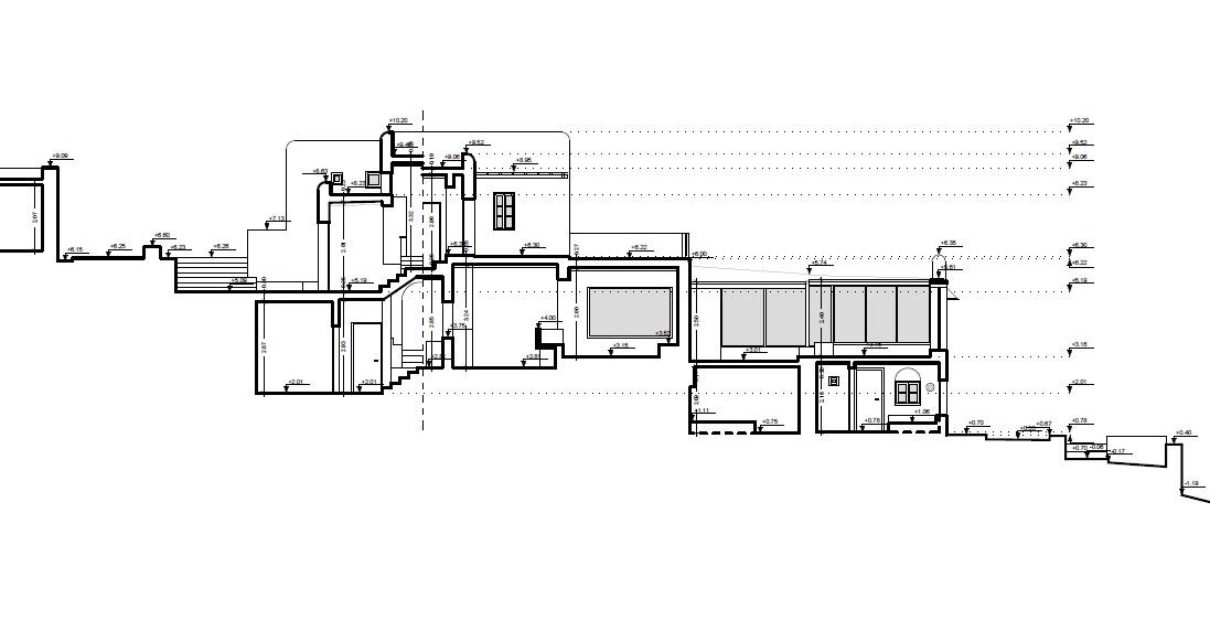
Νέο video όπου παρουσιάζεται ολόκληρη διαδικασία για σχεδίαση τομής με το SDBOX. Παρουσιάζεται σε 23 λ. η τομή ενός διώροφου πολύ παλαιού κτιρίου και αναπτύσσεται όλο το σκεπτικό της δημιουργίας των εργαλείων για εύκολη και γρήγορη σύνταξη τομής με ακρίβεια. Εύκολη: Τα απαιτούμενα layer δημιουργούνται αυτόματα. Περιλαμβάνεται οδηγός εισαγωγής των κατόψεων ως xref. Δεν χρειάζεται να "σηκώνονται" κάθετες γραμμές από την Κάτοψη κατά την σχεδίαση. Τα συμπληρωματικά στοιχεία του σχεδίου (ενδείξεις, διαστάσεις κ.λπ.) εισάγονται αυτοματοποιημένα με επιλογή από βιβλιοθήκες. Γρήγορη: Η τομή/προβολή δομικών στοιχείων σχεδιάζεται αυτόματα επιλέγοντας τα σημεία τομής και τις στάθμες/ύψη κατευθείαν από την Κάτοψη. Τα μεγέθη συμβόλων, κειμένων, διαστάσεων κ.λπ. προσαρμόζονται αυτόματα ανάλογα με την κλίμακα εκτύπωσης. Τα κουφώματα σε προβολή ή τομή σχεδιάζονται αυτόματα. Δεν απαιτείται η επιλογή ORTHOMODE να είναι ΟΝ. Ακρίβεια Δεν χρειάζεται να πληκτρολογούνται αριθμοί για τους υπολογισμούς αλλά επιλέγονται με το σταυρόνημα από την κάτοψη. Οι στάθμες τοποθετούνται αυτόματα στα επιθυμητά σημεία. Δείτε το video εδώ.
-
Επικεφαλίδες - σημειώσεις - μικροί και μεγάλοι τίτλοι. sdbox_YYTT.mp4 Website facebook Page facebook Group Videos Instagram FAQ Οδηγός Χρήσης Download trial
-
Γρήγορη απομόνωση επιλεγμένων layer. sdbox_ZF-ZFF.mp4 Website facebook Page facebook Group Videos Instagram FAQ Οδηγός Χρήσης Download trial
-
Ενημέρωση φακέλου ή αναθεώρηση
sdtopo replied to giotaki's θέμα in ΝΟΚ (Νέος Οικοδομικός Κανονισμός)
Η επιφάνεια που αντιστοιχεί στην διαφορά 2% είναι νόμιμη οπότε το διάγραμμα κάλυψης δεν αλλάζει ως την ουσία της έγκρισής του, δηλαδή αν εγκρίθηκαν 100 τμ μπορούν να έχουν κατασκευαστεί π.χ. 101 τμ. ή 99,5 τμ Οι ακριβείς επιφάνειες θα εμφανιστούν σε περίπτωση έκδοσης νέας άδειας (π.χ. προσθήκη ή επέκταση) όπου ναι μεν το 2% είναι νόμιμο αλλά θα πρέπει να συνυπολογιστεί για υπολογισμό του υπολοίπου κάλυψης ή δόμησης. -
Αιγιαλός και Ιδιοκτησιακό καθεστώς
sdtopo replied to pa_haraxis's θέμα in Αρτιότητα - Οικοδομησιμότητα
Ο αιγιαλός είναι φυσικό φαινόμενο, οπότε από την καθορισμένη γραμμή αιγιαλού και προς την θάλασσα δεν ήταν ποτέ ιδιοκτησία (ακόμα και αν έχει τοίχο, σπίτι ή ότι άλλο) και δεν μπορεί να εκδοθεί καμία άδεια από ιδιώτη. Η γραμμή παραλίας είναι πολεοδομική γραμμή που καθορίζεται ανάλογα με τις ανάγκες και την προοπτική της περιοχής. Η επιφάνεια ανάμεσα σε γραμμή αιγιαλού και παραλίας είναι η ζώνη παραλίας όπου τυχόν τμήματα ιδιοκτησιών τελούν υπό απαλλοτρίωση. Άδεια σε τυχόν κατασκευές εντός αυτής της ζώνης μπορεί να εκδοθεί για λόγους ασφάλειας και υγιεινής. -
Αυτόματη καταμέτρηση των block/xref που υπάρχουν στο σχέδιο. sdbox_ZBLK.mp4 Website facebook Page facebook Group Videos Instagram FAQ Οδηγός Χρήσης Download trial
-
Μαζική στοίχιση αντικειμένων. sdbox_ZSTX.mp4
-
Αυτόματη χρωματική διαφοροποίηση επιλεγμένων σε σχέση με το υπόλοιπο σχέδιο. sdbox_ZFG-ZFGG.mp4 Website facebook Page facebook Group Videos Instagram FAQ Οδηγός Χρήσης Download trial
-
Εννοώ ότι, όπως τα περιγράφεις, τα τμήματα του παραπάνω σκαριφήματος δεν είναι ρυμοτομούμενα αλλά είναι άλλου ιδιοκτήτη, εξού και το περίπλοκο της υπόθεσης.
-
Αν τα "ρυμοτομούμενα" είναι ότι περίσσεψε από την απαλλοτρίωση για στατικούς λόγους, τότε είναι περίπλοκο το ζήτημα (δεν έχω ευχερή την διαδικασία) αλλά σίγουρα δεν ανήκουν στο οικόπεδο. Αν τα ρυμοτομούμενα είναι νέα διαπλάτυνση/νέο ρυμοτομικό, τότε ισχύει όσα ισχύουν για τα ρυμοτομούμενα.
-
Πως έχει συντελεστεί η απαλλοτρίωση (ΦΕΚ ? Αποζημιώσεις ?) εφ' όσον υπάρχει ακόμα τμήμα του κτιρίου ? Σε κάθε περίπτωση πως γίνεται να υπάρχει και "απαλλοτρίωση" και ρυμοτομούμενα ? Υπάρχει Πράξη Αναλογιμού ?
-
Θα βοηθούσε να ανέβαζες αποσπάσματα των ρυμοτομικών (αρχικό, 1985, 1992). Α. Η απαλλοτρίωση το 1985 τι αφορούσε ? μήπως ήταν τροποποίηση ή εφαρμογή του ρυμοτομικού και όχι απαλλοτρίωση ? Β. Το ρυμοτομικό του 1992 δείχνει το κτίσμα του 1960 και είναι βέβαιο ότι το ρυμοτομεί ? (ενώ απέναντί του σε όλες τις πλευρές υπάρχουν χώροι πρασίνου ?) Γ. Το κτίριο ήταν εντός ΟΤ πριν το 1992 ? ή κατασκευάστηκε εξαρχής εκτός οικοπέδου ? Δ. Στην κεντρική οδό, το οικόπεδο, έχει πρόσωπο σε πλήρως διανοιγμένη οδό ?
-
Νομίζω ότι οριοθέτηση του ρέματος δεν σημαίνει και αυτόματη απόδοση της έκτασης στο δημόσιο, μόνο αν είναι ποταμός συνεχούς ροής. Με την οριοθέτηση ισχύει δουλεία διέλευσης υδάτων χωρίς να μεταβάλλονται οι τίτλοι. Δεν νομίζω δηλαδή ότι μετά την οριοθέτηση το ρέμα αποτελεί "ρυμοτομούμενο" ή "απαλλοτριούμενο" ή "δεν ήταν ποτέ τμήμα της ιδιοκτησίας". Σε κάθε περίπτωση όταν αφήνεται κάτι σε κοινή χρήση δεν αφήνεται και σε κοινή κτήση, δεν αποκόπτεται δηλαδή. Οπότε δεν αλλάζει κάτι για την κατάτμηση.
-
ZZ: H πρώτη εντολή που δημιουργήθηκε για το SDBOX με σκοπό την γρήγορη σχεδίαση. sdbox_ZZ.mp4 Website facebook Page facebook Group Videos Instagram FAQ Οδηγός Χρήσης Download trial
-
Αρτιότητα και Οικοδομησιμότητα Εκτός Σχεδίου
sdtopo replied to rse's θέμα in Αρτιότητα - Οικοδομησιμότητα
Για τις δορυφορικές εικόνες και το Google Earth εννοώ την επιλογή timelaps όπου μπορείς να βλέπεις τις αλλαγές σε μία περιοχή ή την εικόνα σε διαφορετικές περιόδους του έτους. GE.mp4 -
Αρτιότητα και Οικοδομησιμότητα Εκτός Σχεδίου
sdtopo replied to rse's θέμα in Αρτιότητα - Οικοδομησιμότητα
Εφ' όσον λειτουργεί το Κτηματολόγιο τότε το ακίνητο ανήκει με βεβαιότητα σε αυτόν που αναφέρεται στο κτηματολογικό φύλλο και έχει επιφάνεια από 3.620 τμ εώς 4.220 τμ. Την ακριβή επιφάνεια οποιουδήποτε ακινήτου την καθορίζει μόνο το Τοπογραφικό Διάγραμμα. Εσένα πόσο προκύπτει από την μελέτη σου ? Θα έχεις προβλήμα ιδιοκτησιακό μόνο αν προκύπτει κάτω από 3.620 τμ ή πάνω από 4.220 τμ. Και θα έχεις πρόβλημα αρτιότητας μόνο αν προκύπτει κάτω από 4στρ. Το ότι δεν υπάρχουν υλοποιημένα δεν σημαίνει ότι δεν μπορούν να μελετηθούν τα όρια με βαση τον συνδυασμό όλων των παρακάτω: Την υπόδειξη του ιδιοκτήτη (έστω και αν η υπόδειξη είναι από παλαιά τοπογραφικά ή σε 4μ. ζώνη από τον άξονα ορίων του Κτηματολογίου) Από την υφιστάμενη κατάσταση (αλλαγή καλλιέργειας, συστιχοίες δέντρων, μεγάλα μεμονωμένα δέντρα, οργωμένης περιοχής, βραχώδους περιοχής, διαφοροποίησης φύτευσης, πασσάλους, αναχώματα, εμπασιές κλ.π. Από αεροφωτογραφίες που υπάρχουν πλέον ελέυθερες στον ιστό, από τις δορυφορικές εικόνες εικόνες του Google earth (ενεργοποιώντας το ιστορικό κατά έτος) και τους ορθοφωτοχάρτες του Κτηματολογίου ανά τα διαθέσιμα έτη. Τους τίτλους Τον χάρτη 1:5000 της Γ.Υ.Σ. Τυχόν τίτλους ή άδειες όμορων. Κατά την άποψή μου δεν απαιτείται ένσταση στο Κτηματολόγιο αλλά αναλυτική τοπογραφική μελέτη. -
Το λογικό για μένα θα ήταν, και τότε και τώρα: Ενημέρωση φακέλου άδειας για διαφορά μεταξύ των διαμερισμάτων σε σχέση με την Ο.Α. ΔΔ για διαφορά σε σχέση με την Σ.Ο.Ι.
-
Συμφωνώ με τα παραπάνω. Στην συγκεκριμένη περίπτωση όπου ΣΟΙ και υφιστάμενη κατάσταση συμπίπτουν αλλά υπάρχει διαφορά με την Ο.Α. 4178: Δεν απαιτούνταν ρύθμιση αν δεν είχε διαφορές στις μηχανολογικές εγκαταστάσεις 4495: Απαιτείται
-
Είναι παράδοξο το ότι αν και δεν έχει αλλάξει η Ο.Ι., με βάση την σύσταση, παρα ταύτα αν έχει διαφορές από την οικοδομική άδεια πρέπει να ρυθμιστεί σαν διαφορετική διαμερισμάτωση (ενώ δεν ορίζονται τα διαμερίσματα κατά επιφάνεια στην οικοδομική άδεια). Αυτό γράφεται στην παρ. 14 του αρθ. 100 (που διαφοροποιείται από τον 4178 όπου ίσχυε το αντίθετο όπως το θυμάμαι). Γενικά η διαφορετική διαμερισμάτωση δεν αναιρεί κανέναν συντελεστή της άδειας παρά μόνον τα πυροδιαμερίσματα, ενώ έχει σημασία για την ιδιοκτησία αν έχει διαφορές από τα σχέδια της σύστασης. Σε κάθε περίπτωση αν διαβάσει κανείς τον νόμο κατά γράμμα θα πρέπει να υπαχθεί με διαφορετική διαμερισμάτωση και ας μην αλλάζει η επιφάνεια ή το σχήμα του διαμερίσματος (ως προς την σύσταση).
-
Το SDBOX περιέχει πλήρη οδηγό και εργαλεία για τις δηλώσεις και σημειώσεις τοπογραφικού διαγράμματος. sdbox_ZTITLOI_T.mp4 Website facebook Page facebook Group Videos Instagram FAQ Οδηγός Χρήσης Download trial
-
Υπάρχουν αυτά που είχε αναρτήσει αρχικά το ΥΠΕΚΑ:
