nikoscivil Δημοσιεύτηκε June 18, 2015 at 12:37 μμ Δημοσιεύτηκε June 18, 2015 at 12:37 μμ Καλησπέρα! Πήγαινε στο τεύχος των στατικών, στον έλεγχο θεμελίωσης. Εκεί δες για το τοιχείο τι θεμελίωση ακολουθεί. Λογικά ο μελετητής έχει θεμελιώσει το τοιχείο σε ξεχωριστό πέδιλο διαστάσεων Lx*Ly και πάχους 0,55 (εύκαμπτο πέδιλο). Τις γύρωθεν κολώνες τις θεμελίωσε σε περιμετρική πεδιλοδοκό. Από το Statics εμφαίνεται να είναι ο ξυλότυπος...
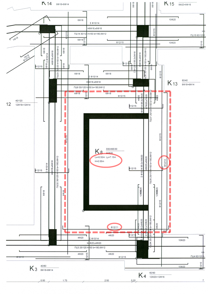
Pavlos33 Δημοσιεύτηκε June 18, 2015 at 01:22 μμ Δημοσιεύτηκε June 18, 2015 at 01:22 μμ (edited) Καλημέρα συνάδελφοι. Πήρα την παρακάτω μελέτη και προσπαθώ να την καταλάβω. scan themelio.png Αυτό που δεν καταλαβαίνω είναι στην Κ8 που είναι το τοιχείο του ασανσέρ. Λέει τον οπλισμό της και τις διαστάσεις και από κάτω γράφει Lx=5.50 Ly=7.15 H=0.55m Συμπεραίνω πως είναι η θεμελίωση του τοιχείου που θα έχει πάχο 55cm Όμως η πεδ/κός εμπρός του ασανσέρ έχει ύψος 1,70 (ενώ οι άλλοι πεδ/κοι έχουν ύψος 1,20) και πάχος θεμελίου 50cm Αν υποθέσω πως θα κατέβει όλο το σύστημα (τοιχείο και πεδ/κός) 50cm κάτω, ώστε να έχουν κοινή άνω επιφάνεια, μέσα στο ασανσέρ (αλλά και μάλλοΝ μεταξύ των στύλων Κ3-Κ4-Κ13-Κ12, θα έχει πάχος 55cm. Καλά έχω καταλάβει; Επίσης δεν μπορώ να καταλάβω τι είναι το Lx και Ly. Οι διαστάσεις της πλάκας θεμελίωσης είναι 5,00 επί 8,40 (μαζί με τις δοκούς) Ευχαριστώ.... Αρκετά μεγάλο φαίνεται το τοιχείο του ανελκυστήρα. Η σχεδίαση του ξυλότυπου είναι δυσνόητη. Δες αν έχει στις λεπτομέρειες κάποια τομή στο κρίσιμο σημείο. Υποθέτω ότι αυτό που θέλει να δείξει είναι ότι λόγω του ότι ο ανελκυστήρας θα έχει στάση στο υπόγειο, πρέπει να υπάρξει το αναγκαίο βάθος πυθμένα, ο οποίος για ανελκυστήρες προσώπων είναι της τάξης των 1.20-1.40 μ κάτω από την άνω τελική στάθμη της μπαζόπλακας του υπογείου έως την άνω επιφάνεια του θεμελίου του ανελκυστήρα. Άρα το τοιχείο που αντιστοιχεί στον ανελκυστήρα θα πρέπει να θεμελιωθεί χαμηλοτερα στο δικό του πέδιλο και να σηκωθούν τοιχεία που θα ενωθούν με όποιες συνδετήριες προβλέπεται. Απαράδεκτη μελέτη αν δεν έχει σχεδιάσει κάποια τομή. Edited June 18, 2015 at 01:24 μμ by Pavlos33
Faethon11 Δημοσιεύτηκε June 18, 2015 at 02:44 μμ Δημοσιεύτηκε June 18, 2015 at 02:44 μμ Καλησπέρα! Πήγαινε στο τεύχος των στατικών, στον έλεγχο θεμελίωσης. Εκεί δες για το τοιχείο τι θεμελίωση ακολουθεί. Λογικά ο μελετητής έχει θεμελιώσει το τοιχείο σε ξεχωριστό πέδιλο διαστάσεων Lx*Ly και πάχους 0,55 (εύκαμπτο πέδιλο). Τις γύρωθεν κολώνες τις θεμελίωσε σε περιμετρική πεδιλοδοκό. Από το Statics εμφαίνεται να είναι ο ξυλότυπος... Δεν έχω την μελέτη, μόνο σχέδια. Το Lx,Ly είναι μεγαλύτερο από το περίγραμμα του Κ3-Κ4-Κ13-Κ12. Λες το θεμέλιο του ασανσέρ να πάει κάτω από τα θεμέλια των πεδ/κών που ενώνουν τα Κ3-Κ4-Κ13-Κ12; Δεν το πιστεύω. Κάτι άλλο είναι το Lx, Ly... Αρκετά μεγάλο φαίνεται το τοιχείο του ανελκυστήρα. Η σχεδίαση του ξυλότυπου είναι δυσνόητη. Δες αν έχει στις λεπτομέρειες κάποια τομή στο κρίσιμο σημείο. Υποθέτω ότι αυτό που θέλει να δείξει είναι ότι λόγω του ότι ο ανελκυστήρας θα έχει στάση στο υπόγειο, πρέπει να υπάρξει το αναγκαίο βάθος πυθμένα, ο οποίος για ανελκυστήρες προσώπων είναι της τάξης των 1.20-1.40 μ κάτω από την άνω τελική στάθμη της μπαζόπλακας του υπογείου έως την άνω επιφάνεια του θεμελίου του ανελκυστήρα. Άρα το τοιχείο που αντιστοιχεί στον ανελκυστήρα θα πρέπει να θεμελιωθεί χαμηλοτερα στο δικό του πέδιλο και να σηκωθούν τοιχεία που θα ενωθούν με όποιες συνδετήριες προβλέπεται. Απαράδεκτη μελέτη αν δεν έχει σχεδιάσει κάποια τομή. Τομή δεν υπάρχει και το σχέδιο φαίνεται να είναι όπως το έβγαλε το πρόγραμμα.... Δεν με πειράζει όμως αυτό, αρκεί να καταλάβω τι γράφει... Θα προσπαθήσω να σχεδιάσω μία τομή να δω τι θα βγάλει.... Ευχαριστώ και τους δυο σας
AlexisPap Δημοσιεύτηκε June 18, 2015 at 03:10 μμ Δημοσιεύτηκε June 18, 2015 at 03:10 μμ Είναι προφανές: Ο μελετητής ήθελε μία κοιτόστρωση στο φάτνωμα ΠΔ9 - ΠΔ32 - ΠΔ3 - ΠΔ35, στην οποία θα φύτευε τον πυρήνα. Επειδή το πρόγραμμά του δεν έχει κοιτόστρωση, έβαλε ένα μεμονωμένο πέδιλο -για τις ανάγκες της ανάλυσης. Ωστόσο, δεν είχε καμία διάθεση να ασχοληθεί περαιτέρω. Πιθανώς επειδή δεν υπέγραφε + δεν πληρώθηκε. Άφησε τα σχέδια όπως τα έβγαλε το πρόγραμμα, και γειά σας. 1
nikoscivil Δημοσιεύτηκε June 18, 2015 at 04:30 μμ Δημοσιεύτηκε June 18, 2015 at 04:30 μμ Αλεξη, το Statics ομως εχει κοιτοστρωση...(το γνωριζεις ) Δεν ειχα προσεξει τα μηκη των Lx και Ly. Θεωρω οτι πολυ απλα η αναλυση υπεδειξε τις συγκεκριμενες διαστασεις, αφου ομως προ αναλυσης ο μελετητης ειχε δηλωσει στη φαση του μαντευειν μικροτερες. Το προγραμμα εβγαλε σιγουρα μηνυμα λαθους, ο μελετητης (ενδεχομενως για τους λογους που αναφερει ο Αλεξης) το αγνοησε, και αφησε τους ξυλοτυπους ετσι ανταρα, με το να δηλωνονται μεγαλυτερα μηκη απο τα ηδη υπαρχοντα στην γεωμετρια του ξυλοτυπου. Γι' αυτο λοιπον σου ειπα οτι πρεπει να δεις κ το τευχος. Κ γενικα ποτε μην δεχεσαι σκετο ξυλοτυπο χωρις τευχος, αν δεν εισαι εσυ ο μελετητης. Τις περισσοτερες φορες θα δου βγουν τα ματια απο τις ασαφειες-λαθη-αγνοια του μελετητη- ωχαδερφισμο (τα αφηνει οπως να ναι). Ποτε δεν πρεπει να αφηνουμε το προγραμμα να "λειτουργει" απο μονο του.
AlexisPap Δημοσιεύτηκε June 18, 2015 at 04:56 μμ Δημοσιεύτηκε June 18, 2015 at 04:56 μμ (edited) To statics -όμως- του συγκεκριμένου συναδέλφου είχε; Και ήταν κατάλληλο για πυρήνα φυτεμένο σε ραντιέ, χωρίς δοκάρια; Δεν το νομίζω... Όπως και νά 'χει, η εικόνα λέει χίλιες λέξεις: Υπάρχει ένα μεμονωμένο πέδιλο με διαστάσεις 550Χ715, με οπλισμούς Φ12/13 και Φ12/11, που το περίγραμμά του έχει μπερδευτεί με τις πεδιλοδοκούς. Σίγουρα αυτό που βλέπουμε είναι τεχνικά λάθος, και είναι απίθανο να ήταν επιθυμία του μελετητή. Κι αν ήταν επιθυμία του, τόσο το χειρότερο... Edited June 18, 2015 at 05:01 μμ by AlexisPap
Faethon11 Δημοσιεύτηκε June 19, 2015 at 05:40 μμ Δημοσιεύτηκε June 19, 2015 at 05:40 μμ Τελικά και εγώ εκεί κατέληξα..... Ότι αυτό δεν μπορεί να κατασκευαστεί..... Σας ευχαριστώ για την βοήθεια.
nik Δημοσιεύτηκε October 26, 2015 at 03:55 μμ Δημοσιεύτηκε October 26, 2015 at 03:55 μμ Θα κάνατε μη βατό πρόβολο 60εκ επί δοκού χωρίς συνέχεια στην εσωτερική πλάκα ? Δηλαδή η ροπή να πηγαίνει μόνο στη δοκό ? Συγκεκριμένα, θέλω να κάνω ένα πρόβολο 60εκ. και μήκους περίπου 1,50μ. για να χτίσω πάνω σε αυτόν έναν τοίχο 1,50μ. ύψους γύρω από καμινάδα τζακιού (κόκκινο χρώμα) για διακοσμητικούς λόγους. Το πρόβλημα είναι ότι η πλάκα αυτή δεν είναι στην ίδια στάθμη με την εσωτερική του ορόφου. Άρα μένουν δύο επιλογές. 1) Κάνω πλάκα πρόβολο (μπλέ χρώμα) όπως στο σχήμα επί της δοκού. 2) Να φτιάξω κολώνες αριστερά - δεξιά από την πλάκα πρόβολο και να βγάλω δοκάρια φουρούσια επί των οποίων να φτιάξω την πλάκα μου ως αμφιέρειστη πλεόν επί αυτών. Τι προτείνετε ? Με το (1) ξεμπερδεύω πιο εύκολα, αποφεύγω τις κολώνες και το δοκάρι μικρού μήκους. Υπάρχει θέμα ερπυσμού λέτε στην 1η περίπτωση? Ο τοίχος θα είναι στο άκρο της πλάκας και αριστερά και δεξιά.
atsalovergas Δημοσιεύτηκε October 26, 2015 at 04:26 μμ Δημοσιεύτηκε October 26, 2015 at 04:26 μμ (edited) Θα κάνατε μη βατό πρόβολο 60εκ επί δοκού χωρίς συνέχεια στην εσωτερική πλάκα ? Δηλαδή η ροπή να πηγαίνει μόνο στη δοκό ? Ναι Νικ. Θα φρόντιζα επιπλέον ο οπλισμός του προβόλου να είναι ενιαίος με τους συνδετήρες της δοκού (ένα ενιαίο τεμάχιο συνδετήρα με προέκταση). Δες εδώ στο τέλος: http://www.ktiriaka.gr/default.aspx?ch=57 Αν θέλεις στην λύση 1,διαμόρφωσε τον πρόβολο να έχει κεκλιμμένο πέλμα που θα ξεκινάει από το επίπεδο του κάτω πέλματος της εσωτερικής.πλάκας. Οι κάτω οπλισμοί της εσωτερικής πλάκας θα αγκυρώνουν καμπτόμενοι εντός του κάτω κεκλιμένου τμήματος του προβόλου (εξασφαλίζοντας έτσι και τους θλιπτήρες μιας και η συγκεκριμένη λύση τείνει θεωρητικά σε βραχύ πρόβολο). Κατ'αυτόν τον τρόπο,στην εξωτερική παρειά της δοκού ο πρόβολος θα έχει πάχος 50εκ. (Χρησιμοποιείς 0.135 κυβικά σκυρόδεμα παραπάνω,συγκριτικά με την 1η λύση που την θεωρώ επίσης επαρκή). Edited October 26, 2015 at 04:44 μμ by atsalovergas
KF Δημοσιεύτηκε October 26, 2015 at 04:28 μμ Δημοσιεύτηκε October 26, 2015 at 04:28 μμ Για τοσο μικρου μηκους προβολο εγω θα εκανα την 1η λυση με την παρατηρηση οτι η κυρια δοκος πρεπει να υπολογισθει και για στρεψη ( και να ειναι ικανου υψους για να τοποθετηθει με ασφαλεια ο οπλισμος προς τον προβολο)
Recommended Posts
Δημιουργήστε ένα λογαριασμό ή συνδεθείτε προκειμένου να αφήσετε κάποιο σχόλιο
Πρέπει να είστε μέλος για να μπορέσετε να αφήσετε κάποιο σχόλιο
Δημιουργία λογαριασμού
Κάντε μια δωρεάν εγγραφή στην κοινότητά μας. Είναι εύκολο!
Εγγραφή νέου λογαριασμούΣύνδεση
Εάν έχετε ήδη λογαριασμό; Συνδεθείτε εδώ.
Συνδεθείτε τώρα