st2 Δημοσιεύτηκε February 20, 2024 at 10:02 πμ Δημοσιεύτηκε February 20, 2024 at 10:02 πμ @Arche Αρχικά τα σχέδια δεν είναι δικά μου απλά συμφωνώ με αυτά. Γενικώς νομίζω ότι δεν έχει το δικαίωμα να σου ζητήσει αλλαγή της δοκού αν μπορείς να το δικαιολογήσεις με βάση την στατικη μελέτη για παράδειγμα, αλλά On 10/3/2023 at 10:07 PM, paspartout1 said: Σε έλεγχο συμβουλίου αρχιτεκτονικής που μου έτυχε στην Περιφέρεια Θεσσαλίας απαίτησαν το μέγιστο ύψος έδρασης να είναι 1 μετρο. On 10/3/2023 at 10:38 PM, killertomato said: ειναι γενναιόδωροι, στην ΥΔΟΜ ο υπάλληλος δεν δέχεται πάνω απο 60εκ δοκάρι για την έδραση. συγκεκριμένα για τις κεκ/νες πλάκες που δημιουργούν σοφίτα προσωπικα το 0,80και 0,60 υψος δοκου το θεωρω αποδεκτό και το 1μ υπερβολικό @Yanis83 από ΝΟΚ αρθρο 2 παρ.81 σε συνδυασμό με το άρθρο 11 παρ 6 ιε & με το άρθρο 19 παρ 2 ζ: η σοφίτα δεν χαρακτηρίζεται ούτε ως κύριος χώρος ούτε ως βοηθητικός αλλά λειτουργικό παράρτημα της υποκείμενης επιφάνειας και δεν υποκαθιστά της λειτουργίες που σου προσφέρουν οι κύριοι χώροι και δεν καθορίζεται πλέον μέσο ύψος 2,20μ (αρχικά είχε οριστεί 2,20 αλλά καταργήθηκε) δηλαδή : 1-δεν όριζεται ρητά το ύψος σοφίτας αφού δεν όρίζεται ως κύριος χώρος αλλά ούτε ως βοηθητικός, και 2-δεν μπορείς να έχεις κουζίνα ή μπάνιο μόνο στην σοφίτα μπορείς όμως να έχεις πχ κουζίνα και μπάνιο στην υποκείμενη επιφάνεια και στην σοφίτα άλλο ένα μπάνιο το έρωτημα που προκύπτει είναι το εξής : τι ύψος έχει το μπάνιο αυτό ; εκεί λοιπόν μπαίνει η πυρασφάλεια : Το ελεύθερο ύψος των χώρων, όπου περνά όδευση διαφυγής, πρέπει να είναι τουλάχιστον 2,20 m, ενώ για σκάλες, δοκούς, ανώφλια θυρών μπορεί να είναι 2,00 m. οπότε αν η οδός διαφυγής περνά από το μπάνιο πρέπει να είναι 2,20μ αλλιώς ελεύθερο έτσι το αντιλαμβάνομαι
Yanis83 Δημοσιεύτηκε February 20, 2024 at 10:52 πμ Δημοσιεύτηκε February 20, 2024 at 10:52 πμ 27 minutes ago, st2 said: @Arche Αρχικά τα σχέδια δεν είναι δικά μου απλά συμφωνώ με αυτά. Γενικώς νομίζω ότι δεν έχει το δικαίωμα να σου ζητήσει αλλαγή της δοκού αν μπορείς να το δικαιολογήσεις με βάση την στατικη μελέτη για παράδειγμα, αλλά συγκεκριμένα για τις κεκ/νες πλάκες που δημιουργούν σοφίτα προσωπικα το 0,80και 0,60 υψος δοκου το θεωρω αποδεκτό και το 1μ υπερβολικό @Yanis83 από ΝΟΚ αρθρο 2 παρ.81 σε συνδυασμό με το άρθρο 11 παρ 6 ιε & με το άρθρο 19 παρ 2 ζ: η σοφίτα δεν χαρακτηρίζεται ούτε ως κύριος χώρος ούτε ως βοηθητικός αλλά λειτουργικό παράρτημα της υποκείμενης επιφάνειας και δεν υποκαθιστά της λειτουργίες που σου προσφέρουν οι κύριοι χώροι και δεν καθορίζεται πλέον μέσο ύψος 2,20μ (αρχικά είχε οριστεί 2,20 αλλά καταργήθηκε) δηλαδή : 1-δεν όριζεται ρητά το ύψος σοφίτας αφού δεν όρίζεται ως κύριος χώρος αλλά ούτε ως βοηθητικός, και 2-δεν μπορείς να έχεις κουζίνα ή μπάνιο μόνο στην σοφίτα μπορείς όμως να έχεις πχ κουζίνα και μπάνιο στην υποκείμενη επιφάνεια και στην σοφίτα άλλο ένα μπάνιο το έρωτημα που προκύπτει είναι το εξής : τι ύψος έχει το μπάνιο αυτό ; εκεί λοιπόν μπαίνει η πυρασφάλεια : Το ελεύθερο ύψος των χώρων, όπου περνά όδευση διαφυγής, πρέπει να είναι τουλάχιστον 2,20 m, ενώ για σκάλες, δοκούς, ανώφλια θυρών μπορεί να είναι 2,00 m. οπότε αν η οδός διαφυγής περνά από το μπάνιο πρέπει να είναι 2,20μ αλλιώς ελεύθερο έτσι το αντιλαμβάνομαι Συμφωνώ οτι δεν υπάρχει περιορισμός πλέον ως προς το ελεύθερο ύψος της σοφίτας. Επίσης η σοφίτα σύμφωνα με τον ορισμό της είναι χώρος και επομένως μπορεί να είναι είτε χώρος βοηθητικής χρήσης είτε χώρος κύριας χρήσης είτε και τα δύο καθώς δεν αναφέρεται πουθενά περιορισμός. Εάν όμως βάλει κανείς κύρια χρήση πάνω στη σοφίτα πχ ένα δωμάτιο με κρεβάτια, τότε ο χώρος αυτός θα πρέπει να έχει και τις προδιαγραφές χώρου κύριας χρήσης σύμφωνα με το αρθρο 2 παρ.95 δηλαδή > 2,5μ. Σωστά; Και το αρχικό ερώτημα τώρα είναι, αυτό το ελεύθερο ύψος είναι το μέσο ύψος της σοφίτας ή το ελάχιστο ύψος της; Πώς μετράμε δηλαδή πλέον το ελεύθερο ύψος μιας σοφίτας...ως μέσο ή ως ύψος σε κάθε σημείο με όριο στο ελάχιστο. Όσον αφορά το άρθρο 19 παρ.2ζ κατακόρυφα ανοίγματα δεν επιτρέπονται πάνω στην στέγη, κανείς όμως δεν απαγορεύει σε μονόριχτη στέγη να ανοίξεις κατακόρυφο άνοιγμα στην μεγάλη πλευρά της που είναι κάθετη και δεν αλλάζει την στερεομετρία της, όπως επίσης και φεγγίτες που ακολουθούν τη κλίση της.
killertomato Δημοσιεύτηκε February 20, 2024 at 11:05 πμ Δημοσιεύτηκε February 20, 2024 at 11:05 πμ σύμφωνα με τον ορισμό της σοφίτας δεν υπάρχει περιορισμός στο ύψος, έτσι θεωρώ οτι δεν ισχύουν τα αναφερόμενα για τους χώρους. 81. Σοφίταείναι ανοιχτός ή κλειστός προσβάσιμος χώρος που βρίσκεται κάτω από την επικλινή στέγη του κτιρίου και δύναται το δάπεδό της να βρίσκεται σε χαμηλότερο ύψος από το σημείο έδρασης της στέγης. Η σοφίτα αποτελεί ενιαίο σύνολο με το χώρο κάτω από την στέγη και ο παραπάνω χώρος αντιμετωπίζεται ενιαία για τον υπολογισμό του ελεύθερου ύψους. Η σοφίτα, δύναται να έχει πρόσβαση σε δώμα ή καιδώμα ορόφου του κτιρίουή και ανοικτό εξώστη ή και κλειστό εξώστη. Δεν θεωρείται όροφος και δεν μπορεί να αποτελεί ανεξάρτητη ιδιοκτησία. Επιτρέπεται η πρόσβαση στον χώρο της σοφίτας από κεντρικό κλιμακοστάσιο αυτοτελούς ανεξάρτητης ιδιοκτησίας. Δύναται, η επέκταση του δαπέδου της προσμετρώντας την επιφάνεια πλέον του 50% στονσ.δ. Δεν υφίσταται ελάχιστος ή μέγιστος περιορισμός ως προς το ύψος της σοφίτας.
Yanis83 Δημοσιεύτηκε February 20, 2024 at 02:28 μμ Δημοσιεύτηκε February 20, 2024 at 02:28 μμ (edited) 3 hours ago, killertomato said: σύμφωνα με τον ορισμό της σοφίτας δεν υπάρχει περιορισμός στο ύψος, έτσι θεωρώ οτι δεν ισχύουν τα αναφερόμενα για τους χώρους. 81. Σοφίταείναι ανοιχτός ή κλειστός προσβάσιμος χώρος που βρίσκεται κάτω από την επικλινή στέγη του κτιρίου και δύναται το δάπεδό της να βρίσκεται σε χαμηλότερο ύψος από το σημείο έδρασης της στέγης. Η σοφίτα αποτελεί ενιαίο σύνολο με το χώρο κάτω από την στέγη και ο παραπάνω χώρος αντιμετωπίζεται ενιαία για τον υπολογισμό του ελεύθερου ύψους. Η σοφίτα, δύναται να έχει πρόσβαση σε δώμα ή καιδώμα ορόφου του κτιρίουή και ανοικτό εξώστη ή και κλειστό εξώστη. Δεν θεωρείται όροφος και δεν μπορεί να αποτελεί ανεξάρτητη ιδιοκτησία. Επιτρέπεται η πρόσβαση στον χώρο της σοφίτας από κεντρικό κλιμακοστάσιο αυτοτελούς ανεξάρτητης ιδιοκτησίας. Δύναται, η επέκταση του δαπέδου της προσμετρώντας την επιφάνεια πλέον του 50% στονσ.δ. Δεν υφίσταται ελάχιστος ή μέγιστος περιορισμός ως προς το ύψος της σοφίτας. Σύμφωνα με τον ορισμό η σοφίτα είναι χώρος. Χώροι υπάρχουν είτε βοηθητικοί είτε κύριας χρήσης. Βοηθητικοί με ελ. ύψος άνω του 2,2μ σύμφωνα με αρθρο 2 παρ96 τεχνικού τεύχους και κύριοι με ελ. ύψος άνω των 2,5μ. Το όριο του 2,2 υπάρχει και για τις οδεύσεις διαφυγής επομένως κάποιος που σχεδιάζει μια σοφίτα με ύψος 1,5μ, τι χώρο έχει ρε παιδιά, μπορεί να τον χαρακτηρίσει ότι θέλει με βάση το Δεν υφίσταται ελάχιστος ή μέγιστος περιορισμός ως προς το ύψος της σοφίτας. ? Edited February 20, 2024 at 02:53 μμ by Yanis83
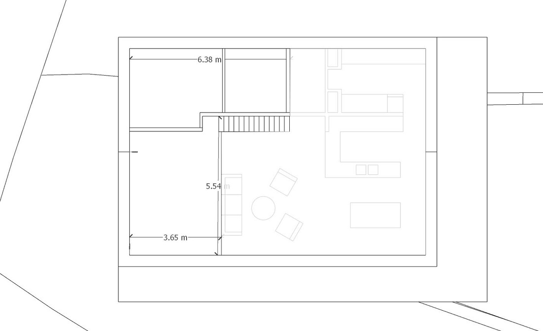
Dimitra_V Δημοσιεύτηκε March 14, 2024 at 08:06 πμ Δημοσιεύτηκε March 14, 2024 at 08:06 πμ Καλημέρα συνάδελφοι, Είμαι νέα μηχανικός και ετοιμάζομαι να βγάλω μια άδεια για κατοικία 115 τ.μ. Έχω λοιπόν έναν χώρο πάνω απο το ισόγειο 39 τ.μ όπως φαίνεται στα σχέδια που επισυνάπτω. Αρχικά η σκέψη μου ήταν οτι θα μπορούσα να το θεωρήσω πατάρι αλλά μετά απο τις διευκρινιστικές που βρήκα στο φόρουμ σε σχέση με πατάρια σοφίτες καταλαβαίνω οτι πατάρι δεν θα μπορούσε να είναι λόγω του οτι στα ελεύθερα όρια υψώνονται τοίχοι και δεν έχω την αποσταση του ενός μέτρου. Η ερώτηση λοιπόν είναι αν θα μπορούσα να το δείξω σαν σοφίτα κι αν ναι με ποιές τροποποιήσεις? Αν δεν περνάει και σαν σοφίτα τοτε θεωρείται όροφος και μετράει κανονικά στον σ.δ? Κάθε συμβουλή ή παρατήρηση θα ήταν χρήσιμη. Ευχαριστώ πολύ!
Panagiotis Andrianopoulos Δημοσιεύτηκε March 14, 2024 at 10:44 πμ Δημοσιεύτηκε March 14, 2024 at 10:44 πμ Το μέσο ύψος που έχεις είναι 2,69=ύψος χώρου κύριας χρήσης,άρα θεωρείται πατάρι.Τώρα με τον τοίχο ναι πρέπει να είναι 1 μέτρο από τα όρια του ανοιχτού εξώστη.Ως σοφίτα μπορείς να το κάνεις αλλά αντί για την τρύπα που έχεις, θα κάνεις δώμα ισογείου.
Latg Δημοσιεύτηκε March 14, 2024 at 03:31 μμ Δημοσιεύτηκε March 14, 2024 at 03:31 μμ (edited) Σοφίτα άνετα χωρίς καθόλου αλλαγή. Έχεις ένα ισόγειο κάτω από τη στέγη με μεγάλο ύψος και την σοφίτα σου που σίγουρα είναι <50% του Ισογείου σου (θα μπορούσες επομένως να κάνεις και παραπάνω χώρους στη Σοφίτα). Στο εμβαδόν της Σοφίτας για τον έλεγχο του 50% θα μετρήσεις και εξωτερικούς τοίχους που είναι σε επαφή με τους χώρους της Σοφίτας αλλά δε θα μετρήσεις σκάλα. Επίσης η σκάλα σου αφαιρείται από δόμηση στο Ισόγειο (Αρ. 11 παρ. 6ε). Το ελεύθερο ύψος στο Ισόγειο τμήμα κάτω από την Σοφίτα να είναι >=2,50μ. (Ελπίζω να μην είναι εκτός σχεδίου, γιατί το Ισόγειο έχει μέγιστο ύψος 4μ + 1,20 με στέγη. Αν είσαι εκτός σχεδίου θα πας για πατάρι, έχεις εμβαδόν να προσθέσεις ώστε να τοποθετήσεις σε απόσταση τους τοίχους, και θα βάλει και κάποιο τμήμα εντός δόμησης συνεπίπεδο με το πατάρι ώστε να θεωρείται όροφος και θα μπούν και όλοι οι τοίχοι του πάνω επιπέδου σε δόμηση, και άρα θα μπορείς να πας με 7,50μ + 1,20) Edited March 14, 2024 at 03:40 μμ by Latg 1
Dimitra_V Δημοσιεύτηκε March 18, 2024 at 08:45 μμ Δημοσιεύτηκε March 18, 2024 at 08:45 μμ On 3/14/2024 at 5:31 PM, Latg said: Σοφίτα άνετα χωρίς καθόλου αλλαγή. Έχεις ένα ισόγειο κάτω από τη στέγη με μεγάλο ύψος και την σοφίτα σου που σίγουρα είναι <50% του Ισογείου σου (θα μπορούσες επομένως να κάνεις και παραπάνω χώρους στη Σοφίτα). Στο εμβαδόν της Σοφίτας για τον έλεγχο του 50% θα μετρήσεις και εξωτερικούς τοίχους που είναι σε επαφή με τους χώρους της Σοφίτας αλλά δε θα μετρήσεις σκάλα. Επίσης η σκάλα σου αφαιρείται από δόμηση στο Ισόγειο (Αρ. 11 παρ. 6ε). Το ελεύθερο ύψος στο Ισόγειο τμήμα κάτω από την Σοφίτα να είναι >=2,50μ. (Ελπίζω να μην είναι εκτός σχεδίου, γιατί το Ισόγειο έχει μέγιστο ύψος 4μ + 1,20 με στέγη. Αν είσαι εκτός σχεδίου θα πας για πατάρι, έχεις εμβαδόν να προσθέσεις ώστε να τοποθετήσεις σε απόσταση τους τοίχους, και θα βάλει και κάποιο τμήμα εντός δόμησης συνεπίπεδο με το πατάρι ώστε να θεωρείται όροφος και θα μπούν και όλοι οι τοίχοι του πάνω επιπέδου σε δόμηση, και άρα θα μπορείς να πας με 7,50μ + 1,20) Ευχαριστώ πάρα πολύ! Κατατοπιστικότατη απαντηση! Είμαι εντός στάσιμου οικοσμού οπότε απ οτι εχω δει έχω μέγιστο ύψος 7.50μ + 1.50 σε περίπτωση κεκλιμένης στέγης.
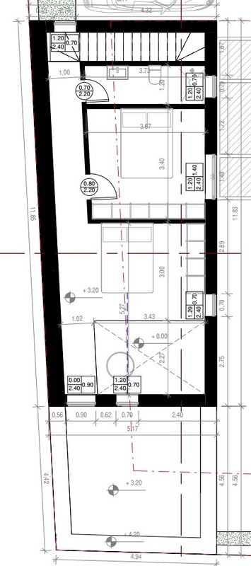
Alex Fragedakis Δημοσιεύτηκε May 21, 2024 at 04:18 μμ Δημοσιεύτηκε May 21, 2024 at 04:18 μμ Καλησπέρα συνάδελφοι Σε κατοικία που βγάζω άδεια και έχει πατάρι η πολεοδομία μου λέει ότι δεν επιτρέπεται κρεβατοκάμαρα κλειστή στο πατάρι ενώ είναι 3 μέτρα μέσα από τα όρια του εξώστη και επιτρέπονται μόνο βοηθητικοί χώροι κλειστοί (λουτρο). Το ισόγειο έχει και αυτό κρεβατοκάμαρα. Από την νομοθεσία στον 4759/2020 αναγράφεται ότι το πατάρι «να φέρει κλειστούς βοηθητικούς χώρους, σε οποιοδήποτε σημείο της επιφάνειάς του και σε απόσταση ενός (1) τουλάχιστον μέτρου από τα ανοικτά όρια», στον επόμενο ομως νόμο 4819/2021 η λέξη βοηθητικούς διαγράφεται και πλέον αναφέρει «το πατάρι δύναται να είναι συνεπίπεδο με όροφο ή και σοφίτα του κτιρίου ή και ανοικτό εξώστη ή και κλειστό εξώστη, να είναι προσπελάσιμο από τους παραπάνω χώρους και να φέρει κλειστούς χώρους σε οποιοδήποτε σημείο της επιφάνειάς του και σε απόσταση ενός (1) τουλάχιστον μέτρου από τα ανοικτά όρια, οι οποίοι δεν προσμετρώνται στον συντελεστή δόμησης» Δηλαδή ο νομοθέτης διαγράφει το βοηθητικούς χώρους και αναφέρει ότι μπορεί να έχει κλειστούς χώρους (προφανώς οποιασδήποτε χρήσης, αφού πλέον ηθελημένα διαγράφει από τον νόμο το βοηθητικούς που ίσχυε ώς τώρα) . Φαίνεται δηλαδή η πρόθεση του νομοθέτη να μην υπάρχουν μόνο βοηθητικοί κλειστοί χώροι στο πατάρι. Πως θα κάνω την πολεοδομία να το καταλάβει; μήπως γνωρίζει κανείς αν υπάρχει κάποια ερμηνευτική εγκύκλιος ή κάποια απόφαση το ΣΥΠΟΘΑ; Ο μηχανικός που μου βγάζει την άδεια δεν έχει άποψη (μάλλον συμφωνεί με την πολεοδομία) Επισυνάπτω την κάτοψη που η πολεοδομία στην προέγκριση μου λέει να μην δείξω κλειστό χώρο κρεβατοκάμαρας
Αλέξανδρος Δημοσιεύτηκε May 21, 2024 at 07:23 μμ Δημοσιεύτηκε May 21, 2024 at 07:23 μμ Δεν υπάρχει κάποιο χαρτί. Χρειάζεται τσαγανό!!! Πηγαίνεις το νόμο, τις τροποποιήσεις του και τον ενημερώνεις πως απαιτείς να σου δώσει τις αντιρρήσεις του εγγράφως. Αν βρει να γράψει κάτι τότε βλέπεις πως το αντικρούεις. 1
Recommended Posts
Δημιουργήστε ένα λογαριασμό ή συνδεθείτε προκειμένου να αφήσετε κάποιο σχόλιο
Πρέπει να είστε μέλος για να μπορέσετε να αφήσετε κάποιο σχόλιο
Δημιουργία λογαριασμού
Κάντε μια δωρεάν εγγραφή στην κοινότητά μας. Είναι εύκολο!
Εγγραφή νέου λογαριασμούΣύνδεση
Εάν έχετε ήδη λογαριασμό; Συνδεθείτε εδώ.
Συνδεθείτε τώρα